Projecten
Producten
Bedrijven
Vacatures
Agenda
Awards
Podcasts
more_horiz
Videos
Magazine
Thema's
Favorieten
Profiel
Uitloggen
Abonneer je nu op onze nieuwsbrieven!
Abonneren
Nee, bedankt
Ja, denk met me mee rond de
materialisering van mijn project
Copyright: Tjep.
Copyright: Tjep.
Copyright: Tjep.
Copyright: Tjep.
Copyright: Tjep.
Copyright: Tjep.
Copyright: Tjep.
Copyright: Tjep.
Copyright: Tjep.
Copyright: Tjep.
Copyright: Tjep.
Copyright: Tjep.
Copyright: Tjep.
Copyright: Tjep.
Copyright: Tjep.
Copyright: Tjep.
Copyright: Tjep.
Copyright: Tjep.
Copyright: Tjep.
Copyright: Tjep.
Copyright: Tjep.
Copyright: Tjep.
Copyright: Tjep.
Copyright: Tjep.
Copyright: Tjep.
Copyright: Tjep.
Moderne marktplaats helpt Bengaalse boeren vooruit
28 september 2018, 16:08
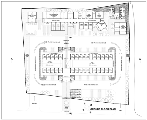
Afgelopen zomer is in Bangladesh de eerste Village Super Market opgeleverd. Met multifunctionele marktplaatsen als deze wil de Nederlandse ontwikkelingsorganisatie Solidaridad lokale kleine boeren helpen hun productiviteit en inkomen te vergroten. Het architectonisch ontwerp voor de marktplaats is gemaakt door designer Frank Tjepkema (
Tjep.
) en het Bengaalse architectenbureau
Vaastukalpa Architects
.
In samenwerking met de Nederlandse ambassade in Bangladesh heeft Solidaridad het programma SAFAL (Sustainable Agriculture, Food Security and Linkages) opgezet, waarmee in vijf verschillende gebieden moderne marktplaatsen met educatieve, gemeenschappelijke en technologische voorzieningen voor de lokale (plattelands)bevolking worden gerealiseerd.
Een belangrijk doel is om kleine boeren te helpen om hun inkomen en vaardigheden te verbeteren. Een van de grote problemen voor deze mensen is dat ze amper aan de internationale standaarden voor voedsel kunnen voldoen, waardoor ze worden genegeerd door grote bedrijven. Op de Village Super Markets leren ze de kwaliteit van hun productie(methoden) te vergroten.
Daarnaast genereren de boeren op de VSM zelf een directe bron van inkomsten, wat ze meer geld, een stabieler inkomen en een eerlijker vorm van handel oplevert. Mede dankzij de extra faciliteiten die die VSM’s bieden, wordt tevens de sociale cohesie, kwaliteit van voedsel en de levenstandaard voor de lokale bevolking verbeterd.
Bengaalse bouwcultuur
Bij het ontwerp voor de marktplaatsen vormen elementen uit de Bengaalse bouwcultuur een grote inspiratie. Hierbij gaat het niet alleen om typologieën als
arots
, hutten waarin marktkooplieden hun waar aanbieden. Ook worden plaatselijke productiemethoden aangewend, waaronder een bijna niet meer gebruikte baktechniek waarmee de bakstenen zijn gefabriceerd.
Met de bakstenen is ook een deel van de ‘Nederlandse touch’ in het project genoemd; iets waarmee de Bengaalse verantwoordelijken bij Solidaridad de samenwerking met Nederlandse partijen wilden vieren. Verder is de oer-Hollandse klokgevel als motief vermengd met motieven uit de Bengaalse beeldtaal.
Een VSM functioneert als een soort dorp, zegt de Nederlandse architect Rob van Houten (
o4Rb
) die eveneens bij het ontwerp betrokken was. De gemeenschappelijke functies zijn georganiseerd rond een centrale as, die zelf als de voornaamste handelsplaats fungeert. Rondom bevinden zich de koel- en bereidingsplaatsen voor voedsel.
De eerste VSM is geopend in het district Khulna, de opening van de tweede (ontworpen door hetzelfde team) is voor dit najaar gepland in Jessore.
Trefwoorden
tjep.
marktplaats
bangladesh
frank tjepkema
Locatie
Best gelezen
1
Luxe appartementengebouw naast klooster Etten-Leur door Studio AAAN klaar
donderdag, 19 maart
2
Houten Stelthuis van Woonpioniers is aardbevings- en klimaatbestendig
woensdag, 18 maart
3
BureauVanEig verbetert uitstraling Haagse rijtjeswoningen bij verduurzaming
dinsdag, 17 maart
4
De nieuwe kleren van de keizer
dinsdag, 17 maart
5
Landschappelijk ontworpen buurt in Vinex-wijk Schuytgraaf voltooid
woensdag, 18 maart
Gerelateerde nieuwsberichten
Sculpturale ventilatietorens voor Spaarndammertunnel
6 november 2018
Lichtinstallatie van Tjep. zwermt langs viaduct
10 oktober 2019
Hekwerk versmelt visueel met 'fietsklont' op Rokin
1 augustus 2018
NL in Milaan 2018: Tjep.
25 april 2018
Video: Mobiele unit ontpopt zich tot woon- of werkruimte
27 oktober 2017
Centre Pompidou verwerft stoel Tjepkema
12 juli 2017
House of Tulips wint internationale prijs
20 mei 2015
Video: Bronze Age by Tjep.
17 oktober 2014
Ornamentele toegang tot de schooltuin
20 februari 2014
Tjep. ontwerpt elegant en intelligent verblijf
28 februari 2013
Tjep. ontwerpt interieur HEMA Beauty
8 november 2012
Lounge 4 op Schiphol heringericht
24 mei 2012
'Hollandse' winkels in vertrekhal Schiphol
28 november 2011
Tjepkema ontwerpt Recession Chair
8 november 2011
Eigen bankje voor reizigers Fyra
11 december 2009
Laatste test voor de drijvende City App geslaagd
21 maart 2016
Defacto neemt deel in Deltaplan Bangladesh
26 november 2013
Sculpturale ventilatietorens voor Spaarndammertunnel
6 november 2018
Lichtinstallatie van Tjep. zwermt langs viaduct
10 oktober 2019
Hekwerk versmelt visueel met 'fietsklont' op Rokin
1 augustus 2018
NL in Milaan 2018: Tjep.
25 april 2018
Video: Mobiele unit ontpopt zich tot woon- of werkruimte
27 oktober 2017
Centre Pompidou verwerft stoel Tjepkema
12 juli 2017
House of Tulips wint internationale prijs
20 mei 2015
Video: Bronze Age by Tjep.
17 oktober 2014
Ornamentele toegang tot de schooltuin
20 februari 2014
Tjep. ontwerpt elegant en intelligent verblijf
28 februari 2013
Tjep. ontwerpt interieur HEMA Beauty
8 november 2012
Lounge 4 op Schiphol heringericht
24 mei 2012
'Hollandse' winkels in vertrekhal Schiphol
28 november 2011
Tjepkema ontwerpt Recession Chair
8 november 2011
Eigen bankje voor reizigers Fyra
11 december 2009
Laatste test voor de drijvende City App geslaagd
21 maart 2016
Defacto neemt deel in Deltaplan Bangladesh
26 november 2013
Toon alles
Andere nieuwsberichten
PSV presenteert plannen voor uitbreiding Philips Stadion
20 maart, 3:37
De Eindhovense club wil de capaciteit van zijn onderkomen opschroeven met maximaal 25.000 bezoekers. Om dit te bewerkstelligen, komt er een nieuwe schil rond het stadion waarin een derde ring is opgenomen.
Rijkswaterstaat staakt renovatie markante houten Krùsrak-brug in Sneek
20 maart, 11:32
Tijdens de renovatie werd duidelijk dat de constructieve veiligheid van de brug niet langer kan worden verzekerd, laat RWS weten. De uit 2008 stammende Krúsrak-brug over de rijksweg 7 is ontworpen door Onix en Archterbosch Architecten.
KAAN Architecten en De Zwarte Hond winnen tender voor Area 19 TU Eindhoven
20 maart, 10:35
De opdracht omvat het ontwerp van een nieuw onderzoeks- en onderwijsgebouw en de stedenbouwkundige ontwikkeling van een nieuw campusgebied.
Projecten gezocht voor vijfde Adriaan Dessingprijs
19 maart, 2:42
De tweejaarlijkse architectuurprijs vestigt de aandacht op bijzondere, gerealiseerde plannen in de Zuid-Hollandse gemeenten Westland en Midden-Delfland. Het kan gaan om nieuwbouw, restauratie of landschappelijke projecten.
Friesland brengt duizenden karakteristieke boerderijen in kaart
20 maart, 2:16
Door alle informatie over de voor het landschap kenmerkende gebouwen op één plek te brengen, moet het makkelijker worden om ze te behouden.
ING: bijna de helft van de huiseigenaren stelt verduurzaming uit
20 maart, 12:18
De meeste mensen vinden dat de overheid te weinig doet om dit te stimuleren.
Rekenkamer kraakt resultaten EU-innovatiefonds voor verduurzaming
20 maart, 9:25
Het Innovatiefonds van de Europese Unie levert veel minder resultaat op dan verwacht op het gebied van verduurzaming en innovatie.
Provincie schrapt beoogde locaties windturbines in Groene Hart
19 maart, 1:35
De provincie had twaalf plekken op het oog, maar dat leidde tot maatschappelijk en politiek verzet.
Staten Utrecht willen netcongestie versneld aanpakken
19 maart, 9:44
De fracties wezen op de noodzaak van het zo snel mogelijk realiseren van een hoogspanningsstation dat essentieel is voor het opsplitsen van het elektriciteitsnetwerk tussen de Flevopolder, Gelderland en Utrecht.
Rotterdam wil woningbouw versnellen met pilot ‘Ontwikkelaar aan Zet’
18 maart, 4:33
De gemeente Rotterdam start een pilot waarbij projectontwikkelaars een grotere rol krijgen bij de voorbereiding van woningbouwprojecten.
Ga naar het nieuws-archief
Ronnie Weessies
Redacteur
0
0
0
0
Voor een optimale gebruikservaring plaatst Architectenweb functionele cookies. Wat de verschillende cookies precies doen leggen we uit in een
overzicht
. Cookies van social media kun je optioneel
aanzetten
.
Akkoord
Instellingen
Annuleren
OK
Sluiten
Doorgaan
Inloggen
Maak een gratis persoonlijk account aan
Feedback
Feedback
Wij horen graag jouw feedback. Laat je reactie achter en eventueel jouw e-mail adres.
Reactie
Verstuur