Projecten
Producten
Bedrijven
Vacatures
Agenda
Awards
Podcasts
more_horiz
Videos
Magazine
Thema's
Favorieten
Profiel
Uitloggen
Abonneer je nu op onze nieuwsbrieven!
Abonneren
Nee, bedankt
Ja, denk met me mee rond de
materialisering van mijn project
Copyright: Ronald Auée
Copyright: Ronald Auée
Copyright: Ronald Auée
Copyright: Ronald Auée
Copyright: Ronald Auée
Copyright: Ronald Auée
Copyright: Ronald Auée
Copyright: Ronald Auée
Copyright: Ronald Auée
Copyright: Ronald Auée
Copyright: Ronald Auée
Tekening: DAT
Tekening: DAT
Brede Maatschappelijke Voorziening in Heerlen opgeleverd
28 juli 2016, 10:08
In Heerlen is een Brede Maatschappelijke Voorziening (BMV) naar ontwerp van
DAT
(De Architectenwerkgroep Tilburg) opgeleverd. Het gebouw is georganiseerd rond verschillende hoven, waarbij een torentje de entree markeert.
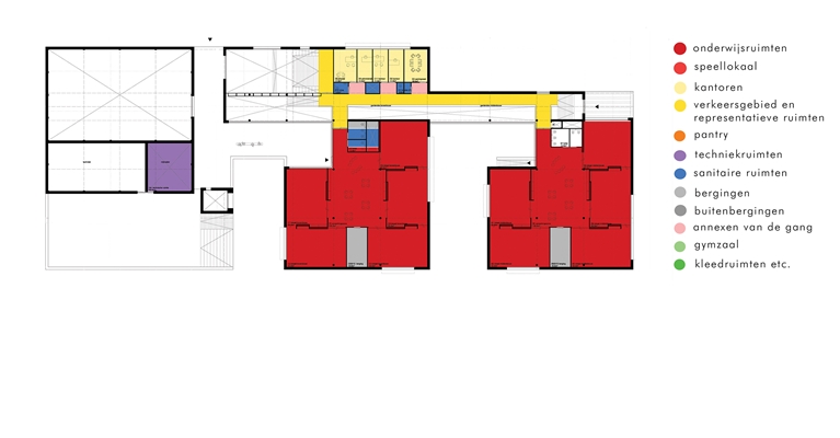
In de herstructurering van de wijk Hoensbroek in Heerlen is een bouwblok gesloopt om plaats te maken voor een nieuw park, het Aldenhofpark. Als onderdeel van de stedelijke herstructuring heeft DAT aan het park een Brede Maatschappelijke Voorziening (BMV) ontworpen. Het gebouw huisvest een kinderopvang, een school, een buitenschoolse opvang, een sporthal (die ook door de buurt te gebruiken is), verschillende wijkfuncties (zoals speelotheek, ontmoetingsruimte en welzijn) en gezondheidszorg (zoals logopedie).
DAT heeft het gebouw opgedeeld in drie clusters, die in oost-west richting door middel van een dubbelhoge binnenstraat met elkaar zijn verbonden. Tussen de clusters bevinden zich op het zuiden twee hoven, zodat het gebouw zich richting het park opent en de bouwmassa voldoende geleed is ten opzichte van de nog te realiseren woningen rond het park. De witte kleur van het gebouw zal straks terugkomen bij die woningen. Op het noorden grenst het gebouw aan een boomgaard, die door de school gebruikt wordt als leertuin.
De entree tot BMV Aldenhof is door DAT gemarkeerd met een torentje. Naast dit torentje bevindt zich een brede buitentrap, die het park verbindt met de hoger gelegen boomgaard. De trap kan ook dienst doen als tribune bij buitenmanifestaties. In dit entreehof komt een klein terras dat direct grenst aan de ontmoetingsruimte voor de buurt in het gebouw.
Leerpleinen
Het kinderdagverblijf, de peuterspeelzaal en de basisschool vormen een doorlopende leerlijn die ook in ruimtelijke zin terugkomt in het gebouw. De onderbouw, middenbouw en bovenbouw zijn met hun lokalen steeds gegroepeerd rond een leerplein. Brede schuifdeuren verbinden de lokalen daarbij met de leerpleinen. Op die manier kan overal individueel, in groepjes of klassikaal lesgegeven worden.
De wil tot onderlinge samenwerking tussen de diverse partners van BMV Aldenhof leidde tot een intensief ontwerpproces, waarbij alle partners hun inbreng hebben gehad. De BMV is, als gebouw en in zijn toekomstige functioneren, meer dan de som der delen, stelt DAT. Zo zullen bijvoorbeeld de mensen die werken binnen de dagbesteding van welzijnsorganisatie Radar een deel van hun tijd werken als ‘host’ in het gebouw.
Flexibiliteit
De duurzaamheid van BMV Aldenhof is gedurende het hele ontwerpproces gemonitord via de GPR-methode en heeft een gemiddelde score van 8,1 behaald. De school voldoet aan de eisen voor Frisse School Klasse B. De bouwstructuur is constructief en installatietechnisch zo uitgevoerd dat toekomstige veranderingen in de plattegrond eenvoudig te realiseren zijn.
Trefwoorden
brede maatschappelijke voorziening
de architectengroep tilburg
heerlen
dat architecten
Locatie
Best gelezen
1
MVSA Architects en Powerhouse Company ontwerpen dubbele woontoren bij Den Haag Centraal
maandag, 30 maart
2
Amsterdam wil hiphopcentrum realiseren in stadsdeel Zuidoost
vrijdag, 27 maart
3
Jan Knikker vertrekt bij MVRDV
maandag, 30 maart
4
Menselijk contact, licht en lucht staan centraal bij appartementencomplex van SO-IL
donderdag, 26 maart
5
Universiteitscampus Spui in centrum Den Haag in gebruik genomen
vrijdag, 27 maart
Gerelateerde nieuwsberichten
Karakteristiek Kindcentrum voor Hoef en Haag
18 mei 2020
DAT wint architectenselectie voor twee schoolgebouwen
1 april 2020
Lodewijk Asscher gaat vernieuwingsprogramma Heerlen-Noord leiden
20 mei 2021
Schunck lanceert Heerlen Rooftop Project
19 juli 2019
Start bouw appartementen Willemspoort Den Bosch
21 augustus 2018
Mecanoo architecten ontwerpt stadskantoor Heerlen
22 maart 2018
Flats maken plaats voor park in Hoensbroek
10 januari 2017
Veel dubbel ruimtegebruik bij MFA Heerde
22 juli 2016
Nieuwe school volgt deels oude gebouwstructuur
15 december 2014
Nieuwe naam De Architecten Werkgroep: DAT
12 april 2010
Karakteristiek Kindcentrum voor Hoef en Haag
18 mei 2020
DAT wint architectenselectie voor twee schoolgebouwen
1 april 2020
Lodewijk Asscher gaat vernieuwingsprogramma Heerlen-Noord leiden
20 mei 2021
Schunck lanceert Heerlen Rooftop Project
19 juli 2019
Start bouw appartementen Willemspoort Den Bosch
21 augustus 2018
Mecanoo architecten ontwerpt stadskantoor Heerlen
22 maart 2018
Flats maken plaats voor park in Hoensbroek
10 januari 2017
Veel dubbel ruimtegebruik bij MFA Heerde
22 juli 2016
Nieuwe school volgt deels oude gebouwstructuur
15 december 2014
Nieuwe naam De Architecten Werkgroep: DAT
12 april 2010
Toon alles
Andere nieuwsberichten
Parkeergebouw met dynamische lamellengevel voor Brussels Airport
1 uur geleden
Bij Brussels Aiport is een nieuw parkeergebouw naar ontwerp van Gortemaker Algra Feenstra architects opgeleverd. In het acht verdiepingen tellende gebouw is plek voor 2.500 auto’s voor luchthavenpersoneel en de autoverhuurbedrijven.
UNS maakt winnend ontwerp voor stations nieuwe metrolijn Turijn
3 uur geleden
Ontwerpvoorstel van UNS voor station nieuwe Turijnse metrolijn accentueert openbaar vervoer in de stad.
Voormalige verffabriek in Overschie omgevormd tot buurt met 125 woningen
Gisteren, 16:29
Op de plek van een voormalige verffabriek aan de Schansweg in Rotterdam worden 125 woningen gerealiseerd. Ook biedt het plan ruimte voor achthonderd tot duizend vierkante meter aan bedrijfsruimte.
Woningbouwproject Nieuw Zuid in Hilversum voltooid
Gisteren, 15:31
Op de plek van het voormalige zorgcomplex Zuiderheide zijn vijf appartementengebouwen voor verschillende doelgroepen gerealiseerd, naar ontwerp van verschillende architectenbureaus.
TNO maakt eerste dakpannen met zonnecellen van perovskiet
2 uur geleden
Perovskiet is niet alleen licht en flexibel, maar ook op veel plekken te winnen.
Amsterdam krijgt dertig meter hoge Self Storage Tower naar ontwerp dedato
Gisteren, 14:42
Minerva Development heeft de onherroepelijke bouwvergunning voor een dertig meter hoge ‘Self Storage Tower’ in het Amsterdamse Westpoortgebied.
Prijzen van nieuwbouwkavels verder gestegen
Gisteren, 12:30
De prijzen van nieuwbouwkavels zijn in het vierde kwartaal met gemiddeld 15,3 procent gestegen vergeleken met een jaar eerder.
Kamer: onderhoud en veiligheid voorop bij keuzes infrastructuur
Gisteren, 09:32
Onderhoud en veiligheid moeten volgens de Tweede Kamer vooropstaan bij pijnlijke keuzes die het kabinet gaat maken over infrastructuur.
Michael Braungart luistert vijftienjarig jubileum Cradle to Cradle Café op
31 maart, 11:27
Op dinsdag 14 april organiseert het Cradle to Cradle Café een speciaal jubileumfestival in Utrecht ter gelegenheid van zijn vijftienjarig bestaan.
PBL: politieke keuzes nodig voor aanpassing klimaatverandering
31 maart, 10:23
Een verstandige keuze is alvast om alles klimaatadaptief aan te pakken, aldus het Planbureau voor de Leefomgeving.
Ga naar het nieuws-archief
0
0
0
0
Voor een optimale gebruikservaring plaatst Architectenweb functionele cookies. Wat de verschillende cookies precies doen leggen we uit in een
overzicht
. Cookies van social media kun je optioneel
aanzetten
.
Akkoord
Instellingen
Annuleren
OK
Sluiten
Doorgaan
Inloggen
Maak een gratis persoonlijk account aan
Feedback
Feedback
Wij horen graag jouw feedback. Laat je reactie achter en eventueel jouw e-mail adres.
Reactie
Verstuur