Projecten
Producten
Bedrijven
Vacatures
Agenda
Awards
Podcasts
more_horiz
Videos
Magazine
Thema's
Favorieten
Profiel
Uitloggen
Abonneer je nu op onze nieuwsbrieven!
Abonneren
Nee, bedankt
Ja, denk met me mee rond de
materialisering van mijn project
Copyright: Vergaderruimte eerste verdieping. Milad Pallesh
Copyright: Vergaderruimte souterrain. Milad Pallesh
Copyright: Bestuurskamer souterrain. Milad Pallesh
Copyright: Woonkamer. Milad Pallesh
Copyright: Kantoorvloer. Milad Pallesh
Copyright: Trap. Milad Pallesh
Copyright: Woonkamer. Milad Pallesh
Copyright: Stalen kozijnen. Milad Pallesh
Copyright: Plattegrond souterrain. Studio Aa
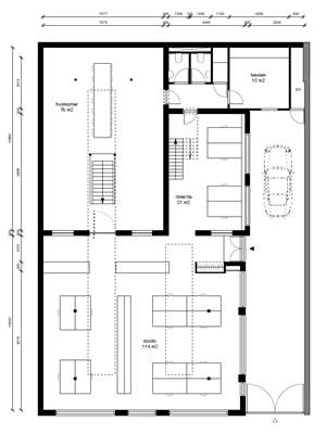
Copyright: Plattegrond Begane grond. Studio Aa
Copyright: Plattegrond eerste verdieping. Studio Aa
Studio Aa realiseert kantoor in ketelhuis
31 augustus 2015, 11:31
Een voormalig ketelhuis in Amsterdam-Zuid is het nieuwe kantoor voor investeringsbedrijf Nedvest.
Studio Aa
heeft, samen met Petra van Roon, het pand met minimale middelen getransformeerd naar een eigentijdse, flexibele, gezonde en duurzame werkomgeving.
Studio Aa heeft in het oude ketelhuis een licht en ruim kantoor gecreëerd, met een stoere inrichting. Slimme oplossingen, hergebruik en vakmanschap lopen als een rode draad door het ontwerp, zo stellen de architecten.
Ruimtelijk
Het gebouw herbergt royale vergaderruimtes en een flexibel te gebruiken ruimte in het souterrain; op de begane grond liggen een grote open werkvloer, directiekamer, huiskamer, keuken en sanitaire voorzieningen. Op de verdieping bevindt zich een intiemere vergaderruimte.
Het interieur kenmerkt zich door een overzichtelijke indeling; strategische zichtlijnen zorgen voor ruimtelijkheid. Tegelijkertijd zorgen terugkerende elementen, zoals de stalen kozijnen en de houten trap, voor eenheid in het interieur. Een trap met stalen leuningen en houten treden verbindt ook letterlijk de verdiepingen met elkaar.
De donkere stalen kozijnen contrasteren met de eiken plankenvloeren, lichtgetinte gietvloeren en lichte wanden. Verspreid door het gebouw staan vier kloeke vergadertafels, met elk een andere afwerking: glas, marmer, staal en hout. Plantenkasten zorgen voor ene groen accent en een dragen bij aan een aangenaam werkklimaat.
Creatief met materialen
Binnen de korte bouwtijd en het strakke budget zochten de architect en stylist Van Roon en aannemer Dimitri Bouw gezamenlijk op de bouwplaats zelf naar slimme oplossingen. In de uitvoering stond vakmanschap centraal.
De ruwe, stalen kozijnen zijn op maat gemaakt door een ambachtelijke smid en een meubelmaker maakte van een boomstam het blad voor een vergadertafel. Slim hergebruik en het ‘Hacking Ikea’-principe (waarbij producten van het Zweedse concern worden aangepast naar persoonlijke wens) leidden tot voordelige oplossingen met een luxe uitstraling voor het overige kantoormeubilair.
Creatief materiaalgebruik is ook terug te vinden in de afwerking. Zo is wanden de uitstraling van beton gegeven door ze te stuken met tegellijm. Studio Aa heeft een solide basis gecreëerd, die Nedvest Capital alle ruimte biedt voor een verdere eigen invulling.
Trefwoorden
amsterdam
kantoor
studio aa
ketelhuis
petra van roon
amsterdam-zuid
transformatie
Best gelezen
1
MVSA Architects en Powerhouse Company ontwerpen dubbele woontoren bij Den Haag Centraal
maandag, 30 maart
2
Schiphol maakt nieuwe 'huisarchitecten' bekend
donderdag, 26 maart
3
Amsterdam wil hiphopcentrum realiseren in stadsdeel Zuidoost
vrijdag, 27 maart
4
Jan Knikker vertrekt bij MVRDV
maandag, 30 maart
5
Menselijk contact, licht en lucht staan centraal bij appartementencomplex van SO-IL
donderdag, 26 maart
Gerelateerde nieuwsberichten
JHK transformeert GGD-complex Zwolle
11 mei 2015
Frisokazerne verbouwd tot cultureel centrum
19 januari 2015
Particulieren transformeren Leidse fabriek
9 januari 2015
Pastorij getransformeerd tot Ontmoetingscentrum
22 december 2014
Ontleedkundig laboratorium wordt hotel
10 december 2014
JHK transformeert GGD-complex Zwolle
11 mei 2015
Frisokazerne verbouwd tot cultureel centrum
19 januari 2015
Particulieren transformeren Leidse fabriek
9 januari 2015
Pastorij getransformeerd tot Ontmoetingscentrum
22 december 2014
Ontleedkundig laboratorium wordt hotel
10 december 2014
Toon alles
Andere nieuwsberichten
Voormalige verffabriek in Overschie omgevormd tot buurt met 125 woningen
1 uur geleden
Op de plek van een voormalige verffabriek aan de Schansweg in Rotterdam worden 125 woningen gerealiseerd. Ook biedt het plan ruimte voor achthonderd tot duizend vierkante meter aan bedrijfsruimte.
Woningbouwproject Nieuw Zuid in Hilversum voltooid
2 uur geleden
Op de plek van het voormalige zorgcomplex Zuiderheide zijn vijf appartementengebouwen voor verschillende doelgroepen gerealiseerd, naar ontwerp van verschillende architectenbureaus.
BURA publiceert resultaten ontwerpend onderzoek Marineterrein Amsterdam
4 uur geleden
Onder de titel Postgroei Marineterrein deed BURA onderzoek naar de contouren van een proeftuin voor sociaal-economische innovatie.
'Materialenwerf' in M4H vormt festivalhart Rotterdam Architectuur Maand
31 maart, 2:05
Op 3 juni opent het flexibel opgezette bouwwerk in M4H, waar gebruikte bouwmaterialen worden verzameld, bewerkt en opnieuw ingezet. Gedurende de hele maand juni wordt er getest hoe een circulaire stad eruit kan zien, meldt AIR Rotterdam.
Amsterdam krijgt dertig meter hoge Self Storage Tower naar ontwerp dedato
3 uur geleden
Minerva Development heeft de onherroepelijke bouwvergunning voor een dertig meter hoge ‘Self Storage Tower’ in het Amsterdamse Westpoortgebied.
Prijzen van nieuwbouwkavels verder gestegen
Vandaag, 12:30
De prijzen van nieuwbouwkavels zijn in het vierde kwartaal met gemiddeld 15,3 procent gestegen vergeleken met een jaar eerder.
Kamer: onderhoud en veiligheid voorop bij keuzes infrastructuur
Vandaag, 09:32
Onderhoud en veiligheid moeten volgens de Tweede Kamer vooropstaan bij pijnlijke keuzes die het kabinet gaat maken over infrastructuur.
Michael Braungart luistert vijftienjarig jubileum Cradle to Cradle Café op
31 maart, 11:27
Op dinsdag 14 april organiseert het Cradle to Cradle Café een speciaal jubileumfestival in Utrecht ter gelegenheid van zijn vijftienjarig bestaan.
PBL: politieke keuzes nodig voor aanpassing klimaatverandering
31 maart, 10:23
Een verstandige keuze is alvast om alles klimaatadaptief aan te pakken, aldus het Planbureau voor de Leefomgeving.
OM vervolgt oud-werknemers Strukton na Saudische omkopingskwestie
30 maart, 4:52
Eerder werd al bekend dat het bouwbedrijf voor tien miljoen euro heeft geschikt in de corruptiezaak.
Ga naar het nieuws-archief
0
0
0
0
Voor een optimale gebruikservaring plaatst Architectenweb functionele cookies. Wat de verschillende cookies precies doen leggen we uit in een
overzicht
. Cookies van social media kun je optioneel
aanzetten
.
Akkoord
Instellingen
Annuleren
OK
Sluiten
Doorgaan
Inloggen
Maak een gratis persoonlijk account aan
Feedback
Feedback
Wij horen graag jouw feedback. Laat je reactie achter en eventueel jouw e-mail adres.
Reactie
Verstuur