Projecten
Producten
Bedrijven
Vacatures
Agenda
Awards
Podcasts
more_horiz
Videos
Magazine
Thema's
Favorieten
Profiel
Uitloggen
Copyright: Totaal Ons Tivoli. NOHNIK
Copyright: Koffiebranderij. NOHNIK
Copyright: Badhuis. NOHNIK
Copyright: Badhuis. NOHNIK
Copyright: Foodlab. NOHNIK
Copyright: Vintage shop. NOHNIK
Copyright: Loft. NOHNIK
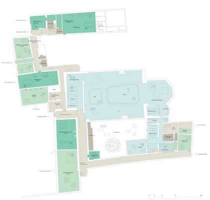
Copyright: Plattegrond. NOHNIK
NOHNIK wint ideeënprijsvraag Tivoli
15 september 2014, 14:46
Het team
NOHNIK
(Wieteke Nijkrake en Jorrit Noordhuizen) heeft de ideeënprijsvraag voor de herbestemming van Tivoli Oude Gracht in Utrecht gewonnen. In het plan wordt het voormalige poppodium een multifunctionele broedplaats voor ondernemerschap.
In het plan van NOHNIK vervult het pand aan de Oude Gracht in Utrecht een "brandpuntfunctie voor de binnenstad". Het voorstel van Nijkrake en Noordhuizen geeft ondernemerschap en initiatieven van Utrechters een grote rol. Het plan maakt gebruik van de veelzijdigheid van het monumentale Tivoli-complex.
Het pand bestaat uit meerdere gebouwdelen, waarvan de popzaal Tivoli er een was. NOHNIK wil nadrukkelijk niet slechts één functie aan het pand opleggen, maar per gebouwdeel wordt bekeken welke functies passend zijn. Zo ontstaat, in de woorden van NOHNIK, "een stad binnen een stad - met een straat, diverse gebouwen en verschillende bewoners, gebruikers en bezoekers".
Lifestyle 2014
Het concept, dat de bedenkers samenvatten als Lifestyle anno 2014, sluit aan op diverse trends in de samenleving waarbij de consument structureel meer oog heeft voor het verbeteren van eigen welzijn en eerlijke en duurzame producten. Rondom dit thema zijn op de begane grond van het complex functies als een badhuis (in de voormalige popzaal), foodlab (in de regentenzaal), koffiebranderij (in het pandhuis) en een vintageshop ondergebracht.
De verschillende functies moeten een divers publiek lokken. Het badhuis, dat refereert aan de vroegere stedelijke badhuizen, vormt de grootste publiekstrekker. Op de bovenste verdiepingen zijn bijzondere appartementen en lofts ontworpen. Door duurzaam te ontwikkelen met diverse functies die elkaar versterken, wil NOHNIK het risico van een monofunctionele invulling voorkomen: dat op termijn dezelfde herbestemmingsopgave zich voordoet.
Ons Tivoli
Door meerdere initiatieven te stimuleren en mensen te laten participeren in de herontwikkeling behoudt Tivoli niet alleen zijn historische en culturele waarde, maar geeft het ook een economische en maatschappelijke meerwaarde aan de stad. Verder wil het winnende team het complex - dat het aanduidt als Ons Tivoli - energieneutraal maken.
Het plan van NOHNIK is financieel doorgerekend en getoetst op haalbaarheid. Er zijn meerdere geïnteresseerde ondernemers en een ontwikkelaar aangetrokken waarmee het plan kan worden uitgewerkt. Voor de diverse functies hebben Nijkrake en Noordhuizen concrete gegadigden gevonden. De jury is unaniem enthousiast "met name door de gekozen functies, de flexibiliteit in functies en gefaseerde ontwikkeling en door het zoeken naar draagvlak bij andere partijen."
De vereniging Oud Utrecht schreef in maart van dit jaar een ideeënprijsvraag uit, nadat popzaal Tivoli verhuisde naar het nieuwe TivoliVredenburg en het pand leeg kwam te staan. Het team NOHNIK maakte het winnende plan voor de herbestemming in samenwerking met adviseurs Stadkwadraat, DGMR Raadgevende Ingenieurs, HERMON Erfgoed, J. Krakers en J. van Aaken.
Trefwoorden
nohnik
tivoli
utrecht
multifunctioneel complex
multifunctioneel gebouw
transformatie
herbestemming
ideeënprijsvraag
Best gelezen
1
Amsterdam schrijft internationale architectenprijsvraag uit voor Nationaal Slavernijmuseum
donderdag, 12 februari
2
Ontsluitingen spelen centrale rol binnen woonblok Hibi in Amstelkwartier
woensdag, 11 februari
3
Singelbloktoren Amsterdam-Noord biedt ook bewoners tussenwoningen overhoeks zicht
maandag, 16 februari
4
Groninger Museum belicht cultuurgeschiedenis karakteristieke Groningse baksteen
woensdag, 11 februari
5
Meerdaags evenement over bouwen met aarde aangekondigd
donderdag, 12 februari
Gerelateerde nieuwsberichten
Vocus Architecten heeft ruimtelijke structuur oud Tivolicomplex weer zichtbaar gemaakt
2 oktober 2025
Concept PanoramaPark is winnaar van de prijsvraag Tweede Groene Ring Leiden
23 april 2025
Geluidslek TivoliVredenburg opgelost
2 juli 2015
Plan voor herontwikkeling Utrechtse Neudeflat
16 juli 2014
Muziekgebouw TivoliVredenburg opgeleverd
11 december 2013
Ideeënprijsvraag voor herbestemming Tivoli-complex
6 maart 2014
Opknappen Utrechts erfgoed kost 220 miljoen
9 december 2014
De Zwanenhof bouwt energieneutraal zorghotel
12 juli 2016
NOHNIK maakt visie voor Unesco-gebied IJsland
2 februari 2017
Leids poppodium Gebr. De Nobel geopend
4 december 2014
NOHNIK ontwerpt uitkijktoren vliegbasis Twente
6 december 2016
Vechtclub XL opent officieel de deuren
16 september 2014
Oud Tivolipand krijgt cultuur- en horecabestemming
24 oktober 2018
NOHNIK gaat verder als Polyfern landscape architects
16 maart 2023
Vocus Architecten heeft ruimtelijke structuur oud Tivolicomplex weer zichtbaar gemaakt
2 oktober 2025
Concept PanoramaPark is winnaar van de prijsvraag Tweede Groene Ring Leiden
23 april 2025
Geluidslek TivoliVredenburg opgelost
2 juli 2015
Plan voor herontwikkeling Utrechtse Neudeflat
16 juli 2014
Muziekgebouw TivoliVredenburg opgeleverd
11 december 2013
Ideeënprijsvraag voor herbestemming Tivoli-complex
6 maart 2014
Opknappen Utrechts erfgoed kost 220 miljoen
9 december 2014
De Zwanenhof bouwt energieneutraal zorghotel
12 juli 2016
NOHNIK maakt visie voor Unesco-gebied IJsland
2 februari 2017
Leids poppodium Gebr. De Nobel geopend
4 december 2014
NOHNIK ontwerpt uitkijktoren vliegbasis Twente
6 december 2016
Vechtclub XL opent officieel de deuren
16 september 2014
Oud Tivolipand krijgt cultuur- en horecabestemming
24 oktober 2018
NOHNIK gaat verder als Polyfern landscape architects
16 maart 2023
Toon alles
Andere nieuwsberichten
Vincent Bijlo en Berlage Saxophone Quartet brengen iconisch ontwerp van Berlage tot leven
Vandaag, 15:50
In de nieuwe voorstelling ‘Het Visioen van Berlage’ van cabaretier en schrijver Vincent Bijlo en het Berlage Saxophone Quartet speelt het iconische ontwerp Pantheon der Menschheid (1915) van architect Berlage een centrale rol.
Boek belicht vijftien succesvolle wooncoöperaties
Vandaag, 13:07
Aan bod komen de organisatie, architectuur, rechtsvormen, financiering en het dagelijks leven van bewoners.
Amsterdamse jongeren tonen ontwerpen voor nieuwbouw theater De Meervaart
Vandaag, 11:13
Onlangs is de architectenprijsvraag voor de nieuwbouw van theater De Meervaart in de Sloterplas in Amsterdam gestart. Ook jongeren uit de omgeving hebben zich gebogen over het ontwerp voor het nieuwe gebouw.
Gerestaureerd Tramhuis op Eendrachtsplein fungeert nu als kiosk voor stadswandelingen
Gisteren, 16:36
Bureau Polderman en Studio Robert van Oosterom hebben het monumentale gebouwtje in Rotterdam op basis van een foto 1931 gerestaureerd.
Nederland en Vlaanderen maken afspraken over stikstofuitstoot
Vandaag, 14:51
Overheden in de grensregio moeten als ze een vergunning geven voor zaken als woningbouw ook kijken naar de mogelijke gevolgen die de uitstoot heeft voor beschermde natuurgebieden aan de andere kant van de grens.
Blaricum lost Laren af als gemeente met duurste woningen
Vandaag, 10:39
Het verschil tussen de duurste en goedkoopste koophuizen is in 2025 groter geworden.
Noord-Hollands dorp Opmeer wil eerste mini-kernreactor huisvesten
Gisteren, 13:34
Opmeer heeft in het Nederlandse bedrijf Allseas een mogelijke bouwer van een Small Modular Reactor gevonden.
India wil grote datastad ontwikkelen vanwege opmars AI
Gisteren, 09:37
De datastad moet volgens minister Nara Lokesh een straal van 100 kilometer krijgen.
Heijmans voorziet voorlopig nog hinder door stikstofcrisis
13 februari, 5:28
Bouwbedrijf Heijmans heeft last van de stikstofcrisis en lange vergunningprocedures bij het bouwen van nieuwe woningen.
KB nationale bibliotheek eind 2028 naar tijdelijk onderkomen
13 februari, 1:13
r komt een vernieuwd publieksgebouw op de huidige locatie, dat in 2033 klaar moet zijn.
Ga naar het nieuws-archief
0
0
0
0
Voor een optimale gebruikservaring plaatst Architectenweb functionele cookies. Wat de verschillende cookies precies doen leggen we uit in een
overzicht
. Cookies van social media kun je optioneel
aanzetten
.
Akkoord
Instellingen
Annuleren
OK
Sluiten
Doorgaan
Inloggen
Maak een gratis persoonlijk account aan
Feedback
Feedback
Wij horen graag jouw feedback. Laat je reactie achter en eventueel jouw e-mail adres.
Reactie
Verstuur