Projecten
Producten
Bedrijven
Vacatures
Agenda
Awards
Podcasts
more_horiz
Videos
Magazine
Favorieten
Profiel
Uitloggen
Abonneer je nu op onze nieuwsbrieven!
Abonneren
Nee, bedankt
Ja, denk met me mee rond de
materialisering van mijn project
Copyright: Impressie van de wijk. Buro Lubbers
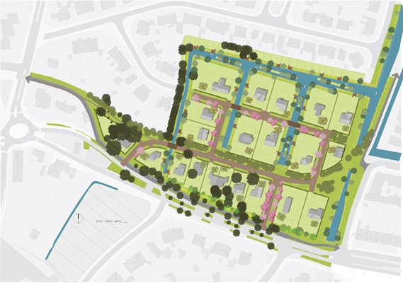
Copyright: Ruimtelijke structuur Haringbuys. Buro Lubbers
Copyright: Buro Lubbers
Eerste paal voor villawijk in Aerdenhout
20 maart 2014, 13:06
In Aerdenhout is begin deze week gestart met het bouwrijp maken van Haringbuys. Het ruimtelijk ontwerp voor de villawijk is gemaakt door
Buro Lubbers
.
De villawijk Haringbuys wordt gerealiseerd in Aerdenhout (gemeente Bloemendaal), op de grens met Heemstede. Hier bevinden zich de gronden van het voormalige tuinbouwbedrijf Van Empelen en van Dijk, die de gemeente in 2007 heeft gekocht. Het huidige college van Bloemendaal heeft zich vanaf haar aantreden in 2008 ingezet voor de ontwikkeling van dit gebied, circa twee hectare groot.
Waterrijk en bosrijk
De wijk in wording ligt op lage natte gronden. Daarom krijgt het een andere ruimtelijke karakteristiek dan de andere villawijken in de omgeving, zo geeft Buro Lubbers aan. Met een ruimtelijke structuur uit rechte lijnen sluit het architectenbureau aan op het bestaande patroon van sloten.
Het aanwezige water zorgt voor een “herkenbaar milieu met gebiedseigen beplanting, natuurlijke oevers en houten bruggetjes”. Ook een oude trambaan door het gebied wordt gebruikt in het ontwerp, als een vanzelfsprekende zonering in een waterrijk en een bosrijker woonomgeving.
Participatie
De gemeente beschouwt het project als een voorbeeld van geslaagde bewonersparticipatie. Haringbuys is een project onder particulier opdrachtgeverschap. Rond de ontwikkeling van het gebied heeft de gemeente Bloemendaal vanaf het begin intensief overleg gehad met een klankbordgroep van omwonenden en met potentiële kopers.
Doordat deze groepen actief zijn actief betrokken bij het ontwerp van het stedenbouwkundig en beeldkwaliteitplan, zijn hun wensen en behoeften zoveel mogelijk in het plan verwerkt. Zo is met de klankbordgroep van omwonenden overeen gekomen dat het gebied minimaal zou worden bebouwd.
Van de 25 bouwkavels zijn er inmiddels 23 verkocht. De eerste paal voor de villakavels werd afgelopen maandag symbolisch geslagen door onder meer de Bloemendaalse wethouder Ruimtelijke Ordening Tames Kokke en Rijksbouwmeester Frits van Dongen.
Trefwoorden
bloemendaal
bewonersparticipatie
bouwkavel
aerdenhout
buro lubbers
particulier opdrachtgeverschap
haringbuys
villawijk
Best gelezen
1
Architect Cees Dam op 93-jarige leeftijd overleden
dinsdag, 14 april
2
Powerhouse Company wint aanbesteding voor verbouwing Vista College Maastricht
dinsdag, 14 april
3
Tien bureaus geselecteerd voor tweede ronde nieuwbouw De Meervaart
woensdag, 15 april
4
Voormalig hoofdkantoor Ferro in M4H verbouwd tot bedrijfsverzamelgebouw
woensdag, 15 april
5
Anterieure overeenkomst voor bouw woontoren The Four in Eindhoven
donderdag, 16 april
Gerelateerde nieuwsberichten
Plan voor vergroening bedrijventerrein Den Bosch
6 maart 2015
Buro Lubbers wint Open Oproep Rozemaai
30 juli 2014
Team diederendirrix ontwerpt raadhuis Krimpen
14 oktober 2013
Buro Lubbers maakt doorstart
10 september 2013
Buro Lubbers realiseert daktuinen Strijp-S
26 juni 2013
Plan voor vergroening bedrijventerrein Den Bosch
6 maart 2015
Buro Lubbers wint Open Oproep Rozemaai
30 juli 2014
Team diederendirrix ontwerpt raadhuis Krimpen
14 oktober 2013
Buro Lubbers maakt doorstart
10 september 2013
Buro Lubbers realiseert daktuinen Strijp-S
26 juni 2013
Toon alles
Andere nieuwsberichten
LEVS publiceert duurzaamheidsanalyse eigen projecten
26 minuten geleden
Met de Rapportage Duurzaamheid 2021–2025 heeft het bureau 43 projecten uit de afgelopen vijf jaar getoetst aan de Paris Proof normen.
Nominaties Rotterdam Architectuurprijs 2026 bekend
Vandaag, 09:00
Zowel de jury als het publiek heeft de keuze uit tien projecten, die zijn geselecteerd uit 36 inzendingen. De winnaars worden op 12 juni bekendgemaakt in het Nhow Hotel in Rotterdam.
Wie verdient dit jaar de prijs voor Architect van het Jaar?
Vandaag, 09:00
Welke architect, of collectief van architecten, heeft dit jaar de grootste bijdrage geleverd aan de ontwikkeling van de architectuur in Nederland? Stuur jouw suggestie, met een beknopte motivatie, uiterlijk 15 mei 2026 op naar Architectenweb.
OMA gebruikt bestaand gebouw als canvas bij renovatie Edo-Tokyo Museum
17 april, 3:55
Na een renovatie van bijna vier jaar is het Edo-Tokyo Museum in de Japanse hoofdstad Tokio heropend. OMA nam het uit 1993 stammende gebouw, dat is ontworpen door de Metabolist Kiyonori Kikutake, onder handen.
Minister wil Lelystad Airport openen in oktober 2027
2 uur geleden
Het vliegveld heeft nog geen natuurvergunning, maar Vincent Karremans werkt ‘parallel’ aan de andere zaken die nog moeten worden geregeld voordat vakantievluchten vanuit Flevoland kunnen beginnen.
Boekholt wil minder strenge huurwet, hogere huren mogelijk
4 uur geleden
Verhuurders moeten meer kunnen vragen voor dure huurhuizen, nieuwbouw en huizen zonder tuin of balkon.
Woningbouwzaken krijgen langer voorrang bij Raad van State
17 april, 4:49
Om het huizentekort tegen te gaan, blijft de Raad van State woningbouwzaken met voorrang behandelen.
Inspectie positief over verbetering sociale veiligheid TU Delft
17 april, 11:36
De TU Delft heeft aanzienlijke stappen gezet om de sociale veiligheid voor medewerkers te verbeteren.
NVM vreest minder nieuwbouw door veranderende voorrang stroomnet
17 april, 9:23
Bouwers kunnen, door onzekerheid over welke projecten straks nog maatschappelijke prioriteit krijgen in een bepaalde regio, besluiten om minder nieuwe huizen te bouwen.
Architecten voor restauratie en herbestemming Rivièrahal gekozen
16 april, 12:00
Voor de grootscheepse restauratie en herbestemming van de Rivièrahal in de Rotterdamse Diergaarde Blijdorp zijn Mecanoo en BiermanHenket geselecteerd.
Ga naar het nieuws-archief
0
0
0
0
Voor een optimale gebruikservaring plaatst Architectenweb functionele cookies. Wat de verschillende cookies precies doen leggen we uit in een
overzicht
. Cookies van social media kun je optioneel
aanzetten
.
Akkoord
Instellingen
Annuleren
OK
Sluiten
Doorgaan
Inloggen
Maak een gratis persoonlijk account aan
Feedback
Feedback
Wij horen graag jouw feedback. Laat je reactie achter en eventueel jouw e-mail adres.
Reactie
Verstuur