Projecten
Producten
Bedrijven
Vacatures
Agenda
Awards
Podcasts
more_horiz
Videos
Magazine
Thema's
Favorieten
Profiel
Uitloggen
Copyright: grafie Ronald Tilleman
Copyright: grafie Ronald Tilleman
Copyright: grafie Ronald Tilleman
Copyright: grafie Ronald Tilleman
Copyright: grafie Ronald Tilleman
Copyright: grafie Ronald Tilleman
Copyright: VenhoevenCS
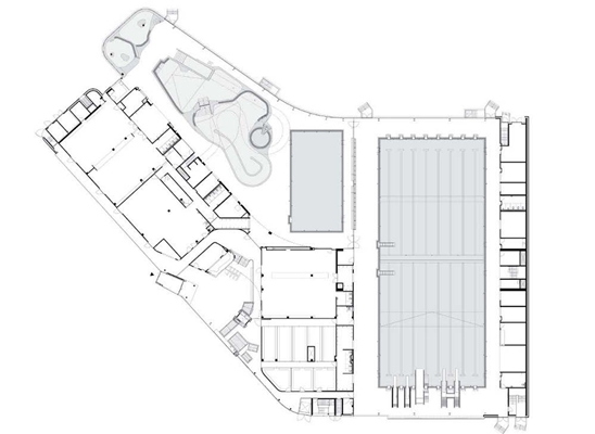
Nieuwe zwemaccommodatie voor Den Haag
12 oktober 2012, 14:15
Vrijdag is officieel het Hofbad in Den Haag geopend. De door
VenhoevenCS
ontworpen multifunctionele zwemaccommodatie in Ypenburg is bestemd voor recreatie en wedstrijden tot op internationaal niveau. Het ontwerp is er op gericht om de verschillende manieren van gebruik op een vanzelfsprekende manier aantrekkelijk te maken.
“Onder de geschubde huid van het gebouw bevindt zich een lichte, bijna organische binnenwereld, een subtiele verwijzing naar het fysieke karakter van de activiteiten die hier plaatsvinden”, zegt VenhoevenCS. “Deze organische aanzet vormt de leidraad voor het ontwerp van alle ruimtelijke elementen in het interieur.”
“Zo is de constructieve hoofdopzet van het zwembad met hoofdliggers en dwarsspanten uitgewerkt als een soort borstkas of - letterlijker - een ruggengraat met ribben.”
Het Hofbad beschikt over verschillende recreatieve baden, een instructiebad en het eerste vijftigmeterbad van Den Haag. Het complex is volledig ingericht voor trainingen en zwem-, waterpolo- en schoonspringwedstrijden. Het bad heeft vier springplanken, een duiktoren en een tribune die plaats biedt aan vijfhonderd toeschouwers.
Dankzij hoogwaardige isolatie, energieopwekking op het dak en duurzame installaties is het gebouw tevens energie-efficiënt. Het Hofbad zal uiteindelijk een ensemble vormen met een later te bouwen woontoren. Vanaf aanstaande maandag is het complex open voor het publiek.
Trefwoorden
ypenburg
den haag
zwembad
venhoevencs
Best gelezen
1
Woongebouwen door VdpArchitecten vormen nieuwe 'voorkant' Groningse Oosterparkwijk
vrijdag, 17 oktober
2
Gedetailleerde 3D-geprinte maquette toont ruimtelijke ontwikkeling Amsterdam
vrijdag, 17 oktober
3
Buikslotermeerplein in Amsterdam-Noord krijgt zeventig meter hoge woontoren
woensdag, 22 oktober
4
Nieuw woongebouw op plek befaamde elektronicazaak Rotterdam-Noord
maandag, 20 oktober
5
De Louise van De Zwarte Hond combineert sociale woningbouw met kwaliteit en duurzaamheid
maandag, 20 oktober
Gerelateerde nieuwsberichten
Brede school Villa Vonk in Hoogvliet geopend
5 november 2012
Modernisering sportcomplex Alkmaar gestart
28 april 2014
VenhoevenCS ontwerpt zwembad Kampen
23 september 2013
Nieuw topsportcomplex voor Amersfoort
12 september 2014
Sportcomplex is nieuw hart in Tilburgse wijk
23 december 2013
Schuine gevel beperkt geluidsoverlast
17 april 2013
Bouwstart ‘Het Gebouw’ VenhoevenCS
9 december 2010
Bouw zwembad Ypenburg van start
3 maart 2010
Park en sporthal De Warande geopend
3 oktober 2012
VenhoevenCS/OKRA ontwerpen Vlaams park
24 februari 2011
Team OKRA ontwerpt waterpark in Cork
26 juni 2012
Ontwerp theater Middelburg gepresenteerd
17 oktober 2011
VenhoevenCS maakt masterplan Expo Luik
15 juni 2011
VenhoevenCS presenteert zwembad Mechelen
5 februari 2010
VenhoevenCS ontwerpt nieuw station Alkmaar
19 december 2013
OZ wint ontwerpwedstrijd Haagse Hofbadtoren
28 september 2018
Brede school Villa Vonk in Hoogvliet geopend
5 november 2012
Modernisering sportcomplex Alkmaar gestart
28 april 2014
VenhoevenCS ontwerpt zwembad Kampen
23 september 2013
Nieuw topsportcomplex voor Amersfoort
12 september 2014
Sportcomplex is nieuw hart in Tilburgse wijk
23 december 2013
Schuine gevel beperkt geluidsoverlast
17 april 2013
Bouwstart ‘Het Gebouw’ VenhoevenCS
9 december 2010
Bouw zwembad Ypenburg van start
3 maart 2010
Park en sporthal De Warande geopend
3 oktober 2012
VenhoevenCS/OKRA ontwerpen Vlaams park
24 februari 2011
Team OKRA ontwerpt waterpark in Cork
26 juni 2012
Ontwerp theater Middelburg gepresenteerd
17 oktober 2011
VenhoevenCS maakt masterplan Expo Luik
15 juni 2011
VenhoevenCS presenteert zwembad Mechelen
5 februari 2010
VenhoevenCS ontwerpt nieuw station Alkmaar
19 december 2013
OZ wint ontwerpwedstrijd Haagse Hofbadtoren
28 september 2018
Toon alles
Andere nieuwsberichten
Schimmelstraat Amsterdam loopt niet langer dood dankzij woongebouw voor 55-plussers
Vandaag, 16:36
Aan de Tweede Kostverlorenkade in Amsterdam-West is deze zomer een appartementengebouw voor 55-plussers opgeleverd. Het gebouw met 38 sociale huurwoningen is in opdracht van Rochdale ontworpen door INBO.
Vormingsjaren van het Nieuwe Bouwen centraal in boek
Vandaag, 15:30
Bij uitgeverij Wbooks is een boek verschenen over wat je de vormingsjaren van Het Nieuwe Bouwen kunt noemen. Centraal staat de periode 1910-1940, toen architecen als J.J.P. Oud en jan Duiker op zoek gingen naar een nieuwe architectuur.
Suikerbrug in Veurne voert gebruikers over hellingbanen langs werelderfgoed
Vandaag, 11:56
In het West-Vlaamse Veurne is onlangs de door ZJA Architects & Engineers ontworpen Suikerbrug geopend. De gebruikers fietsen of wandelen er over het kanaal door tussen de boomtoppen en langs Unesco Werelderfgoed.
Buikslotermeerplein in Amsterdam-Noord krijgt zeventig meter hoge woontoren
Vandaag, 10:57
VORM, VMX Architects en Arup hebben een tender gewonnen voor een zeventig hoge woontoren aan het Buikslotermeerplein in Amsterdam-Noord. Hartje Noord bestaat uit 114 woningen van elk zestig vierkante meter, met flexibele plattegronden.
Provincies zetten in op natuurherstel tegen stikstofimpasse
Vandaag, 13:27
In 2030 moet zeventig procent van die natuurgebieden op orde zijn, vijf jaar later moet dat voor negentig procent gelden.
Renovatie Prinsenhof Delft kost negen miljoen meer dan eerder begroot
Vandaag, 09:33
Dat komt onder meer doordat bouwmaterialen en energie duurder zijn geworden en door ‘schaarste aan gespecialiseerd vakmanschap’, meldt de gemeente.
Oproep aan nieuw kabinet: maak topprioriteit van schoon water
Gisteren, 12:26
De Unie van Waterschappen vindt dat het volgende kabinet hiervoor moet zorgen om de Europese doelen voor schoon en gezond water te halen.
Zuid-Holland draagt elf locaties Groene Hart aan voor windturbines
Gisteren, 10:45
Uit een verkennend onderzoek bleek al dat in het open polderlandschap ruimte is voor maximaal 67 turbines van 240 meter.
Advocaten waarschuwen voor beperken bezwaar bij bouw
20 oktober, 11:54
Het inperken van de mogelijkheden om in bezwaar te gaan tegen bouwplannen is een risico voor de rechtsstaat, stelt de Nederlandse orde van advocaten.
Controle na asbestsanering schiet in derde van gevallen tekort
20 oktober, 9:31
Daardoor worden gebouwen schoon verklaard terwijl er nog asbestresten aanwezig zijn, waarschuwt de Arbeidsinspectie.
Ga naar het nieuws-archief
0
0
0
0
Voor een optimale gebruikservaring plaatst Architectenweb functionele cookies. Wat de verschillende cookies precies doen leggen we uit in een
overzicht
. Cookies van social media kun je optioneel
aanzetten
.
Akkoord
Instellingen
Annuleren
OK
Sluiten
Doorgaan
Inloggen
Maak een gratis persoonlijk account aan
Feedback
Feedback
Wij horen graag jouw feedback. Laat je reactie achter en eventueel jouw e-mail adres.
Reactie
Verstuur