Abonneer je nu op onze nieuwsbrieven!
Abonneren
Nee, bedankt
Ja, denk met me mee rond de
materialisering van mijn project
Producten
ProducttagsAANUIT

Kantoor Weena

18 april 2008
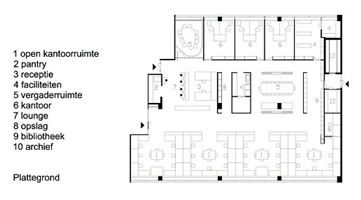
Tijdens de wederopbouwperiode is in Rotterdam veel en snel gebouwd. In het centrum zijn vooral kantoren gebouwd. Dit gebeurde volgens de toen geldende normen. Nu, een halve eeuw later, gelden andere eisen en zijn deze oude kantoren hard aan modernisering toe. Amer Alhassan van AAArchitects toont met het hier beschreven project aan hoe een bestaand kantoorgebouw met behoud van het casco tot een prettige werkomgeving kan worden getransformeerd, die aan alle hedendaagse eisen op het gebied van techniek en kantoorinrichting voldoet. Alhassans ontwerp gaat echter boven een simpele renovatie uit: de rationele opbouw, waarbij comfort een grote rol speelt, zou evengoed toepasbaar kunnen zijn in een nieuwbouwkantoor. Drie zones Sturend principe bij het ontwerp is een drievoudige opdeling die rekening houdt met de verschillende activiteiten in een kantoor en de routing tussen de verschillende ruimtes.

In de eerste werkzone, de meest besloten zone, zijn de medewerkers ondergebracht die rust en/of privacy nodig hebben om hun taken te verrichten. Denk hierbij aan financiële zaken, personeelszaken en bedrijfsleiding. Ook een kleine en besloten vergaderzaal is hier ondergebracht.

De tweede werkzone is de plek waar de core-business wordt gedaan: clusters van per stuk zes werkplekken, die projectgroepen herbergen. Binnen een cluster bestaat een gevoel van intimiteit. Toch overziet men in een oogopslag de gehele zone.

De kern van het kantoor is een reeks van representatieve openbare ruimtes. Hier worden de gasten ontvangen aan de receptie en hier is tevens een grote vergaderzaal, die ook geschikt is als presentatieruimte en eetzaal. Ten behoeve van de snelle routing tussen de beide werkzones, wordt de kern veelvuldig doorsneden. Aangezien de vergaderzaal niet altijd gebruikt wordt, is deze door middel van grote schuifdeuren te openen, zodat de zaal onderdeel wordt van de verkeersruimte. Verder huisvest de kern een aantal collectieve voorzieningen als pantry, archieven en een bibliotheek.

In de materialisatie zijn de drie zones duidelijk te onderscheiden; tegelijkertijd geeft het hele kantoor een gevoel van eenheid en rust. De verschillende functies hebben ieder hun plek en conflicteren niet. Plattegrond Het concept voor de plattegrond is geïnspireerd op A-POC, een ontwerpmethodiek van de Japanse modeontwerper Issey Miyake. Op basis van een in serie geproduceerde, generieke stof, ontstaan door het bijknippen talloze unieke kledingstukken. Zo is ook het principe van dit kantoor heel simpel, door het doen van kleine ingrepen is het te veranderen voor specifieke eisen. Een advocatenkantoor, een handelskantoor, een architectenbureau; alles is mogelijk.

De flexibiliteit van de kern geeft het gehele kantoor de mogelijkheid zich aan te passen aan verschillende programma's. De lengte van de kern wordt bepaald door een optelling van het noodzakelijke programma en de verbindingen tussen de beide werkzones. Indien de dwarsverbindingen maximaal gebruikt worden, wordt de route rondom de kern minimaal belast, en kan een deel van deze gangruimte gebruikt worden voor aanvullend tijdelijk programma (buffet, expositie, presentatie, etc.). Wanneer de dwarsverbindingen niet gebruikt worden, vervalt de mogelijkheid van het tijdelijk programma in de rondgang. Aan de hand van een studie naar de mogelijke looproutes zijn de maximaal en minimaal benodigde breedtes van de rondgang bepaald. Op deze wijze kunnen ruimten en looproutes zo efficiënt mogelijk benut worden door gebruik te maken van de factor tijd waarin de kern flexibel gebruikt kan worden voor standaard en tijdelijke programma's.

Materiaal, kleur, licht en akoestiek De opdeling van het kantoor wordt ook weerspiegeld in het materiaal-, kleur- en lichtgebruik, zodat aan de specifieke eisen van de zones wordt voldaan, zonder dat het totaalbeeld eronder lijdt.

De kern is transparant en het meest representatief vormgegeven. De houten vloer zorgt voor een warme sfeer. De lichtgevende balie is een eigen ontwerp van Amer Alhassan, dat door Vincent de Rijk is uitgevoerd in polyester. In de balie, de verlichting en de gordijnstof (ook een eigen ontwerp van Alhassan) wordt een cirkelvormig patroon consequent gebruikt.

In de eerste werkzone met een besloten karakter is gekozen voor een donkere kleurstelling. De wand naar de kantoren en de wanden van de kleine vergaderruimte zijn behandeld met een warm grey metallic lak en hebben een representatieve uitstraling. De kleine vergaderruimte werkt door zijn donkere wanden en vloerbedekking behaaglijk, dit wordt versterkt door de sculpturale vorm van de tafel: een organisch gevormd blad met een enkel ruw-houten voet een ontwerp van Alhassan.

De werkzone met open kantoren is vooral utilitair van karakter. Een zandkleurige rubberen vloer zorgt voor een praktische en toch warme ondergrond, de kleuren zijn neutraal en helder gehouden en de indirecte verlichting zorgt voor een homogeen licht op de werkplekken. De afscheidingen tussen de clusters bestaan uit witte wanden die precies zo hoog zijn, dat men zittend een gevoel van beslotenheid heeft, dat nodig is om geconcentreerd te kunnen werken. Tussen de clusters en de verkeersruimte staan zwarte kasten van dezelfde hoogte. Staand is de gehele zone te overzien.

Stel jezelf kort voor! Dan weet het betreffende bedrijf wie hun model gedownload heeft.
Wil je niet bij elke download jouw gegevens in hoeven voeren?
Klik dan hier om in te loggen.

Heb je nog geen account? Maak dan hier een gratis account aan.
Voornaam
Achternaam
E-mailadres
Downloaden
Wanneer je modellen downloadt op Architectenweb.nl worden relevante gegevens van jou – zoals jouw naam en e-mailadres – met het betreffende bedrijf gedeeld. Meer hierover lees je in ons privacybeleid.

Locatie

Neem contact op met AAArchitects B.V.

Je bent momenteel niet ingelogd. Hierdoor is het alleen mogelijk om meer informatie per e-mail op te vragen. Wil je liever gebeld worden of documentatie per post ontvangen? Klik dan hier om in te loggen.
Heb je nog geen account? Maak dan hier een gratis account aan.
Voornaam
Achternaam
E-mailadres
Opmerkingen
Bij iedere aanvraag worden relevante gegevens van jou gedeeld met het betreffende bedrijf. Meer hierover lees je in ons privacybeleid.
Ja, denk met me mee rond de
materialisering van mijn project

Meer projecten van AAArchitects B.V.

KUBUS | Specialist in Archicad
SAPA
Reynaers Aluminium Nederland
Jansen
SAB-profiel bv
Aliplast Aluminium Systems
Kingspan Light & Air
ALUCOBOND®
Caparol
Tarkett BV
Kawneer
Grohe Nederland B.V.
Malaysian Timber Council
OCS | Office Cabling Systems
Swisspearl Nederland
Forster Nederland N.V.
VELUX Commercial Benelux B.V.
Sempergreen
Houthandel van Dam
Aluprof Nederland BV
QbiQ Wall Systems
Forbo Flooring
Schüco Nederland
Cedral
Sto Isoned bv
Triflex bv
Gorter Luiken BV
wienerberger
DUCO Ventilation & Sun Control
BEWI IsoBouw
ROCKWOOL B.V.
Mview+
Rockfon (ROCKWOOL B.V.)
Gira Nederland B.V.
Kingspan Geïsoleerde Panelen
GEZE Benelux  B.V.
Renson
Metaglas Groep
ABB | Busch-Jaeger
Jung | Hateha B.V.
Knauf B.V.
Saint-Gobain Glass Benelux
Faay Vianen B.V.
objectflor
Boon Edam Nederland B.V.
Hunter Douglas Architectural
VOLA Nederland BV
Forbo Eurocol Nederland B.V.
EQUITONE gevelpanelen
Holonite B.V.
Kronospan
Tata Steel Colorcoat®
Architectenweb
Over ons
Contact

© 2002 - 2026 Architectenweb BV / Voorwaarden / Privacy / Disclaimer / Sitemap
Annuleren
OK
Sluiten
Doorgaan
Inloggen
Maak een gratis persoonlijk account aan