Projecten
Producten
Bedrijven
Vacatures
Agenda
Awards
Podcasts
more_horiz
Videos
Magazine
Favorieten
Profiel
Uitloggen
Abonneer je nu op onze nieuwsbrieven!
Abonneren
Nee, bedankt
Ja, denk met me mee rond de
materialisering van mijn project
Producten
Producttags
AAN
UIT
Clubaccommodatie JEKA
1 februari 2008
0
0
0
0
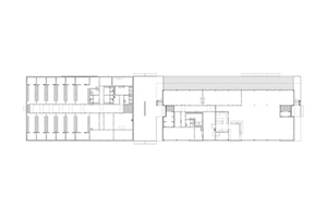
De locatie voor de huisvesting van de voetbalvereniging JEKA maakt deel uit van de landschappelijke driehoek in Breda Zuid-Oost waarmee de gevoeligheid van de plek voor een dergelijke interventie is aangetoond. De centraal gelegen clubaccommodatie met geclusterde sportvelden laat maximale ruimte over voor het water- en natuurprogramma.
Het programma en bebouwingsconcept genereren een 1-laags langgerekt bouwvolume dat opgedeeld is in twee delen.
Het meest gesloten bouwvolume huisvest de was- en kleedaccommodatie en in het bouwvolume met de tribune zijn de kantine en overige functies gesitueerd. Beide delen worden door een verhoogde betonnen plint met elkaar verbonden.
Stel jezelf kort voor! Dan weet het betreffende bedrijf wie hun brochure gedownload heeft.
Wil je niet bij elke download jouw gegevens in hoeven voeren?
Klik dan hier om in te loggen
. Heb je nog geen account?
Maak dan hier een gratis account aan
.
Voornaam
Achternaam
E-mailadres
Downloaden
Wanneer je brochures downloadt op Architectenweb.nl worden relevante gegevens van jou – zoals jouw naam en e-mailadres – met het betreffende bedrijf gedeeld. Meer hierover lees je in ons
privacybeleid
.
Wanneer je brochures downloadt op Architectenweb.nl worden relevante gegevens van jou – zoals jouw naam en e-mailadres – met het betreffende bedrijf gedeeld. Meer hierover lees je in ons
privacybeleid
.
Brochure
Stel jezelf kort voor! Dan weet het betreffende bedrijf wie hun model gedownload heeft.
Wil je niet bij elke download jouw gegevens in hoeven voeren?
Klik dan hier om in te loggen
.
Heb je nog geen account?
Maak dan hier een gratis account aan
.
Voornaam
Achternaam
E-mailadres
Downloaden
Wanneer je modellen downloadt op Architectenweb.nl worden relevante gegevens van jou – zoals jouw naam en e-mailadres – met het betreffende bedrijf gedeeld. Meer hierover lees je in ons
privacybeleid
.
Locatie
havermans : hielkema architecten
Neem contact op
Projectdata
Staat van realisatie
Voltooid
Start bouw
2007
Plaats
Breda
Bruto m
2
1375
Neem contact op met
havermans : hielkema architecten
Je bent momenteel niet ingelogd. Hierdoor is het alleen mogelijk om meer informatie per e-mail op te vragen. Wil je liever gebeld worden of documentatie per post ontvangen?
Klik dan hier om in te loggen
.
Heb je nog geen account?
Maak dan hier een gratis account aan
.
Voornaam
Achternaam
E-mailadres
Opmerkingen
Bij iedere aanvraag worden relevante gegevens van jou gedeeld met het betreffende bedrijf. Meer hierover lees je in ons
privacybeleid
.
Ja, denk met me mee rond de
materialisering van mijn project
Meer projecten van havermans : hielkema architecten
Campus Easy Street, Tuinzigtlaan
havermans : hielkema architecten
Doornboslaan
havermans : hielkema architecten
Campus Easy street, Tuinzigtlaan - Breda
havermans : hielkema architecten
Tongerlose Hoef
havermans : hielkema architecten
Campus Easy Street, Tuinzigtlaan
havermans : hielkema architecten
Doornboslaan
havermans : hielkema architecten
Campus Easy street, Tuinzigtlaan - Breda
havermans : hielkema architecten
Tongerlose Hoef
havermans : hielkema architecten
Toon alles
Andere Projecten
MKC Azalea – Amsterdam
VBI
Brede School - Beesd
Houthandel van Dam
Kliniek San Juan de Dios in Madrid, Spanje
ULMA Architectural Solutions
Circulair, Platowood Fraké zwemgebouw - Ons Buiten
Platowood
Kantoorvilla in Veldhoven
NBArchitecten
Blossem - Breda
Houthandel van Dam
The Pulse - Amsterdam
Houthandel van Dam
Schools by CircleWood toegepast in IKC Wisperweide
Faay Vianen B.V.
Ballast Nedam
QbiQ Wall Systems
Enteemat voor het Kurhaus
Storax
Strand Nesselande Rotterdam
Houthandel van Dam
Volledig circulaire kunststof kozijnen
Kömmerling Nederland
Ga naar het projecten-overzicht
Voor een optimale gebruikservaring plaatst Architectenweb functionele cookies. Wat de verschillende cookies precies doen leggen we uit in een
overzicht
. Cookies van social media kun je optioneel
aanzetten
.
Akkoord
Instellingen
Annuleren
OK
Sluiten
Doorgaan
Inloggen
Maak een gratis persoonlijk account aan
Feedback
Feedback
Wij horen graag jouw feedback. Laat je reactie achter en eventueel jouw e-mail adres.
Reactie
Verstuur