Projecten
Producten
Bedrijven
Vacatures
Agenda
Awards
Podcasts
more_horiz
Videos
Magazine
Thema's
Favorieten
Profiel
Uitloggen
Abonneer je nu op onze nieuwsbrieven!
Abonneren
Nee, bedankt
Ja, denk met me mee rond de
materialisering van mijn project
Producten
Producttags
AAN
UIT
Het Carré
22 januari 2008
0
0
0
0
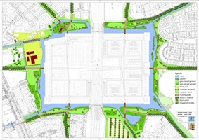
Het Castellum wordt het nieuwe centrum rondom het NS-station van Houten-Vinex. De ‘slotgracht’ rond het Castellum en het omliggende parkachtige groen worden samen het CarrĂ© genoemd. Het CarrĂ© geeft het Castellum zijn glans: zonder CarrĂ© zou het Castellum niet zo herkenbaar zijn als stenen fort in het centrum van Houten-zuid.
Door het CarrĂ© ontstaat er afstand tot de omliggende wijken, waardoor het eigen karakter van het Castellum zichtbaar wordt. Daarnaast geeft het CarrĂ© een groene, open en natuurlijke inbedding, als tegenhanger van het stenige, dichtbebouwde Castellum. Hier is ruimte om te liggen op het gras, om te spelen tussen de bomen en te zitten aan het water. Er komen wandel- en fietspaden door het groen, die zijn verbonden met het Castellum en de omliggende wijken. Een wandeling door het CarrĂ© biedt afwisselende beelden, speel- en wandelmogelijkheden met bijzondere objecten zoals de ‘bootjesvlonders’.
Stel jezelf kort voor! Dan weet het betreffende bedrijf wie hun model gedownload heeft.
Wil je niet bij elke download jouw gegevens in hoeven voeren?
Klik dan hier om in te loggen
.
Heb je nog geen account?
Maak dan hier een gratis account aan
.
Voornaam
Achternaam
E-mailadres
Downloaden
Wanneer je modellen downloadt op Architectenweb.nl worden relevante gegevens van jou – zoals jouw naam en e-mailadres – met het betreffende bedrijf gedeeld. Meer hierover lees je in ons
privacybeleid
.
Locatie
Trefwoorden
centrum
houten
vinex
wonen
castellum
tlu landschapsarchitecten
Neem contact op
Projectdata
Staat van realisatie
In ontwikkeling
Plaats
Houten
Neem contact op met
tlu landschapsarchitecten
Je bent momenteel niet ingelogd. Hierdoor is het alleen mogelijk om meer informatie per e-mail op te vragen. Wil je liever gebeld worden of documentatie per post ontvangen?
Klik dan hier om in te loggen
.
Heb je nog geen account?
Maak dan hier een gratis account aan
.
Voornaam
Achternaam
E-mailadres
Opmerkingen
Bij iedere aanvraag worden relevante gegevens van jou gedeeld met het betreffende bedrijf. Meer hierover lees je in ons
privacybeleid
.
Ja, denk met me mee rond de
materialisering van mijn project
Meer projecten van tlu landschapsarchitecten
Bruggen
tlu landschapsarchitecten
Openbare ruimte Hanzewijk
tlu landschapsarchitecten
De Boomgaard
tlu landschapsarchitecten
Domeinbrug
tlu landschapsarchitecten
Begraafplaats De Wissel
tlu landschapsarchitecten
Hemelwater afkoppeling
tlu landschapsarchitecten
Kniphoekbrug
tlu landschapsarchitecten
Nieuw wonen in Overvecht
tlu landschapsarchitecten
Brug over de Rondweg
tlu landschapsarchitecten
1e prijs Halde Lohberg Noord
tlu landschapsarchitecten
Het Rondeel
tlu landschapsarchitecten
Zwarte Waterzone
tlu landschapsarchitecten
Woongebied Julianadorp Oost
tlu landschapsarchitecten
Woonomgeving Het Water/De Hoon
tlu landschapsarchitecten
Herinrichting De Schaft
tlu landschapsarchitecten
Herinrichting centrum Naarden-Vesting
tlu landschapsarchitecten
De Rietplas
tlu landschapsarchitecten
1e en 2e Dorpsstraat
tlu landschapsarchitecten
Afvalstortplaats
tlu landschapsarchitecten
Woonomgeving De Muren/Schonauwen
tlu landschapsarchitecten
Golfresort
tlu landschapsarchitecten
Gezondheidscentrum Scherpenzeel
tlu landschapsarchitecten
Cascadepark
tlu landschapsarchitecten
De Vijfwal
tlu landschapsarchitecten
Afvalstortplaats Ubbena
tlu landschapsarchitecten
Dorpsplein Houten
tlu landschapsarchitecten
Provinciehuis Flevoland
tlu landschapsarchitecten
Oleanderpark
tlu landschapsarchitecten
Goudse Poort
tlu landschapsarchitecten
Bakens aan het Water
tlu landschapsarchitecten
Europan
tlu landschapsarchitecten
Europan
tlu landschapsarchitecten
Bedrijventerrein De Meerpaal
tlu landschapsarchitecten
Bedrijventerrein De Meerpaal
tlu landschapsarchitecten
Historisch centrum Zeist
tlu landschapsarchitecten
Slotlaan
tlu landschapsarchitecten
Slotlaan
tlu landschapsarchitecten
Woonomgeving De Muren/Schonauwen
tlu landschapsarchitecten
Station op Wielen
tlu landschapsarchitecten
Slotlaan
tlu landschapsarchitecten
Sportdorp
tlu landschapsarchitecten
Stadspatio voormalige Brandweerkazerne
tlu landschapsarchitecten
Park Schoneveld
tlu landschapsarchitecten
centrum Scherpenzeel
tlu landschapsarchitecten
Wal Masqué
tlu landschapsarchitecten
Bruggen
tlu landschapsarchitecten
Openbare ruimte Hanzewijk
tlu landschapsarchitecten
De Boomgaard
tlu landschapsarchitecten
Domeinbrug
tlu landschapsarchitecten
Begraafplaats De Wissel
tlu landschapsarchitecten
Hemelwater afkoppeling
tlu landschapsarchitecten
Kniphoekbrug
tlu landschapsarchitecten
Nieuw wonen in Overvecht
tlu landschapsarchitecten
Brug over de Rondweg
tlu landschapsarchitecten
1e prijs Halde Lohberg Noord
tlu landschapsarchitecten
Het Rondeel
tlu landschapsarchitecten
Zwarte Waterzone
tlu landschapsarchitecten
Woongebied Julianadorp Oost
tlu landschapsarchitecten
Woonomgeving Het Water/De Hoon
tlu landschapsarchitecten
Herinrichting De Schaft
tlu landschapsarchitecten
Herinrichting centrum Naarden-Vesting
tlu landschapsarchitecten
De Rietplas
tlu landschapsarchitecten
1e en 2e Dorpsstraat
tlu landschapsarchitecten
Afvalstortplaats
tlu landschapsarchitecten
Woonomgeving De Muren/Schonauwen
tlu landschapsarchitecten
Golfresort
tlu landschapsarchitecten
Gezondheidscentrum Scherpenzeel
tlu landschapsarchitecten
Cascadepark
tlu landschapsarchitecten
De Vijfwal
tlu landschapsarchitecten
Afvalstortplaats Ubbena
tlu landschapsarchitecten
Dorpsplein Houten
tlu landschapsarchitecten
Provinciehuis Flevoland
tlu landschapsarchitecten
Oleanderpark
tlu landschapsarchitecten
Goudse Poort
tlu landschapsarchitecten
Bakens aan het Water
tlu landschapsarchitecten
Europan
tlu landschapsarchitecten
Europan
tlu landschapsarchitecten
Bedrijventerrein De Meerpaal
tlu landschapsarchitecten
Bedrijventerrein De Meerpaal
tlu landschapsarchitecten
Historisch centrum Zeist
tlu landschapsarchitecten
Slotlaan
tlu landschapsarchitecten
Slotlaan
tlu landschapsarchitecten
Woonomgeving De Muren/Schonauwen
tlu landschapsarchitecten
Station op Wielen
tlu landschapsarchitecten
Slotlaan
tlu landschapsarchitecten
Sportdorp
tlu landschapsarchitecten
Stadspatio voormalige Brandweerkazerne
tlu landschapsarchitecten
Park Schoneveld
tlu landschapsarchitecten
centrum Scherpenzeel
tlu landschapsarchitecten
Wal Masqué
tlu landschapsarchitecten
Toon alles
Andere Projecten
Campus Sportief Besteed Groep — Wubben.Chan
Wubben.Chan architecten
BDO kantoor Breda
ULMA Architectural Solutions
Toegangscontrole op een dynamisch terrein
Heras
Biobased bouwen naast Natura 2000-gebied
KUBUS | Specialist in Archicad
5Tracks - inspirerende atriums met JUNG
Jung | Hateha B.V.
Totaalrealisatie nieuwe kantoorlocatie A. Vogel
Intermontage B.V.
Sweco Wonderwoods — Duurzame kantoorinrichting
Hal2
Gare Maritime, Brussel
WEBO
De transformatie van de Lintveldebrink
Grohe Nederland B.V.
Sweco WTC Den Haag — Duurzame kantoorinrichting
Hal2
Uitbreiding Hotel Martin's Klooster, Leuven
OWA Benelux - Akoestiek & Design
RVS plinten kantoor Moore DRV
Storax
Ga naar het projecten-overzicht
Voor een optimale gebruikservaring plaatst Architectenweb functionele cookies. Wat de verschillende cookies precies doen leggen we uit in een
overzicht
. Cookies van social media kun je optioneel
aanzetten
.
Akkoord
Instellingen
Annuleren
OK
Sluiten
Doorgaan
Inloggen
Maak een gratis persoonlijk account aan
Feedback
Feedback
Wij horen graag jouw feedback. Laat je reactie achter en eventueel jouw e-mail adres.
Reactie
Verstuur