Projecten
Producten
Bedrijven
Vacatures
Agenda
Awards
Podcasts
more_horiz
Videos
Magazine
Favorieten
Profiel
Uitloggen
Abonneer je nu op onze nieuwsbrieven!
Abonneren
Nee, bedankt
Ja, denk met me mee rond de
materialisering van mijn project
Producten
Kernpioniers
Copyright: xlxs architects
Kernpioniers
Copyright: xlxs architects
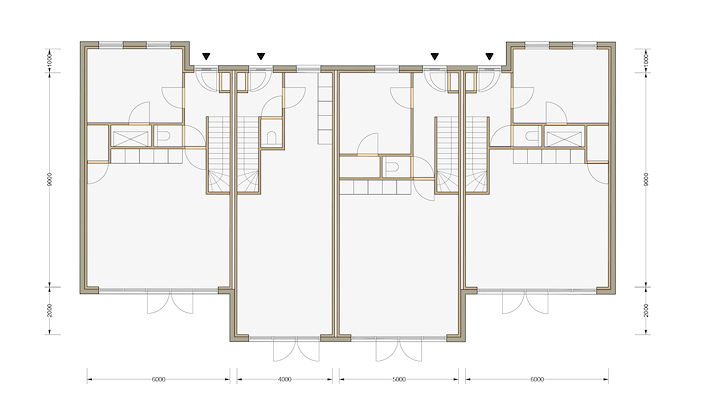
Plattegrond begane grond
Copyright: xlxs architects
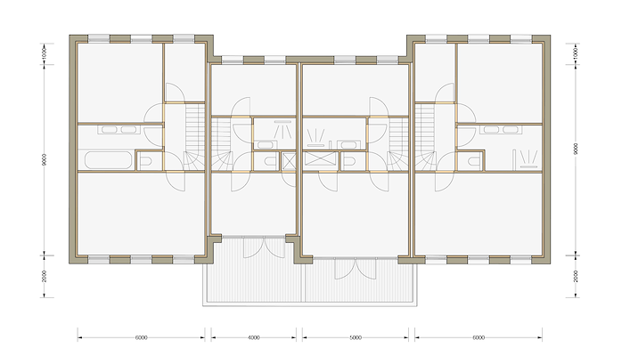
Plattegrond verdieping
Copyright: xlxs architects
Bird-eye view
Copyright: xlxs architects
Producttags
AAN
UIT
Kernpioniers
23 maart
0
0
0
0
Er is een groeiende behoefte aan woonomgevingen die meebewegen met veranderende levensfasen, zodat bewoners niet telkens hoeven te verhuizen. Levensloopbestendig wonen en sociale cohesie worden steeds belangrijker, net als de mogelijkheid om te investeren in een duurzame en toekomstgerichte leefomgeving. Mensen zoeken naar een gezonde leefomgeving waarin natuur centraal staat en waar ruimte is voor verbinding tussen generaties.
Kernpioniers brengt generaties samen in een groene, gezonde leefomgeving met de natuur als basis. Het concept biedt een woonplek voor het leven, met woningen die meebewegen met de bewoner en een omgeving die ontmoeting en sociale cohesie stimuleert. Dankzij een divers woningaanbod ontstaat een inclusieve gemeenschap voor uiteenlopende woonbehoeften.
Het ontwerp is gebaseerd op modulariteit en flexibiliteit. Woningen worden opgebouwd rond vaste modules met natte kernen, waaromheen de rest van de woning flexibel kan worden ingericht en aangepast.
Er wordt gebruikgemaakt van parametrisch ontwerp om efficiënt maatwerk te leveren binnen een gestandaardiseerd systeem. De constructie bestaat uit duurzame CLT- of HSB-casco’s. Verder wordt gebouwd met ecologische materialen, passend binnen de ambitie om een gezonde en natuur-inclusieve leefomgeving te realiseren.
Stel jezelf kort voor! Dan weet het betreffende bedrijf wie hun brochure gedownload heeft.
Wil je niet bij elke download jouw gegevens in hoeven voeren?
Klik dan hier om in te loggen
. Heb je nog geen account?
Maak dan hier een gratis account aan
.
Voornaam
Achternaam
E-mailadres
Downloaden
Wanneer je brochures downloadt op Architectenweb.nl worden relevante gegevens van jou – zoals jouw naam en e-mailadres – met het betreffende bedrijf gedeeld. Meer hierover lees je in ons
privacybeleid
.
Wanneer je brochures downloadt op Architectenweb.nl worden relevante gegevens van jou – zoals jouw naam en e-mailadres – met het betreffende bedrijf gedeeld. Meer hierover lees je in ons
privacybeleid
.
Brochure
Stel jezelf kort voor! Dan weet het betreffende bedrijf wie hun model gedownload heeft.
Wil je niet bij elke download jouw gegevens in hoeven voeren?
Klik dan hier om in te loggen
.
Heb je nog geen account?
Maak dan hier een gratis account aan
.
Voornaam
Achternaam
E-mailadres
Downloaden
Wanneer je modellen downloadt op Architectenweb.nl worden relevante gegevens van jou – zoals jouw naam en e-mailadres – met het betreffende bedrijf gedeeld. Meer hierover lees je in ons
privacybeleid
.
Trefwoorden
ecologische materialen
llb
houtskeletbouw
geschakelde woningen
woningbouw
duurzame gevels
modulair bouwen
natuur als basis
houten gevels
hsb
natuur-inclusieve leefomgeving
parametrisch ontwerp
clt
levensloopbestendig
xlxs architects
Neem contact op
Projectdata
Staat van realisatie
In ontwikkeling
Start ontwerpproces
2023
Start bouw
2023
Bruto m
2
1400
Meewerkende partijen
Architect
xlxs architects
Projectarchitect
Olav van der Doorn
Opdrachtgever
Project Bo, Strito Development
Neem contact op met
xlxs architects
Je bent momenteel niet ingelogd. Hierdoor is het alleen mogelijk om meer informatie per e-mail op te vragen. Wil je liever gebeld worden of documentatie per post ontvangen?
Klik dan hier om in te loggen
.
Heb je nog geen account?
Maak dan hier een gratis account aan
.
Voornaam
Achternaam
E-mailadres
Opmerkingen
Bij iedere aanvraag worden relevante gegevens van jou gedeeld met het betreffende bedrijf. Meer hierover lees je in ons
privacybeleid
.
Ja, denk met me mee rond de
materialisering van mijn project
Meer projecten van xlxs architects
Midcentury Vakantiehuis
xlxs architects
Andere Projecten
Canopy House
Malaysian Timber Council
Pol Heeteren BV
Klöber
Akoestische ventilatieroosters woontoren Magnus
Storax
Klimaatinnovatie in houtbouw: Mandemaat 3
Halton Ventilation Systems
Renovatie parkeergarage De Vest
Triflex bv
Kliniek San Juan de Dios in Madrid
ULMA Architectural Solutions
Vliesgevel screens Netceed kantoorgebouw
Renson
Kantoorinterieur Greenflux Amsterdam
Bureau Fraai
Nieuwbouw kinderdagverblijf Baakenhafen Hamburg
Sempergreen
CPO Vondelstaete Amersfoort: Passief Wonen
Sto Isoned bv
Nieuwbouw Oostvaarders krijgt Gorter op het dak
Gorter Luiken BV
BOW showroom in Amsterdam!
BOW Systems
Ga naar het projecten-overzicht
Voor een optimale gebruikservaring plaatst Architectenweb functionele cookies. Wat de verschillende cookies precies doen leggen we uit in een
overzicht
. Cookies van social media kun je optioneel
aanzetten
.
Akkoord
Instellingen
Annuleren
OK
Sluiten
Doorgaan
Inloggen
Maak een gratis persoonlijk account aan
Feedback
Feedback
Wij horen graag jouw feedback. Laat je reactie achter en eventueel jouw e-mail adres.
Reactie
Verstuur