Projecten
Producten
Bedrijven
Vacatures
Agenda
Awards
Podcasts
more_horiz
Videos
Magazine
Thema's
Favorieten
Profiel
Uitloggen
Abonneer je nu op onze nieuwsbrieven!
Abonneren
Nee, bedankt
Ja, denk met me mee rond de
materialisering van mijn project
Producten
Interieur
Copyright: Marcel van der Burg
Nieuwe sitautie
Copyright: Marcel van der Burg
Interieur
Copyright: Marcel van der Burg
Interieur
Copyright: Marcel van der Burg
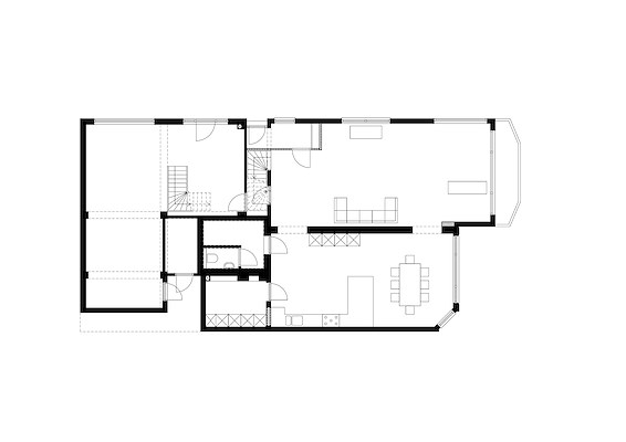
Plattegrond begane grond - nieuwe situatie
Copyright: Finbarr McComb Architect
Gevels - nieuwe situatie
Copyright: Finbarr McComb Architect
Producttags
AAN
UIT
Winkelwoning
10 december 2025
0
0
0
0
In de Russische Buurt in Zaandam is een voormalig winkelpand met bedrijfswoning verbouwd tot een compleet woonhuis. De winkel, vlak buiten het winkelgebied, is gelsoten en de winkelruimte op de begane grond is nu in gebruik als woonruimte. Hiermee ontstaat een royale en sfeervolle leefruimte, dankzij doorzichten en hoge plafonds. De mengeling van oude en nieuwe details maken het beeld compleet.
Ook al is het gebouw geen monument, is een historische analyse doorslaggevend geweest in de transformatie van winkel naar woning. In de loop der jaren zijn er diverse verbouwingen geweest, waarbij oorspronkelijke details verloren zijn gegaan en storende elementen toegevoegd. In overleg met Welstand en Monumenten van de gemeente Zaanstad is gekeken hoe het nieuwe ontwerp reageert op verschillende historische lagen. Het resultaat is duidelijk een nieuwe toevoeging aan het straatbeeld, dat recht doet aan het nieuwe gebruik als woning.
Vanwege de vele eerdere verbouwingen was de voornaamste taak van het ontwerp om weer eenheid te smeden in het gebouw. Dit is gedaan door middel van een eenvoudig en terughoudend kleur- en materiaal gebruik. De kozijnen zijn allemaal in een witte kleur geschilderd, met grijsblauwe accenten. De kleur komt als nuance een enkele keer terug in het interieur. Daar zijn de kleuren terughouden ingevuld om ruimte te bieden aan de uiteenlopende kunstcollectie van de nieuwe bewoners.
Stel jezelf kort voor! Dan weet het betreffende bedrijf wie hun brochure gedownload heeft.
Wil je niet bij elke download jouw gegevens in hoeven voeren?
Klik dan hier om in te loggen
. Heb je nog geen account?
Maak dan hier een gratis account aan
.
Voornaam
Achternaam
E-mailadres
Downloaden
Wanneer je brochures downloadt op Architectenweb.nl worden relevante gegevens van jou – zoals jouw naam en e-mailadres – met het betreffende bedrijf gedeeld. Meer hierover lees je in ons
privacybeleid
.
Wanneer je brochures downloadt op Architectenweb.nl worden relevante gegevens van jou – zoals jouw naam en e-mailadres – met het betreffende bedrijf gedeeld. Meer hierover lees je in ons
privacybeleid
.
Brochure
Stel jezelf kort voor! Dan weet het betreffende bedrijf wie hun model gedownload heeft.
Wil je niet bij elke download jouw gegevens in hoeven voeren?
Klik dan hier om in te loggen
.
Heb je nog geen account?
Maak dan hier een gratis account aan
.
Voornaam
Achternaam
E-mailadres
Downloaden
Wanneer je modellen downloadt op Architectenweb.nl worden relevante gegevens van jou – zoals jouw naam en e-mailadres – met het betreffende bedrijf gedeeld. Meer hierover lees je in ons
privacybeleid
.
Locatie
Trefwoorden
renovatie
transformatie
woningbouw
Finbarr McComb Architect
Neem contact op
Projectdata
Staat van realisatie
Voltooid
Start ontwerpproces
2016
Start bouw
2017
Oplevering
2018
Ingebruikname
2018
Plaats
Zaandam
Netto m
2
400
Meewerkende partijen
Architect
Finbarr McComb
Constructeur
ATKO Rotterdam
Fotograaf
Marcel van der Burg
Leveranciers
Overig
VELUX Nederland B.V.
Neem contact op met
Finbarr McComb Architect
Je bent momenteel niet ingelogd. Hierdoor is het alleen mogelijk om meer informatie per e-mail op te vragen. Wil je liever gebeld worden of documentatie per post ontvangen?
Klik dan hier om in te loggen
.
Heb je nog geen account?
Maak dan hier een gratis account aan
.
Voornaam
Achternaam
E-mailadres
Opmerkingen
Bij iedere aanvraag worden relevante gegevens van jou gedeeld met het betreffende bedrijf. Meer hierover lees je in ons
privacybeleid
.
Ja, denk met me mee rond de
materialisering van mijn project
Meer projecten van Finbarr McComb Architect
Kerk Groesbeek
Finbarr McComb Architect
De Plataan
Finbarr McComb Architect
Kerk Groesbeek
Finbarr McComb Architect
De Plataan
Finbarr McComb Architect
Toon alles
Andere Projecten
Vergroening Europakade Tolkamer
ACO BV
Hybride buitenruimte Catharinatoren Zaandam
Solarlux Nederland B.V.
Project Stadhuisplein - Retentie op het parkeerdek
Optigrün Benelux
Van brievenbus tot pakjesoplossing
Larob bv
Horecapaviljoen met dakterras
Zoontjens
Straatmeubilair verrijkt FOUR Frankfurt
Grijsen Park & Straatdesign
De Warren, Amsterdam
WEBO
Sentho maakt bakkerij HACCP-proof met FRP
Sentho B.V.
Een Centrum voor Iedereen MFA Ewijk
SSAB Swedish Steel BV
Residence Noordwijk
Van Bruchem Staircases
5Tracks - inspirerende atriums met JUNG
Jung | Hateha B.V.
Passerelle Zwolle
Grijsen Park & Straatdesign
Ga naar het projecten-overzicht
Voor een optimale gebruikservaring plaatst Architectenweb functionele cookies. Wat de verschillende cookies precies doen leggen we uit in een
overzicht
. Cookies van social media kun je optioneel
aanzetten
.
Akkoord
Instellingen
Annuleren
OK
Sluiten
Doorgaan
Inloggen
Maak een gratis persoonlijk account aan
Feedback
Feedback
Wij horen graag jouw feedback. Laat je reactie achter en eventueel jouw e-mail adres.
Reactie
Verstuur