Projecten
Producten
Bedrijven
Vacatures
Agenda
Awards
Podcasts
more_horiz
Videos
Magazine
Thema's
Favorieten
Profiel
Uitloggen
Abonneer je nu op onze nieuwsbrieven!
Abonneren
Nee, bedankt
Ja, denk met me mee rond de
materialisering van mijn project
Producten
kiosk Dick’s Snackbar
Copyright: DAVL Studio
voorgevel van kiosk Dick’s Snackbar
Copyright: DAVL Studio
de bronskleurige kroon van kiosk Dick’s Snackbar
Copyright: DAVL Studio
Copyright: DAVL Studio
situatietekening
Copyright: DAVL Studio
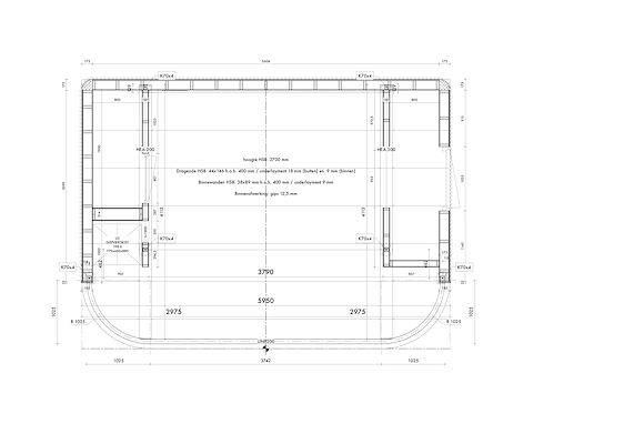
plattegrond
Copyright: DAVL Studio
dak
Copyright: DAVL Studio
doorsnede
Copyright: DAVL Studio
gevels
Copyright: DAVL Studio
Copyright: DAVL Studio
Producttags
AAN
UIT
Kiosk Dick’s Snackbar, Den Haag
26 november 2025
1
0
0
0
DAVL Studio heeft in Den Haag een nieuwe kiosk ontworpen voor Dick’s Snackcar, die hiermee omgedoopt wordt tot Dick’s Snackbar.
Het ontwerp kenmerkt zich onder andere door de openheid naar de straat toe. Dankzij de ronde beglazing is er maximaal zicht tussen binnen en buiten.
De kiosk is bekleed met bamboe dat consequent wordt doorgezet, ook over de zijdeur, zodat deze als het ware in de gevel verdwijnt. De bronskleurige kroon wordt met een rand van bamboe afgemaakt. Dit is niet alleen een eyecatcher, maar verhult tegelijk ook de installaties die op het dak staan.
Lees hier meer over de
kiosken van DAVL Studio
.
Stel jezelf kort voor! Dan weet het betreffende bedrijf wie hun brochure gedownload heeft.
Wil je niet bij elke download jouw gegevens in hoeven voeren?
Klik dan hier om in te loggen
. Heb je nog geen account?
Maak dan hier een gratis account aan
.
Voornaam
Achternaam
E-mailadres
Downloaden
Wanneer je brochures downloadt op Architectenweb.nl worden relevante gegevens van jou – zoals jouw naam en e-mailadres – met het betreffende bedrijf gedeeld. Meer hierover lees je in ons
privacybeleid
.
Wanneer je brochures downloadt op Architectenweb.nl worden relevante gegevens van jou – zoals jouw naam en e-mailadres – met het betreffende bedrijf gedeeld. Meer hierover lees je in ons
privacybeleid
.
Brochure
Stel jezelf kort voor! Dan weet het betreffende bedrijf wie hun model gedownload heeft.
Wil je niet bij elke download jouw gegevens in hoeven voeren?
Klik dan hier om in te loggen
.
Heb je nog geen account?
Maak dan hier een gratis account aan
.
Voornaam
Achternaam
E-mailadres
Downloaden
Wanneer je modellen downloadt op Architectenweb.nl worden relevante gegevens van jou – zoals jouw naam en e-mailadres – met het betreffende bedrijf gedeeld. Meer hierover lees je in ons
privacybeleid
.
Locatie
Trefwoorden
horeca
bamboe
kiosk
restaurant
DAVL Studio
Neem contact op
Projectdata
Staat van realisatie
Voltooid
Start bouw
2024
Oplevering
2025
Ingebruikname
2025
Plaats
Den Haag
Meewerkende partijen
Architect
DAVL Studio
Aannemer
DAVL Studio
Fotograaf
Robin Berghuijs
Leveranciers
Overig
MOSO International BV
Neem contact op met
DAVL Studio
Je bent momenteel niet ingelogd. Hierdoor is het alleen mogelijk om meer informatie per e-mail op te vragen. Wil je liever gebeld worden of documentatie per post ontvangen?
Klik dan hier om in te loggen
.
Heb je nog geen account?
Maak dan hier een gratis account aan
.
Voornaam
Achternaam
E-mailadres
Opmerkingen
Bij iedere aanvraag worden relevante gegevens van jou gedeeld met het betreffende bedrijf. Meer hierover lees je in ons
privacybeleid
.
Ja, denk met me mee rond de
materialisering van mijn project
Meer projecten van DAVL Studio
Arrangement Heeg
DAVL Studio
Werf07
DAVL Studio
Coolhouse
DAVL Studio
Arrangement Heeg
DAVL Studio
Werf07
DAVL Studio
Coolhouse
DAVL Studio
Toon alles
Andere Projecten
Kooi stadion - SC Cambuur
Houthandel van Dam
Veilige daktoegang voor Aan de Molenwerf
Gorter Luiken BV
Veilige daktoegang voor nieuw gemeentehuis
Gorter Luiken BV
Ziekenhuiscomplex Rijeka in Susak, Kroatië
ULMA Architectural Solutions
Luxe Vingui Noir houten uitbouw
Houthandel van Dam
BMV Heerlerbaan - Heerlen
Houthandel van Dam
Watervilla's in de haven van Kortenhoef
Houthandel van Dam
Beatrixhof
Houthandel van Dam
Madonna Antwerpen - Akoestiek als smaakmaker
OWA Benelux - Akoestiek & Design
Renovatie zorginstelling dementie en alzheimer
Storax
Ontwikkeling van Circulair Energielandschap
Buro De Haan
ROCKWOOL LM Klima: efficiënter isoleren bij Xplore
ROCKWOOL B.V.
Ga naar het projecten-overzicht
Voor een optimale gebruikservaring plaatst Architectenweb functionele cookies. Wat de verschillende cookies precies doen leggen we uit in een
overzicht
. Cookies van social media kun je optioneel
aanzetten
.
Akkoord
Instellingen
Annuleren
OK
Sluiten
Doorgaan
Inloggen
Maak een gratis persoonlijk account aan
Feedback
Feedback
Wij horen graag jouw feedback. Laat je reactie achter en eventueel jouw e-mail adres.
Reactie
Verstuur