Abonneer je nu op onze nieuwsbrieven!
Abonneren
Nee, bedankt
Ja, denk met me mee rond de
materialisering van mijn project
Producten
Gebouw voor stadstuinbouw onder LED-verlichting
Copyright: ©Weiqi Jin
Gefacetteerde entreegevel
Copyright: ©Weiqi Jin
Gefacetteerde glazen gevel
Copyright: ©Weiqi Jin
Gebouw aan de rand van de stad
Copyright: ©Weiqi Jin
Gebouw voor stadstuinbouw
Copyright: ©Weiqi Jin
Gefacetteerde entreegevel
Copyright: ©Weiqi Jin
De transparante entreehal
Copyright: ©Weiqi Jin
Geautomatiseerde verticale teelt onder LED-verlichting
Copyright: ©Weiqi Jin
Laboratorium
Copyright: ©Weiqi Jin
Dakkas onder daglicht
Copyright: ©Weiqi Jin
Dakkas onder daglicht
Copyright: ©Weiqi Jin
The urban flow
Copyright: ©van Bergen Kolpa Architecten
Situatie
Copyright: ©van Bergen Kolpa Architecten
Plattegrond begane grond
Copyright: ©van Bergen Kolpa Architecten
Plattegrond, eerste verdieping
Copyright: ©van Bergen Kolpa Architecten
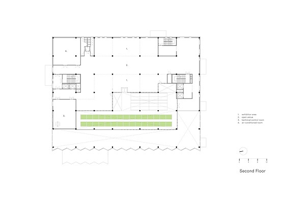
Plattegrond, tweede verdieping
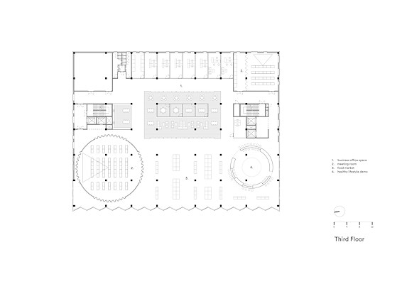
Copyright: ©van Bergen Kolpa Architecten
Plattegrond, dakkas
Copyright: ©van Bergen Kolpa Architecten
Doorsnede
Copyright: ©van Bergen Kolpa Architecten
Detail
Copyright: ©van Bergen Kolpa Architecten
Axo
Copyright: ©van Bergen Kolpa Architecten
ProducttagsAANUIT

Vertical Farm Hengshui

27 oktober 2025
With its faceted glass facade, monumental entrance hall, and stacked functions, the Hengshui Vertical Farm offers a striking architectural face to horticulture in the metropolis. With its water reuse, passive heat recovery, and natural cooling, the building demonstrates how sustainable food can be produced in the metropolis.

The Vertical Farm is built in the International Horticulture Park in Hengshui, which serves as the innovation center for fruit and vegetable cultivation in Hebei Province and China. The transparent, four-story building serves as the main access point to the production and educational facilities and offers views of the horticultural park for food production.

A building for innovation and education

. The 12,800 m² building, spread over four floors, houses various innovative vertical farming methods stacked above a transparent entrance hall. An educational trail through the building guides visitors through the automated vertical cultivation of leafy greens and fruit under LED lighting, as well as a rooftop greenhouse where fruiting vegetables and fruit trees are grown under daylight.

At the heart of the building, on the lower two floors, are the automated vertical farms without daylight, under LED lighting, with laboratories and processing areas. Several of these facilities have glass walls and are visible from the ground-floor entrance hall. The third floor houses the demonstration center for healthy food and horticultural suppliers. The fourth floor houses the roof greenhouse, which provides space for educational activities and compartments for the horizontal cultivation of fruit vegetables and fruit trees under daylight.

One of the challenges was to combine and stack the lighting conditions for the various crop types and the work and educational spaces within a single four-story building. Jago van Bergen, van Bergen Kolpa Architects

Metropolitan Horticulture and Rural Revitalization

To provide millions of people in China's growing metropolises with green and healthy food, it is essential that production be made as sustainable as possible and integrated into and around the metropolis. Heibei Province, located around Beijing, Tianjin, and Hengshui, was originally the fruit and vegetable basket for these metropolises, but is also facing challenges such as aging, climate change, and water shortages. Making the revitalization more sustainable through greenhouse horticulture, shortening food chains, attracting a younger generation of horticulturists, and promoting a healthy lifestyle are the foundations of this revitalization.

Vertical Farm Hengshui offers an innovative and versatile solution for the future, combining stacked horticulture, entrepreneurship, and education on a compact scale. A new type of building for professional cultivation, accessible to a wide audience, it celebrates the central role of food in metropolitan areas.

"Vertical horticulture offers a solution for how metropolitan areas can both produce and consume food. This saves logistics costs and allows residents to actually receive fresh vegetables."

"This horticultural complex represents an important step in the development of the high-tech horticultural sector, together with international knowledge partners and Dutch suppliers in China."

Sustainable use of water and energy:

Not a single drop of water is wasted in the building. Excess water is collected and reused during plant irrigation. Natural ventilation and evaporative cooling are used to manage the building's climate. Passive solar heat and residual heat from LED lighting are used for heating.

"Vertical Farm Hengshui offers the opportunity to sustainably cultivate plants in nutrient-rich water, with artificial sources supplementing the daylight they need. Certain resources considered unusable in the metropolis can be reused in vertical farming, such as nutrients from sewage and carbon dioxide in the air."

A transparent sculpture.

Vertical Farm Hengshui is a proud sculpture of steel and glass that emphasizes its role in horticulture and education. The building is constructed from an industrial steel structure that silhouettes against the Hengshui sky with a series of transparent bay windows. The entrance is striking with its expressive, faceted glass facade.

The glass bay windows offer constant, reflection-free views throughout the day, both from inside and out. In the evening, the building glows like the treasure chest of the Horticultural Park, thanks to its characteristic ultraviolet light.

“For Vertical Farm Hengshui, we further improved the standard Venlo roof greenhouse and stacked it on a steel substructure, enabling an efficient and column-free span for Vertical Farming.”

Stel jezelf kort voor! Dan weet het betreffende bedrijf wie hun model gedownload heeft.
Wil je niet bij elke download jouw gegevens in hoeven voeren?
Klik dan hier om in te loggen.

Heb je nog geen account? Maak dan hier een gratis account aan.
Voornaam
Achternaam
E-mailadres
Downloaden
Wanneer je modellen downloadt op Architectenweb.nl worden relevante gegevens van jou – zoals jouw naam en e-mailadres – met het betreffende bedrijf gedeeld. Meer hierover lees je in ons privacybeleid.

Locatie

Neem contact op met van Bergen Kolpa Architecten

Je bent momenteel niet ingelogd. Hierdoor is het alleen mogelijk om meer informatie per e-mail op te vragen. Wil je liever gebeld worden of documentatie per post ontvangen? Klik dan hier om in te loggen.
Heb je nog geen account? Maak dan hier een gratis account aan.
Voornaam
Achternaam
E-mailadres
Opmerkingen
Bij iedere aanvraag worden relevante gegevens van jou gedeeld met het betreffende bedrijf. Meer hierover lees je in ons privacybeleid.
Ja, denk met me mee rond de
materialisering van mijn project

Meer projecten van van Bergen Kolpa Architecten

van Bergen Kolpa Architecten
van Bergen Kolpa Architecten
van Bergen Kolpa Architecten
Toon alles
ATAG Nederland
KUBUS | Specialist in Archicad
SAPA
Reynaers Aluminium Nederland
Jansen
SAB-profiel bv
Aliplast Aluminium Systems
Kingspan Light & Air
ALUCOBOND®
Caparol
Tarkett BV
Kawneer
Grohe Nederland B.V.
Malaysian Timber Council
OCS | Office Cabling Systems
Swisspearl Nederland
Forster Nederland N.V.
VELUX Commercial Benelux B.V.
Sempergreen
Houthandel van Dam
Aluprof Nederland BV
QbiQ Wall Systems
Forbo Flooring
Schüco Nederland
Cedral
Sto Isoned bv
Triflex bv
Gorter Luiken BV
wienerberger
DUCO Ventilation & Sun Control
BEWI IsoBouw
ROCKWOOL B.V.
Mview+
Rockfon (ROCKWOOL B.V.)
Gira Nederland B.V.
Kingspan Geïsoleerde Panelen
GEZE Benelux  B.V.
Renson
Metaglas Groep
ABB | Busch-Jaeger
Jung | Hateha B.V.
Knauf B.V.
Saint-Gobain Glass Benelux
Faay Vianen B.V.
objectflor
Boon Edam Nederland B.V.
Hunter Douglas Architectural
VOLA Nederland BV
Forbo Eurocol Nederland B.V.
EQUITONE gevelpanelen
Holonite B.V.
Tata Steel Colorcoat®
Architectenweb
Over ons
Contact

© 2002 - 2026 Architectenweb BV / Voorwaarden / Privacy / Disclaimer / Sitemap
Annuleren
OK
Sluiten
Doorgaan
Inloggen
Maak een gratis persoonlijk account aan