Projecten
Producten
Bedrijven
Vacatures
Agenda
Awards
Podcasts
more_horiz
Videos
Magazine
Thema's
Favorieten
Profiel
Uitloggen
Nieuw
Populair
Toon alles
Architectenweb magazine #14
Architectenweb magazine #13
Publieke gebouwen
Architectenweb magazine #12
Kantoren
Architectenweb magazine #11
Scholen
Architectenweb magazine #10
Zorg
Architectenweb magazine #14
Architectenweb magazine #10
Zorg
Architectenweb magazine #12
Kantoren
Architectenweb magazine #13
Publieke gebouwen
Architectenweb magazine #6
Transformatie en Renovatie
Om direct naar je favorieten te kunnen gaan is het nodig om eerst in te loggen.
Nieuw
Architectenweb Awards 2025
Architectenweb Awards 2024
Architectenweb Awards 2023
Architectenweb Awards 2022
Architectenweb Awards 2021
Architectenweb Awards 2020
Architectenweb Awards 2019
Architectenweb Awards 2018
Om direct naar je favorieten te kunnen gaan is het nodig om eerst in te loggen.
Nieuw
Populair
Favorieten
Toon alles
Vakwerk Architecten
Nominatie voor de prijs voor Architect van het Jaar 2025
Sanne van Manen
Nominatie voor de prijs voor Architect van het Jaar 2025
KSA
Nominatie voor de prijs voor Architect van het Jaar 2025
KRFT
Nominatie voor de prijs voor Architect van het Jaar 2025
Joost Ector
Nominatie voor de prijs voor Architect van het Jaar 2025
Prijsuitreiking Architectenweb Awards 2024
Impressie van een feestelijke avond
Martens, Willems & Humblé Architecten
Nominatie voor de prijs voor Architect van het Jaar 2024
Uitreiking van Architectenweb Awards 2020
Impressie van de prijsuitreiking via Zoom
De Zwarte Hond
Nominatie voor de prijs voor Architect van het Jaar 2024
Avond met De Zwarte Hond
Symposium
Om direct naar je favorieten te kunnen gaan is het nodig om eerst in te loggen.
Nieuw
Populair
Categorieën
Favorieten
Toon alles
ST1centrum
Dé specialist op het gebied van gevelstenen en dakpannen met showrooms in Amsterdam en Meppel
Studio Massimo
Architecture & Nature
Brandpreventie Academy BV
Cay Circulaire Keukens
Circulaire keukens en pantry's
Studio Kirsten Reith
Interieurontwerp
Studio175
Interieuradvies in regio Utrecht
Interior & Co
Studio175
Interieuradvies in regio Utrecht
Cay Circulaire Keukens
Circulaire keukens en pantry's
Orange Automatic Doors
Brandpreventie Academy BV
Studio Kirsten Reith
Interieurontwerp
Architecten
Architectuur
Mobiliteit en infrastructuur
Stedenbouw en landschapsarchitectuur
Leveranciers
Gevels
Daken
Ramen en deuren
Trappen, liften en balustrades
Binnenwanden
Vloeren
Plafonds
Verlichting
Sanitair
Projectinrichting
Installaties
Constructies
Buitenruimte
Software
Adviseurs
Bestekschrijvers
Bouwmanagement
Installatie adviseurs E
Bouwfysica
Calculators
Installatie adviseurs G/W
Bouwkundig tekenwerk
Constructeurs
Lichtadviseurs
Adviseur beveiliging
Juristen
Intermediairs, Payrolling
Aannemers
Overig
Presentatie
Instellingen / onderwijs
Overig
Om direct naar je favorieten te kunnen gaan is het nodig om eerst in te loggen.
Nieuw
Populair
Favorieten
Toon alles
Gesprek met Stephan Sliepenbeek over hoogbouw in Amstel III
Gesprek met Ellen van Bueren over gebiedsontwikkeling en hoogbouw
Gesprek met Ma Yansong over ontwerpen die emotie oproepen
Gesprek met Paul de Ruiter over innovatieve en duurzame hoogbouw
Gesprek met Pi de Bruijn over zijn ontwerpen voor de Tweede Kamer toen en nu
Gesprek met Ellen van Bueren over gebiedsontwikkeling en hoogbouw
Gesprek met Oresti Sarafopoulos over het ontwerpen van een kantoorgebouw met bijna geen installaties
Gesprek met Stijn Steenbakkers over verdichting en hoogbouw in Eindhoven
Gesprek met Pi de Bruijn over zijn ontwerpen voor de Tweede Kamer toen en nu
Gesprek met Paul de Ruiter over innovatieve en duurzame hoogbouw
Om direct naar je favorieten te kunnen gaan is het nodig om eerst in te loggen.
Nieuw
Populair
Categorieën
Favorieten
Toon alles
Hoofdkantoor We Enable Climbers
Renovatie met respect voor oorspronkelijke ontwerp
ITO Toren Amsterdam
Natuurlijk modern bedrijfsgebouw
De Rotterdam
Boekweitkamp, Den Haag
Renovatieproject Ockenburghstraat
Exclusieve wooneenheden
De Grote Zwaan, Nijmegen
ASML Gebouw 3
Architectuur
Woningbouw
Zorg
Hotels
Restaurants en café’s
Winkels
Sportgebouwen
Culturele gebouwen
Overheidsgebouwen
Scholen
Kantoren
Bedrijfsgebouwen
Paviljoens en kunst
Overig
Mobiliteit en infrastructuur
Trein- en metrostations
Luchthavens
Busstations
Parkeergarages
Fietsparkeren
Wegen
Bruggen
Water
Energie
Tankstations en laadstations
Waterzuivering en afvalverwerking
Overig
Stedenbouw en landschapsarchitectuur
Regionale visies
Gebiedsvisies
Plannen stedelijk weefsel
Amusementsparken en dierentuinen
Lichtontwerpen
Openbare ruimte
Pleinen
Parken
Tuinen
Speelplaatsen
Uitkijktorens
Overige (bijv. begraafplaatsen)
Om direct naar je favorieten te kunnen gaan is het nodig om eerst in te loggen.
Nieuw
Populair
Categorieën
Favorieten
Toon alles
Akoestische scheidingswand met print
Een oplossing met print waar je stil van wordt
Palazzo Collection
De Collectie waar alle sterke punten van onze gevelstenen samenkomen!
WoodFrame Slim Meranti
Profielen uit post-consumer meranti hardhout uit Nederlandse sloopprojecten, FSC Recycled
Nieuw! Circus Zitelementen stelen de show
Duurzaam en uitnodigend straatmeubilair voor elke buitenruimte
Naturoll 031 (nieuw!)
Betere prestaties, meer rendement.
Akoestisch kussen.
Ervaar de ultime natuurlijke oplossing voor akoestiek problemen.
StoTherm Wood: cementvrij gevelsysteem met houtvezelisolatie
Biobased gevelisolatie met natuurlijke prestaties
Lumiglaze – Het vlakglas van VELUX Commercial
Een nieuw tijdperk in daglichtontwerp – minimalistisch, functioneel en klaar voor de toekomst.
Veelzijdig straatmeubilair
Van openbare ruimte naar (be)leefomgeving
Knauf MaxSpace
Minder wand, méér ruimte. Het ideale profiel voor meer winst per m²
Gevels
Gevelbekleding
Vliesgevels
Zonwering buiten
Isolatie
Gevelconstructies
Signing
Overig
Daken
Dakafwerkingen
Dakisolatie
Dakconstructies
Dakranden, dakgoten en HWA's
Dakramen
Lichtkoepels
Lichtstraten
Schoorstenen
Overig
Dakluiken
Ramen en deuren
Raam- en deursystemen / kozijnen
Vliesgevels
Hang- en sluitwerk
Beveiliging en luiken
Dorpels en vensterbanken
Lateien
Roosters
Glas
Dakramen
Dakkoepels
Lichtstraten
Zonwering buiten
Zonwering binnen
Buitendeuren
Binnendeuren
Postvakken en brievenbussen
Overig
Dakluiken
Trappen, liften en balustrades
Trappen
Roltrappen
Liften
Balustrades en hekwerken
Galerijen
Binnenwanden
Binnenwanden
Wandafwerking
Vloeren
Constructieve vloeren
Verhoogde vloeren
Vloerafwerkingen
Overig
Plafonds
Tegels
Lineair
Grill
Open en roosters
Naadloos
Eilanden en baffles
Plafondafwerkingen
Ophangsystemen
Overig
Klimaatplafonds
Verlichting
Binnenverlichting
Buitenverlichting
Sanitair
Kranen en douchesets
Wastafels
Douchewanden en douchebakken
Baden
Waterclosets
Accessoires
Overig
Projectinrichting
Stoelen
Banken
Tafels
Kasten
Balies
Vrijstaande wanden
Keukens
Accessoires
Overig
Cabines
Interieurbeplanting
Stoffering
Installaties
Verwarming, koeling en ventilatie
Elektrotechnische installaties
Schakelmateriaal
Domotica
Deurcommunicatie
Beveiliging
Liften
Onderhoudsinstallaties
Overig
Brandbeveiliging
Constructies
Draagconstructies
Funderingen en kelders
Overig
Brandbeveiliging
Buitenruimte
Bestratingen en verhardingen
Afwateringen
Terreinafscheidingen en geluidsschermen
Buitenmeubilair
Fietsparkeren
Terrassen
Terrasoverkappingen
Bruggen
Accessoires
Overig
Beplanting
Sport- en speeltoestellen
Software
Tekenen 2D
Modelleren 3D / BIM
Visualisatie / rendering
Parametrisch ontwerpen
Bouwfysica
Draagconstructie
Overig
Virtual Reality
Cloudoplossingen
Om direct naar je favorieten te kunnen gaan is het nodig om eerst in te loggen.
Nieuw
Populair
Favorieten
Toon alles
Prefab beurs - 7 t/m 9 oktober 2025
Brabanthallen 's-Hertogenbosch
Boekpresentatie en panelgesprek met Floor Milikowsky
Prins Hendrikkade 600, 1011 VX Amsterdam
Architects Table ’25: Lunch & Inspiratie in HAUT Amsterdam
ATAG LIVE – HAUT gebouw, Spaklerweg 10F, 1096 BA Amsterdam (tegenover metrostation Spaklerweg)
Inspiratiedag @ Sempergreen – Gevelgroen
Defensieweg 1, 3984 LR Odijk
Architectenweb symposium: klein maar fijn wonen?
Pakhuis de Zwijger
Architects Table ’25: Lunch & Inspiratie in HAUT Amsterdam
ATAG LIVE – HAUT gebouw, Spaklerweg 10F, 1096 BA Amsterdam (tegenover metrostation Spaklerweg)
Ontdek het seminarieprogramma van Architect@Work Amsterdam
De Kromhouthal, Gedempt Hamerkanaal 231, Amsterdam
DigiBouw 2025 – hét event voor digitalisering in de bouwsector
Expozaal van het Beatrixgebouw in Utrecht
Prefab beurs - 7 t/m 9 oktober 2025
Brabanthallen 's-Hertogenbosch
Boekpresentatie en panelgesprek met Floor Milikowsky
Prins Hendrikkade 600, 1011 VX Amsterdam
Om direct naar je favorieten te kunnen gaan is het nodig om eerst in te loggen.
Nieuw
Toon alles
Design
Duurzaamheid
Gevel
Infrastructuur
Interieur
Kantoren
Leisure
Openbare ruimte
Publieke gebouwen
Scholen
Transformatie en Renovatie
Woningbouw
Zorg
Om direct naar je favorieten te kunnen gaan is het nodig om eerst in te loggen.
Nieuw
Populair
Toon alles
Ervaren Bouwkundig Tekenaar
9graden architectuur Amersfoort zoekt een bouwkundig modelleur
SVP zoekt bureauondersteuner
SVP zoekt medior stedenbouwkundige
Mulderblauw zoekt een architect
Mulderblauw zoekt een projectleider
Junior Architect (NL/EN)
De Academie van Bouwkunst Amsterdam zoekt twee onderzoekers voor lectoraat
Architect
Site Practice zoekt medior architect met 4-6 jaar ervaring (Amsterdam)
Junior Ontwerper
Studio Nauta zoekt projectleider
Om direct naar je favorieten te kunnen gaan is het nodig om eerst in te loggen.
Producten
De Ambacht
Copyright: Foto: Jasper Guns - Ontwerp: NBArchitecten
De Ambacht
Copyright: Foto: Jasper Guns - Ontwerp: NBArchitecten
De Ambacht
Copyright: Foto: Jasper Guns - Ontwerp: NBArchitecten
De Ambacht
Copyright: Foto: Jasper Guns - Ontwerp: NBArchitecten
De Ambacht
Copyright: Foto: Jasper Guns - Ontwerp: NBArchitecten
De Ambacht
Copyright: Foto: Jasper Guns - Ontwerp: NBArchitecten
De Ambacht
Copyright: NBArchitecten
De Ambacht
Copyright: NBArchitecten
Producttags
AAN
UIT
De Ambacht
12 augustus
0
0
0
0
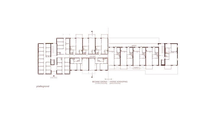
In Veldhoven is De Ambacht opgeleverd, een woongebouw met 56 sociale huurwoningen. Het project is biobased gebouwd en combineert dat met een opzet die gericht is op ruimtelijke kwaliteit en sociale samenhang, met als uitgangspunt een circulair en grotendeels demontabel houten casco.
Van portiekflat naar alzijdig woonblok
De nieuwbouw vervangt een verouderde portiekflat met 28 woningen. Onderzocht is of hergebruik van het bestaande casco mogelijk was, maar technische beperkingen, waaronder te lage verdiepingshoogten en een onvoldoende draagstructuur, maakten dit niet haalbaar. In het ontwerp is de oorspronkelijke gebouwcontour behouden, met een toegevoegde bouwlaag en een verbrede plint. Hierdoor kon het aantal woningen worden uitgebreid, met behoud van schaal en samenhang met de omliggende wijk. De plint opent het gebouw naar zowel het plein aan de Schaatsenmaker als de Ambachtslaan, waardoor aan beide zijden woningen zijn gesitueerd.
Houtbouw en prefabricage
De constructie bestaat uit gelamineerde houten liggers, houtskeletbouwgevels en CLT-elementen. Door de lichte opbouw kon het gebouw zonder heipalen direct op staal worden gefundeerd. Alle elementen zijn geprefabriceerd en demontabel uitgevoerd, waarmee is ingezet op reductie van milieubelasting en flexibiliteit voor toekomstig hergebruik.
De gevels zijn onder andere uitgevoerd in voorvergrijsd fraké met geïntegreerde groenvakken. Naast de visuele kwaliteit draagt dit ook bij aan de beleving van het gebouw vanaf de openbare ruimte.
Voor het installatietechnisch ontwerp is gekozen voor prefab badkamers waarin leidingen en afvoeren zijn geïntegreerd. Door keuken, toilet en techniek in de plattegrond slim aan deze eenheid te koppelen, bleef het houten casco onaangetast. De woningen worden ontsloten via een corridor op de onderste lagen en via galerijen op de verdiepingen. De verbrede plint fungeert daarbij als basis voor terrassen, bordessen en balkons.
Wonen en gebruik
De Ambacht is opgezet als een overzichtelijk woongebouw, met collectieve entrees, ruime galerijen en plekken voor informeel gebruik. De schakeling van de woningen rondom twee kernen draagt bij aan overzicht en sociale veiligheid. Beplanting op balkons en gevels vormt een onderdeel van het ontwerp, met aandacht voor biodiversiteit en aansluiting op de omliggende buitenruimte.
Toepasbaarheid
De Ambacht laat zien dat bouwen in hout en het toepassen van circulaire principes mogelijk is binnen het kader van sociale woningbouw. Door het bouwsysteem en de installatietechniek vroeg in het proces te integreren, zijn haalbaarheid en ontwerpkwaliteit op elkaar afgestemd. De gemaakte keuzes kunnen ook op andere locaties relevant zijn, als onderdeel van bredere woningbouwopgaven.
Stel jezelf kort voor! Dan weet het betreffende bedrijf wie hun model gedownload heeft.
Wil je niet bij elke download jouw gegevens in hoeven voeren?
Klik dan hier om in te loggen
.
Heb je nog geen account?
Maak dan hier een gratis account aan
.
Voornaam
Achternaam
E-mailadres
Downloaden
Wanneer je modellen downloadt op Architectenweb.nl worden relevante gegevens van jou – zoals jouw naam en e-mailadres – met het betreffende bedrijf gedeeld. Meer hierover lees je in ons
privacybeleid
.
Locatie
Trefwoorden
sociale woningbouw
demontabel
woningcorporatie
circulair
glulam
groene gevels
veldhoven
biobased
opschaalbaar bouwen
prefab
houtbouw
NBArchitecten
Neem contact op
Projectdata
Staat van realisatie
Voltooid
Start ontwerpproces
2018
Start bouw
2023
Oplevering
2024
Ingebruikname
2024
Plaats
Veldhoven
Meewerkende partijen
Architect
NBArchitecten
Projectarchitect
Hans van Houtum
Opdrachtgever
Woonstichting 'thuis
Aannemer
BAM Wonen Zuid Eindhoven
Adviseur bouwfysica
DGMR
Leveranciers
Overig
Häring AG (houtbouwsysteem)
Neem contact op met
NBArchitecten
Je bent momenteel niet ingelogd. Hierdoor is het alleen mogelijk om meer informatie per e-mail op te vragen. Wil je liever gebeld worden of documentatie per post ontvangen?
Klik dan hier om in te loggen
.
Heb je nog geen account?
Maak dan hier een gratis account aan
.
Voornaam
Achternaam
E-mailadres
Opmerkingen
Bij iedere aanvraag worden relevante gegevens van jou gedeeld met het betreffende bedrijf. Meer hierover lees je in ons
privacybeleid
.
Ja, denk met me mee rond de
materialisering van mijn project
Meer projecten van NBArchitecten
Herbestemming Nazarethkapel Best
NBArchitecten
NewCold
NBArchitecten
Herbestemming Nazarethkapel Best
NBArchitecten
NewCold
NBArchitecten
Toon alles
Andere Projecten
Hoofdkantoor We Enable Climbers
Intermontage B.V.
Renovatie met respect voor oorspronkelijke ontwerp
Caparol
Center Parcs De Vossemeren
Alprokon
SPOT belooft Lelystad bruisend centrumgebied
GROOSMAN
ITO Toren Amsterdam
Van Wylick
Waalstaete Arnhem
opZoom architecten
Natuurlijk modern bedrijfsgebouw
HUIBERS bureau voor architectuur
Overbos Arnhem
opZoom architecten
parkeerdak Air Offices
Van Wylick
Øbro-Hallen
VELUX Commercial Benelux B.V.
The Valley
Van Wylick
Wonderwoods
Van Wylick
Ga naar het projecten-overzicht
Voor een optimale gebruikservaring plaatst Architectenweb functionele cookies. Wat de verschillende cookies precies doen leggen we uit in een
overzicht
. Cookies van social media kun je optioneel
aanzetten
.
Akkoord
Instellingen
Annuleren
OK
Sluiten
Doorgaan
Inloggen
Maak een gratis persoonlijk account aan
Feedback
Feedback
Wij horen graag jouw feedback. Laat je reactie achter en eventueel jouw e-mail adres.
Reactie
Verstuur