Abonneer je nu op onze nieuwsbrieven!
Abonneren
Nee, bedankt
Ja, denk met me mee rond de
materialisering van mijn project
Producten
Tussen Waddenzee en Lauwersmeer
Copyright: De Architecten van Team 4
WEC in de haven van Lauwersoog
Copyright: Gerard van Beek
Gevel
Copyright: Gerard van Beek
Gevel
Copyright: Gerard van Beek
Circulaire lichtwerende lamellengevel
Copyright: Gerard van Beek
Panoramadak
Copyright: Niels Knelis
Panoramadak
Copyright: Niels Knelis
Panoramadak
Copyright: Niels Knelis
Uitzicht over waddenzee
Copyright: Niels Knelis
Buitentrap naar panoramadak
Copyright: Gerard van Beek
Buitenbaden
Copyright: Gerard van Beek
Zeehondenbad
Copyright: WEC
Zeehondenbad
Copyright: Stella Dekker
Ontvangsthal
Copyright: Gerard van Beek
Restaurant ontvangsthal
Copyright: Ewoud Rooks
Restaurant ontvangsthal
Copyright: Ewoud Rooks
Uitzicht over het wad vanuit expositie
Copyright: Gerard van Beek
Expositie met zicht naar zeehondenziekenhuis en buitenbaden
Copyright: Gerard van Beek
Expositie met zicht naar zeehondenziekenhuis en buitenbaden
Copyright: Gerard van Beek
Operatiekamer zichtbaar vanuit expositie
Copyright: Gerard van Beek
Laboratorium zeehondenziekenhuis
Copyright: Ewoud Rooks
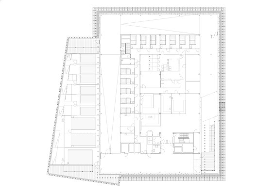
Plattegrond begane grond
Copyright: De Architecten van Team 4
Plattegrond eerste verdieping
Copyright: De Architecten van Team 4
Plattegrond tweede verdieping
Copyright: De Architecten van Team 4
Plattegrond daktuin
Copyright: De Architecten van Team 4
ProducttagsAANUIT

Nieuwbouw Werelderfgoedcentrum Waddenzee (WEC)

24 juni 2025
Daar waar het Lauwersmeergebied en de Waddenzee elkaar raken is op 25 april 2025 in Lauwersoog het Werelderfgoedcentrum Waddenzee (WEC)  geopend. Het ontwerp komt van de hand van het Deense architectenbureau Dorte Mandrup, in samenwerking met De Architecten van Team 4 uit Groningen als co-architect.

Het gebouw is geen alledaags bezoekerscentrum, maar een echte ode aan het als UNESCO werelderfgoed bestempelde landschap. Het buitendijks gelegen gebouw fungeert als ‘werkplaats van de Wadden’ waarin zeehondenzorg, wetenschappelijk onderzoek, educatie, natuurbescherming en innovatie gecombineerd worden in één iconisch gebouw. Centraal in het gebouw ligt de nieuwe huisvesting van het voormalige zeehondencentrum Pieterburen. Vanuit de entreehal op de begane grond volgen bezoekers een spiraalvormige expositieroute omhoog. De tentoonstelling vertelt het verhaal waarin de wisselwerking tussen mens en natuur centraal staat. Direct zicht naar de ruimten van het zeehondenziekenhuis in het hart van het gebouw wordt gecombineerd met steeds wisselende vergezichten richting de unieke natura 2000 landschappen die het gebouw omringen. Vanaf de daktuins boven op het gebouw opent zich voor de bezoekers een adembenemend panoramisch uitzicht op de Waddenzee, Lauwersmeergebied, de havens en bij helder weer op Nationaal Park Schiermonnikoog.

Deze spiralende architectonische beweging, die ook terugkomt in de glooiende lijnen in de gevel, is geïnspireerd op het getij van de zee, een ritmische golf die de relatie tussen mens, landschap en ecologie tastbaar maakt. Een bescheiden gebouw waarin architectuur en landschap in elkaar overvloeien. De architectuur domineert niet, maar staat in dienst van het uitzichten op het omringende landschap. Vanuit elke hoek ontvouwt zich een andere blik op het omringende gebied. Door de vertaling van natuurlijke ritmes van het getij, de golven ende horizon leidend te maken in het ontwerp ontstaat een gelaagde architectuur die niet alleen functioneel is, maar ook poëtisch, geworteld in de locatie. Uniek in het ontwerp zijn de op de 2e verdieping gelegen buitenbaden, waar de opgevangen zeehonden worden voorbereid op terugkeer naar de Waddenzee. Een speciale waterzuiveringsinstallatie filtert zeewater dat rechtstreeks uit de Waddenzee komt. Zo kunnen de zeehonden herstellen in een omgeving die hun natuurlijke habitat zo dicht mogelijk benadert.

De visie van het WEC om bezoekers bewust te maken van hun rol in de natuur en te stimuleren tot een gezonde balans tussen mens en natuur, vindt ook zijn vertaling in een duurzaam gebouwontwerp. Hierin is ervoor gekozen om waar mogelijk materiaalgebruik te beperken. Zo zijn de gevlinderde constructieve druklagen van de vloeren als eindafwerking gebruikt en zijn door weglaten van systeemplafonds de akoestisch absorberende panelen van gerecycled textiel in het zicht gelaten. De uitstraling is misschien wat rauwer dan men gewend is, maar juist daardoor vertelt het gebouw een krachtig duurzaam verhaal, dat terugkomt in de materialisering van zowel het interieur als het exterieur. De robuuste uitstraling past bij het ruige karakter van het omringende landschap. De gevel is bekleed met verduurzaamd vurenhout en rondom het gebouw is het kenmerkende lamellenscherm gemaakt door hergebruik van meer dan 200 verzaagde dukdalven, die al 50 jaar in de haven van Kiel in het water hebben gestaan. Dit filter van houten lamellen voorkomt dat het gasloze gebouw te veel opwarmt door invallend zonlicht en beperkt tegelijk lichtvervuiling naar buiten toe, wat in een “Dark-Sky gebied onwenselijk is.

Met de opening van het centrum heeft noord nederland een nieuw architectonisch icoon gekregen. Het Werelderfgoedcentrum Waddenzee brengt natuur, recreatie, onderwijs en onderzoek samen, en toont hoe architectuur kan bijdragen aan een brede maatschappelijke opgave: het vergroten van natuur- en klimaatbewustzijn, het versterken van regionale identiteit en het verbinden van mensen met het landschap waarin zij leven.

Stel jezelf kort voor! Dan weet het betreffende bedrijf wie hun model gedownload heeft.
Wil je niet bij elke download jouw gegevens in hoeven voeren?
Klik dan hier om in te loggen.

Heb je nog geen account? Maak dan hier een gratis account aan.
Voornaam
Achternaam
E-mailadres
Downloaden
Wanneer je modellen downloadt op Architectenweb.nl worden relevante gegevens van jou – zoals jouw naam en e-mailadres – met het betreffende bedrijf gedeeld. Meer hierover lees je in ons privacybeleid.

Locatie

Neem contact op met De Architecten van Team 4

Je bent momenteel niet ingelogd. Hierdoor is het alleen mogelijk om meer informatie per e-mail op te vragen. Wil je liever gebeld worden of documentatie per post ontvangen? Klik dan hier om in te loggen.
Heb je nog geen account? Maak dan hier een gratis account aan.
Voornaam
Achternaam
E-mailadres
Opmerkingen
Bij iedere aanvraag worden relevante gegevens van jou gedeeld met het betreffende bedrijf. Meer hierover lees je in ons privacybeleid.
Ja, denk met me mee rond de
materialisering van mijn project

Meer projecten van De Architecten van Team 4

Gerelateerde producten

ATAG Nederland
KUBUS | Specialist in Archicad
SAPA
Reynaers Aluminium Nederland
Jansen
SAB-profiel bv
Aliplast Aluminium Systems
Kingspan Light & Air
ALUCOBOND®
Caparol
Tarkett BV
Kawneer
Grohe Nederland B.V.
Malaysian Timber Council
OCS | Office Cabling Systems
Swisspearl Nederland
Forster Nederland N.V.
VELUX Commercial Benelux B.V.
Sempergreen
Houthandel van Dam
Aluprof Nederland BV
QbiQ Wall Systems
Forbo Flooring
Schüco Nederland
Cedral
Sto Isoned bv
Triflex bv
Gorter Luiken BV
wienerberger
DUCO Ventilation & Sun Control
BEWI IsoBouw
ROCKWOOL B.V.
Mview+
Rockfon (ROCKWOOL B.V.)
Gira Nederland B.V.
Kingspan Geïsoleerde Panelen
GEZE Benelux  B.V.
Renson
Metaglas Groep
ABB | Busch-Jaeger
Jung | Hateha B.V.
Knauf B.V.
Saint-Gobain Glass Benelux
Faay Vianen B.V.
objectflor
Boon Edam Nederland B.V.
Hunter Douglas Architectural
VOLA Nederland BV
Forbo Eurocol Nederland B.V.
EQUITONE gevelpanelen
Holonite B.V.
Tata Steel Colorcoat®
Architectenweb
Over ons
Contact

© 2002 - 2026 Architectenweb BV / Voorwaarden / Privacy / Disclaimer / Sitemap
Annuleren
OK
Sluiten
Doorgaan
Inloggen
Maak een gratis persoonlijk account aan