Projecten
Producten
Bedrijven
Vacatures
Agenda
Awards
Podcasts
more_horiz
Videos
Magazine
Thema's
Favorieten
Profiel
Uitloggen
Nieuw
Populair
Toon alles
Architectenweb magazine #14
Architectenweb magazine #13
Publieke gebouwen
Architectenweb magazine #12
Kantoren
Architectenweb magazine #11
Scholen
Architectenweb magazine #10
Zorg
Architectenweb magazine #14
Architectenweb magazine #10
Zorg
Architectenweb magazine #12
Kantoren
Architectenweb magazine #13
Publieke gebouwen
Architectenweb magazine #6
Transformatie en Renovatie
Om direct naar je favorieten te kunnen gaan is het nodig om eerst in te loggen.
Nieuw
Architectenweb Awards 2025
Architectenweb Awards 2024
Architectenweb Awards 2023
Architectenweb Awards 2022
Architectenweb Awards 2021
Architectenweb Awards 2020
Architectenweb Awards 2019
Architectenweb Awards 2018
Om direct naar je favorieten te kunnen gaan is het nodig om eerst in te loggen.
Nieuw
Populair
Favorieten
Toon alles
Vakwerk Architecten
Nominatie voor de prijs voor Architect van het Jaar 2025
Sanne van Manen
Nominatie voor de prijs voor Architect van het Jaar 2025
KSA
Nominatie voor de prijs voor Architect van het Jaar 2025
KRFT
Nominatie voor de prijs voor Architect van het Jaar 2025
Joost Ector
Nominatie voor de prijs voor Architect van het Jaar 2025
Prijsuitreiking Architectenweb Awards 2024
Impressie van een feestelijke avond
Martens, Willems & Humblé Architecten
Nominatie voor de prijs voor Architect van het Jaar 2024
Uitreiking van Architectenweb Awards 2020
Impressie van de prijsuitreiking via Zoom
De Zwarte Hond
Nominatie voor de prijs voor Architect van het Jaar 2024
Avond met De Zwarte Hond
Symposium
Om direct naar je favorieten te kunnen gaan is het nodig om eerst in te loggen.
Nieuw
Populair
Categorieën
Favorieten
Toon alles
Brandpreventie Academy BV
Cay Circulaire Keukens
Circulaire keukens en pantry's
Studio Kirsten Reith
Interieurontwerp
Studio175
Interieuradvies in regio Utrecht
Orange Automatic Doors
Indoorwrap
De specialist in Keukenwrappen
Cay Circulaire Keukens
Circulaire keukens en pantry's
Studio Kirsten Reith
Interieurontwerp
Studio175
Interieuradvies in regio Utrecht
Interior & Co
Indoorwrap
De specialist in Keukenwrappen
Orange Automatic Doors
Architecten
Architectuur
Mobiliteit en infrastructuur
Stedenbouw en landschapsarchitectuur
Leveranciers
Gevels
Daken
Ramen en deuren
Trappen, liften en balustrades
Binnenwanden
Vloeren
Plafonds
Verlichting
Sanitair
Projectinrichting
Installaties
Constructies
Buitenruimte
Software
Adviseurs
Bestekschrijvers
Bouwmanagement
Installatie adviseurs E
Bouwfysica
Calculators
Installatie adviseurs G/W
Bouwkundig tekenwerk
Constructeurs
Lichtadviseurs
Adviseur beveiliging
Juristen
Intermediairs, Payrolling
Aannemers
Overig
Presentatie
Instellingen / onderwijs
Overig
Om direct naar je favorieten te kunnen gaan is het nodig om eerst in te loggen.
Nieuw
Populair
Favorieten
Toon alles
Gesprek met Stephan Sliepenbeek over hoogbouw in Amstel III
Gesprek met Ellen van Bueren over gebiedsontwikkeling en hoogbouw
Gesprek met Ma Yansong over ontwerpen die emotie oproepen
Gesprek met Paul de Ruiter over innovatieve en duurzame hoogbouw
Gesprek met Pi de Bruijn over zijn ontwerpen voor de Tweede Kamer toen en nu
Gesprek met Ellen van Bueren over gebiedsontwikkeling en hoogbouw
Gesprek met Oresti Sarafopoulos over het ontwerpen van een kantoorgebouw met bijna geen installaties
Gesprek met Stijn Steenbakkers over verdichting en hoogbouw in Eindhoven
Gesprek met Pi de Bruijn over zijn ontwerpen voor de Tweede Kamer toen en nu
Gesprek met Paul de Ruiter over innovatieve en duurzame hoogbouw
Om direct naar je favorieten te kunnen gaan is het nodig om eerst in te loggen.
Nieuw
Populair
Categorieën
Favorieten
Toon alles
De energiemarkt revolutionair vernieuwen
Festivalterrein als inspiratie van dit kantoor
De antieke Agora als inspiratie voor een kantoor
Renovatieproject Ockenburghstraat
Aluminium kozijnen: de isolerende oplossing
Prinsenpark, Rotterdam
ASML Gebouw 3
IVY, Amsterdam
IKC De Brug
Houthavens, Amsterdam
Architectuur
Woningbouw
Zorg
Hotels
Restaurants en café’s
Winkels
Sportgebouwen
Culturele gebouwen
Overheidsgebouwen
Scholen
Kantoren
Bedrijfsgebouwen
Paviljoens en kunst
Overig
Mobiliteit en infrastructuur
Trein- en metrostations
Luchthavens
Busstations
Parkeergarages
Fietsparkeren
Wegen
Bruggen
Water
Energie
Tankstations en laadstations
Waterzuivering en afvalverwerking
Overig
Stedenbouw en landschapsarchitectuur
Regionale visies
Gebiedsvisies
Plannen stedelijk weefsel
Amusementsparken en dierentuinen
Lichtontwerpen
Openbare ruimte
Pleinen
Parken
Tuinen
Speelplaatsen
Uitkijktorens
Overige (bijv. begraafplaatsen)
Om direct naar je favorieten te kunnen gaan is het nodig om eerst in te loggen.
Nieuw
Populair
Categorieën
Favorieten
Toon alles
Control Track Versa
Langdurige flexibiliteit voor kantoren van de toekomst
Toegankelijkheid in de stad: klanktegels als gids
Een nieuwe dimensie in stadsontwerp: integreren van klank voor een inclusieve ervaring.
Dreentegel
Terug van weggeweest
Flux-totaalaanbod vraaggestuurde Renson WTW-ventilatie
Compacte wand- en plafondmontage voor alle debieten
Wie denkt er aan slopen tijdens bouwen?
Kies voor de toekomst, kies voor circulair isoleren!
Digital Prints
Meer mogelijkheden in gekleurd staal
Element+ H-I
Hout - Aluminium Elementgevel
Vierkante vluchtroutearmaturen voor grote ruimtes
Zichtbare veiligheid van alle kanten
GROHE Cubeo: kranen voor elke badkamer
Stijlvol en duurzaam design voor jarenlang plezier
Schüco Zonweringsysteem Integralmaster in FWS
Bescherming tegen zon, verblinding en privacy – verborgen en volledig geïntegreerd
Gevels
Gevelbekleding
Vliesgevels
Zonwering buiten
Isolatie
Gevelconstructies
Signing
Overig
Daken
Dakafwerkingen
Dakisolatie
Dakconstructies
Dakranden, dakgoten en HWA's
Dakramen
Lichtkoepels
Lichtstraten
Schoorstenen
Overig
Dakluiken
Ramen en deuren
Raam- en deursystemen / kozijnen
Vliesgevels
Hang- en sluitwerk
Beveiliging en luiken
Dorpels en vensterbanken
Lateien
Roosters
Glas
Dakramen
Dakkoepels
Lichtstraten
Zonwering buiten
Zonwering binnen
Buitendeuren
Binnendeuren
Postvakken en brievenbussen
Overig
Dakluiken
Trappen, liften en balustrades
Trappen
Roltrappen
Liften
Balustrades en hekwerken
Galerijen
Binnenwanden
Binnenwanden
Wandafwerking
Vloeren
Constructieve vloeren
Verhoogde vloeren
Vloerafwerkingen
Overig
Plafonds
Tegels
Lineair
Grill
Open en roosters
Naadloos
Eilanden en baffles
Plafondafwerkingen
Ophangsystemen
Overig
Klimaatplafonds
Verlichting
Binnenverlichting
Buitenverlichting
Sanitair
Kranen en douchesets
Wastafels
Douchewanden en douchebakken
Baden
Waterclosets
Accessoires
Overig
Projectinrichting
Stoelen
Banken
Tafels
Kasten
Balies
Vrijstaande wanden
Keukens
Accessoires
Overig
Cabines
Interieurbeplanting
Stoffering
Installaties
Verwarming, koeling en ventilatie
Elektrotechnische installaties
Schakelmateriaal
Domotica
Deurcommunicatie
Beveiliging
Liften
Onderhoudsinstallaties
Overig
Brandbeveiliging
Constructies
Draagconstructies
Funderingen en kelders
Overig
Brandbeveiliging
Buitenruimte
Bestratingen en verhardingen
Afwateringen
Terreinafscheidingen en geluidsschermen
Buitenmeubilair
Fietsparkeren
Terrassen
Terrasoverkappingen
Bruggen
Accessoires
Overig
Beplanting
Sport- en speeltoestellen
Software
Tekenen 2D
Modelleren 3D / BIM
Visualisatie / rendering
Parametrisch ontwerpen
Bouwfysica
Draagconstructie
Overig
Virtual Reality
Cloudoplossingen
Om direct naar je favorieten te kunnen gaan is het nodig om eerst in te loggen.
Nieuw
Populair
Favorieten
Toon alles
Zomerwandelingen Nieuwe Stad op Zondag 2025
Amsterdam
Prefab beurs - 7 t/m 9 oktober 2025
Brabanthallen 's-Hertogenbosch
Boekpresentatie en panelgesprek met Floor Milikowsky
Prins Hendrikkade 600, 1011 VX Amsterdam
Architects Table ’25: Lunch & Inspiratie in HAUT Amsterdam
ATAG LIVE – HAUT gebouw, Spaklerweg 10F, 1096 BA Amsterdam (tegenover metrostation Spaklerweg)
Inspiratiedag @ Sempergreen – Gevelgroen
Defensieweg 1, 3984 LR Odijk
Ontdek het seminarieprogramma van Architect@Work Amsterdam
De Kromhouthal, Gedempt Hamerkanaal 231, Amsterdam
Architects Table ’25: Lunch & Inspiratie in HAUT Amsterdam
ATAG LIVE – HAUT gebouw, Spaklerweg 10F, 1096 BA Amsterdam (tegenover metrostation Spaklerweg)
Boekpresentatie en panelgesprek met Floor Milikowsky
Prins Hendrikkade 600, 1011 VX Amsterdam
InterSolution 2026, dé netwerk- en vakbeurs voor zonne-energie
Flanders Expo (Hal 8) Maaltekouter 1 B - 9051 Gent / België
LIAG over duurzaamheid centraal in project
Online
Om direct naar je favorieten te kunnen gaan is het nodig om eerst in te loggen.
Nieuw
Toon alles
Design
Duurzaamheid
Gevel
Infrastructuur
Interieur
Kantoren
Leisure
Openbare ruimte
Publieke gebouwen
Scholen
Transformatie en Renovatie
Woningbouw
Zorg
Om direct naar je favorieten te kunnen gaan is het nodig om eerst in te loggen.
Nieuw
Populair
Toon alles
Junior Architect (NL/EN)
De Academie van Bouwkunst Amsterdam zoekt twee onderzoekers voor lectoraat
Site Practice zoekt medior architect met 3-6 jaar ervaring (Amsterdam)
DAT zoekt een BIM Modelleur (Revit)
stagiair bouwkunde Heerenveen
Meewerkend Voorman
Architect
Junior Architect gezocht!
Junior Ontwerper
Studio Nauta zoekt projectleider
wUrck zoekt junior Architect
Project Architect
Om direct naar je favorieten te kunnen gaan is het nodig om eerst in te loggen.
Producten
Het centrale hart van het gebouw verbindt alle ruimtes
Copyright: Peter Tijhuis
De nieuwe verbindende trap in het hart van het gebouw
Copyright: Peter Tijhuis
De townhall voor ontmoeten en nuttigen van eten en drinken
Copyright: Peter Tijhuis
Royale beplanting en comfortabele zitplekken in de townhall
Copyright: Peter Tijhuis
Genereuze openingen tussen de gebouwbeuken
Copyright: Peter Tijhuis
Geborgen werkplekken georiënteerd op de tuin
Copyright: Peter Tijhuis
Dynamische werkplekken aan het sociale hart
Copyright: Peter Tijhuis
Werken in het groen
Copyright: Peter Tijhuis
Geborgenheid in de open ruimte
Copyright: Peter Tijhuis
Verticale en horizontale verbindingen verenigen het gebouw
Copyright: Peter Tijhuis
Littekens worden gekoesterd, de constructie wordt blootgelegd.
Copyright: Peter Tijhuis
Overleggen aan de centrale vide
Copyright: Peter Tijhuis
Ondersteunende overlegruimtes langs de vide
Copyright: Peter Tijhuis
Warme natuurlijke tinten sluiten aan op het bestaande
Copyright: Peter Tijhuis
Een thuis van huis voor de medewerkers van Rewire
Copyright: Peter Tijhuis
Werkzones bieden comfort en geborgenheid
Copyright: Peter Tijhuis
Kleinschalige en karakteristieke werkzones
Copyright: Peter Tijhuis
Samenkomen onder balken van de voormalige dienstwoning
Copyright: Peter Tijhuis
Lichte maar geborgen ruimtes om te ontmoeten
Copyright: Peter Tijhuis
Welkom bij Rewire
Copyright: Peter Tijhuis
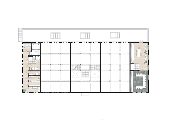
Indelingsplattegrond Begane grond
Copyright: up architecture
Indelingsplattegrond mezzanine
Copyright: up architecture
Indelingsplattegrond 1ste verdieping
Copyright: up architecture
Producttags
AAN
UIT
AI kantoor in monumentale Amstelstallen
16 juni
1
0
0
0
In het centrum van Amsterdam, in de voormalige paardenstallen van brouwerij Amstel, heeft up architecture een nieuw thuis ontworpen voor internationaal opererend AI bedrijf Rewire. Met respect voor de geschiedenis en het karakter van het monumentale pand zijn ingrijpende aanpassingen aan het casco gedaan om in het voormalig industriële gebouw een unieke en inspirerend werkomgeving te creëren waar ontmoeten, samenwerken en verbinding centraal staan.
In tegenstelling tot vroeger wordt tegenwoordig ontworpen op basis van flexibiliteit, wat zorgt dat veel gebouwen generiek worden en een hoge mate van anonimiteit hebben. Zoals veel industriële monumenten zijn de voormalige Amstelstallen functie specifiek ontworpen. De grootste uitdaging was de dwingende vorm en constructie van het gebouw; het pand is gebouwd als paardenstal en bestaat uit 5 niet-verbonden beuken. Door het creëren van een genereuze centrale vide met T-vormige trap en grote doorbraken in de tussenwanden is het gerenoveerde pand in staat om het nieuwe gebruik niet alleen te ondersteunen maar tegelijkertijd bij te dragen aan de toekomstige ontwikkeling van de gebruiker.
De Amstelstallen zijn Paris Proof; de monumentale schil is volledig gerestaureerd, en geïsoleerd. Het pand is voorzien van een duurzame installatie v.v. luchtwarmtepompen en vancoil units. Het gebouw is toekomstbestendig door de nieuwe structuur en ruimtelijke verbindingen. Er is gekozen voor circulaire en duurzame materialen. Hoogwaardige detaillering, maatwerk en meubilair maakt een representatief, tijdloos interieur. Royale beplanting geeft beschutting, gezondheid en verbinding met het park.
De verdiepingen verschillen sterk in karakter; op de 5m hoge BG dragen zware gemetselde muren en gietijzeren kolommen de betonnen vloer van de bovenverdieping, waar houten kolommen de houten dakconstructie ondersteunen. Door nieuwe materialen en kleuren hierop af te stemmen voelt de BG meer neutraal en contrastrijk en ligt de nadruk op dynamiek, maar biedt de verdieping warmte en geborgenheid. Het pand behoudt zijn geschiedenis; de littekens worden gekoesterd, de constructie wordt blootgelegd.
Tijdens het ontwerpproces was het zaak om de identiteit van het jonge en snelgroeiende Rewire te vangen en te vertalen in een ruimtelijk ontwerp en interieur. Waar branding gericht is op communicatie moet een interieur persoonlijkheid en karakter uitstralen. De vraag ‘hoe AI eruitziet’ en specifieker ‘hoe een AI-bedrijf eruit zou moeten zien’ was één aspect van de ontwerpuitdaging. Het andere aspect was het vastleggen van de ontwrichtende essentie van AI binnen een kader van duurzame ambachtelijkheid en historische diepgang.
Kunstmatige intelligentie maakte daarom ook deel uit van het ontwerpproces. Generatieve tools werden gebruikt om ruimtelijke ideeën te verkennen, maar dit leidde tot een essentiële inzicht: AI kan efficiënt inhoud genereren, maar mist gevoel voor context, identiteit en menselijke ervaring. De rol van de architect blijft cruciaal—niet als passieve redacteur, maar als actieve auteur die ideeën interpreteert en verrijkt om ze af te stemmen op het gebouw en zijn gebruikers.
Het resultaat is een zorgvuldig vormgegeven omgeving die het monumentale erfgoed van het gebouw in balans brengt met de snel veranderende aard van AI. Door de realiteit te verstoren en gebruikers te confronteren met de vraag wat echt is en wat niet, onderstreept het uiteindelijke ontwerp de waarde van menselijke tussenkomst—niet als passieve bewerker van AI-uitvoer, maar als kritische auteur die betekenis kan interpreteren, verfijnen en versterken. Het tijdloze karakter dat hierdoor ontstaat, positioneert Rewire als een onderscheidende speler binnen hun vakgebied.
Door de ruimtelijke transformatie en verduurzaming van het monumentale pand is een potentieel gecreëerd die de toekomstige gebruiksmogelijkheden van het voorheen monofunctionele gebouw enorm heeft verhoogd. Het openen van de voorheen gesloten gevels en het activeren van de buitenruimte op de BG en het terras zorgt het vernieuwde pand voor diversiteit en levendigheid van de omgeving en verbeterd de bruikbaarheid en draagt het in grote mate bij aan de doelen van Rewire en toekomstige gebruikers.
Stel jezelf kort voor! Dan weet het betreffende bedrijf wie hun model gedownload heeft.
Wil je niet bij elke download jouw gegevens in hoeven voeren?
Klik dan hier om in te loggen
.
Heb je nog geen account?
Maak dan hier een gratis account aan
.
Voornaam
Achternaam
E-mailadres
Downloaden
Wanneer je modellen downloadt op Architectenweb.nl worden relevante gegevens van jou – zoals jouw naam en e-mailadres – met het betreffende bedrijf gedeeld. Meer hierover lees je in ons
privacybeleid
.
Locatie
Trefwoorden
activiteit gerelateerd werken
transformatie
interieur architectuur
monument
ai
interieur
paris proof
up architecture
Neem contact op
Projectdata
Staat van realisatie
Voltooid
Start ontwerpproces
2023
Start bouw
2024
Oplevering
2025
Ingebruikname
2025
Plaats
Amsterdam
Bruto m
2
2500
Netto m
2
1800
Meewerkende partijen
Architect
up architecture
, Cruz y Ortiz Arquitectos
Interieurarchitect
up architecture
Projectarchitect
Anne Boonstra
Ontwerpteam
Martina Kocsisova, Yildez Veldhuis
Opdrachtgever
Rewire
Aannemer
Bouwbedrijf van Schaik
Constructeur
Duyts Bouwconstructies bv
Fotograaf
Peter Tijhuis
Projectmanagement
DEV real estate
Adviseur installaties E
Bakkum Elektrotechniek
Adviseur installaties W
ImPro techniek
Adviseur akoestiek
LBP Sight
Adviseur brandveiligheid
LBP Sight
Adviseur licht
Studio Rublek
Interieurbouwer
Zwartwoud B.V.
Leveranciers
Systeemwanden
Aluwdoors
Signing
Groeneveld
Akoestische wandpanelen
KVADRAT
Beplanting
Zuidkoop
Vloeren
FTR8
Constructieve elementen en stalen trap
De Wilde metaal
Los meubilair
Desque
Neem contact op met
up architecture
Je bent momenteel niet ingelogd. Hierdoor is het alleen mogelijk om meer informatie per e-mail op te vragen. Wil je liever gebeld worden of documentatie per post ontvangen?
Klik dan hier om in te loggen
.
Heb je nog geen account?
Maak dan hier een gratis account aan
.
Voornaam
Achternaam
E-mailadres
Opmerkingen
Bij iedere aanvraag worden relevante gegevens van jou gedeeld met het betreffende bedrijf. Meer hierover lees je in ons
privacybeleid
.
Ja, denk met me mee rond de
materialisering van mijn project
Meer projecten van up architecture
Andere Projecten
Festivalterrein als inspiratie van dit kantoor
Tétris Design & Build
De energiemarkt revolutionair vernieuwen
Tétris Design & Build
De antieke Agora als inspiratie voor een kantoor
Tétris Design & Build
Renovatieproject Ockenburghstraat
Caparol
Aluminium kozijnen: de isolerende oplossing
Aliplast Aluminium Systems
Houten huis in de polder - WaxedWood Gold Color
Foreco Houtproducten
FÆnslet
VELUX Commercial Benelux B.V.
Den Hartogh Basecamp
Schüco Nederland BV
Werkplekken met verhoogd risico - Laboratoria
INOTEC Noodverlichting B.V.
Exclusieve wooneenheden
SAPA
Duurzaam afvalmanagement in nieuwbouw van Alrijne
Stansz
Woningen op BEFU terrein Utrecht
SAB-profiel bv
Ga naar het projecten-overzicht
Voor een optimale gebruikservaring plaatst Architectenweb functionele cookies. Wat de verschillende cookies precies doen leggen we uit in een
overzicht
. Cookies van social media kun je optioneel
aanzetten
.
Akkoord
Instellingen
Annuleren
OK
Sluiten
Doorgaan
Inloggen
Maak een gratis persoonlijk account aan
Feedback
Feedback
Wij horen graag jouw feedback. Laat je reactie achter en eventueel jouw e-mail adres.
Reactie
Verstuur