Projecten
Producten
Bedrijven
Vacatures
Agenda
Awards
Podcasts
more_horiz
Videos
Magazine
Favorieten
Profiel
Uitloggen
Abonneer je nu op onze nieuwsbrieven!
Abonneren
Nee, bedankt
Ja, denk met me mee rond de
materialisering van mijn project
Producten
gebouw Y en Z (fase 2)
Copyright: Shift architecture urbanism
woonhof met gebouw Y en Z (fase 2)
Copyright: Shift architecture urbanism
toegang woonhof met gebouw Z en W (fase 2)
Copyright: Shift architecture urbanism
woonhof fase 2 (fase 2)
Copyright: Shift architecture urbanism
kopgevel gebouw Y (fase 2)
Copyright: Shift architecture urbanism
kop- en langsgevel tuinzijde gebouw Y (fase 2)
Copyright: Shift architecture urbanism
gebouw X en Y vanuit kloostertuin
Copyright: Shift architecture urbanism
kopgevel gebouw X (fase 1)
Copyright: Shift architecture urbanism
langsgevel tuinzijde gebouw X
Copyright: Shift architecture urbanism
hof gebouw X (fase 1)
Copyright: Shift architecture urbanism
hof gebouw X (fase 1)
Copyright: Shift architecture urbanism
algemene verkeersruimte gebouw Z (fase 2)
Copyright: Shift architecture urbanism
algemene verkeersruimte gebouw X (fase 1)
Copyright: Shift architecture urbanism
interieur appartement gebouw Y (fase 2)
Copyright: Shift architecture urbanism
loggia gebouw Y (fase 2)
Copyright: Shift architecture urbanism
interieur appartement gebouw X (fase 1)
Copyright: Shift architecture urbanism
situatie
Copyright: Shift architecture urbanism
axo situatie
Copyright: Shift architecture urbanism
axo ensemble
Copyright: Shift architecture urbanism
visualisatie luchtbeeld
Copyright: Shift architecture urbanism
fasering
Copyright: Shift architecture urbanism
gevels
Copyright: Shift architecture urbanism
plattegrond gebouw X (fase 1)
Copyright: Shift architecture urbanism
plattegrond appartement gebouw X (fase 1)
Copyright: Shift architecture urbanism
plattegrond gebouw Y en Z (fase 2)
Copyright: Shift architecture urbanism
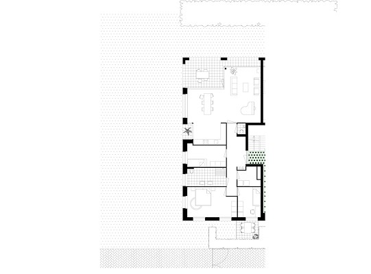
plattegrond appartement gebouw Y (fase 2)
Copyright: Shift architecture urbanism
plattegrond appartement gebouw Z (fase 2)
Copyright: Shift architecture urbanism
Producttags
AAN
UIT
Transformatie kloostercomplex Oude Dijk, fase 2
18 juni 2024
1
0
0
0
De opgave behelst de transformatie van kloostercomplex in Tilburg tot een nieuw binnenstedelijk woongebied in het groen. Het masterplan door Shift geeft gefaseerd vorm aan een ensemble van oud en nieuw waarin zorgtoegankelijke huisvesting voor de Zusters van Liefde (fase 1) samengaat met koopwoningen voor mensen die graag in alle rust midden in de stad wonen (fase 2). Het stedenbouwkundige concept borduurt voort op de typologie van de hofbebouwing zoals die terug te vinden is in de voortdurende ontwikkeling van het kloostercomplex sinds haar stichting in 1843.
Bestaande en nieuwe gebouwen vormen samen een serie van nieuwe hoven aan de randen van de kloostertuin, elk met een eigen karakter, functie, mate van geslotenheid en mix van bewoners. De nieuwe hoven openen het complex richting de stad zonder het besloten karakter van de kloostertuin, een groene oase midden in de stad, geweld aan te doen.
De nieuwe bouwvolumes nemen de hoogte en korrelgrootte van het bestaande complex over. De stedenbouwkundige figuur die de nieuwe bouwvolumes samen met de bestaande bouwdelen maakt, geeft de heldere vorm van de hoven en tuinen voorrang boven die van de losse gebouwen. De gebouwen zijn dan ook niet zo zeer als solitaire bouwdelen vormgegeven, maar eerder als wanden die duidelijk herkenbare hoven en tuinkamers definiëren.
Ook de sobere en subtiel gedifferentieerde baksteenarchitectuur voegt zich naar de historische context. Zij neemt elementen over van het historische kloostercomplex zonder te vervallen in retro-architectuur. Hierdoor ontstaat een gedifferentieerd geheel als een familie van gebouwen met meerdere generaties die wel hun DNA delen maar tegelijkertijd ook hun eigen karakter hebben.
Alle gevels zijn, conform het masterplan, ieder op een eigen manier uitgewerkt, afhankelijk van de collectieve buitenruimte die zij definiëren en de gevels van de bestaande gebouwen die het kader mede vormgeven. Dit geldt zowel voor de raamverdeling en manier waarop de private buitenruimtes zijn vormgegeven als de detaillering van het metselwerk, de raamneggen en de kozijnen. Wat alle gevels gemeen hebben is de uitvoering in traditioneel metselwerk met dezelfde wasserstrich baksteen met lichte voegen die de tekening van de verschillende metselwerk verbanden versterkt.
Het langgerekte woongebouw van fase 1 werd in 2019 opgeleverd. Zij bevat 36 zorgtoegankelijke appartementen voor de Zusters, vormt een begrenzing van de kloostertuin en creëert twee nieuwe hoven: een gesloten hof tussen het appartementengebouw en de woonzorgvoorziening en een open hof richting de stad.
Het noord-zuid georiënteerde woongebouw van fase 2 kent een brede middencorridor met entreenissen en daglicht waaraan 36 relatief compacte en betaalbare driekamerwoningen zijn gesitueerd. De corridor kent een kloostersfeer door de toepassing van betonsteen met grove structuur die de akoestiek oplost zonder gebruik te hoeven maken van het gebruikelijke vloertapijt. De appartementen zijn voorzien van ruime balkons die deels inpandig en deels uitstekend zijn. Hierdoor krijgen zij langdurig zonlicht en kan er tegelijkertijd beschut worden verbleven.
Het oost-west georiënteerde volume van fase 2 wordt ontsloten via een drietal portieken met daaraan twee luxe appartementen per vloer, één met standaard vier kamers en één met standaard drie kamers. De voor woningbouw zeer forse beukmaat van 8,6m die in één keer wordt overspannen geeft de bewoners veel indelingsvrijheid. Dit heeft er in geresulteerd dat alle 24 appartementen een unieke plattegrond hebben in dit woongebouw. De op zuid georiënteerde tuingevel kent een volledig beglaasde tweede gevel die verdiept ligt achter het metselwerk. Hierdoor wordt er volop genoten van de kloostertuin zonder dat deze wordt toegeëigend. Het wonen doet hier als het ware een stapje terug uit respect voor de meest dierbare plek van de zusters, de kloostertuin.
Naast de drie nieuwe woongebouwen maakte Shift tevens het ontwerp voor de renovatie van de bestaande west- en oostvleugel uit de jaren tachtig van de vorige eeuw. Door de sloop van de middenvleugel kregen deze twee vleugels ieder een nieuwe entree. Daarnaast werden alle woningen levensloopbestendig gemaakt en kregen beide vleugels extra woningen in de vorm van opbouwen met nieuwe appartementen.
Stel jezelf kort voor! Dan weet het betreffende bedrijf wie hun brochure gedownload heeft.
Wil je niet bij elke download jouw gegevens in hoeven voeren?
Klik dan hier om in te loggen
. Heb je nog geen account?
Maak dan hier een gratis account aan
.
Voornaam
Achternaam
E-mailadres
Downloaden
Wanneer je brochures downloadt op Architectenweb.nl worden relevante gegevens van jou – zoals jouw naam en e-mailadres – met het betreffende bedrijf gedeeld. Meer hierover lees je in ons
privacybeleid
.
Wanneer je brochures downloadt op Architectenweb.nl worden relevante gegevens van jou – zoals jouw naam en e-mailadres – met het betreffende bedrijf gedeeld. Meer hierover lees je in ons
privacybeleid
.
Brochure
Stel jezelf kort voor! Dan weet het betreffende bedrijf wie hun model gedownload heeft.
Wil je niet bij elke download jouw gegevens in hoeven voeren?
Klik dan hier om in te loggen
.
Heb je nog geen account?
Maak dan hier een gratis account aan
.
Voornaam
Achternaam
E-mailadres
Downloaden
Wanneer je modellen downloadt op Architectenweb.nl worden relevante gegevens van jou – zoals jouw naam en e-mailadres – met het betreffende bedrijf gedeeld. Meer hierover lees je in ons
privacybeleid
.
Locatie
Shift architecture urbanism
Neem contact op
Projectdata
Staat van realisatie
Voltooid
Start ontwerpproces
2019
Start bouw
2021
Oplevering
2023
Ingebruikname
2023
Plaats
Tilburg
Bruto m
2
11000
Netto m
2
9500
m
3
33000
Meewerkende partijen
Architect
Shift architecture urbanism
Interieurarchitect
Shift architecture urbanism
Projectarchitect
Harm Timmermans
Ontwerpteam
Harm Timmermans, Pieter Heymans, Oana Rades, Thijs van Bijsterveldt, Zoe Renaud Drouin, Raymond van den Broek, Hans Hoogenboom
Opdrachtgever
Van der Weegen Bouwontwikkeling
Aannemer
Van Gisbergen (fase 1) Huybrecht Relou (fase 2)
Constructeur
Goudstikker de Vries
Adviseurs installaties E & W
Visietech
Fotograaf
Rene de Wit
Interieurontwerper
Shift architecture urbanism
Stedenbouwkundige
Shift architecture urbanism
Landschapsarchitect
MTD landschapsarchitecten
Leveranciers
Overig
Bia Beton B.V.,
Renson
,
Mosa.
,
Zoontjens
Gevelbekleding
wienerberger
Neem contact op met
Shift architecture urbanism
Je bent momenteel niet ingelogd. Hierdoor is het alleen mogelijk om meer informatie per e-mail op te vragen. Wil je liever gebeld worden of documentatie per post ontvangen?
Klik dan hier om in te loggen
.
Heb je nog geen account?
Maak dan hier een gratis account aan
.
Voornaam
Achternaam
E-mailadres
Opmerkingen
Bij iedere aanvraag worden relevante gegevens van jou gedeeld met het betreffende bedrijf. Meer hierover lees je in ons
privacybeleid
.
Ja, denk met me mee rond de
materialisering van mijn project
Meer projecten van Shift architecture urbanism
Domus Houthaven
Shift architecture urbanism
Gerelateerde producten
Gevelbakstenen
Laat je gevel spreken: authentiek, veelzijdig en tijdloos
wienerberger
Andere Projecten
Vliesgevel screens Netceed kantoorgebouw
Renson
DEZA Kozijnen - Heerhugowaard
DUCO Ventilation & Sun Control
Passiefwoning met geïntegreerde vouwhefluiken
Artino
Villa Oegstgeest
Station-D Architects
Project Safestore Amersfoort
Dupral B.V.
Stalen uitbouw aan de Amsterdamse grachtengordel
Perfect View Windows
0739 Bornerveld – zuidwijk Rotterdam
Zijdekwartier architecten bv
Kantoor Apollolaan 171 Amsterdam
Boon Edam Nederland B.V.
Villa Madestein
Station-D Architects
Gevelprofielen appartementencomplex Wisselspoor
Storax
Skistation Monte Zoncolan
SSAB Swedish Steel BV
Duurzaam maatwerk voor Hogeschool Rotterdam
Mapro
Ga naar het projecten-overzicht
Voor een optimale gebruikservaring plaatst Architectenweb functionele cookies. Wat de verschillende cookies precies doen leggen we uit in een
overzicht
. Cookies van social media kun je optioneel
aanzetten
.
Akkoord
Instellingen
Annuleren
OK
Sluiten
Doorgaan
Inloggen
Maak een gratis persoonlijk account aan
Feedback
Feedback
Wij horen graag jouw feedback. Laat je reactie achter en eventueel jouw e-mail adres.
Reactie
Verstuur