Projecten
Producten
Bedrijven
Vacatures
Agenda
Awards
Podcasts
more_horiz
Videos
Magazine
Thema's
Favorieten
Profiel
Uitloggen
Abonneer je nu op onze nieuwsbrieven!
Abonneren
Nee, bedankt
Ja, denk met me mee rond de
materialisering van mijn project
Producten
Copyright: SHARP Architects
Copyright: SHARP Architects
Copyright: SHARP Architects
Copyright: SHARP Architects
Copyright: SHARP Architects
Copyright: SHARP Architects
Copyright: SHARP Architects
Copyright: SHARP Architects
Producttags
AAN
UIT
Adding square meters and light
28 mei 2024
0
0
0
0
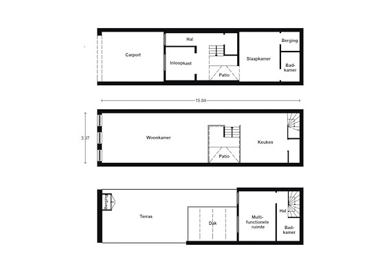
This house is located in a relatively new residential area in the former Amsterdam Docklands It is a terraced house with a patio consisting of 3 floors and a rooftop garden.
The client wished to change the floorplan, functions and layout within the house, to create more space and allow more light into the interior.
The house has only windows in the front façade. To allow more daylight, the closed shaft was opened up and fitted with stairs allowing more space and creating an inner courtyard, filled with daylight. An interior floor plan without walls gives a sense of openness and freshness.
Stel jezelf kort voor! Dan weet het betreffende bedrijf wie hun brochure gedownload heeft.
Wil je niet bij elke download jouw gegevens in hoeven voeren?
Klik dan hier om in te loggen
. Heb je nog geen account?
Maak dan hier een gratis account aan
.
Voornaam
Achternaam
E-mailadres
Downloaden
Wanneer je brochures downloadt op Architectenweb.nl worden relevante gegevens van jou – zoals jouw naam en e-mailadres – met het betreffende bedrijf gedeeld. Meer hierover lees je in ons
privacybeleid
.
Wanneer je brochures downloadt op Architectenweb.nl worden relevante gegevens van jou – zoals jouw naam en e-mailadres – met het betreffende bedrijf gedeeld. Meer hierover lees je in ons
privacybeleid
.
Brochure
Stel jezelf kort voor! Dan weet het betreffende bedrijf wie hun model gedownload heeft.
Wil je niet bij elke download jouw gegevens in hoeven voeren?
Klik dan hier om in te loggen
.
Heb je nog geen account?
Maak dan hier een gratis account aan
.
Voornaam
Achternaam
E-mailadres
Downloaden
Wanneer je modellen downloadt op Architectenweb.nl worden relevante gegevens van jou – zoals jouw naam en e-mailadres – met het betreffende bedrijf gedeeld. Meer hierover lees je in ons
privacybeleid
.
Locatie
Trefwoorden
borneo eiland
amsterdam
interieur ontwerp
SHARP Architects
Neem contact op
Projectdata
Staat van realisatie
Voltooid
Start ontwerpproces
2020
Start bouw
2021
Oplevering
2021
Plaats
Amsterdam
Meewerkende partijen
Architect
Elton Hoxhallari
Interieurarchitect
Emi Marko
Opdrachtgever
Particulair
Aannemer
Logic bouw
Fotograaf
Altin Kaftira
Leveranciers
Overig
Badkamerwinkel.nl Amsterdam
Neem contact op met
SHARP Architects
Je bent momenteel niet ingelogd. Hierdoor is het alleen mogelijk om meer informatie per e-mail op te vragen. Wil je liever gebeld worden of documentatie per post ontvangen?
Klik dan hier om in te loggen
.
Heb je nog geen account?
Maak dan hier een gratis account aan
.
Voornaam
Achternaam
E-mailadres
Opmerkingen
Bij iedere aanvraag worden relevante gegevens van jou gedeeld met het betreffende bedrijf. Meer hierover lees je in ons
privacybeleid
.
Ja, denk met me mee rond de
materialisering van mijn project
Meer projecten van SHARP Architects
A family house in a quiet and green environment.
SHARP Architects
Spacious villa with flexible layout
SHARP Architects
Duurzame metamorfose tot modernistische villa
SHARP Architects
Brightness in terraced house
SHARP Architects
A family house in a quiet and green environment.
SHARP Architects
Spacious villa with flexible layout
SHARP Architects
Duurzame metamorfose tot modernistische villa
SHARP Architects
Brightness in terraced house
SHARP Architects
Toon alles
Andere Projecten
Campus Sportief Besteed Groep — Wubben.Chan
Wubben.Chan architecten
BDO kantoor Breda
ULMA Architectural Solutions
Toegangscontrole op een dynamisch terrein
Heras
Biobased bouwen naast Natura 2000-gebied
KUBUS | Specialist in Archicad
5Tracks - inspirerende atriums met JUNG
Jung | Hateha B.V.
Totaalrealisatie nieuwe kantoorlocatie A. Vogel
Intermontage B.V.
Sweco Wonderwoods — Duurzame kantoorinrichting
Hal2
Gare Maritime, Brussel
WEBO
De transformatie van de Lintveldebrink
Grohe Nederland B.V.
Sweco WTC Den Haag — Duurzame kantoorinrichting
Hal2
Uitbreiding Hotel Martin's Klooster, Leuven
OWA Benelux - Akoestiek & Design
RVS plinten kantoor Moore DRV
Storax
Ga naar het projecten-overzicht
Voor een optimale gebruikservaring plaatst Architectenweb functionele cookies. Wat de verschillende cookies precies doen leggen we uit in een
overzicht
. Cookies van social media kun je optioneel
aanzetten
.
Akkoord
Instellingen
Annuleren
OK
Sluiten
Doorgaan
Inloggen
Maak een gratis persoonlijk account aan
Feedback
Feedback
Wij horen graag jouw feedback. Laat je reactie achter en eventueel jouw e-mail adres.
Reactie
Verstuur