Projecten
Producten
Bedrijven
Vacatures
Agenda
Awards
Podcasts
more_horiz
Videos
Magazine
Thema's
Favorieten
Profiel
Uitloggen
Abonneer je nu op onze nieuwsbrieven!
Abonneren
Nee, bedankt
Ja, denk met me mee rond de
materialisering van mijn project
Producten
Hoofdgevel van de villa met uitgebreide beglazing en rijke materiaalkeuze.
Copyright: Storm Architects
Villa-entree via de glazen deur met parkeergelegenheid onder het imposante afdak.
Copyright: Storm Architects
De woonkamer strekt zich uit naar het enorme open terras met uitzicht op de rivier.
Copyright: Storm Architects
Vrijstaand zwembad met een oneindige rand die visueel samensmelt met het rivieroppervlak.
Copyright: Storm Architects
Terras van de hoofdslaapkamer is privé en biedt tegelijkertijd prachtig uitzicht op de omgeving.
Copyright: Storm Architects
Keurig groen gazon voor het huis verandert in een dichte wand van dennenbos op de achtergrond.
Copyright: Storm Architects
Het gebied voor het huis blijft open om het uitzicht te maximaliseren, met diverse functionele zones
Copyright: Storm Architects
Informeel gebied achter het huis met een grote eetruimte en een speeltuin voor kinderen.
Copyright: Storm Architects
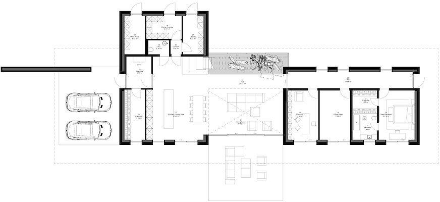
Begane grond plattegrond
Copyright: Storm Architects
Eerste verdieping plattegrond
Copyright: Storm Architects
Axonometrische doorsnede door de begane grond
Copyright: Storm Architects
Axonometrische doorsnede door de eerste verdieping
Copyright: Storm Architects
Producttags
AAN
UIT
Exclusieve villa aan de waterkant Storm Architects
16 januari 2024
1
0
0
0
Onze opdracht was om een uitzonderlijke woning te creëren voor een gezin, gelegen in een rustig dennenbos langs de rivier. Het moderne en minimalistische huis maakt gebruik van natuurlijke materialen die harmoniëren met de omgeving.
De architecturale visie draait om twee grote volumes verbonden door een lichte woonruimte en een overkapping. Deze overkapping biedt niet alleen een visueel aantrekkelijk profiel, maar dient ook praktische doeleinden, zoals schaduw op de begane grond en privacy voor de slaapkamers op de bovenverdieping.
Veel beglazing zorgt voor een harmonieuze overgang tussen binnen en buiten. Kleine, diepe ramen op de begane grond benadrukken stevigheid, terwijl grotere ramen op de bovenverdieping een lichtere sfeer creëren.
Belangrijk was voldoende natuurlijk daglicht met behoud van privacy. Het huis is parallel aan de rivier georiënteerd, met direct uitzicht op het water vanuit slaapkamers en hoofdruimtes.
Twee zichtassen doorkruisen het huis, waarbij de lengteas functionele gangen verbindt en de dwarsas een grote woonkamer herbergt. Het unieke kenmerk van lange en smalle ruimtes tegenover brede en hoge ruimtes zorgt voor een boeiende ervaring.
Het hoofdvolume is strategisch achteraan geplaatst, waardoor het pand wordt verdeeld in verschillende zones met diverse functies. De voortuin omvat een open grasveld, een zandstrand, een overloopzwembad en meer. De achtertuin biedt een gezellige setting met torenhoge bomen.
Materiaalkeuze combineert elegantie en functionaliteit, met basaltpanelen op de begane grond en thermo-essenhout op de bovenverdieping. De overkapping is van staal, en vloeren zijn afgewerkt met licht travertijn voor comfort in zonlicht.
Duurzaamheidsaspecten omvatten behoud van bestaande bomen, inheemse planten, groene daken en luifels. Deze dragen bij aan biodiversiteit en verminderen de afhankelijkheid van externe bronnen.
Verlichting is zorgvuldig ontworpen om zowel overdag als 's nachts opvallend te zijn, met gevel- en vloerlampen die de architectonische elementen accentueren. Natuurlijke sfeer wordt behouden en lichtvervuiling wordt vermeden door zacht verlichte terreindelen en flexibele draagbare lampen.
Ontdek meer informatie over het project op onze website: https://www.storm-architects.com/nl/projecten/haus-am-flusswald
Stel jezelf kort voor! Dan weet het betreffende bedrijf wie hun brochure gedownload heeft.
Wil je niet bij elke download jouw gegevens in hoeven voeren?
Klik dan hier om in te loggen
. Heb je nog geen account?
Maak dan hier een gratis account aan
.
Voornaam
Achternaam
E-mailadres
Downloaden
Wanneer je brochures downloadt op Architectenweb.nl worden relevante gegevens van jou – zoals jouw naam en e-mailadres – met het betreffende bedrijf gedeeld. Meer hierover lees je in ons
privacybeleid
.
Wanneer je brochures downloadt op Architectenweb.nl worden relevante gegevens van jou – zoals jouw naam en e-mailadres – met het betreffende bedrijf gedeeld. Meer hierover lees je in ons
privacybeleid
.
Brochure
Stel jezelf kort voor! Dan weet het betreffende bedrijf wie hun model gedownload heeft.
Wil je niet bij elke download jouw gegevens in hoeven voeren?
Klik dan hier om in te loggen
.
Heb je nog geen account?
Maak dan hier een gratis account aan
.
Voornaam
Achternaam
E-mailadres
Downloaden
Wanneer je modellen downloadt op Architectenweb.nl worden relevante gegevens van jou – zoals jouw naam en e-mailadres – met het betreffende bedrijf gedeeld. Meer hierover lees je in ons
privacybeleid
.
Locatie
Trefwoorden
moderne villa
luxe villa
architect luxe villa
privé villa
exclusieve villa
amsterdam architecture firm
private house
exclusief ontwerp
Storm Architects
Neem contact op
Projectdata
Staat van realisatie
In ontwikkeling
Start ontwerpproces
2023
Plaats
München
Bruto m
2
350
Meewerkende partijen
Architect
Storm Architects
Interieurarchitect
Storm Architects
Projectarchitect
Oleksii Ananiev
Leveranciers
Gazon
Boekel Tuinen
Buitenmeubels
Minotti
Ramen en deuren
Sky-Frame
Natuurstenen gevel en verwerking
Altena Steenhandel B.V.
Gevelafwerking eerste verdieping
Beka Houtprodukten B.V.
Moderne sculptuur "Companion"
Kaws
Neem contact op met
Storm Architects
Je bent momenteel niet ingelogd. Hierdoor is het alleen mogelijk om meer informatie per e-mail op te vragen. Wil je liever gebeld worden of documentatie per post ontvangen?
Klik dan hier om in te loggen
.
Heb je nog geen account?
Maak dan hier een gratis account aan
.
Voornaam
Achternaam
E-mailadres
Opmerkingen
Bij iedere aanvraag worden relevante gegevens van jou gedeeld met het betreffende bedrijf. Meer hierover lees je in ons
privacybeleid
.
Ja, denk met me mee rond de
materialisering van mijn project
Meer projecten van Storm Architects
Modern interieur in klassiek Amsterdams huis
Storm Architects
st21 Klinkhamer Huis
Storm Architects
Modern interieur in klassiek Amsterdams huis
Storm Architects
st21 Klinkhamer Huis
Storm Architects
Toon alles
Andere Projecten
Campus Sportief Besteed Groep — Wubben.Chan
Wubben.Chan architecten
BDO kantoor Breda
ULMA Architectural Solutions
Toegangscontrole op een dynamisch terrein
Heras
Biobased bouwen naast Natura 2000-gebied
KUBUS | Specialist in Archicad
5Tracks - inspirerende atriums met JUNG
Jung | Hateha B.V.
Totaalrealisatie nieuwe kantoorlocatie A. Vogel
Intermontage B.V.
Sweco Wonderwoods — Duurzame kantoorinrichting
Hal2
Gare Maritime, Brussel
WEBO
De transformatie van de Lintveldebrink
Grohe Nederland B.V.
Sweco WTC Den Haag — Duurzame kantoorinrichting
Hal2
Uitbreiding Hotel Martin's Klooster, Leuven
OWA Benelux - Akoestiek & Design
RVS plinten kantoor Moore DRV
Storax
Ga naar het projecten-overzicht
Voor een optimale gebruikservaring plaatst Architectenweb functionele cookies. Wat de verschillende cookies precies doen leggen we uit in een
overzicht
. Cookies van social media kun je optioneel
aanzetten
.
Akkoord
Instellingen
Annuleren
OK
Sluiten
Doorgaan
Inloggen
Maak een gratis persoonlijk account aan
Feedback
Feedback
Wij horen graag jouw feedback. Laat je reactie achter en eventueel jouw e-mail adres.
Reactie
Verstuur