Projecten
Producten
Bedrijven
Vacatures
Agenda
Awards
Podcasts
more_horiz
Videos
Magazine
Favorieten
Profiel
Uitloggen
Abonneer je nu op onze nieuwsbrieven!
Abonneren
Nee, bedankt
Ja, denk met me mee rond de
materialisering van mijn project
Producten
Copyright: BETA
Copyright: Stijn Bollaert
Copyright: MWA Hart Nibbrig
Copyright: Stijn Bollaert
Copyright: MWA Hart Nibbrig
Copyright: Stijn Bollaert
Copyright: Stijn Bollaert
Copyright: Stijn Bollaert
Copyright: Stijn Bollaert
Copyright: Stijn Bollaert
Copyright: MWA Hart Nibbrig
Copyright: Stijn Bollaert
Copyright: Stijn Bollaert
Copyright: Stijn Bollaert
Copyright: Stijn Bollaert
Copyright: Stijn Bollaert
Copyright: Stijn Bollaert
Copyright: Stijn Bollaert
Copyright: Stijn Bollaert
Copyright: Stijn Bollaert
Copyright: Stijn Bollaert
Copyright: BETA
Copyright: Stijn Bollaert
Copyright: Stijn Bollaert
Copyright: Tim Stet
Copyright: BETA
Copyright: BETA
Copyright: BETA
Copyright: BETA
Copyright: BETA
Copyright: BETA
Copyright: BETA
Copyright: BETA
Copyright: BETA
Copyright: Tim Stet
Copyright: BETA
Copyright: BETA
Copyright: BETA
Copyright: BETA
Copyright: BETA
Copyright: BETA
Copyright: BETA
Copyright: BETA
Copyright: BETA
Producttags
AAN
UIT
‘De Draaier’ op Oostenburg
23 juni 2023
0
0
0
0
https://vimeo.com/839017876
Het gebied Oostenburg is een van de laatste grootschalige gebiedsontwikkelingen in het centrum van Amsterdam. Het gebied kent een rijke industriële geschiedenis die terug te voeren is tot de zeventiende-eeuwse VOC. In een hoge stedenbouwkundige dichtheid heeft BETA een woontoren ontworpen die de rijke historie van het gebied tracht te vereenzelvigen met hedendaagse architectuur.
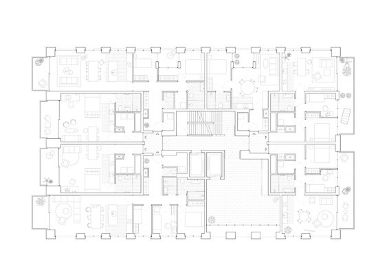
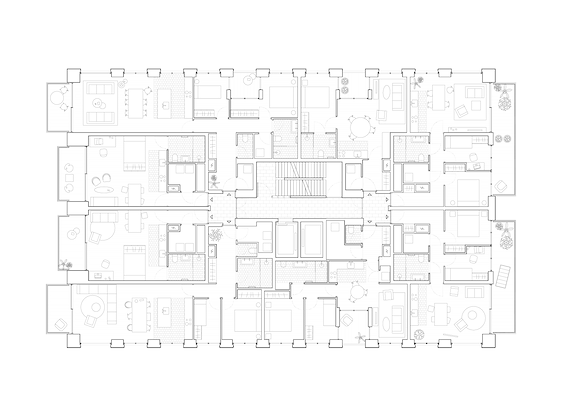
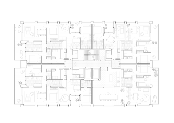
Prettige woonplattegronden zijn een uitdaging in een dergelijke dichtheid en de woningtypologie moet dan ook inspelen op de omgeving. In Oostenburg is de veranderende woningplattegrond gebruikt als een belangrijk ontwerp aspect; het pragmatisme waarmee dit is gedaan is in zichzelf al een referentie naar industriële architectuur. Het resultaat is een toren waar het onderste deel grotere appartementen bevat die beter bestand zijn tegen minder gunstige daglicht situaties. Dichtbij het straatniveau zijn dit de appartementen die tevens ideaal zijn voor gezinnen. Hoger op komt het gebouw vrij van belemmeringen en verandert de typologie in zowel grootte als oriëntatie.
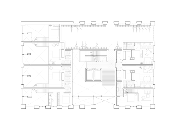
Terwijl de verticale zonering van het gebouw voortkomt uit de stedelijke context, wordt deze verder versterkt door de interne ontsluiting. Vanuit de entree lobby op begane grond nemen bewoners een express-lift naar één van de drie strategisch geplaatste en afzonderlijk geprogrammeerde collectieve ruimtes in het gebouw. De lager gelegen lobby is voorzien als een intieme leesruimte terwijl de middelste lobby is ontworpen als een gemeenschappelijke keuken met wintertuin. De bovenste lobby biedt toegang tot het dakterras met een bijzondere uitzicht over het stadscentrum. Vanuit elk van deze collectieve ruimtes voert een aantrekkelijke trappartij naar iedere verdieping. Met elk appartement binnen een bereik van maximaal twee verdiepingen kan elke bewoner zodoende lopend naar huis.
Door collectieve ruimtes te verbinden met een aantrekkelijk vormgegeven ontsluiting, wordt de woontoren als het ware opgedeeld in meerdere, kleinere eenheden. Bewoners worden gestimuleerd om zowel door het gebouw te bewegen als elkaar te ontmoeten. Op deze manier ontstaat er een vorm van gemeenschap en stedelijkheid die nu nog ongebruikelijk is bij dergelijke gebouwen.
Samengevat heeft het gebouw als doel de bewoners tot buren te maken.
Stel jezelf kort voor! Dan weet het betreffende bedrijf wie hun model gedownload heeft.
Wil je niet bij elke download jouw gegevens in hoeven voeren?
Klik dan hier om in te loggen
.
Heb je nog geen account?
Maak dan hier een gratis account aan
.
Voornaam
Achternaam
E-mailadres
Downloaden
Wanneer je modellen downloadt op Architectenweb.nl worden relevante gegevens van jou – zoals jouw naam en e-mailadres – met het betreffende bedrijf gedeeld. Meer hierover lees je in ons
privacybeleid
.
Locatie
Trefwoorden
beweeglogica
prefab beton
woningbouw
collectieve ruimte
lobby
trappen
liften
woontoren
active design
oostenburg
collectiviteit
beta
BETA
Neem contact op
Projectdata
Staat van realisatie
Voltooid
Start ontwerpproces
2018
Start bouw
2020
Oplevering
2023
Ingebruikname
2023
Plaats
Amsterdam
Meewerkende partijen
Architect
BETA
Interieurarchitect
BETA
Projectarchitect
Evert Klinkenberg
Ontwerpteam
Auguste van Oppen, Thomas Ponds, Stijn Dries, Nikola Kumstátová, João Batista Lopes, Ryan Dougan, Nicola Zedda, Tomaso Asso, Tifawt Loudaoui, Marleen de Groot, Henry Holmes
Opdrachtgever
VORM
Aannemer
Homines Bouw
Constructeur
CAE adviseurs voor bouwtechniek
Adviseurs installaties E & W
Ingenieursbureau Linssen
Fotograaf
Stijn Bollaert, Max Hart Nibbrig
Interieurontwerper
BETA
Ontwerper
BETA
Stedenbouwkundige
Urhahn | stedenbouw & strategie
Landschapsarchitect
LOLA Landscape Architects
Leveranciers
Prefab sandwich beton-elementen
Hibex B.V.
Kozijnen
Kawneer
Neem contact op met
BETA
Je bent momenteel niet ingelogd. Hierdoor is het alleen mogelijk om meer informatie per e-mail op te vragen. Wil je liever gebeld worden of documentatie per post ontvangen?
Klik dan hier om in te loggen
.
Heb je nog geen account?
Maak dan hier een gratis account aan
.
Voornaam
Achternaam
E-mailadres
Opmerkingen
Bij iedere aanvraag worden relevante gegevens van jou gedeeld met het betreffende bedrijf. Meer hierover lees je in ons
privacybeleid
.
Ja, denk met me mee rond de
materialisering van mijn project
Meer projecten van BETA
Merwede – Stadsblok 11 / gebouw Europa
BETA
Station Wildeman – transformatie school tot buurtcentrum
BETA
Merwede – Stadsblok 11 / gebouw Europa
BETA
Station Wildeman – transformatie school tot buurtcentrum
BETA
Toon alles
Andere Projecten
Canopy House
Malaysian Timber Council
Pol Heeteren BV
Klöber
Akoestische ventilatieroosters woontoren Magnus
Storax
Klimaatinnovatie in houtbouw: Mandemaat 3
Halton Ventilation Systems
Renovatie parkeergarage De Vest
Triflex bv
Kliniek San Juan de Dios in Madrid
ULMA Architectural Solutions
Vliesgevel screens Netceed kantoorgebouw
Renson
Kantoorinterieur Greenflux Amsterdam
Bureau Fraai
Nieuwbouw kinderdagverblijf Baakenhafen Hamburg
Sempergreen
CPO Vondelstaete Amersfoort: Passief Wonen
Sto Isoned bv
Nieuwbouw Oostvaarders krijgt Gorter op het dak
Gorter Luiken BV
BOW showroom in Amsterdam!
BOW Systems
Ga naar het projecten-overzicht
Voor een optimale gebruikservaring plaatst Architectenweb functionele cookies. Wat de verschillende cookies precies doen leggen we uit in een
overzicht
. Cookies van social media kun je optioneel
aanzetten
.
Akkoord
Instellingen
Annuleren
OK
Sluiten
Doorgaan
Inloggen
Maak een gratis persoonlijk account aan
Feedback
Feedback
Wij horen graag jouw feedback. Laat je reactie achter en eventueel jouw e-mail adres.
Reactie
Verstuur