Projecten
Producten
Bedrijven
Vacatures
Agenda
Awards
Podcasts
more_horiz
Videos
Magazine
Favorieten
Profiel
Uitloggen
Abonneer je nu op onze nieuwsbrieven!
Abonneren
Nee, bedankt
Ja, denk met me mee rond de
materialisering van mijn project
Producten
bouwvorm trapt af naar de wijk
Copyright: Stijn Brakkee
overgang collectief naar openbaar
Copyright: Stijn Brakkee
schaal verbindt met eengezinswoningen
Copyright: Stijn Brakkee
kloostergang verbindt collectief en privé
Copyright: Stijn Brakkee
collectief binnenhof
Copyright: Stijn Brakkee
landmark in de wijk
Copyright: Stijn Brakkee
bouwvorm trapt af naar de wijk
Copyright: Stijn Brakkee
zelf de mate van collectiviteit bepalen
Copyright: Stijn Brakkee
fit en vitaal voor ouderen
Copyright: Stijn Brakkee
concept collectief en privé
Copyright: Vanschagen Architecten
woningen georganiseerd rond collectief binnenhof
Copyright: Vanschagen Architecten
woning sluit aan op kloostergang
Copyright: Vanschagen Architecten
doorsnede woningen binnenhof
Copyright: Vanschagen Architecten
materiaal en detail sluiten aan bij de wijk
Copyright: Vanschagen Architecten
Producttags
AAN
UIT
De Vroon: mild collectief wonen voor ouderen
22 juni 2023
0
0
0
0
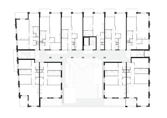
In de nieuwbouwwijk Vroondaal in Den Haag vormt De Vroon een markante sluitsteen. Dit levensloopbestendige woongebouw is speciaal ontworpen voor ouderen en voorzien van mild collectief wonen. Het vormt een harmonieuze samensmelting van architectuur en woonconcept. Het vernieuwende concept van mild collectief wonen komt tot uiting in de plattegrond van het gebouw.
Het hart van De Vroon wordt gevormd door een collectief binnenhof, omsloten door individuele woningen. Op de eerste verdieping fungeert een kloostergang als verbindingsstuk tussen de privéwoningen en de gemeenschappelijke daktuin. De penanten dragen op detailniveau bij aan een subtiele overgang. Op de boven gelegen verdiepingen nemen de galerijen de rol over van schakel tussen individuele en collectieve ruimten. Door de riante diepte van de galerijen kunnen deze ook als collectief balkon fungeren.
De architectuur van De Vroon legt bewust verbinding met de omliggende wijk door de naadloze aansluiting van materiaal, kleur en detail. Bovendien is het gebouw trapsgewijs vormgegeven, waardoor het aan de zijde van de wijk aansluit bij diens schaal, terwijl het aan de andere kant uitgroeit tot een opvallende landmark, gericht op de nabijgelegen plas.
Het programma van De Vroon vormt een verrijking van de voornamelijk uit gezinswoningen bestaande wijk. Het concept van mild collectief wonen voor ouderen biedt voorzieningen binnen een aangename en zelfstandige omgeving. Dit “fit-en-vitaal”-gebouw vult het gat tussen volledig zelfstandig wonen en het verzorgingshuis. Met een royale 250 vierkante meter aan collectieve ruimte kunnen bewoners samen de gewenste mate van zorg bepalen.
De collectieve ruimten op de begane grond zorgen voor een interactieve overgang van het collectieve gebruik van De Vroon naar de omliggende wijk. Het ontwerp van de plattegrond, de architectuur en de stedenbouw zijn gericht op een vloeiende overgang van privé naar collectief en de omringende wijk.
De architectuur vormt een link tussen een wijk met gezinswoningen en mild collectief wonen voor ouderen. Deze link draagt bij aan een hechte en inclusieve leefomgeving.
Stel jezelf kort voor! Dan weet het betreffende bedrijf wie hun brochure gedownload heeft.
Wil je niet bij elke download jouw gegevens in hoeven voeren?
Klik dan hier om in te loggen
. Heb je nog geen account?
Maak dan hier een gratis account aan
.
Voornaam
Achternaam
E-mailadres
Downloaden
Wanneer je brochures downloadt op Architectenweb.nl worden relevante gegevens van jou – zoals jouw naam en e-mailadres – met het betreffende bedrijf gedeeld. Meer hierover lees je in ons
privacybeleid
.
Wanneer je brochures downloadt op Architectenweb.nl worden relevante gegevens van jou – zoals jouw naam en e-mailadres – met het betreffende bedrijf gedeeld. Meer hierover lees je in ons
privacybeleid
.
Brochure
Stel jezelf kort voor! Dan weet het betreffende bedrijf wie hun model gedownload heeft.
Wil je niet bij elke download jouw gegevens in hoeven voeren?
Klik dan hier om in te loggen
.
Heb je nog geen account?
Maak dan hier een gratis account aan
.
Voornaam
Achternaam
E-mailadres
Downloaden
Wanneer je modellen downloadt op Architectenweb.nl worden relevante gegevens van jou – zoals jouw naam en e-mailadres – met het betreffende bedrijf gedeeld. Meer hierover lees je in ons
privacybeleid
.
Locatie
Trefwoorden
gemeenschappelijk
zorg
levensloopbestendig
ouderenappartementen
zelfstandig wonen
collectief gebruik.
kleurrijk woonconcept
Vanschagen Architecten
Neem contact op
Projectdata
Staat van realisatie
Voltooid
Start ontwerpproces
2018
Start bouw
2021
Oplevering
2023
Ingebruikname
2023
Plaats
Den Haag
Meewerkende partijen
Architect
Vanschagen Architecten
Projectarchitect
Gert Jan te Velde
Ontwerpteam
Rens van Dijk
Aannemer
Van Wijnen Stolwijk B.V.
Fotograaf
Daria Scagliola & Stijn Brakkee
Landschapsarchitect
Frans van der Steen
Leveranciers
Hekwerken
Straatman B.V.
Neem contact op met
Vanschagen Architecten
Je bent momenteel niet ingelogd. Hierdoor is het alleen mogelijk om meer informatie per e-mail op te vragen. Wil je liever gebeld worden of documentatie per post ontvangen?
Klik dan hier om in te loggen
.
Heb je nog geen account?
Maak dan hier een gratis account aan
.
Voornaam
Achternaam
E-mailadres
Opmerkingen
Bij iedere aanvraag worden relevante gegevens van jou gedeeld met het betreffende bedrijf. Meer hierover lees je in ons
privacybeleid
.
Ja, denk met me mee rond de
materialisering van mijn project
Meer projecten van Vanschagen Architecten
Statenjachtstraat, verdichten in Amsterdam
Vanschagen Architecten
Dudokhaken
Vanschagen Architecten
Verfdoos
Vanschagen Architecten
Complex 50 & 117
Vanschagen Architecten
Statenjachtstraat, verdichten in Amsterdam
Vanschagen Architecten
Dudokhaken
Vanschagen Architecten
Verfdoos
Vanschagen Architecten
Complex 50 & 117
Vanschagen Architecten
Toon alles
Andere Projecten
Canopy House
Malaysian Timber Council
Pol Heeteren BV
Klöber
Akoestische ventilatieroosters woontoren Magnus
Storax
Klimaatinnovatie in houtbouw: Mandemaat 3
Halton Ventilation Systems
Renovatie parkeergarage De Vest
Triflex bv
Kliniek San Juan de Dios in Madrid
ULMA Architectural Solutions
Vliesgevel screens Netceed kantoorgebouw
Renson
Kantoorinterieur Greenflux Amsterdam
Bureau Fraai
Nieuwbouw kinderdagverblijf Baakenhafen Hamburg
Sempergreen
CPO Vondelstaete Amersfoort: Passief Wonen
Sto Isoned bv
Nieuwbouw Oostvaarders krijgt Gorter op het dak
Gorter Luiken BV
BOW showroom in Amsterdam!
BOW Systems
Ga naar het projecten-overzicht
Voor een optimale gebruikservaring plaatst Architectenweb functionele cookies. Wat de verschillende cookies precies doen leggen we uit in een
overzicht
. Cookies van social media kun je optioneel
aanzetten
.
Akkoord
Instellingen
Annuleren
OK
Sluiten
Doorgaan
Inloggen
Maak een gratis persoonlijk account aan
Feedback
Feedback
Wij horen graag jouw feedback. Laat je reactie achter en eventueel jouw e-mail adres.
Reactie
Verstuur