Projecten
Producten
Bedrijven
Vacatures
Agenda
Awards
Podcasts
more_horiz
Videos
Magazine
Favorieten
Profiel
Uitloggen
Abonneer je nu op onze nieuwsbrieven!
Abonneren
Nee, bedankt
Ja, denk met me mee rond de
materialisering van mijn project
Producten
voorgevel
Copyright: Van de Looi Van Aken Architecten
Copyright: Van de Looi Van Aken Architecten
Copyright: Van de Looi Van Aken Architecten
Copyright: Van de Looi Van Aken Architecten
Copyright: Van de Looi Van Aken Architecten
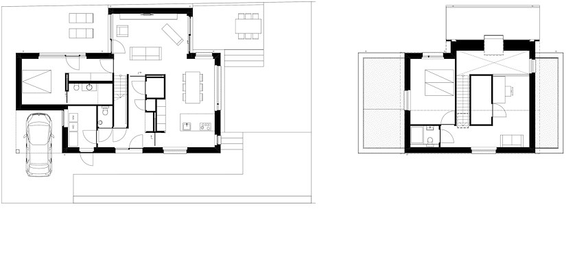
plattegronden
Copyright: Van de Looi Van Aken Architecten
groendak
Copyright: Van de Looi Van Aken Architecten
Producttags
AAN
UIT
Biobased levensloopbestendig woonhuis
22 november 2022
1
0
0
0
In deze levensloopbestendige woning zijn alle voorzieningen aanwezig op de begane grond. Extra ruimtes als een werkplek en een extra slaapkamer met badkamer bevinden zich op de verdieping. Ruimtelijk zijn alle functies met elkaar verbonden.
De architectuur is van deze tijd en wijkt af van de omliggende huizen. Stedenbouwkundig voegt de woning zich in de straat, door de dakrichting aan te nemen van de bestaande jaren '60 en '70 woningen.
De leefruimtes zijn gesitueerd aan kleine buitenruimtes, waardoor licht en contact met buiten overal aanwezig is. De wens van de opdrachtgevers was een huis met een hele lage ecologische voetafdruk, een hoog comfortniveau, energieneutraal, met kleine buitenruimtes. De woning is gebouwd als een houtskelet met houtvezelisolatie, triple beglazing in Fintihouten kozijnen, warmteterugwinning uit de ventilatielucht en zomernacht koeling. De fundatie en vloer van de begane grond bestaat uit schuimglaskorrels, een recyclebaar restproduct uit de glasindustrie met goede isolerende kwaliteiten en daarover hennepleem met uiteindelijk een houten vloer. De binnenwanden zijn voorzien van leemstuc. De woning is volledig circulair.
Verwarmen, koelen, ventileren en warmwater bereiding is mogelijk met een kleine all-in-one lucht-lucht warmtepomp zonder buiten unit. Met 30 zonnepanelen is er jaarlijks nog 3000 kWh over.
Stel jezelf kort voor! Dan weet het betreffende bedrijf wie hun brochure gedownload heeft.
Wil je niet bij elke download jouw gegevens in hoeven voeren?
Klik dan hier om in te loggen
. Heb je nog geen account?
Maak dan hier een gratis account aan
.
Voornaam
Achternaam
E-mailadres
Downloaden
Wanneer je brochures downloadt op Architectenweb.nl worden relevante gegevens van jou – zoals jouw naam en e-mailadres – met het betreffende bedrijf gedeeld. Meer hierover lees je in ons
privacybeleid
.
Wanneer je brochures downloadt op Architectenweb.nl worden relevante gegevens van jou – zoals jouw naam en e-mailadres – met het betreffende bedrijf gedeeld. Meer hierover lees je in ons
privacybeleid
.
Brochure
Stel jezelf kort voor! Dan weet het betreffende bedrijf wie hun model gedownload heeft.
Wil je niet bij elke download jouw gegevens in hoeven voeren?
Klik dan hier om in te loggen
.
Heb je nog geen account?
Maak dan hier een gratis account aan
.
Voornaam
Achternaam
E-mailadres
Downloaden
Wanneer je modellen downloadt op Architectenweb.nl worden relevante gegevens van jou – zoals jouw naam en e-mailadres – met het betreffende bedrijf gedeeld. Meer hierover lees je in ons
privacybeleid
.
Locatie
Trefwoorden
houtskelet
levensloopbestendig
biobase
Van de Looi Van Aken Architecten
Neem contact op
Projectdata
Staat van realisatie
Voltooid
Start ontwerpproces
2018
Start bouw
2020
Oplevering
2021
Ingebruikname
2021
Plaats
Silvolde
Meewerkende partijen
Architect
Van de Looi Van Aken Architecten
Projectarchitect
Dick van Aken
Opdrachtgever
particulier
Fotograaf
Van de Looi Van Aken Architecten
Leveranciers
Gevelbekleding
Foreco Houtproducten
Neem contact op met
Van de Looi Van Aken Architecten
Je bent momenteel niet ingelogd. Hierdoor is het alleen mogelijk om meer informatie per e-mail op te vragen. Wil je liever gebeld worden of documentatie per post ontvangen?
Klik dan hier om in te loggen
.
Heb je nog geen account?
Maak dan hier een gratis account aan
.
Voornaam
Achternaam
E-mailadres
Opmerkingen
Bij iedere aanvraag worden relevante gegevens van jou gedeeld met het betreffende bedrijf. Meer hierover lees je in ons
privacybeleid
.
Ja, denk met me mee rond de
materialisering van mijn project
Meer projecten van Van de Looi Van Aken Architecten
Tandartsenpraktijk en orthodontie -Tandpark Arnhem
Van de Looi Van Aken Architecten
Renovatie St. Elisabeth Zutphen
Van de Looi Van Aken Architecten
Zorgcentrum La Verna - Alverna, Wijchen
Van de Looi Van Aken Architecten
Herbestemming Lactaria Stevensbeek
Van de Looi Van Aken Architecten
Tandartsenpraktijk en orthodontie -Tandpark Arnhem
Van de Looi Van Aken Architecten
Renovatie St. Elisabeth Zutphen
Van de Looi Van Aken Architecten
Zorgcentrum La Verna - Alverna, Wijchen
Van de Looi Van Aken Architecten
Herbestemming Lactaria Stevensbeek
Van de Looi Van Aken Architecten
Toon alles
Andere Projecten
Canopy House
Malaysian Timber Council
Pol Heeteren BV
Klöber
Akoestische ventilatieroosters woontoren Magnus
Storax
Klimaatinnovatie in houtbouw: Mandemaat 3
Halton Ventilation Systems
Renovatie parkeergarage De Vest
Triflex bv
Kliniek San Juan de Dios in Madrid
ULMA Architectural Solutions
Vliesgevel screens Netceed kantoorgebouw
Renson
Kantoorinterieur Greenflux Amsterdam
Bureau Fraai
Nieuwbouw kinderdagverblijf Baakenhafen Hamburg
Sempergreen
CPO Vondelstaete Amersfoort: Passief Wonen
Sto Isoned bv
Nieuwbouw Oostvaarders krijgt Gorter op het dak
Gorter Luiken BV
BOW showroom in Amsterdam!
BOW Systems
Ga naar het projecten-overzicht
Voor een optimale gebruikservaring plaatst Architectenweb functionele cookies. Wat de verschillende cookies precies doen leggen we uit in een
overzicht
. Cookies van social media kun je optioneel
aanzetten
.
Akkoord
Instellingen
Annuleren
OK
Sluiten
Doorgaan
Inloggen
Maak een gratis persoonlijk account aan
Feedback
Feedback
Wij horen graag jouw feedback. Laat je reactie achter en eventueel jouw e-mail adres.
Reactie
Verstuur