Projecten
Producten
Bedrijven
Vacatures
Agenda
Awards
Podcasts
more_horiz
Videos
Magazine
Thema's
Favorieten
Profiel
Uitloggen
Abonneer je nu op onze nieuwsbrieven!
Abonneren
Nee, bedankt
Ja, denk met me mee rond de
materialisering van mijn project
Producten
Copyright: Rene de Wit Architectuurfotografie
Copyright: Rene de Wit Architectuurfotografie
Copyright: Rene de Wit Architectuurfotografie
Copyright: Rene de Wit Architectuurfotografie
Copyright: Rene de Wit Architectuurfotografie
Copyright: Rene de Wit Architectuurfotografie
Copyright: Rene de Wit Architectuurfotografie
Copyright: Rene de Wit Architectuurfotografie
Copyright: Rene de Wit Architectuurfotografie
Copyright: Rene de Wit Architectuurfotografie
Copyright: Rene de Wit Architectuurfotografie
Copyright: studio] [space architecten
Copyright: studio] [space architecten
Producttags
AAN
UIT
Villa Markdal
18 augustus 2022
0
0
0
0
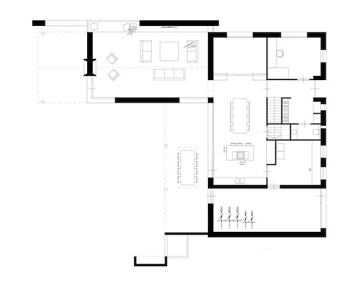
De Ulvenhoutselaan is een historische straat aan de zuidelijke rand van Breda. Gelegen aan natuurgebied het Mastbos en rivier de Mark, is een nieuw woonhuis verrezen. De architectuur van deze nieuwbouwwoning in Breda sluit aan bij de omliggende jaren ’20 en ’30 architectuur en heeft een moderne twist. Naar de straat toe heeft de woning een landelijke, iets meer gesloten uitstraling. Aan de tuinzijde opent de gevel zich met grote glasvlakken naar het Markdal. Ieder vertrek in de woning heeft haar eigen oriëntatie.
Stel jezelf kort voor! Dan weet het betreffende bedrijf wie hun brochure gedownload heeft.
Wil je niet bij elke download jouw gegevens in hoeven voeren?
Klik dan hier om in te loggen
. Heb je nog geen account?
Maak dan hier een gratis account aan
.
Voornaam
Achternaam
E-mailadres
Downloaden
Wanneer je brochures downloadt op Architectenweb.nl worden relevante gegevens van jou – zoals jouw naam en e-mailadres – met het betreffende bedrijf gedeeld. Meer hierover lees je in ons
privacybeleid
.
Wanneer je brochures downloadt op Architectenweb.nl worden relevante gegevens van jou – zoals jouw naam en e-mailadres – met het betreffende bedrijf gedeeld. Meer hierover lees je in ons
privacybeleid
.
Brochure
Stel jezelf kort voor! Dan weet het betreffende bedrijf wie hun model gedownload heeft.
Wil je niet bij elke download jouw gegevens in hoeven voeren?
Klik dan hier om in te loggen
.
Heb je nog geen account?
Maak dan hier een gratis account aan
.
Voornaam
Achternaam
E-mailadres
Downloaden
Wanneer je modellen downloadt op Architectenweb.nl worden relevante gegevens van jou – zoals jouw naam en e-mailadres – met het betreffende bedrijf gedeeld. Meer hierover lees je in ons
privacybeleid
.
Locatie
Trefwoorden
exclusief
particulier
natuur
architectuur
villa
landschap
breda
studio] [space architecten
Neem contact op
Projectdata
Staat van realisatie
Voltooid
Start ontwerpproces
2017
Start bouw
2019
Oplevering
2020
Ingebruikname
2020
Plaats
Breda
Kosten
700000
Bruto m
2
1300
Netto m
2
1200
m
3
390
Meewerkende partijen
Architect
studio] [space architecten
Interieurarchitect
studio] [space architecten
Projectarchitect
Vincent van Heesch
Ontwerpteam
Vincent van Heesch, Dennis Koenen
Opdrachtgever
particulier
Aannemer
aannemersbedrijf van opstal
Constructeur
2B bouwconstructies
Adviseurs installaties E & W
van willegen bouwadvies
Fotograaf
Rene de Wit
Interieurontwerper
studio] [space architecten
Leveranciers
Dakplaten
Kingspan Unidek B.V.
Dakgoot
NedZink B.V.
Warmtepomp
Stiebel Eltron Nederland b.v.
Funderingen en kelders
BEWI IsoBouw
Kozijnen
Metaglas Groep
Binnenwanden, Dakafwerkingen
wienerberger
Neem contact op met
studio] [space architecten
Je bent momenteel niet ingelogd. Hierdoor is het alleen mogelijk om meer informatie per e-mail op te vragen. Wil je liever gebeld worden of documentatie per post ontvangen?
Klik dan hier om in te loggen
.
Heb je nog geen account?
Maak dan hier een gratis account aan
.
Voornaam
Achternaam
E-mailadres
Opmerkingen
Bij iedere aanvraag worden relevante gegevens van jou gedeeld met het betreffende bedrijf. Meer hierover lees je in ons
privacybeleid
.
Ja, denk met me mee rond de
materialisering van mijn project
Meer projecten van studio] [space architecten
Houten Huis
studio] [space architecten
Afscheidshuis
studio] [space architecten
Wiele
studio] [space architecten
Black Barn
studio] [space architecten
Houten Huis
studio] [space architecten
Afscheidshuis
studio] [space architecten
Wiele
studio] [space architecten
Black Barn
studio] [space architecten
Toon alles
Gerelateerde producten
Unidek Aero
Constructief isolerend alles-in-1 dakelement
Kingspan Unidek B.V.
Tuile du Nord Opalys
De dubbele keramische dakpan voor nieuwbouw en renovatie
wienerberger
Poriso Lijmsysteem
De kwaliteit van keramiek, maar dan razendsnel.
wienerberger
Methermo®XL hét slanke raamsysteem
Metaglas Groep
Methermo®XL schuifpuien
Metaglas Groep
PowerKist (XL) funderingsbekisting
EPS funderingsbekisting voor paalfunderingen
BEWI IsoBouw
Unidek Aero
Constructief isolerend alles-in-1 dakelement
Kingspan Unidek B.V.
Tuile du Nord Opalys
De dubbele keramische dakpan voor nieuwbouw en renovatie
wienerberger
Poriso Lijmsysteem
De kwaliteit van keramiek, maar dan razendsnel.
wienerberger
Methermo®XL hét slanke raamsysteem
Metaglas Groep
Methermo®XL schuifpuien
Metaglas Groep
PowerKist (XL) funderingsbekisting
EPS funderingsbekisting voor paalfunderingen
BEWI IsoBouw
Toon alles
Andere Projecten
Twee woningconcepten, één samenhangend straatbeeld
Innoblox
Opvallende rondschuifdeuren in Gare de Mons
GEZE Benelux B.V.
Flexibel bedrijfsgebouw met modulaire kantoorunit
Buro De Haan
BDO kantoor Breda
ULMA Architectural Solutions
Campus Sportief Besteed Groep — Wubben.Chan
Wubben.Chan architecten
Toegangscontrole op een dynamisch terrein
Heras
Biobased bouwen naast Natura 2000-gebied
KUBUS | Specialist in Archicad
5Tracks - inspirerende atriums met JUNG
Jung | Hateha B.V.
Totaalrealisatie nieuwe kantoorlocatie A. Vogel
Intermontage B.V.
Sweco Wonderwoods — Duurzame kantoorinrichting
Hal2
Gare Maritime, Brussel
WEBO
De transformatie van de Lintveldebrink
Grohe Nederland B.V.
Ga naar het projecten-overzicht
Voor een optimale gebruikservaring plaatst Architectenweb functionele cookies. Wat de verschillende cookies precies doen leggen we uit in een
overzicht
. Cookies van social media kun je optioneel
aanzetten
.
Akkoord
Instellingen
Annuleren
OK
Sluiten
Doorgaan
Inloggen
Maak een gratis persoonlijk account aan
Feedback
Feedback
Wij horen graag jouw feedback. Laat je reactie achter en eventueel jouw e-mail adres.
Reactie
Verstuur