Projecten
Producten
Bedrijven
Vacatures
Agenda
Awards
Podcasts
more_horiz
Videos
Magazine
Thema's
Favorieten
Profiel
Uitloggen
Nieuw
Populair
Toon alles
Architectenweb magazine #14
Architectenweb magazine #13
Publieke gebouwen
Architectenweb magazine #12
Kantoren
Architectenweb magazine #11
Scholen
Architectenweb magazine #10
Zorg
Architectenweb magazine #14
Architectenweb magazine #10
Zorg
Architectenweb magazine #12
Kantoren
Architectenweb magazine #13
Publieke gebouwen
Architectenweb magazine #6
Transformatie en Renovatie
Om direct naar je favorieten te kunnen gaan is het nodig om eerst in te loggen.
Nieuw
Architectenweb Awards 2025
Architectenweb Awards 2024
Architectenweb Awards 2023
Architectenweb Awards 2022
Architectenweb Awards 2021
Architectenweb Awards 2020
Architectenweb Awards 2019
Architectenweb Awards 2018
Om direct naar je favorieten te kunnen gaan is het nodig om eerst in te loggen.
Nieuw
Populair
Favorieten
Toon alles
Vakwerk Architecten
Nominatie voor de prijs voor Architect van het Jaar 2025
Sanne van Manen
Nominatie voor de prijs voor Architect van het Jaar 2025
KSA
Nominatie voor de prijs voor Architect van het Jaar 2025
KRFT
Nominatie voor de prijs voor Architect van het Jaar 2025
Joost Ector
Nominatie voor de prijs voor Architect van het Jaar 2025
Prijsuitreiking Architectenweb Awards 2024
Impressie van een feestelijke avond
Martens, Willems & Humblé Architecten
Nominatie voor de prijs voor Architect van het Jaar 2024
Uitreiking van Architectenweb Awards 2020
Impressie van de prijsuitreiking via Zoom
De Zwarte Hond
Nominatie voor de prijs voor Architect van het Jaar 2024
Avond met De Zwarte Hond
Symposium
Om direct naar je favorieten te kunnen gaan is het nodig om eerst in te loggen.
Nieuw
Populair
Categorieën
Favorieten
Toon alles
Brandpreventie Academy BV
Cay Circulaire Keukens
Circulaire keukens en pantry's
Studio Kirsten Reith
Interieurontwerp
Studio175
Interieuradvies in regio Utrecht
Orange Automatic Doors
Indoorwrap
De specialist in Keukenwrappen
Cay Circulaire Keukens
Circulaire keukens en pantry's
Studio Kirsten Reith
Interieurontwerp
Studio175
Interieuradvies in regio Utrecht
Interior & Co
Indoorwrap
De specialist in Keukenwrappen
Orange Automatic Doors
Architecten
Architectuur
Mobiliteit en infrastructuur
Stedenbouw en landschapsarchitectuur
Leveranciers
Gevels
Daken
Ramen en deuren
Trappen, liften en balustrades
Binnenwanden
Vloeren
Plafonds
Verlichting
Sanitair
Projectinrichting
Installaties
Constructies
Buitenruimte
Software
Adviseurs
Bestekschrijvers
Bouwmanagement
Installatie adviseurs E
Bouwfysica
Calculators
Installatie adviseurs G/W
Bouwkundig tekenwerk
Constructeurs
Lichtadviseurs
Adviseur beveiliging
Juristen
Intermediairs, Payrolling
Aannemers
Overig
Presentatie
Instellingen / onderwijs
Overig
Om direct naar je favorieten te kunnen gaan is het nodig om eerst in te loggen.
Nieuw
Populair
Favorieten
Toon alles
Gesprek met Stephan Sliepenbeek over hoogbouw in Amstel III
Gesprek met Ellen van Bueren over gebiedsontwikkeling en hoogbouw
Gesprek met Ma Yansong over ontwerpen die emotie oproepen
Gesprek met Paul de Ruiter over innovatieve en duurzame hoogbouw
Gesprek met Pi de Bruijn over zijn ontwerpen voor de Tweede Kamer toen en nu
Gesprek met Ellen van Bueren over gebiedsontwikkeling en hoogbouw
Gesprek met Oresti Sarafopoulos over het ontwerpen van een kantoorgebouw met bijna geen installaties
Gesprek met Stijn Steenbakkers over verdichting en hoogbouw in Eindhoven
Gesprek met Pi de Bruijn over zijn ontwerpen voor de Tweede Kamer toen en nu
Gesprek met Paul de Ruiter over innovatieve en duurzame hoogbouw
Om direct naar je favorieten te kunnen gaan is het nodig om eerst in te loggen.
Nieuw
Populair
Categorieën
Favorieten
Toon alles
De energiemarkt revolutionair vernieuwen
Festivalterrein als inspiratie van dit kantoor
De antieke Agora als inspiratie voor een kantoor
Renovatieproject Ockenburghstraat
Aluminium kozijnen: de isolerende oplossing
Prinsenpark, Rotterdam
ASML Gebouw 3
IVY, Amsterdam
IKC De Brug
Houthavens, Amsterdam
Architectuur
Woningbouw
Zorg
Hotels
Restaurants en café’s
Winkels
Sportgebouwen
Culturele gebouwen
Overheidsgebouwen
Scholen
Kantoren
Bedrijfsgebouwen
Paviljoens en kunst
Overig
Mobiliteit en infrastructuur
Trein- en metrostations
Luchthavens
Busstations
Parkeergarages
Fietsparkeren
Wegen
Bruggen
Water
Energie
Tankstations en laadstations
Waterzuivering en afvalverwerking
Overig
Stedenbouw en landschapsarchitectuur
Regionale visies
Gebiedsvisies
Plannen stedelijk weefsel
Amusementsparken en dierentuinen
Lichtontwerpen
Openbare ruimte
Pleinen
Parken
Tuinen
Speelplaatsen
Uitkijktorens
Overige (bijv. begraafplaatsen)
Om direct naar je favorieten te kunnen gaan is het nodig om eerst in te loggen.
Nieuw
Populair
Categorieën
Favorieten
Toon alles
Control Track Versa
Langdurige flexibiliteit voor kantoren van de toekomst
Toegankelijkheid in de stad: klanktegels als gids
Een nieuwe dimensie in stadsontwerp: integreren van klank voor een inclusieve ervaring.
Dreentegel
Terug van weggeweest
Flux-totaalaanbod vraaggestuurde Renson WTW-ventilatie
Compacte wand- en plafondmontage voor alle debieten
Wie denkt er aan slopen tijdens bouwen?
Kies voor de toekomst, kies voor circulair isoleren!
Digital Prints
Meer mogelijkheden in gekleurd staal
Element+ H-I
Hout - Aluminium Elementgevel
Vierkante vluchtroutearmaturen voor grote ruimtes
Zichtbare veiligheid van alle kanten
GROHE Cubeo: kranen voor elke badkamer
Stijlvol en duurzaam design voor jarenlang plezier
Schüco Zonweringsysteem Integralmaster in FWS
Bescherming tegen zon, verblinding en privacy – verborgen en volledig geïntegreerd
Gevels
Gevelbekleding
Vliesgevels
Zonwering buiten
Isolatie
Gevelconstructies
Signing
Overig
Daken
Dakafwerkingen
Dakisolatie
Dakconstructies
Dakranden, dakgoten en HWA's
Dakramen
Lichtkoepels
Lichtstraten
Schoorstenen
Overig
Dakluiken
Ramen en deuren
Raam- en deursystemen / kozijnen
Vliesgevels
Hang- en sluitwerk
Beveiliging en luiken
Dorpels en vensterbanken
Lateien
Roosters
Glas
Dakramen
Dakkoepels
Lichtstraten
Zonwering buiten
Zonwering binnen
Buitendeuren
Binnendeuren
Postvakken en brievenbussen
Overig
Dakluiken
Trappen, liften en balustrades
Trappen
Roltrappen
Liften
Balustrades en hekwerken
Galerijen
Binnenwanden
Binnenwanden
Wandafwerking
Vloeren
Constructieve vloeren
Verhoogde vloeren
Vloerafwerkingen
Overig
Plafonds
Tegels
Lineair
Grill
Open en roosters
Naadloos
Eilanden en baffles
Plafondafwerkingen
Ophangsystemen
Overig
Klimaatplafonds
Verlichting
Binnenverlichting
Buitenverlichting
Sanitair
Kranen en douchesets
Wastafels
Douchewanden en douchebakken
Baden
Waterclosets
Accessoires
Overig
Projectinrichting
Stoelen
Banken
Tafels
Kasten
Balies
Vrijstaande wanden
Keukens
Accessoires
Overig
Cabines
Interieurbeplanting
Stoffering
Installaties
Verwarming, koeling en ventilatie
Elektrotechnische installaties
Schakelmateriaal
Domotica
Deurcommunicatie
Beveiliging
Liften
Onderhoudsinstallaties
Overig
Brandbeveiliging
Constructies
Draagconstructies
Funderingen en kelders
Overig
Brandbeveiliging
Buitenruimte
Bestratingen en verhardingen
Afwateringen
Terreinafscheidingen en geluidsschermen
Buitenmeubilair
Fietsparkeren
Terrassen
Terrasoverkappingen
Bruggen
Accessoires
Overig
Beplanting
Sport- en speeltoestellen
Software
Tekenen 2D
Modelleren 3D / BIM
Visualisatie / rendering
Parametrisch ontwerpen
Bouwfysica
Draagconstructie
Overig
Virtual Reality
Cloudoplossingen
Om direct naar je favorieten te kunnen gaan is het nodig om eerst in te loggen.
Nieuw
Populair
Favorieten
Toon alles
Zomerwandelingen Nieuwe Stad op Zondag 2025
Amsterdam
Prefab beurs - 7 t/m 9 oktober 2025
Brabanthallen 's-Hertogenbosch
Boekpresentatie en panelgesprek met Floor Milikows
Prins Hendrikkade 600, 1011 VX Amsterdam
Architects Table ’25: Lunch & Inspiratie in HAUT Amsterdam
ATAG LIVE – HAUT gebouw, Spaklerweg 10F, 1096 BA Amsterdam (tegenover metrostation Spaklerweg)
Inspiratiedag @ Sempergreen – Gevelgroen
Defensieweg 1, 3984 LR Odijk
Architects Table ’25: Lunch & Inspiratie in HAUT Amsterdam
ATAG LIVE – HAUT gebouw, Spaklerweg 10F, 1096 BA Amsterdam (tegenover metrostation Spaklerweg)
Ontdek het seminarieprogramma van Architect@Work Amsterdam
De Kromhouthal, Gedempt Hamerkanaal 231, Amsterdam
LIAG over duurzaamheid centraal in project
Online
1.Lectures HouseEurope! Renovate, don’t speculate
Pakhuis de Zwijger
Zomerwandelingen Nieuwe Stad op Zondag 2025
Amsterdam
Om direct naar je favorieten te kunnen gaan is het nodig om eerst in te loggen.
Nieuw
Toon alles
Design
Duurzaamheid
Gevel
Infrastructuur
Interieur
Kantoren
Leisure
Openbare ruimte
Publieke gebouwen
Scholen
Transformatie en Renovatie
Woningbouw
Zorg
Om direct naar je favorieten te kunnen gaan is het nodig om eerst in te loggen.
Nieuw
Populair
Toon alles
Junior Architect (NL/EN)
De Academie van Bouwkunst Amsterdam zoekt twee onderzoekers voor lectoraat
Site Practice zoekt medior architect met 3-6 jaar ervaring (Amsterdam)
DAT zoekt een BIM Modelleur (Revit)
stagiair bouwkunde Heerenveen
Meewerkend Voorman
Architect
Junior Architect gezocht!
Junior Ontwerper
Studio Nauta zoekt projectleider
wUrck zoekt junior Architect
Project Architect
Om direct naar je favorieten te kunnen gaan is het nodig om eerst in te loggen.
Producten
Copyright: Bedaux de Brouwer Architecten
Copyright: Bedaux de Brouwer Architecten
Copyright: Bedaux de Brouwer Architecten
Copyright: Bedaux de Brouwer Architecten
Copyright: Bedaux de Brouwer Architecten
Copyright: Bedaux de Brouwer Architecten
Copyright: Bedaux de Brouwer Architecten
Copyright: Bedaux de Brouwer Architecten
Copyright: Bedaux de Brouwer Architecten
Copyright: Bedaux de Brouwer Architecten
Copyright: Bedaux de Brouwer Architecten
Copyright: Bedaux de Brouwer Architecten
Copyright: Bedaux de Brouwer Architecten
Copyright: Bedaux de Brouwer Architecten
Copyright: Bedaux de Brouwer Architecten
Producttags
AAN
UIT
Vredeskerk, Tilburg
21 juni 2022
1
0
0
0
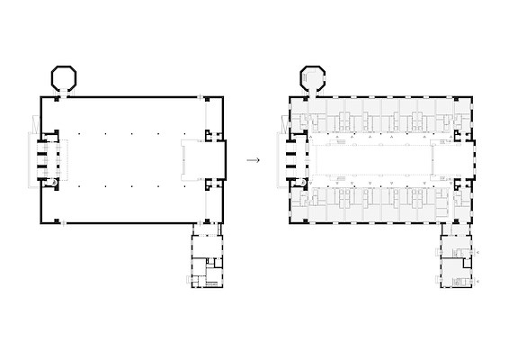
In Tilburg is de voormalige Vredeskerk herbestemd tot een co-living omgeving voor young professionals. Het gehele woonprogramma is gesitueerd in de zijbeuken, waardoor het imposante middenschip van de kerk vrij blijft voor een diversiteit aan plekken om te wonen, te werken en te ontspannen.
De wederopbouwkerk is ontworpen door architect H. Pontzen in 1954. De naoorlogse, traditionele architectuur van de kerk kenmerkt zich door de orthogonale vormentaal die ontdaan is van ornamentiek. Op die manier wordt er, zowel met traditionele als nieuwe bouwmaterialen, teruggegrepen op vroegchristelijke vormen. Het gebouw bevat een verzorgde, sobere detaillering. Dit materiaalgebruik en deze detaillering zorgen ervoor dat het gebouw tijdloos oogt, en zich haast stijlloos voordoet. Het maakt de kerk uitermate geschikt voor herbestemming, hetgeen actueel werd in 2015 nadat de kerk uit haar eredienst werd onttrokken.
Het complex bestaat naast het kerkgebouw ook uit een sacristie en een doopkapel. Zowel het exterieur als het interieur kenmerkt zich door een robuust uiterlijk, samengesteld uit materialen die de tand des tijd weten te doorstaan. Er ontstaat een gebouw dat zich massief een volumineus voordoet, en dat na meer dan een halve eeuw nog steeds mooi is. Binnen ontstaat een mooi contrast tussen massa en leegte. Het licht dat naar binnendringt door de dikke muren zorgt voor een bijzondere sfeer.
Het behoud van deze karakteristiek is voor ons uitgangspunt geweest voor de herbestemming. Het is ons gelukt om ook in de toekomst de karakteristieke leegte te houden door het nieuwe programma van kleine wooneenheden geheel in de twee zijbeuken te plaatsen. Het lege middenschip dient op haar beurt als verlengde van de woning. Hier kan gewerkt worden en is ruimte voor ontspanning. Deze vorm van co-living vergroot het wooncomfort en de sociale cohesie binnen het gebouw.
Het nieuwe programma bevindt zich achter de bestaande kolomstructuur en heeft de toegang liggen brede galerijen. De gevels van de woningen zijn uitgevoerd in materialen die voortborduren op het bestaande robuuste karakter van de kerk. Door opnieuw te ontwerpen met hoogwaardige, sobere materialen wordt op subtiele wijze een tijdslaag toegevoegd aan het gebouw. Er ontstaat een spannende gelaagdheid tussen oud en nieuw.
Aan het kwalitatieve exterieur van het gebouw is weinig veranderd. In het ritme van de bestaande terugliggende vensters zijn nieuwe openingen gezaagd om daglicht in de woningen te brengen. De kozijnen zijn achter het metselwerk geplaatst en de dagkanten zijn afgewerkt met metalen zetwerk. Zodoende gaat ook hier het ontwerp uit van het behouden van de karakteristiek van het gebouw door met het toevoegen van de nieuwe tijdslaag geen verstoring te veroorzaken.
Door behoud van de kwaliteit van de kerk en het toevoegen van nieuw, maar ingetogen programma, zal het woongebouw ook in de toekomst de tand des tijd doorstaan.
Stel jezelf kort voor! Dan weet het betreffende bedrijf wie hun brochure gedownload heeft.
Wil je niet bij elke download jouw gegevens in hoeven voeren?
Klik dan hier om in te loggen
. Heb je nog geen account?
Maak dan hier een gratis account aan
.
Voornaam
Achternaam
E-mailadres
Downloaden
Wanneer je brochures downloadt op Architectenweb.nl worden relevante gegevens van jou – zoals jouw naam en e-mailadres – met het betreffende bedrijf gedeeld. Meer hierover lees je in ons
privacybeleid
.
Wanneer je brochures downloadt op Architectenweb.nl worden relevante gegevens van jou – zoals jouw naam en e-mailadres – met het betreffende bedrijf gedeeld. Meer hierover lees je in ons
privacybeleid
.
Brochure
Stel jezelf kort voor! Dan weet het betreffende bedrijf wie hun model gedownload heeft.
Wil je niet bij elke download jouw gegevens in hoeven voeren?
Klik dan hier om in te loggen
.
Heb je nog geen account?
Maak dan hier een gratis account aan
.
Voornaam
Achternaam
E-mailadres
Downloaden
Wanneer je modellen downloadt op Architectenweb.nl worden relevante gegevens van jou – zoals jouw naam en e-mailadres – met het betreffende bedrijf gedeeld. Meer hierover lees je in ons
privacybeleid
.
Locatie
Trefwoorden
bedaux de brouwer architecten
vredeskerk
co-living
appartementen
tilburg
religieus erfgoed
kerkgebouw
herbestemming
herbestemming kerken
woongebouw
transformatie
Bedaux de Brouwer Architecten
Neem contact op
Projectdata
Staat van realisatie
Voltooid
Start ontwerpproces
2019
Start bouw
2020
Oplevering
2022
Ingebruikname
2022
Plaats
Tilburg
Meewerkende partijen
Architect
Thomas Bedaux, Joyce Verstijnen, Luuk Laurijsen
Interieurarchitect
Thomas Bedaux, Joyce Verstijnen, Luuk Laurijsen
Projectarchitect
Thomas Bedaux, Joyce Verstijnen, Luuk Laurijsen
Ontwerpteam
Rob Vermeulen, Frank van Helvert
Opdrachtgever
Hilva Vastgoed
Aannemer
Gebroeders van Gisbergen
Constructeur
Ingenieursbureau Piet Noordermeer
Adviseurs installaties E & W
Schoormans Installatiebedrijf BV
Fotograaf
Rene de Wit
Leveranciers
Kozijnen
Gealan Raamsystemen
Neem contact op met
Bedaux de Brouwer Architecten
Je bent momenteel niet ingelogd. Hierdoor is het alleen mogelijk om meer informatie per e-mail op te vragen. Wil je liever gebeld worden of documentatie per post ontvangen?
Klik dan hier om in te loggen
.
Heb je nog geen account?
Maak dan hier een gratis account aan
.
Voornaam
Achternaam
E-mailadres
Opmerkingen
Bij iedere aanvraag worden relevante gegevens van jou gedeeld met het betreffende bedrijf. Meer hierover lees je in ons
privacybeleid
.
Ja, denk met me mee rond de
materialisering van mijn project
Meer projecten van Bedaux de Brouwer Architecten
Kantongerecht Tilburg
Bedaux de Brouwer Architecten
Engelse Park, Groningen
Bedaux de Brouwer Architecten
Strijp R Eindhoven
Bedaux de Brouwer Architecten
Appartementengebouw Wibautstraat
Bedaux de Brouwer Architecten
Kantongerecht Tilburg
Bedaux de Brouwer Architecten
Engelse Park, Groningen
Bedaux de Brouwer Architecten
Strijp R Eindhoven
Bedaux de Brouwer Architecten
Appartementengebouw Wibautstraat
Bedaux de Brouwer Architecten
Toon alles
Andere Projecten
Festivalterrein als inspiratie van dit kantoor
Tétris Design & Build
De energiemarkt revolutionair vernieuwen
Tétris Design & Build
De antieke Agora als inspiratie voor een kantoor
Tétris Design & Build
Renovatieproject Ockenburghstraat
Caparol
Aluminium kozijnen: de isolerende oplossing
Aliplast Aluminium Systems
Houten huis in de polder - WaxedWood Gold Color
Foreco Houtproducten
FÆnslet
VELUX Commercial Benelux B.V.
Den Hartogh Basecamp
Schüco Nederland BV
Werkplekken met verhoogd risico - Laboratoria
INOTEC Noodverlichting B.V.
Exclusieve wooneenheden
SAPA
Duurzaam afvalmanagement in nieuwbouw van Alrijne
Stansz
Woningen op BEFU terrein Utrecht
SAB-profiel bv
Ga naar het projecten-overzicht
Voor een optimale gebruikservaring plaatst Architectenweb functionele cookies. Wat de verschillende cookies precies doen leggen we uit in een
overzicht
. Cookies van social media kun je optioneel
aanzetten
.
Akkoord
Instellingen
Annuleren
OK
Sluiten
Doorgaan
Inloggen
Maak een gratis persoonlijk account aan
Feedback
Feedback
Wij horen graag jouw feedback. Laat je reactie achter en eventueel jouw e-mail adres.
Reactie
Verstuur