Projecten
Producten
Bedrijven
Vacatures
Agenda
Awards
Podcasts
more_horiz
Videos
Magazine
Thema's
Favorieten
Profiel
Uitloggen
Abonneer je nu op onze nieuwsbrieven!
Abonneren
Nee, bedankt
Ja, denk met me mee rond de
materialisering van mijn project
Producten
Copyright: KENK architecten
Copyright: KENK architecten
Copyright: KENK architecten
Copyright: KENK architecten
Copyright: KENK architecten
Copyright: KENK architecten
Copyright: KENK architecten
Copyright: KENK architecten
Copyright: KENK architecten
Copyright: KENK architecten
Copyright: KENK architecten
Copyright: KENK architecten
Copyright: KENK architecten
Copyright: KENK architecten
Copyright: KENK architecten
Copyright: KENK architecten
Copyright: KENK architecten
Copyright: KENK architecten
Producttags
AAN
UIT
Startblok Wormerveerstraat
29 maart 2022
1
0
0
0
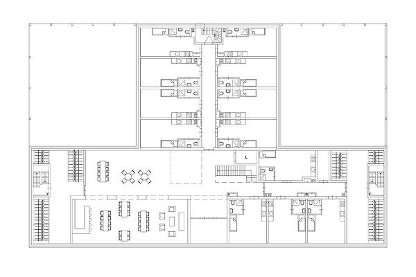
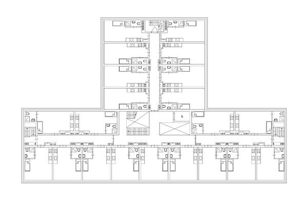
KENK architecten heeft in de Spaarndammerbuurt in Amsterdam een hoopvol project met 100 zelfstandige woningen voor 50 starters en 50 statushouders gerealiseerd. Met dit uitnodigende woongebouw aan de Wormerveerstraat voegt KENK architecten samen met woningbouwcorporatie de Key een nieuw hoofdstuk toe aan de zorgvuldige sociale woningbouwtraditie van de stad door ‘ontmoeten’ centraal te stellen in een rijk gedetailleerd, duurzaam ontwerp voor mensen die een nieuwe start willen maken.
In het Startblok Wormerveerstraat zijn alle gemeenschappelijke ruimtes ontworpen om collectief gebruik te stimuleren. Naast de woningen biedt het project aan de nieuwe bewoners een gemeenschappelijke ruimte rond een spectaculair, Piranesi-achtig trappenhuis, met trappen en bruggen die elkaar passeren om de kans op spontane ontmoetingen te vergroten. Een muurschildering van beeldend kunstenaar Gino Hoiting is geïntegreerd in het ontwerp. De gedeelde tuin op het zuiden bevat een kas waar bewoners hun eigen voedsel kunnen kweken.
De architectuur van Startblok Wormerveerstraat reageert in een subtiele dialoog op het ernaast gelegen historische monument van de gevierde Amsterdamse school architect Michel de Klerk. In de plint van het project bevindt zich een monumentale entree van hout en natuursteen. Bovenin de gevel refereert een uitbundig gemodelleerde driedimensionale kroon aan de lange, stedelijke wanden uit de periode van de Amsterdamse School.?Deze lijnen worden verder benadrukt door het toepassen van herhaling, die in de verte het beeld oproept van een locomotief met verschillende wagons. Historische ornamenten van de locatie zijn hergebruikt en in het gevelconcept verwerkt.
Het Startblok Wormerveerstraat is inmiddels opgeleverd aan de bewoners, waarvan de helft als vluchteling naar Nederland is gekomen. Alle uitverkoren bewoners zijn mede op motivatie geselecteerd door De Key, die met dit ‘Startblok’ jonge mensen kansen wil bieden om een gemeenschap te vormen. De bewoners helpen elkaar op weg met hun gezamenlijk doel: een goede start in Amsterdam.
Stel jezelf kort voor! Dan weet het betreffende bedrijf wie hun brochure gedownload heeft.
Wil je niet bij elke download jouw gegevens in hoeven voeren?
Klik dan hier om in te loggen
. Heb je nog geen account?
Maak dan hier een gratis account aan
.
Voornaam
Achternaam
E-mailadres
Downloaden
Wanneer je brochures downloadt op Architectenweb.nl worden relevante gegevens van jou – zoals jouw naam en e-mailadres – met het betreffende bedrijf gedeeld. Meer hierover lees je in ons
privacybeleid
.
Wanneer je brochures downloadt op Architectenweb.nl worden relevante gegevens van jou – zoals jouw naam en e-mailadres – met het betreffende bedrijf gedeeld. Meer hierover lees je in ons
privacybeleid
.
Brochure
Stel jezelf kort voor! Dan weet het betreffende bedrijf wie hun model gedownload heeft.
Wil je niet bij elke download jouw gegevens in hoeven voeren?
Klik dan hier om in te loggen
.
Heb je nog geen account?
Maak dan hier een gratis account aan
.
Voornaam
Achternaam
E-mailadres
Downloaden
Wanneer je modellen downloadt op Architectenweb.nl worden relevante gegevens van jou – zoals jouw naam en e-mailadres – met het betreffende bedrijf gedeeld. Meer hierover lees je in ons
privacybeleid
.
Locatie
Trefwoorden
sociale woningbouw
amsterdamse school
startblok
spaarndammerbuurt
woningbouw
amsterdam
KENK architecten
Neem contact op
Projectdata
Staat van realisatie
Voltooid
Start bouw
2020
Oplevering
2021
Ingebruikname
2021
Plaats
Amsterdam
Meewerkende partijen
Architect
KENK architecten
Projectarchitect
Pim Köther, Ad Koedijk
Opdrachtgever
Woonstichting De Key
Aannemer
Bouwbedrijf de Nijs en zonen
Fotograaf
Roos Aldershoff Fotografie
Neem contact op met
KENK architecten
Je bent momenteel niet ingelogd. Hierdoor is het alleen mogelijk om meer informatie per e-mail op te vragen. Wil je liever gebeld worden of documentatie per post ontvangen?
Klik dan hier om in te loggen
.
Heb je nog geen account?
Maak dan hier een gratis account aan
.
Voornaam
Achternaam
E-mailadres
Opmerkingen
Bij iedere aanvraag worden relevante gegevens van jou gedeeld met het betreffende bedrijf. Meer hierover lees je in ons
privacybeleid
.
Ja, denk met me mee rond de
materialisering van mijn project
Meer projecten van KENK architecten
Koningsdaal-Noord Blok 1 en 2
KENK architecten
Lieven (zuidblok)
KENK architecten
LUX Strijp-S
KENK architecten
Xavier
KENK architecten
Koningsdaal-Noord Blok 1 en 2
KENK architecten
Lieven (zuidblok)
KENK architecten
LUX Strijp-S
KENK architecten
Xavier
KENK architecten
Toon alles
Andere Projecten
Wonen en recreëren langs de Vecht
Buro De Haan
Libau Eiland - Amsterdam
Houthandel van Dam
Natuurinclusief bouwen in nieuwbouwwijk Eindhoven
Vivara Pro
Natuurinclusieve nestkasten verwerkt in de gevel
Vivara Pro
Woonhart Zoetermeer
Houthandel van Dam
Villa aan het water
Houthandel van Dam
Kooi stadion - SC Cambuur
Houthandel van Dam
Veilige daktoegang voor Aan de Molenwerf
Gorter Luiken BV
Veilige daktoegang voor nieuw gemeentehuis
Gorter Luiken BV
Ziekenhuiscomplex Rijeka in Susak, Kroatië
ULMA Architectural Solutions
Luxe Vingui Noir houten uitbouw
Houthandel van Dam
BMV Heerlerbaan - Heerlen
Houthandel van Dam
Ga naar het projecten-overzicht
Voor een optimale gebruikservaring plaatst Architectenweb functionele cookies. Wat de verschillende cookies precies doen leggen we uit in een
overzicht
. Cookies van social media kun je optioneel
aanzetten
.
Akkoord
Instellingen
Annuleren
OK
Sluiten
Doorgaan
Inloggen
Maak een gratis persoonlijk account aan
Feedback
Feedback
Wij horen graag jouw feedback. Laat je reactie achter en eventueel jouw e-mail adres.
Reactie
Verstuur