Projecten
Producten
Bedrijven
Vacatures
Agenda
Awards
Podcasts
more_horiz
Videos
Magazine
Thema's
Favorieten
Profiel
Uitloggen
Abonneer je nu op onze nieuwsbrieven!
Abonneren
Nee, bedankt
Ja, denk met me mee rond de
materialisering van mijn project
Producten
Copyright: woltjer berkhout architecten
Copyright: woltjer berkhout architecten
Copyright: woltjer berkhout architecten
Copyright: woltjer berkhout architecten
Copyright: woltjer berkhout architecten
Copyright: woltjer berkhout architecten
Copyright: woltjer berkhout architecten
Copyright: woltjer berkhout architecten
Copyright: woltjer berkhout architecten
Copyright: woltjer berkhout architecten
Copyright: woltjer berkhout architecten
Copyright: woltjer berkhout architecten
Copyright: woltjer berkhout architecten
Copyright: woltjer berkhout architecten
Copyright: woltjer berkhout architecten
Copyright: woltjer berkhout architecten
Copyright: woltjer berkhout architecten
Copyright: woltjer berkhout architecten
Copyright: woltjer berkhout architecten
Copyright: woltjer berkhout architecten
Copyright: woltjer berkhout architecten
Copyright: woltjer berkhout architecten
Copyright: woltjer berkhout architecten
Copyright: woltjer berkhout architecten
Copyright: woltjer berkhout architecten
Producttags
AAN
UIT
Villa l'Escala
1 januari 2022
0
0
0
0
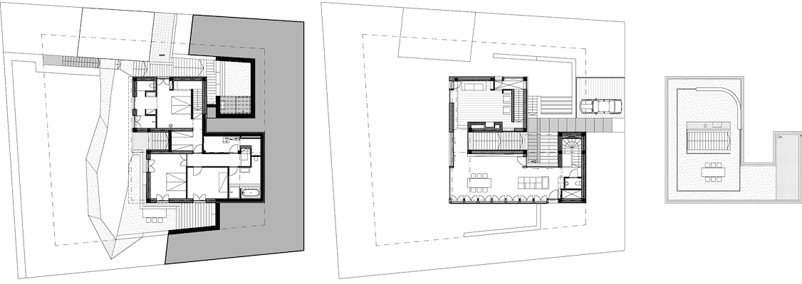
Het huis is ontworpen als weekendhuis voor een Nederlander die in Barcelona woont. De kavel bevindt zich op een met pijnbomen bebost heuveltje, op een steenworp afstand van de zee, net buiten l’Escala.
De kavel heeft een hoogteverschil van 10 meter. De entree is bovenaan de kavel. Een flauwe trap leidt naar de patio met de voordeur. Het huis vouwt zich om de patio heen. Trappen omlaag verbinden de patio met de tuin. Vanuit het huis leidt een buitentrap omhoog tot het dakterras.
Het huis heeft open en besloten plekken en een verrassende ruimtelijkheid. De gebruikte materialen zijn eerlijk: de kozijnen zijn van hout, de gevels zijn bekleed met de gele steen die bij het uitgraven van de locatie gewonnen is. De betonnen vloeren en plafonds zijn in het zicht gelaten.
Aan de horizon kan je vanuit het huis de besneeuwde toppen van de Pyreneeën zien.
Stel jezelf kort voor! Dan weet het betreffende bedrijf wie hun brochure gedownload heeft.
Wil je niet bij elke download jouw gegevens in hoeven voeren?
Klik dan hier om in te loggen
. Heb je nog geen account?
Maak dan hier een gratis account aan
.
Voornaam
Achternaam
E-mailadres
Downloaden
Wanneer je brochures downloadt op Architectenweb.nl worden relevante gegevens van jou – zoals jouw naam en e-mailadres – met het betreffende bedrijf gedeeld. Meer hierover lees je in ons
privacybeleid
.
Wanneer je brochures downloadt op Architectenweb.nl worden relevante gegevens van jou – zoals jouw naam en e-mailadres – met het betreffende bedrijf gedeeld. Meer hierover lees je in ons
privacybeleid
.
Brochure
Stel jezelf kort voor! Dan weet het betreffende bedrijf wie hun model gedownload heeft.
Wil je niet bij elke download jouw gegevens in hoeven voeren?
Klik dan hier om in te loggen
.
Heb je nog geen account?
Maak dan hier een gratis account aan
.
Voornaam
Achternaam
E-mailadres
Downloaden
Wanneer je modellen downloadt op Architectenweb.nl worden relevante gegevens van jou – zoals jouw naam en e-mailadres – met het betreffende bedrijf gedeeld. Meer hierover lees je in ons
privacybeleid
.
Locatie
Trefwoorden
huis
dakterras
woltjer berkhout architecten
horizon
zee
trappen
spanje
patio
buitenruimte
costa brava
l'escala
natuursteen
villa
ruimtelijkheid
woltjer / berkhout architecten
Neem contact op
Projectdata
Staat van realisatie
Voltooid
Start ontwerpproces
2008
Start bouw
2010
Oplevering
2014
Plaats
L'Escala
Meewerkende partijen
Architect
woltjer / berkhout architecten
Opdrachtgever
parrticulier
Fotograaf
Luuk Kramer
Interieurontwerper
Brutus de Gaper
Meewerkend architect
BE+R arquitectes
Leveranciers
Overig
Luuk Kramer, Brutus de Gaper - interieur
Neem contact op met
woltjer / berkhout architecten
Je bent momenteel niet ingelogd. Hierdoor is het alleen mogelijk om meer informatie per e-mail op te vragen. Wil je liever gebeld worden of documentatie per post ontvangen?
Klik dan hier om in te loggen
.
Heb je nog geen account?
Maak dan hier een gratis account aan
.
Voornaam
Achternaam
E-mailadres
Opmerkingen
Bij iedere aanvraag worden relevante gegevens van jou gedeeld met het betreffende bedrijf. Meer hierover lees je in ons
privacybeleid
.
Ja, denk met me mee rond de
materialisering van mijn project
Meer projecten van woltjer / berkhout architecten
Transformatie van de broodfabriek
woltjer / berkhout architecten
Transformatie Genieloods Fort Vijfhuizen
woltjer / berkhout architecten
Atelierwoningen Kunstfort Vijfhuizen
woltjer / berkhout architecten
Dubbelhuis aan de Amstel
woltjer / berkhout architecten
Transformatie van de broodfabriek
woltjer / berkhout architecten
Transformatie Genieloods Fort Vijfhuizen
woltjer / berkhout architecten
Atelierwoningen Kunstfort Vijfhuizen
woltjer / berkhout architecten
Dubbelhuis aan de Amstel
woltjer / berkhout architecten
Toon alles
Andere Projecten
Frigo-Trans GmbH Mezzaninevloer voor logistiek
Nolte Mezzanine
ABB-technologie verlicht de Burj Khalifa
ABB | Busch-Jaeger
Luxe wonen in Hamptons stijl
Holonite B.V.
Vijf keer Gorter op Jullensblok
Gorter Luiken BV
Hybride buitenruimte Catharinatoren Zaandam
Solarlux Nederland B.V.
Hilversum Nieuw Zuid
HOSPER landschapsarchitectuur
TU Delft Stadsklimaatbos
HOSPER landschapsarchitectuur
Maatwerk vanuit een concpetwoning
Innoblox
Full service voor logistiek bedrijfspand
Buro De Haan
TU Delft Campus Stevingebied
HOSPER landschapsarchitectuur
CPO Bakstayn
Time to Access
Nieuwbouw hal BPA Blueprint Automation
Houthandel van Dam
Ga naar het projecten-overzicht
Voor een optimale gebruikservaring plaatst Architectenweb functionele cookies. Wat de verschillende cookies precies doen leggen we uit in een
overzicht
. Cookies van social media kun je optioneel
aanzetten
.
Akkoord
Instellingen
Annuleren
OK
Sluiten
Doorgaan
Inloggen
Maak een gratis persoonlijk account aan
Feedback
Feedback
Wij horen graag jouw feedback. Laat je reactie achter en eventueel jouw e-mail adres.
Reactie
Verstuur