Abonneer je nu op onze nieuwsbrieven!
Abonneren
Nee, bedankt
Ja, denk met me mee rond de
materialisering van mijn project
Producten
Representatieve gevel aan het publieke plein
Copyright: Fernando Guerra FG+SG
Stedenbouwkundige positie Rechtbank Amsterdam
Copyright: Fernando Guerra FG+SG
De entreehal
Copyright: Fernando Guerra FG+SG
Verticale verbindingen in het publieke deel
Copyright: Fernando Guerra FG+SG
Wachtruimte voor de rechtszaal
Copyright: Fernando Guerra FG+SG
Rechtszaal met origineel kunstwerk van Femmy Otten
Copyright: Fernando Guerra FG+SG
De juridische bibliotheek in Rechtbank Amsterdam
Copyright: Fernando Guerra FG+SG
Zicht op de oostelijke pleingevel en de openbare ruimtes op de vierde verdieping
Copyright: Fernando Guerra FG+SG
Spectaculair trappenhuis die de kantoorverdiepingen verbindt
Copyright: Fernando Guerra FG+SG
Kantoren met uitzicht op de groene patio's
Copyright: Fernando Guerra FG+SG
Situatie tekening
Copyright: KAAN Architecten
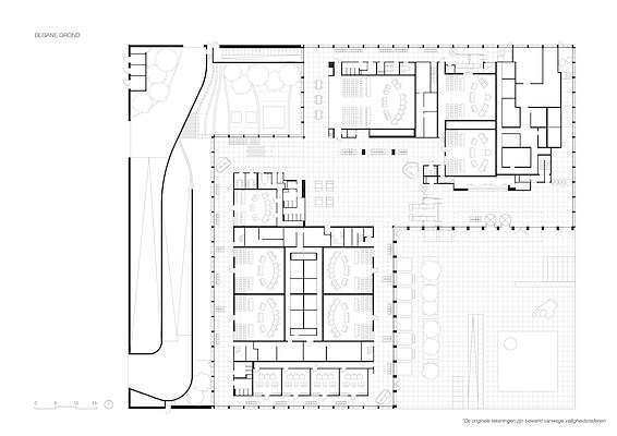
Niveau 00
Copyright: KAAN Architecten
Niveau 01
Copyright: KAAN Architecten
Niveau 05
Copyright: KAAN Architecten
Programma en functionele indeling
Copyright: KAAN Architecten
Doorsnede 1-1
Copyright: KAAN Architecten
Doorsnede 3-3
Copyright: KAAN Architecten
ProducttagsAANUIT

Rechtbank Amsterdam

29 juni 2021
Op de plaats van het oude complex aan de Parnassusweg in Amsterdam is het uitnodigende en tevens voorname nieuwe gebouw van de Rechtbank Amsterdam in gebruik genomen. Op maandag 3 mei 2021 vonden daar de eerste zittingen plaats. Het flonkerende functionele gebouw in het gebied van de Zuidas is ontworpen en uitgevoerd door het consortium NACH (New Amsterdam Court House) in opdracht van het Rijksvastgoedbedrijf (RVB). Met 50 uiteenlopende zittingszalen, ruim 1000 medewerkers waaronder 200 rechters en 140.000 uitspraken per jaar is de Rechtbank Amsterdam verreweg de grootste van de 11 rechtbanken in Nederland.

NACH is een consortium waarin samenwerken Macquarie Capital, ABT, DVP, KAAN Architecten, Heijmans en Facilicom. Voor de Rechtbank Amsterdam  is NACH met het Rijk een Publiek-Private Samenwerking (PPS) aangegaan. De PPS omvat behalve het bouwen en financieren van het gebouw ook 30 jaar lang het onderhoud en de dienstverlening of ondersteuning van de organisatie van de rechtbank door Heijmans en Facilicom. De ondersteuning bestaat uit een keur van diensten die ambitieus zijn opgezet. Het beheer van het gebouw houdt in dat dagelijks realtime overzicht is van de beschikbare werkplekken, van kamers voor werk dat concentratie vereist en van ruimten voor besprekingen en overleg. Het schoonmaken volgt digitaal gestuurd het gebruik van het gebouw.

Het architectonisch ontwerp van KAAN Architecten, een van de initiatiefnemers van het consortium, heeft als uitgangspunt dat in een rechtsstaat de rechtspraak een publieke zaak is verweven met het leven van alledag. Het 50 meter hoge gebouw heeft een onversneden open karakter. Grote ramen in de onderste helft van het gebouw bieden vanaf de straat zicht op de drukte binnen. In de ruim opgezette foyers die om de zittingszalen heen lopen verblijven bezoekers, 800 tot 1000 per dag, advocaten in hun toga’s met hun cliënten, verslaggevers, gedaagden en belangstellenden. Vanuit het gebouw is steeds zicht op de stad. De centrale hal met roltrappen vouwt zich open langs een binnentuin en stapelingen van zittingszalen tot een zee van ruimte en licht.

De nieuwe Rechtbank Amsterdam is een uiting van comfortabele functionele architectuur. Het gebouw is een doordachte stapeling met boven elkaar alles wat bij elkaar hoort en scheidingen van wat gescheiden moet blijven, zoals de routes van rechters, gehechten en bezoekers. Nauwe samenwerking tussen architecten, adviseurs voor de constructie, bouwfysica, installaties en (brand)veiligheid, aannemer en leveranciers heeft een praktisch en duurzaam gebouw voortgebracht, vrijwel energieneutraal en toekomstbestendig door een grote mate van flexibiliteit. Personeel en bezoekers krijgen een inspirerende, aangename en veilige omgeving met degelijke materialen die mooi verouderen. 

Het innig samengaan van gebouw en stad mondt uit in een rechthoekig plein aan de zuidzijde voor de ingang van de Rechtbank Amsterdam van een half voetbalveld groot. Dit plein is in feite een kwart van de plattegrond van de rechtbank, het heeft hetzelfde lichtgrijze natuursteen op de vloer en dezelfde banken als binnen. De elegante luifel boven de ingang steekt even ver uit op het plein als in het rechtbankgebouw. In de praktijk is het plein openbaar gebied, een gebaar naar de stad. Een luie hellingbaan zorgt voor een drempelloze overgang van de omgeving naar het plein en het gebouw dat, beschermd tegen aanrijdingen, iets hoger ligt. Aan één zijde is het plein beplant met bloeiende bomen, waar, naast bezoekers en personeel van de rechtbank, iedereen op elk tijdstip van de dag kan neerstrijken.

Naast de vijver op het plein staat een intrigerend groot kunstwerk genaamd ‘Love or Generosity’ dat is ontworpen door kunstenares Nicole Eisenman. Het kunstwerk, ruim vijf meter hoog, staat op grote bergschoenen symbool voor een poortwachter. De figuur in hedendaagse, gemakkelijke kledij kijkt voorovergebogen naar de symbolen in de hand die staan voor wijsheid, kracht, geduld, voortgang en moed. Een kleine uil, een pijl en een eikel die de veerkracht van de samenleving weergeven, lijken zojuist van het plein opgeraapt.

Stel jezelf kort voor! Dan weet het betreffende bedrijf wie hun brochure gedownload heeft.
Wil je niet bij elke download jouw gegevens in hoeven voeren?
Klik dan hier om in te loggen. Heb je nog geen account? Maak dan hier een gratis account aan.
Voornaam
Achternaam
E-mailadres
Downloaden
Wanneer je brochures downloadt op Architectenweb.nl worden relevante gegevens van jou – zoals jouw naam en e-mailadres – met het betreffende bedrijf gedeeld. Meer hierover lees je in ons privacybeleid.
Wanneer je brochures downloadt op Architectenweb.nl worden relevante gegevens van jou – zoals jouw naam en e-mailadres – met het betreffende bedrijf gedeeld. Meer hierover lees je in ons privacybeleid.

Stel jezelf kort voor! Dan weet het betreffende bedrijf wie hun model gedownload heeft.
Wil je niet bij elke download jouw gegevens in hoeven voeren?
Klik dan hier om in te loggen.

Heb je nog geen account? Maak dan hier een gratis account aan.
Voornaam
Achternaam
E-mailadres
Downloaden
Wanneer je modellen downloadt op Architectenweb.nl worden relevante gegevens van jou – zoals jouw naam en e-mailadres – met het betreffende bedrijf gedeeld. Meer hierover lees je in ons privacybeleid.

Locatie

Neem contact op met KAAN Architecten

Je bent momenteel niet ingelogd. Hierdoor is het alleen mogelijk om meer informatie per e-mail op te vragen. Wil je liever gebeld worden of documentatie per post ontvangen? Klik dan hier om in te loggen.
Heb je nog geen account? Maak dan hier een gratis account aan.
Voornaam
Achternaam
E-mailadres
Opmerkingen
Bij iedere aanvraag worden relevante gegevens van jou gedeeld met het betreffende bedrijf. Meer hierover lees je in ons privacybeleid.
Ja, denk met me mee rond de
materialisering van mijn project

Meer projecten van KAAN Architecten

Gerelateerde producten

ATAG Nederland
KUBUS | Specialist in Archicad
SAPA
Reynaers Aluminium Nederland
Jansen
SAB-profiel bv
Aliplast Aluminium Systems
Kingspan Light & Air
ALUCOBOND®
Caparol
Tarkett BV
Kawneer
Grohe Nederland B.V.
Malaysian Timber Council
OCS | Office Cabling Systems
Swisspearl Nederland
Forster Nederland N.V.
VELUX Commercial Benelux B.V.
Sempergreen
Houthandel van Dam
Aluprof Nederland BV
QbiQ Wall Systems
Forbo Flooring
Schüco Nederland
Cedral
Sto Isoned bv
Triflex bv
Gorter Luiken BV
wienerberger
DUCO Ventilation & Sun Control
BEWI IsoBouw
ROCKWOOL B.V.
Mview+
Rockfon (ROCKWOOL B.V.)
Gira Nederland B.V.
Kingspan Geïsoleerde Panelen
GEZE Benelux  B.V.
Renson
Metaglas Groep
ABB | Busch-Jaeger
Jung | Hateha B.V.
Knauf B.V.
Saint-Gobain Glass Benelux
Faay Vianen B.V.
objectflor
Boon Edam Nederland B.V.
Hunter Douglas Architectural
VOLA Nederland BV
Forbo Eurocol Nederland B.V.
EQUITONE gevelpanelen
Holonite B.V.
Tata Steel Colorcoat®
Architectenweb
Over ons
Contact

© 2002 - 2026 Architectenweb BV / Voorwaarden / Privacy / Disclaimer / Sitemap
Annuleren
OK
Sluiten
Doorgaan
Inloggen
Maak een gratis persoonlijk account aan