Abonneer je nu op onze nieuwsbrieven!
Abonneren
Nee, bedankt
Ja, denk met me mee rond de
materialisering van mijn project
Producten
The Square - Host area
Copyright: Stijn Poelstra
The Square - Host area
Copyright: Stijn Poelstra
The Square - Display cabinet
Copyright: Stijn Poelstra
The Square - Amphitheatre
Copyright: Stijn Poelstra
The Square - Corridor to cinema
Copyright: Stijn Poelstra
The Square - Cinema
Copyright: Stijn Poelstra
The Square - Social area
Copyright: Stijn Poelstra
The City - Meeting rooms
Copyright: Stijn Poelstra
The City - Meeting rooms
Copyright: Stijn Poelstra
The City - Boardroom
Copyright: Stijn Poelstra
The City - Soundstudios
Copyright: Stijn Poelstra
The City - Soundstudios
Copyright: Stijn Poelstra
The City - Sony's exclusive area
Copyright: Stijn Poelstra
The Studios
Copyright: Stijn Poelstra
The Studios
Copyright: Stijn Poelstra
The Studios - Social area
Copyright: Stijn Poelstra
The Studios - Collaboration area
Copyright: Stijn Poelstra
The Escape - Oasis
Copyright: Stijn Poelstra
The Escape - Restaurant
Copyright: Stijn Poelstra
The Escape - Restaurant
Copyright: Stijn Poelstra
The City - MER
Copyright: Stijn Poelstra
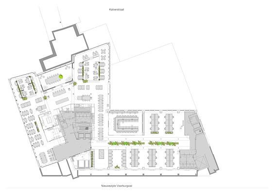
Layout first floor - The Square & The City
Copyright: CBRE Nederland
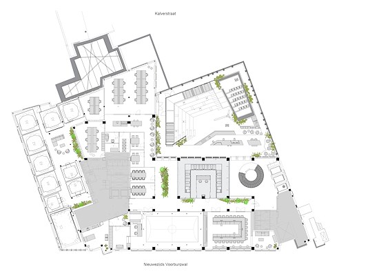
Principle layout second, third & fourth floor - Guerrilla Studio
Copyright: CBRE Nederland
Layout fifth floor - The Escape & Guerrilla Studio
Copyright: CBRE Nederland
ProducttagsAANUIT

Guerrilla’s world, Amsterdam

16 juni 2021
Amsterdam is de geboorteplaats van Guerrilla, een toonaangevende ontwikkelaar van games. Het team van 350 ‘guerrilla's’ komt uit meer dan 20 verschillende landen en verlegt al sinds 2000 de technische en artistieke grenzen op het gebied van gaming. Guerrilla ontwikkelde onder andere de veelgeprezen blockbusters ‘Horizon: Zero Dawn’ en ‘Killzone’.

Het ontwerpteam van CBRE werd uitgenodigd om een nieuwe en unieke ruimte voor het gamingbedrijf te ontwerpen. Een eerste vereiste was dat het pand ruimte moest bieden aan het volledige creatieve team van animators, developers, audio engineers, motion capture technicians en andere professionals. In het gebouw moesten ook een aantal custom studio's komen met speciale audiovisuele apparatuur, allerlei verschillende ruimtes voor creatieve samenwerking, en een ruimte voor de enorme dataservers.

Guerrilla koos een monumentaal pand als nieuwe thuisbasis. De keuze viel op het voormalige Telegraafgebouw aan de Amsterdamse Nieuwezijds Voorburgwal, nabij de Dam. Het monumentale gebouw stamt uit 1930, het hoogtepunt van de art deco-periode, en werd ontworpen door de architecten Staal en Langhout.

De uitdaging
De uitdaging voor CBRE was om de originele elementen van het gebouw te behouden en weer tot leven te brengen. Deze elementen zijn kenmerkend voor de bouwstijl van die tijd – zoals de spectaculaire marmeren hal – en getuigen van de grandeur van weleer. Voor ons was de uitdaging om die grandeur van vroeger te behouden, maar dan in een toekomstbestendige vorm: met een interieur waar nieuwe ideeën worden geboren in een speelse, futuristische ruimte die uitdrukking geeft aan de unieke persoonlijkheid van Guerrilla. 

Ruimtes om van te dromen
Tijdens het creatieve deel van het ontwerpproces werden parallellen getrokken tussen het oude gebouw en het nieuwe interieur – zoals de drukpers versus de computer, analoog versus digitaal, realiteit versus fantasie. Dit hielp om zowel de traditionele elementen als de moderne eisen niet uit het oog te verliezen. Om te visualiseren hoe het gebouw eruit zou kunnen komen te zien, stelden we ons het gebouw voor als een open-world game. 

Om de ruimtes in onze 'open wereld' af te bakenen, stelden we ons de vijf verdiepingen van het gebouw voor als levels in een game. Elk level moest zijn eigen persoonlijkheid krijgen. We gaven elk level ook een naam: Welcome Area/Guerrilla Square, Guerrilla City, Guerrilla Studio en The Escape.

Werkelijkheid en fantasie komen samen
We ontwierpen elke ruimte met een andere functie in gedachten. In de ontvangstruimte zorgt een gigantische armatuur in de vorm van een deeltjeswolk, geïnspireerd door digitale netwerken, voor een warm welkom voor elke gebruiker. Dit contrasteert prachtig met de oude marmeren muren. Guerrilla Square heeft de functie van een historisch centrum; hier bruist het van de activiteit met een café en koffiebar, uitzicht op de historische Oude Kerk, en een cinema en amfitheater waar guerrilla's kunnen samenkomen voor bijeenkomsten of om te gamen. Dan is er Guerrilla Studio, een serene, lichte en ruime verdieping waar guerrilla's alle ruimte hebben om hun eigen persoonlijkheid te laten spreken, in een informele setting. The Escape is een rooftop bar met een prachtig panoramisch uitzicht over de stad. Hier kunnen de guerrilla's even tot zichzelf komen en van de zonsondergang of een versbereide maaltijd uit de open keuken genieten.

Guerrilla City bevindt zich op de eerste verdieping. Hier zijn de ultramoderne geluidsstudio's te vinden, een speciale motion capture studio, en verschillende meeting rooms waar bezoekers een glimp kunnen opvangen van de nieuwste games waaraan wordt gewerkt. Het pièce de résistance is MER, het enorme 'collectieve brein' dat zichtbaar is vanuit elke hoek van de verdieping en het guerrilla-zenuwcentrum vormt met daarin alle creatieve output. CBRE besloot de server juist tot een blikvanger te maken, in plaats van hem zo onopvallend mogelijk weg te werken. Zo trokken we een parallel met de vroegere functie van het gebouw – toen drukpersen het hart van de krantenindustrie vormden.

Het resultaat spreekt voor zich: uiterst functionele ruimtes waar guerrilla's kunnen dromen, creëren en innoveren.

Gebruik van onconventionele materialen
Waar mogelijk hebben we creatief nagedacht over het gebruik van materialen die zowel duurzaam als esthetisch zijn. Ons team heeft zich laten inspireren door technieken als Shou Sugi Ban, een Japanse techniek om hout te branden om het te verduurzamen. Dit is slechts één voorbeeld van materiaalgebruik dat zowel praktisch als esthetisch is. Dankzij onze duurzame keuzes kreeg het gebouw een ‘BREEAM In-Use’ energielabel.

Meer groen
We gebruikten enorm veel groen om het gebouw tot leven te wekken, net als het landschap van een open-world game. Uiteenlopende planten van verschillende groottes creëren een bijna buitenaards landschap, met inspiratie uit anime en digitale illustraties. De planten lijken naar voren te springen uit plantenbakken die zijn ingebouwd in de verdiepingsvloeren en lijken op 'gescheurd papier' – een verwijzing naar de enorme klus voor animators om een karakter tot leven te brengen. Ook helpt de reflectie van de planten in spiegels en speciale armaturen om een dramatische en dynamische sfeer te creëren. Planten hebben bovendien verschillende praktische functies: ze bieden een gezonde werkomgeving voor medewerkers, begeleiden bezoekers visueel door het gebouw, en leveren verse kruiden.

Alle manieren waarop mensen werken
Met dit project hebben we de dromen van de gamestudio tot leven gebracht in een heel bijzondere omgeving, tot in detail afgestemd op de persoonlijkheid van Guerrilla. Het gebouw stelt de mens centraal en stimuleert de samenwerking en creatieve processen die zo belangrijk zijn voor de ontwikkeling van games. Het is een plaats waar de beste games ter wereld werkelijkheid worden. En het is een basis waar de inclusieve cultuur van de gamestudio wordt gekoesterd, waar mensen samenkomen, een gemeenschap vormen en samenwerken in een open en warme omgeving.

Het allerbelangrijkst was om in te spelen op de vele verschillende manieren waarop de guerrilla's werken. We ontwierpen bureaus die aan al hun wensen voldoen. We bedachten creatieve oplossingen, zoals unieke deurkloppers op gekleurde klassieke deuren om de verschillende meeting rooms aan te geven, en designvloerkleden in de verschillende ruimtes. Er is een speciale directietafel met een bank in het midden en stoelen rondom om sociale hiërarchieën te doorbreken, en inclusiviteit en samenwerking over de hele linie te bevorderen. Helemaal afgestemd op de manier van werken van de gamestudio.

Samenwerking centraal
CBRE Design is heel trots op het feit dat we de manier waarop gamestudio's werken en functioneren helemaal opnieuw vorm hebben gegeven door innovatief te denken, de mens centraal te stellen en creatieve oplossingen te vinden. Daarvoor was een zeer nauwe samenwerking met de klant nodig. De klant werd stap voor stap meegenomen in het ontwerpproces en elke twee weken werden de laatste ontwikkelingen doorgesproken, zodat de klant altijd voldoende tijd had om zaken te herzien. Hierdoor was het een intensief proces, maar het zorgde wel dat alle betrokkenen het gevoel hadden dat het ook echt hun project was.

Stel jezelf kort voor! Dan weet het betreffende bedrijf wie hun model gedownload heeft.
Wil je niet bij elke download jouw gegevens in hoeven voeren?
Klik dan hier om in te loggen.

Heb je nog geen account? Maak dan hier een gratis account aan.
Voornaam
Achternaam
E-mailadres
Downloaden
Wanneer je modellen downloadt op Architectenweb.nl worden relevante gegevens van jou – zoals jouw naam en e-mailadres – met het betreffende bedrijf gedeeld. Meer hierover lees je in ons privacybeleid.

Locatie

Neem contact op met CBRE Nederland

Je bent momenteel niet ingelogd. Hierdoor is het alleen mogelijk om meer informatie per e-mail op te vragen. Wil je liever gebeld worden of documentatie per post ontvangen? Klik dan hier om in te loggen.
Heb je nog geen account? Maak dan hier een gratis account aan.
Voornaam
Achternaam
E-mailadres
Opmerkingen
Bij iedere aanvraag worden relevante gegevens van jou gedeeld met het betreffende bedrijf. Meer hierover lees je in ons privacybeleid.
Ja, denk met me mee rond de
materialisering van mijn project

Meer projecten van CBRE Nederland

ATAG Nederland
KUBUS | Specialist in Archicad
SAPA
Reynaers Aluminium Nederland
Jansen
SAB-profiel bv
Aliplast Aluminium Systems
Kingspan Light & Air
ALUCOBOND®
Caparol
Tarkett BV
Kawneer
Grohe Nederland B.V.
Malaysian Timber Council
OCS | Office Cabling Systems
Swisspearl Nederland
Forster Nederland N.V.
VELUX Commercial Benelux B.V.
Sempergreen
Houthandel van Dam
Aluprof Nederland BV
QbiQ Wall Systems
Forbo Flooring
Schüco Nederland
Cedral
Sto Isoned bv
Triflex bv
Gorter Luiken BV
wienerberger
DUCO Ventilation & Sun Control
BEWI IsoBouw
ROCKWOOL B.V.
Mview+
Rockfon (ROCKWOOL B.V.)
Gira Nederland B.V.
Kingspan Geïsoleerde Panelen
GEZE Benelux  B.V.
Renson
Metaglas Groep
ABB | Busch-Jaeger
Jung | Hateha B.V.
Knauf B.V.
Saint-Gobain Glass Benelux
Faay Vianen B.V.
objectflor
Boon Edam Nederland B.V.
Hunter Douglas Architectural
VOLA Nederland BV
Forbo Eurocol Nederland B.V.
EQUITONE gevelpanelen
Holonite B.V.
Tata Steel Colorcoat®
Architectenweb
Over ons
Contact

© 2002 - 2026 Architectenweb BV / Voorwaarden / Privacy / Disclaimer / Sitemap
Annuleren
OK
Sluiten
Doorgaan
Inloggen
Maak een gratis persoonlijk account aan