Projecten
Producten
Bedrijven
Vacatures
Agenda
Awards
Podcasts
more_horiz
Videos
Magazine
Thema's
Favorieten
Profiel
Uitloggen
Producten
gevel binnentuin + project-dak
Copyright: Franziska Mueller Schmidt
Roeskestraat-zijde
Copyright: Jeroen Verrecht
campus terrein
Copyright: Johannes Schwartz
oostgevel
Copyright: Jeroen Verrecht
houtwerkplaats + assemblagehal
Copyright: Johannes Schwartz
assemblagehal
Copyright: Jeroen Verrecht
assemblagehal
Copyright: Johannes Schwartz
keramische wand: Caro de Jonge
Copyright: Studio Paulien Bremmer
sousterrain
Copyright: Jeroen Verrecht
bibliotheek ism Nils Norman
Copyright: Jeroen Verrecht
theorietrap
Copyright: Johannes Schwartz
nivo 1, rolwanden: studio Anne Dessing
afdelingsruimte Sandberg
Copyright: Johannes Schwartz
noordgevel
Copyright: Jeroen Verrecht
situatie
Producttags
AAN
UIT
Uitbreiding Rietveld Academie + Sandberg Instituut
29 juni 2020
1
0
0
0
Op het terrein van de Gerrit Rietveld Academie en het Sandberg Instituut is gedreven door ruimtegebrek, tegenover het gebouw ontworpen door Gerrit Rietveld en naast de uitbreiding van Benthem Crouwel, het completerende derde gebouw toegevoegd. De ontstane campus biedt ruimte voor een nieuwe setting voor het kunstonderwijs.
Gebruikersexpertise en experiment
Wat betreft de architectenselectie koos de kunstopleiding ervoor dicht bij het karakter van de gemeenschap te blijven en een interne prijsvraag uit te schrijven. Fedlev won: een ontwerperscollectief voortkomend uit de Rietveld gemeenschap onder leiding van architect Paulien Bremmer. Het collectief heeft als gebruikersexpert de vrijheid genomen om in brede zin na te denken over de toekomst van de academie. Met het ontwerp is een parallel getrokken tussen de ontwikkeling van het gebouw en de ontwikkeling van het kunstonderwijs.
Binnen het onderwijs op de Rietveld Academie speelt experiment een belangrijke rol. Dat betekent ook letterlijk ‘ruimte om over grenzen heen werken’. Maar de bestaande autonome afdelingen structuur faciliteerde dat onvoldoende. Met het ontwerp is gezocht naar het doorbreken van de structuur ten dienste van ruimte voor meer samenwerking en uitwisseling tussen zowel de afdelingen als de studenten onderling. Een tweede ambitie was om een
‘open’
gebouw te maken wat ruimte biedt voor verovering, invulling en divers gebruik. Een gebouw als een ‘backdrop’ voor het maken. Een gebouw wat ruimte geeft.
Interactie als uitgangspunt
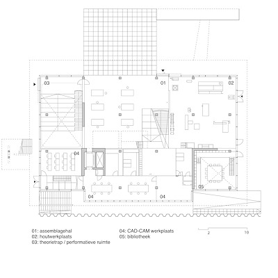
In de voorontwerpfase ging Fedlev de samenwerking met Hootsmans architectuurbureau aan. Zo is in het voorjaar van 2019 op de voormalige parkeerplaats tegenover de door Gerrit Rietveld ontworpen school en naast de eerste uitbreiding van Benthem Crouwel, de tweede uitbreiding opgeleverd. Het lage gebouw met een rechthoekige plattegrond bestaat uit drie bouwlagen waarvan de onderste zich onder het maaiveld bevindt en de bovenste uitkraagt. Aan straatzijde ligt prominent en duidelijk zichtbaar de houtwerkplaats. Op de eerste verdieping huizen de master-studenten van het Sandberg Instituut. Overige ruimten in het gebouw zijn gedeelde functies als aula, bibliotheek en filmstudio.
Door een herschikking van het programma van de drie gebouwen is rondom de begane grond een collectief maaiveld ontstaan die ruimte biedt aan ontmoeting en uitwisseling. De glazen gevel van de uitbreiding is op veel plekken te openen, waardoor interactie tussen de gebouwen wordt gefaciliteerd. De plek die de nieuwbouw op maaiveld inneemt, wordt teruggegeven als werkruimte op het dak. Uitgerust met ankerpunten en electra biedt het vrij de ruimte voor exposities, performances of het maken van tijdelijke constructies.
Om interdisciplinariteit te stimuleren heeft het ontwerpteam als invulling binnen het
open
programma van eisen, op verschillende verdiepingen door de gebouwen heen, projectruimtes geïntroduceerd. De verzameling diverse ruimten bieden studenten plek om vrij tussen de afdelingenstructuur, samen te werken en te experimenteren.
Architectonische uitwerking
De vloeren en functies in het gebouw zijn op meerdere manieren met elkaar verbonden en zijn onderdeel van een continue landschappelijke ruimtelijkheid. Transparantie en visuele verbanden bepalen het interieur. Trappenhuizen en gangenstructuren ontbreken.
‘Het maken’
is doorlopend zichtbaar en wordt interdisciplinair uitgewisseld.
Wisselende vaak industrieel gematerialiseerde vloeren en wanden definiëren opeenvolgende plekken. Directe en ongepolijste detaillering wisselt een juist hele verfijnde en precieze detaillering af. Zo wordt ook op de kleine schaal ruimte voor interpretatie en mogelijkheden gegeven. De diversiteit aan ruimten wordt opgevoerd met de introductie van de '
White Spaces'
; onderdelen van het interieur die Fedlev reserveerde om door derden binnen de gemeenschap te worden uitgevoerd.
Door een slimme en low-tech opbouw van de buitengevel wordt natuurlijk geventileerd, zijn installaties tot een minimum beperkt en heeft de gebruiker direct invloed op het klimaat van de omgeving. Door de overstekken en de gewoven staalgevel wordt verhitting door zoninstraling beperkt. Onder de overstekken ontstaan overgangsruimte waar de tafels door de opengevouwen gevel naar buiten kunnen worden gerold en in de open lucht kan worden gewerkt.
Stel jezelf kort voor! Dan weet het betreffende bedrijf wie hun brochure gedownload heeft.
Wil je niet bij elke download jouw gegevens in hoeven voeren?
Klik dan hier om in te loggen
. Heb je nog geen account?
Maak dan hier een gratis account aan
.
Voornaam
Achternaam
E-mailadres
Downloaden
Wanneer je brochures downloadt op Architectenweb.nl worden relevante gegevens van jou – zoals jouw naam en e-mailadres – met het betreffende bedrijf gedeeld. Meer hierover lees je in ons
privacybeleid
.
Wanneer je brochures downloadt op Architectenweb.nl worden relevante gegevens van jou – zoals jouw naam en e-mailadres – met het betreffende bedrijf gedeeld. Meer hierover lees je in ons
privacybeleid
.
Brochure
Stel jezelf kort voor! Dan weet het betreffende bedrijf wie hun model gedownload heeft.
Wil je niet bij elke download jouw gegevens in hoeven voeren?
Klik dan hier om in te loggen
.
Heb je nog geen account?
Maak dan hier een gratis account aan
.
Voornaam
Achternaam
E-mailadres
Downloaden
Wanneer je modellen downloadt op Architectenweb.nl worden relevante gegevens van jou – zoals jouw naam en e-mailadres – met het betreffende bedrijf gedeeld. Meer hierover lees je in ons
privacybeleid
.
Locatie
Trefwoorden
anastasia starostenko
chris bakker
bremen bouwadvies
hootsmans architectuurbureau
breed id
schoolgebouw
campus
studio anne dessing
academie
kunstacademie
bouwbedrijf de nijs en zonen
mobius consult
abt
studio paulien bremmer
nils norman
rietveld academie
school
caro de jonge
Architectenweb Awards 2020
Schoolgebouw van het Jaar
Winnaar
Bekijk alle genomineerden
Studio Paulien Bremmer
Neem contact op
Projectdata
Staat van realisatie
Voltooid
Start ontwerpproces
2011
Start bouw
2016
Oplevering
2019
Ingebruikname
2020
Plaats
Amsterdam
Kosten
52000
Meewerkende partijen
Architect
Studio Paulien Bremmer | Fedlev in samenwerking met Hootsmans architectuurbureau
Projectarchitect
Paulien Bremmer
Aannemer
Bouwbedrijf de Nijs en zonen
Constructeur
Breed ID
Adviseurs installaties E & W
Mobius Consult
Fotograaf
Franziska Mueller Schmidt, Jeroen Verrecht, Johannes Schwartz
Ontwerper
interieur Sandberg: Studio Anne Dessing, ontwerp keramische wand: Caro de Jonge, ontwerp gordijn theorietrap: Anastasia Starostenko, meubilair houtwerkplaats: werkplaatsbeheerders + Fedlev, buitenmeubilair: Chris Bakker + Anna Navndrup, interieur bibliotheek: Nils Norman met Fedlev
Projectmanagement
Van Doorn Management for Architecture, ICS-adviseurs,
ABT bv
Adviseur bouwkosten
Bremen Bouwadviseurs B.V.
Directievoering
ABT bv
Leveranciers
Overig
Johannes Schwartz, Kersten, Rollecate, rolecate, Franziska Mueller Schmidt, Kersten Kozijnen, Jeroen Verrecht, Admiraal, Hoco Beton, Sterk, HOCO, Welmecom
Neem contact op met
Studio Paulien Bremmer
Je bent momenteel niet ingelogd. Hierdoor is het alleen mogelijk om meer informatie per e-mail op te vragen. Wil je liever gebeld worden of documentatie per post ontvangen?
Klik dan hier om in te loggen
.
Heb je nog geen account?
Maak dan hier een gratis account aan
.
Voornaam
Achternaam
E-mailadres
Opmerkingen
Bij iedere aanvraag worden relevante gegevens van jou gedeeld met het betreffende bedrijf. Meer hierover lees je in ons
privacybeleid
.
Ja, denk met me mee rond de
materialisering van mijn project
Meer projecten van Studio Paulien Bremmer
Andere Projecten
Verlichting fietsenstalling Koopgoot Rotterdam
Loerakker led line
Efficiënt afvaltransport in ziekenhuis St. Jansdal
Stansz
Emco entreematten in museale architectuur
EMCO Benelux B.V.
Duurzame zwembadroosters voor zwemcentrum De Welle
EMCO Benelux B.V.
Gorter dakluiken op Spaarnwoude Park Hotel
Gorter Luiken BV
Veilige daktoegang nieuwbouw Emmapark
Gorter Luiken BV
Houten huis in de polder - WaxedWood Gold Color
Foreco Houtproducten
Ottho Amsterdam - geluidwerende balkonbeglazing
Solarlux Nederland B.V.
Groningse baksteenarchitectuur met Clickbrick Pure
wienerberger
Duurzame transformatie met groene gevel in Utrecht
Sempergreen
Low Carbon isolatieglas van Vandaglas voor Kavel F
Vandaglas b.v.
BDO kantoor Breda
ULMA Architectural Solutions
Ga naar het projecten-overzicht
Voor een optimale gebruikservaring plaatst Architectenweb functionele cookies. Wat de verschillende cookies precies doen leggen we uit in een
overzicht
. Cookies van social media kun je optioneel
aanzetten
.
Akkoord
Instellingen
Annuleren
OK
Sluiten
Doorgaan
Inloggen
Maak een gratis persoonlijk account aan
Feedback
Feedback
Wij horen graag jouw feedback. Laat je reactie achter en eventueel jouw e-mail adres.
Reactie
Verstuur