Projecten
Producten
Bedrijven
Vacatures
Agenda
Awards
Podcasts
more_horiz
Videos
Magazine
Favorieten
Profiel
Uitloggen
Abonneer je nu op onze nieuwsbrieven!
Abonneren
Nee, bedankt
Ja, denk met me mee rond de
materialisering van mijn project
Producten
Copyright: Allard van der Hoek
Copyright: Max Hart Nibbrig
Copyright: Allard van der Hoek
Copyright: Allard van der Hoek
Copyright: Allard van der Hoek
Situatie
Copyright: BureauVanEig
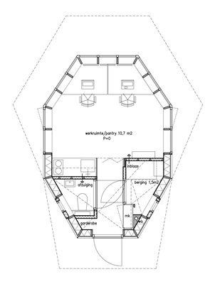
Plattegrond
Copyright: BureauVanEig
Langsdoorsnede
Copyright: BureauVanEig
Producttags
AAN
UIT
Portiersloge, Westergasfabriekterrein
30 juni 2020
0
0
0
0
De nieuwe portiersloge voor het Westergasfabriekterrein in Amsterdam staat centraal op het terrein, direct na de stalen brug. Het compacte gebouwtje biedt plaats aan twee portiers, een keuken, toiletruimte, installaties en bergruimte. Het was een uitdaging om de footprint van het gebouwtje te passen binnen het bestemmingsplan. Het ontwerp is zorgvuldig ingepast in de monumentale omgeving.
De gebouwen en het terrein van de Westergasfabriek zijn aan het einde van de 19e eeuw ontworpen door architect Isaac Gosschalk. Hij ontwierp in een voor die tijd kenmerkende en door hemzelf mede vormgegeven Hollandse renaissancistische-eclectische stijl. Het is een rechtlijnig en rationeel ontworpen fabriekscomplex met prachtige, robuuste gebouwen van rode baksteen, voorzien van ornamenten.
In het ontwerp is omgegaan met deze monumentale context, op een manier die verder bouwt met de kenmerkende thema’s. Het nieuwe gebouwtje is achthoekig, gelijk aan de vorm van de historische, afgebroken portiersloge. Deze vorm is ideaal voor de functie; het garandeert de juiste zichtlijnen voor de portiers van binnen naar buiten en andersom, voor de bezoekers naar het gebouwtje en landschap. Het vormt bovendien een mooie echo van de kop van de bakkerswinkel.
Er is er gekozen voor -grotendeels- biobased materiaalgebruik en energieopwekking. Behalve de gevelafwerking is het hele gebouwtje van hout met vlaswol isolatie rondom. Het wordt verwarmd en gekoeld door middel van een splitunit en WTW systeem. De zeven PV-panelen op het dak voorzien de ruimte van stroom. De grote luifel werkt uitnodigend en weert de zon.
De gevel is afgewerkt met koper geanodiseerde aluminium traanplaten. Deze platen passen bij het industriële karakter van het gebied, waar naast de rode steen ook veel metaal te vinden is. De diamantvormige tranen vormen robuuste ornamentjes. De belijning van de platen en de koperkleur vindt aansluiting bij de omliggende gebouwen. De bleekgroene kleur van de kozijnen en het overstek zorgt voor een eigenzinnig karakter, de kleur past bovendien goed bij al het groen in de omgeving. De belettering geeft een sierlijk accent aan de loge. Van verre lijkt het decoratie, van dichtbij is te lezen: licht en energie, lang leve de Westergasfabriek!
Stel jezelf kort voor! Dan weet het betreffende bedrijf wie hun brochure gedownload heeft.
Wil je niet bij elke download jouw gegevens in hoeven voeren?
Klik dan hier om in te loggen
. Heb je nog geen account?
Maak dan hier een gratis account aan
.
Voornaam
Achternaam
E-mailadres
Downloaden
Wanneer je brochures downloadt op Architectenweb.nl worden relevante gegevens van jou – zoals jouw naam en e-mailadres – met het betreffende bedrijf gedeeld. Meer hierover lees je in ons
privacybeleid
.
Wanneer je brochures downloadt op Architectenweb.nl worden relevante gegevens van jou – zoals jouw naam en e-mailadres – met het betreffende bedrijf gedeeld. Meer hierover lees je in ons
privacybeleid
.
Brochure
Stel jezelf kort voor! Dan weet het betreffende bedrijf wie hun model gedownload heeft.
Wil je niet bij elke download jouw gegevens in hoeven voeren?
Klik dan hier om in te loggen
.
Heb je nog geen account?
Maak dan hier een gratis account aan
.
Voornaam
Achternaam
E-mailadres
Downloaden
Wanneer je modellen downloadt op Architectenweb.nl worden relevante gegevens van jou – zoals jouw naam en e-mailadres – met het betreffende bedrijf gedeeld. Meer hierover lees je in ons
privacybeleid
.
Locatie
Trefwoorden
amsterdam
bureauvaneig
westergasfabriek
portiersloge
kantoor
traanplaat
aluminium
marjolein van eig
BureauVanEig
Neem contact op
Projectdata
Staat van realisatie
Voltooid
Start ontwerpproces
2018
Start bouw
2020
Oplevering
2020
Ingebruikname
2020
Plaats
Amsterdam
Bruto m
2
21
Netto m
2
17
Meewerkende partijen
Architect
BureauVanEig
Projectarchitect
Marjolein van Eig
Ontwerpteam
Marjolein van Eig, Sophie van Dorsten, Marinda Verschoor, Jeroen de Winter
Opdrachtgever
Gemeente Amsterdam
Aannemer
Bouw- en aannemingsbedrijf Kneppers
Constructeur
Bouwadviesbureau Strackee
Adviseurs installaties E & W
Merosch
Fotograaf
Allard van der Hoek, Max Hart Nibbrig
Leveranciers
Overig
Kawneer
, Allard van der Hoek en, Max Hart Nibbrig, Stieva metaal groep, Allard van der Hoek
Neem contact op met
BureauVanEig
Je bent momenteel niet ingelogd. Hierdoor is het alleen mogelijk om meer informatie per e-mail op te vragen. Wil je liever gebeld worden of documentatie per post ontvangen?
Klik dan hier om in te loggen
.
Heb je nog geen account?
Maak dan hier een gratis account aan
.
Voornaam
Achternaam
E-mailadres
Opmerkingen
Bij iedere aanvraag worden relevante gegevens van jou gedeeld met het betreffende bedrijf. Meer hierover lees je in ons
privacybeleid
.
Ja, denk met me mee rond de
materialisering van mijn project
Meer projecten van BureauVanEig
Coffee & bikes, Delft
BureauVanEig
Andere Projecten
Heger en Veldwijk Automotive in Harderwijk
FALK®
Kant & Klaar Hagen verminderen luchtvervuiling
Mobilane
Koelmalaan, Alkmaar – Houtbouw wooncomplex
Sto Isoned bv
Ballast Nedam
OTH architecten
WTC | Almere
Plan Effect Systeemwanden
Paviljoens Vleuterweide in Utrecht
SSAB Swedish Steel BV
Berghaus Plaza in Amsterdam
Alucol
Zwaarlast deksels voor betonputten in Swifterbant
Van den Berg Afvoerputten BV
Hooihuisboerderij, Landsmeer
Bastiaan Jongerius Architecten
Six Degrees Café
Malaysian Timber Council
Open vloergootsysteem voor The CubeHouse Amsterdam
HPL Systems BV
Almere De Laren
Schippers Architecten
Ga naar het projecten-overzicht
Voor een optimale gebruikservaring plaatst Architectenweb functionele cookies. Wat de verschillende cookies precies doen leggen we uit in een
overzicht
. Cookies van social media kun je optioneel
aanzetten
.
Akkoord
Instellingen
Annuleren
OK
Sluiten
Doorgaan
Inloggen
Maak een gratis persoonlijk account aan
Feedback
Feedback
Wij horen graag jouw feedback. Laat je reactie achter en eventueel jouw e-mail adres.
Reactie
Verstuur