Projecten
Producten
Bedrijven
Vacatures
Agenda
Awards
Podcasts
more_horiz
Videos
Magazine
Thema's
Favorieten
Profiel
Uitloggen
Abonneer je nu op onze nieuwsbrieven!
Abonneren
Nee, bedankt
Ja, denk met me mee rond de
materialisering van mijn project
Producten
exterieur nieuwbouw
Copyright: fotografie: Sebastian van Damme
exterieur nieuwbouw / oudbouw
Copyright: fotografie: Sebastian van Damme
Boerderij de Kapel
Copyright: onbekend
Interieur verbindingsgang
Copyright: fotografie: Sebastian van Damme
situatietekening
Copyright: De Kovel Architecten / Studio AAAN
exterieur nieuwbouw / boerderij
Copyright: fotografie: Sebastian van Damme
overzichtsplattegrond Hospice
Copyright: De Kovel Architecten / Studio AAAN
exterieur nieuwbouw / boerderij
Copyright: fotografie: Herman de Kovel
Schematische Doorsnede
Copyright: De Kovel Architecten / Studio AAAN
exterieur nieuwbouw / verbindingsgang
Copyright: fotografie: Sebastian van Damme
omsloten binnenplaats
Copyright: fotografie: Herman de Kovel
exterieur kopgevel nieuwbouw
Copyright: fotografie: Sebastian van Damme
exterieur nieuwbouw / boerderij
Copyright: fotografie: Sebastian van Damme
exterieur nieuwbouw / boerderij
Copyright: fotografie: Herman de Kovel
plattegrond nieuwbouw
Copyright: De Kovel Architecten / Studio AAAN
Interieur gangzone nieuwbouw
Copyright: fotografie: Sebastian van Damme
interieur gastenkamer nieuwbouw
Copyright: fotografie: Sebastian van Damme
interieur oudbouw
Copyright: fotografie: Herman de Kovel
exterieur nieuwbouw / boerderij
Copyright: fotografie: Herman de Kovel
fragment zuidgevel nieuwbouw
Copyright: De Kovel Architecten / Studio AAAN
exterieur Noord/West gevel nieuwbouw
Copyright: fotografie: Sebastian van Damme
fragment noordgevel verbindingsgang
Copyright: De Kovel Architecten / Studio AAAN
exterieur zuidgevel nieuwbouw
Copyright: fotografie: Sebastian van Damme
Producttags
AAN
UIT
Hospice "De Liefde"
30 juni 2020
1
0
0
0
Aan de zuidrand van Rotterdam staat de monumentale boerderij ‘de Kapel’. Dit rijksmonument is herontwikkeld tot een centrum voor terminale zorg: ‘Hospice de Liefde’. De met riet gedekte boerderij is ingrijpend verbouwd en uitgebreid. Met de nieuwe vleugel wordt de beleving van de routing door het monument en de tuin, de natuur, het licht en de ruimtelijkheid ingezet om bij te dragen aan het waardig afscheid nemen.
De 18
e
eeuwse boerderij, van het Overmaasse dwarsdeeltype, werd in 1975 benoemd tot Rijksmonument. Van 1992 tot 2017 is boerderij De Kapel in gebruik geweest als werkcentrum voor volwassenen met een (licht) verstandelijke handicap. Door ingrijpende verbouwingen in het verleden ligt de monumentale waarde van de bestaande boerderij nu met name in de typologie van het gebouw, het woonhuis, de oude gevels en het imposante rieten dak.
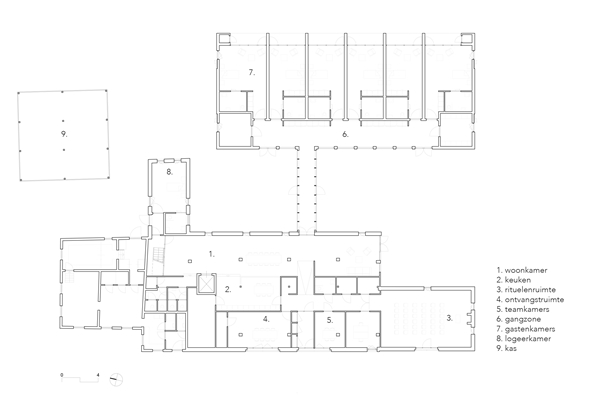
De voormalige koestal wordt gebruikt als woonkamer van de hospice. In deze lange ruimte zijn de oude monumentale spanten nog zichtbaar. Overige functies als de keuken, ontvangstruimte, logeerkamer en teamkamers grenzen direct aan deze ruimte. In een dubbelhoge ruimte op de kop van de boerderij is de ‘rituelen ruimte’ ondergebracht, een ruimte waar mensen bij elkaar kunnen komen om te herdenken en afscheid te nemen vanuit een boeddhistische inspiratie.
Vanaf de gezamenlijke ruimtes in de boerderij loopt een glazen gang naar het nieuwe gebouw met de gastenkamers. De ervaring van het groen, de natuur en het licht staat hier centraal. Daarom heeft de gaanderij rondom de omsloten tuin veel glas. Houten kolommen, houten wanden en kasten geven de ruimte een duidelijk ritme.
Bij de herontwikkeling van de boerderij tot hospice is ervoor gekozen om de zes gastenkamers buiten de oude boerderij te situeren. De eisen die gesteld worden aan goede woonvertrekken (geluid, daglicht, ventilatie en isolatie) zijn moeilijk te realiseren zonder de monumentale waarden van de boerderij aan te tasten. De nieuwbouw kon hierdoor worden voorzien van een grondwarmtepomp, zonnecellen en ventilatie met warmteterugwinning.
De architectuur van de uitbreiding is geïnspireerd op de donkere houten schuren die bij veel boerderijen van dit type te vinden zijn. Hierdoor vormt de boerderij samen met de ingetogen uitbreiding een harmonieus en vanzelfsprekend geheel in het landschap. Anders dan een traditionele schuur heeft de nieuwbouw een moderne vormgeving met bronskleurige kozijnen en een zinken dak met geïntegreerde zonnecellen. Zowel de draagconstructie, als de gevelbekleding en een groot deel van de interieurafwerking is van hout.
De gastenkamers zijn vanuit de gang langs de binnentuin te bereiken. Elke kamer heeft een eigen badkamer, een kamerbreed venster en een eigen overdekt terras, gericht op de tuin van de boerderij. Deze kamer is een plek waar de gast zich kan terugtrekken om rust en intimiteit te vinden. Een verblijf in hospice De Liefde is een intense periode van het leven, waarbij het gebouw een betekenisvolle omgeving biedt om afscheid te nemen en te herdenken in een aantrekkelijk landschap.
Stel jezelf kort voor! Dan weet het betreffende bedrijf wie hun brochure gedownload heeft.
Wil je niet bij elke download jouw gegevens in hoeven voeren?
Klik dan hier om in te loggen
. Heb je nog geen account?
Maak dan hier een gratis account aan
.
Voornaam
Achternaam
E-mailadres
Downloaden
Wanneer je brochures downloadt op Architectenweb.nl worden relevante gegevens van jou – zoals jouw naam en e-mailadres – met het betreffende bedrijf gedeeld. Meer hierover lees je in ons
privacybeleid
.
Wanneer je brochures downloadt op Architectenweb.nl worden relevante gegevens van jou – zoals jouw naam en e-mailadres – met het betreffende bedrijf gedeeld. Meer hierover lees je in ons
privacybeleid
.
Brochure
Stel jezelf kort voor! Dan weet het betreffende bedrijf wie hun model gedownload heeft.
Wil je niet bij elke download jouw gegevens in hoeven voeren?
Klik dan hier om in te loggen
.
Heb je nog geen account?
Maak dan hier een gratis account aan
.
Voornaam
Achternaam
E-mailadres
Downloaden
Wanneer je modellen downloadt op Architectenweb.nl worden relevante gegevens van jou – zoals jouw naam en e-mailadres – met het betreffende bedrijf gedeeld. Meer hierover lees je in ons
privacybeleid
.
Locatie
Trefwoorden
transformatie
hospice
rijksmonument
Architectenweb Awards 2020
Zorggebouw van het Jaar
Nominatie
Bekijk alle genomineerden
studio AAAN
Neem contact op
Projectdata
Staat van realisatie
Voltooid
Start ontwerpproces
2017
Start bouw
2018
Oplevering
2019
Ingebruikname
2020
Plaats
Rotterdam
Kosten
1200000
Bruto m
2
1150
Netto m
2
1050
m
3
4000
Meewerkende partijen
Architect
De Kovel Architecten
Projectarchitect
Herman de Kovel / /Luuk Stoltenborg
Opdrachtgever
Stichting Volkskracht Historische Monumenten
Aannemer
De Hek b.v.
Constructeur
Pieters Bouwtechniek Delft BV
Adviseurs installaties E & W
Deerns Raadgevende Ingenieurs
Fotograaf
Sebastian van Damme, Herman de Kovel
Adviseur akoestiek
Buro Bouwfysica
Leveranciers
Overig
Kalzip Benelux, Schueco, Sebastian van Damme
Neem contact op met
studio AAAN
Je bent momenteel niet ingelogd. Hierdoor is het alleen mogelijk om meer informatie per e-mail op te vragen. Wil je liever gebeld worden of documentatie per post ontvangen?
Klik dan hier om in te loggen
.
Heb je nog geen account?
Maak dan hier een gratis account aan
.
Voornaam
Achternaam
E-mailadres
Opmerkingen
Bij iedere aanvraag worden relevante gegevens van jou gedeeld met het betreffende bedrijf. Meer hierover lees je in ons
privacybeleid
.
Ja, denk met me mee rond de
materialisering van mijn project
Meer projecten van studio AAAN
Andere Projecten
Nieuwbouw hal BPA Blueprint Automation
Houthandel van Dam
Appartement Tilburg
Houthandel van Dam
Luxe appartementen de Haaf
Houthandel van Dam
New Brooklyn – Almere Poort
VBI
Obèche Noir toegepast op Appartmenten Maassluis
Houthandel van Dam
Renovatie kantoorpand Houthandel Van Dam
Houthandel van Dam
Huis van de Gemeente Voorst
Kawneer
Rumah Kechik, Malacca
Malaysian Timber Council
Plus Ultra III - EUROLACKE Poedercoatings
EUROLACKE
Energiezuinig gebouwd IKC 's-Heer Arendskerke
wienerberger
Duurzame houten gevelbekleding woning in Sappemeer
Foreco Houtproducten
BDO kantoor Breda
ULMA Architectural Solutions
Ga naar het projecten-overzicht
Voor een optimale gebruikservaring plaatst Architectenweb functionele cookies. Wat de verschillende cookies precies doen leggen we uit in een
overzicht
. Cookies van social media kun je optioneel
aanzetten
.
Akkoord
Instellingen
Annuleren
OK
Sluiten
Doorgaan
Inloggen
Maak een gratis persoonlijk account aan
Feedback
Feedback
Wij horen graag jouw feedback. Laat je reactie achter en eventueel jouw e-mail adres.
Reactie
Verstuur