Projecten
Producten
Bedrijven
Vacatures
Agenda
Awards
Podcasts
more_horiz
Videos
Magazine
Favorieten
Profiel
Uitloggen
Abonneer je nu op onze nieuwsbrieven!
Abonneren
Nee, bedankt
Ja, denk met me mee rond de
materialisering van mijn project
Producten
Entree
Copyright: Stijn Poelstra - Reset architecture
Copyright: Stijn Poelstra - Reset architecture
Copyright: Stijn Poelstra - Reset architecture
Copyright: Stijn Poelstra - Reset architecture
Copyright: Stijn Poelstra - Reset architecture
Copyright: Stijn Poelstra - Reset architecture
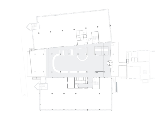
Begane grond bestaand
Copyright: Reset architecture
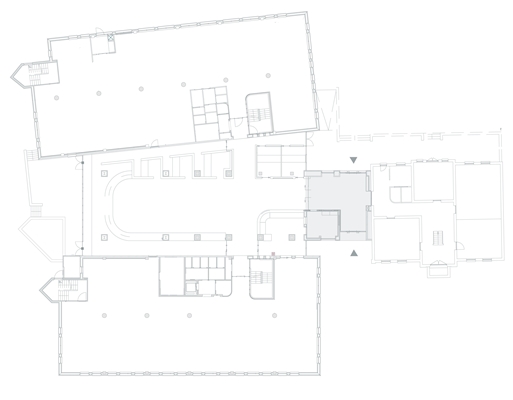
Begane grond nieuw
Copyright: Reset architecture
1e verdieping bestaand
Copyright: Reset architecture
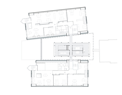
1e verdieping nieuw
Copyright: Reset architecture
2de verdieping nieuw
Copyright: Reset architecture
Doorsnede nieuw
Copyright: Reset architecture
Detail
Copyright: Stijn Poelstra - Reset architecture
Producttags
AAN
UIT
Gemeentehuis Geldrop-Mierlo
30 juni 2020
0
0
0
0
Het gemeentehuis van Geldrop-Mierlo is volledig gerenoveerd en uitgebreid met een multifunctioneel vergadercentrum. Het ontwerp resulteert in een vernieuwde ordening met een duidelijk entree situatie vanuit de omringende openbare ruimte en een logische herschikking van het gebruik gericht op samenwerken en ontmoeten. De monumentale villa en het nieuwe middengebied vormen de publieke- en bestuurszone, centraal, tussen de twee kantoorvleugels. Het transparante vergadercentrum communiceert sprekend het openbare karakter van de publieke functie en verbind het bestuurlijke proces met de gemeenschap. Het hernieuwde gebouw is gasloos all electric uitgevoerd, met energielabel klasse A+++.
Programma
Aanleiding voor de verbouwing is een toename van de ruimtebehoefte door de decentralisatie van overheidstaken en de afwezigheid van een raadzaal en goede vergaderfaciliteiten voor ambtelijk gebruik. De gemeente heeft twee decennia gedebatteerd over de eigen huisvesting waarbij onder andere scenario’s voor nieuwbouw buiten het centrum de revue hebben gepasseerd. Door behoud van het gemeentehuis in het centrum en de uitbreiding van faciliteiten kan het zijn rol als huis van de inwoners van Geldrop-Mierlo met nieuw elan op zich nemen. Het gemeentehuis heeft 160 hernieuwde werkplekken in de kantoorvleugels. Het nieuwe multifunctionele vergadercentrum is 750m2 groot en telt nog eens circa 50 flexwerk- en vergaderplekken. De raadsopstelling is in een handomdraai te transformeren tot ruimte met flexwerkplekken en lunchcafé of een feestelijke ruimte voor de naturalisatie-bijeenkomsten, recepties en andere bijeenkomsten.
Architectonische expressie
Onderdeel van de vraagstelling was een verbetering van de architectonische zeggingskracht van het complex. Zo mist de bestaande situatie de uitstraling van een openbaar gebouw. Het gemeentehuis bestond uit twee met elkaar verbonden gebouwen; een rijksmonumentale villa uit 1868 en een gebouw uit 1985 met twee kantoorvleugels en een middengebied dat met een aangekapt tussenlid tegen de villa stond. Reset architecture heeft de villa visueel losgekoppeld van het jaren tachtig gebouw om de monumentale kwaliteit van de villa te benadrukken en een duidelijk entree situatie te creëren vanuit de omringende openbare ruimte. Vervolgens is een nieuw transparant volume ontworpen dat is ingeklemd tussen de twee kantoorvleugels boven de begane grond. Met deze herschikking ontstaat duidelijkheid in de samenstelling van het complex. De villa en het nieuwe middengebied vormen de publieke- en bestuurszone, centraal, tussen de twee kantoorvleugels.
Om de publieke functie van de nieuwbouw te accentueren reageert deze op de eclectische villa. De gevels van de villa hebben een symmetrisch opzet met een verticale geleding die benadrukt wordt door een midden risaliet en hoekpilasters. De toevoeging van Reset architecture is een ver doorgevoerde abstractie hiervan, het continueert de witte kleur van de villa in een vliesgevel waarin de verticaliteit in het detail tot het uiterste wordt benadrukt. De uitbreiding manifesteert zich nadrukkelijk, het steekt voorbij de kantoorvleugels en communiceert een uitnodigend openbare karakter door zich te verbinden met de gemeenschap. Vanuit binnen gezien opent het nieuwe lichte vergadercentrum zich naar buiten, je beleeft het boomrijke landschap en het kasteel van Geldrop in het interieur. Ook de zolderverdieping van de kantoorvleugels zijn geopend naar buiten, er is een dakkapel over de gehele lengte aangebracht die zorgt voor uitzicht en daglicht op de werkplekken. De kantoorvleugelgevels zijn aangepakt om het gehele complex beter als eenheid te presenteren. In de kopgevels zijn sleetse gevelplaten verwijderd en zijn de gevels aangeheeld met metselwerk en voorzien van een nieuwe kleur in Keim schilderwerk die zorgvuldig is afgestemd op de villa.
Het plein
Het interieur van het vergadercentrum heeft een open en ruimtelijke karakter waar mensen prettig samenkomen. De gemeente noemt het vergadercentrum “het plein”. De ruimte presenteert zich als één geheel onder een dak, met daarin vergaderkamers op twee verdiepingen en een lager intiemer deel met de raadsopstelling. De samenhang van de ruimte wordt versterkt door een doorlopende ritmiek van stijlen in de vier gevels en alzijdige lichtinval.
De nieuwbouw is gebouwd op de kolomstructuur en fundering van de bestaande begane grond met publieke baliefuncties. Reset architecture heeft op de eerste verdieping een lichte remontabele opbouw voorgesteld die bestaat uit een stalen tafelconstructie met een houten verdiepingsvloer en stalendak. De heldere constructieve opzet draagt bij aan een vanzelfsprekende inbedding van het programma dat zich, in de plattegrond, tussen de kolommen huisvest.
Rondom de kolomstructuur loopt een circulatie zone die wordt begrensd door de rondlopende vliesgevel. Aan de langszijde is een gevelstrook van eikenhouten latten aangebracht waarmee de bouwtechnische aansluiting met de bestaande kantoorvleugels uit het zicht is genomen. De houten latten komen in akoestische variant terug in de balustrade van de vergaderverdieping. De eiken laten geven warmte in de beleving van de ruimte die verder uit rustige grijstinten bestaat. Het lichtgrijze keim werk van de buitengevels loopt naar binnen door op de oude buitenmuren en creëert zo een duidelijke scheiding tussen nieuw en bestaand. In de troffelvloer is met vloerbedekking grijs blauw accenten aangebracht passend bij de huisstijl van de gemeente.
Duurzame renovatie
Het gemeentehuis is gasloos all electric uitgevoerd met energielabel klasse A+++ en EPC waarde = 0,63. Het nieuwe vergadercentrum, tussen de beide bestaande vleugels, heeft gezorgd voor een vermindering van het warmteverliesgevende oppervlak van de bestaande vleugels. De schil van het transparante volume is zeer goed geïsoleerd door middel van triple glas en een hoge isolatiewaarde van het dak. De benodigde verwarmingscapaciteit in het bestaande kantoorvleugels is verder verkleind door isolatie van de bestaande daken, na-isolatie van de gevels met voorzetwanden, het vervangen van alle kozijnen met HR
++
-glas en verbetering van de kierdichting. Door bovengenoemde maatregelen wordt het benodigd verwarmingsvermogen teruggebracht naar ca. 40% van het benodigde verwarmingsvermogen. Het gemeentehuis is voorzien van vloerverwarming als basisverwarming die opgewekt wordt met lucht-water warmtepompen. Daarnaast is het gemeentehuis voorzien van een VRF systeem, een lucht-luchtwarmtepompsysteem waarmee het gemeentehuis aanvullend wordt verwarmd en/of gekoeld. Voor de ventilatie van het gemeentehuis zijn drie luchtbehandelingskasten opgesteld die zijn voorzien van o.a. warmteterugwinning met een warmtewiel. Verdere energiebesparing is gerealiseerd door het aanbrengen van daglichtgeregelde LED verlichtingsarmaturen. 200m2 PV dragen bij aan het benodigde elektrische vermogen.
Stel jezelf kort voor! Dan weet het betreffende bedrijf wie hun brochure gedownload heeft.
Wil je niet bij elke download jouw gegevens in hoeven voeren?
Klik dan hier om in te loggen
. Heb je nog geen account?
Maak dan hier een gratis account aan
.
Voornaam
Achternaam
E-mailadres
Downloaden
Wanneer je brochures downloadt op Architectenweb.nl worden relevante gegevens van jou – zoals jouw naam en e-mailadres – met het betreffende bedrijf gedeeld. Meer hierover lees je in ons
privacybeleid
.
Wanneer je brochures downloadt op Architectenweb.nl worden relevante gegevens van jou – zoals jouw naam en e-mailadres – met het betreffende bedrijf gedeeld. Meer hierover lees je in ons
privacybeleid
.
Brochure
Stel jezelf kort voor! Dan weet het betreffende bedrijf wie hun model gedownload heeft.
Wil je niet bij elke download jouw gegevens in hoeven voeren?
Klik dan hier om in te loggen
.
Heb je nog geen account?
Maak dan hier een gratis account aan
.
Voornaam
Achternaam
E-mailadres
Downloaden
Wanneer je modellen downloadt op Architectenweb.nl worden relevante gegevens van jou – zoals jouw naam en e-mailadres – met het betreffende bedrijf gedeeld. Meer hierover lees je in ons
privacybeleid
.
Locatie
Trefwoorden
uitbreiding
gemeentehuis
duurzaam
renovatie
RESET ARCHITECTURE
Neem contact op
Projectdata
Staat van realisatie
Voltooid
Start ontwerpproces
2017
Start bouw
2018
Oplevering
2019
Ingebruikname
2019
Plaats
Geldrop
Bruto m
2
4700
Meewerkende partijen
Architect
RESET ARCHITECTURE
Projectarchitect
Theo Mathijssen
Ontwerpteam
Stephan Kentie, Willemijn Meeusen, Magdalena Obrusníková, Rolf van Boxmeer, Martyna Rajewska, Theo Mathijssen
Opdrachtgever
Gemeente Geldrop-Mierlo
Aannemer
bouwbedrijf: Moeskops
Constructeur
Ad Wouters
Adviseurs installaties E & W
Dynatherm
Fotograaf
Stijn Poelstra
Interieurontwerper
Buro Bas
Adviseur bouwfysica
W/E adviseurs
Adviseur licht
Lichtmeesters
Gevelbouwer
J.M. van Delft
Interieurbouwer
Janssens interieurbouw
Installateur
CSB installatie, ETB van Keulen
Leveranciers
Overig
MOSA, Durlum
Vliesgevels
Jansen
Neem contact op met
RESET ARCHITECTURE
Je bent momenteel niet ingelogd. Hierdoor is het alleen mogelijk om meer informatie per e-mail op te vragen. Wil je liever gebeld worden of documentatie per post ontvangen?
Klik dan hier om in te loggen
.
Heb je nog geen account?
Maak dan hier een gratis account aan
.
Voornaam
Achternaam
E-mailadres
Opmerkingen
Bij iedere aanvraag worden relevante gegevens van jou gedeeld met het betreffende bedrijf. Meer hierover lees je in ons
privacybeleid
.
Ja, denk met me mee rond de
materialisering van mijn project
Meer projecten van RESET ARCHITECTURE
Woonboerderij Acht5
RESET ARCHITECTURE
Gerelateerde producten
Jansen VISS vliesgevelsysteem
Jansen
Andere Projecten
Onderwijsgebouw Aurora, Wageningen
WEBO
Sandwichpanelenwand hygiënische afbouw
Sentho B.V.
Transformeerbare vergaderruimtes in HNK Amsterdam
BREEDVELD mobiele wandsystemen
Complete buiteninrichting kantooromgeving
Falco B.V.
TopAccess Dakluik bij Porsche Service Factory
Staka Dakluiken
Nieuwbouw villa Tegenbosch, Eindhoven, Noord-Braba
van Os Architecten
Moderne villa Alkmaar
BNLA architecten
Appartementencomplex in Purmerend
SSAB Swedish Steel BV
Office Winhov over project Pulse met Archicad
KUBUS | Specialist in Archicad
Nieuwbouw moderne bungalow, Prinsenbeek, Noord-Bra
van Os Architecten
Verbouwing villa Ruitersbos, Breda, Noord-Brabant
van Os Architecten
Nieuwbouw schuurwoning, Oosterhout, Noord-Brabant
van Os Architecten
Ga naar het projecten-overzicht
Voor een optimale gebruikservaring plaatst Architectenweb functionele cookies. Wat de verschillende cookies precies doen leggen we uit in een
overzicht
. Cookies van social media kun je optioneel
aanzetten
.
Akkoord
Instellingen
Annuleren
OK
Sluiten
Doorgaan
Inloggen
Maak een gratis persoonlijk account aan
Feedback
Feedback
Wij horen graag jouw feedback. Laat je reactie achter en eventueel jouw e-mail adres.
Reactie
Verstuur