Abonneer je nu op onze nieuwsbrieven!
Abonneren
Nee, bedankt
Ja, denk met me mee rond de
materialisering van mijn project
Producten
Copyright: Foto: Jeroen Musch
Copyright: Foto: Jeroen Musch
Copyright: Foto: Jeroen Musch
Copyright: Foto: Jeroen Musch
Copyright: Foto: Jeroen Musch
Copyright: Foto: Jeroen Musch
Copyright: Foto: Jeroen Musch
Copyright: Foto: Jeroen Musch
Copyright: Foto: Jeroen Musch
Copyright: Foto: Jeroen Musch
Copyright: Foto: Jeroen Musch
Copyright: Foto: Jeroen Musch
Copyright: Foto: Jeroen Musch
Copyright: Foto: Jeroen Musch
Locatie
Copyright: Jasper Smits
Doorsnede open gesloten
Copyright: Jasper Smits
Doorsnede
Copyright: Jasper Smits
Gevels en Doorsnede
Copyright: Jasper Smits
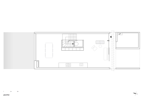
Begane grond
Copyright: Jasper Smits
Verdieping 1 & 2
Copyright: Jasper Smits
Verdieping 3 & 4
Copyright: Jasper Smits
Verdieping 5 & 6
Copyright: Jasper Smits
Verdieping 6 & 7
Copyright: Jasper Smits
Warmte en Ventilatie
Copyright: Jasper Smits
Zomer en Winter
Copyright: Jasper Smits
Iso 1
Copyright: Jasper Smits
Iso 2
Copyright: Jasper Smits
Iso 3
Copyright: Jasper Smits
Iso 4
Copyright: Jasper Smits
Iso 5
Copyright: Jasper Smits
Iso 6
Copyright: Jasper Smits
ProducttagsAANUIT

Splitlevel woning ZigZag

19 juni 2020
Op de voormalige Veemarkt in Utrecht-Oost zijn zelfbouwkavels uitgegeven met woon-werkbestemming. ZigZag heeft een beukmaat van 5.4 meter en een diepte van 11 meter. De betonnen splitlevel woning is in 8 vloeren verdeeld, die gescheiden worden door een centraal gelegen vide, met zorgvuldig gedetailleerd houten trappenhuis. De vide voorziet zowel in gebruik als beleving. Zij zorgt voor licht, ruimtelijkheid, hoogte, warmte, routing en verrassing.­­ De speelse route over de trappen in combinatie met het programma, dat  verdeeld is over 8 vloeren, maken nieuwsgierig.

Het bijzondere van deze zelfbouwkavels is dat zij enkel een voortuin hebben. Deze tuin ligt, al dan niet gescheiden door een schuur of werkruimte, direct aan de straat. Dit stedenbouwkundige principe geeft aanleiding tot een andere plattegrond van de begane grond. De 13,5 meter diepe tuin geeft  voldoende afstand tot de straat. Een buffer in de vorm van een hal is niet meer nodig. Het achterwege laten van de hal geeft bij een beukmaat van 5.4 meter of minder, een veel betere een leefbaardere plattegrond. Toilet, berging, trap en keuken liggen gecentreerd waardoor zowel aan de voor als achterzijde van de woning voldoende breedte ontstaat voor een eethoek of zithoek. Ook is er op de eerste verdieping, die in contact staat met de begane grond, ruimte voor spelen of zitten. De splitlevel-typologie resulteert in korte trappen, zo is er meer ruimte voor slaapkamers en 'multifunctionele overlopen'. 

De woning heeft een enorme flexibiliteit in ruimtegebruik. Eethoek, zithoek en speelhoek kunnen omgewisseld worden, dit is mogelijk door de eerste verdiepingsvloer bij het leefprogramma te betrekken en de keuken in het midden van de woning te plaatsen. In de huidige situatie zijn 3 slaapkamers opgenomen in het ontwerp. 2 van de 3 slaapkamers hebben een multifunctionele overloop grenzend aan de slaapkamer die bij de slaapkamer gebruikt kan worden. Zo kan het kind zelf kiezen hoeveel privacy hij/zij wil. In de slaapkamer is er volledige privacy en op de overloop is er contact met de rest van de bewoners. De werkruimte bovenin de woning wordt nu gebruikt als kantoorruimte.  Als de kinderen ouder zijn, kunnen zij deze ruimte gebruiken als woonkamer, met pantry en dakterras. De 1 verdieping lager gelegen grote slaapkamer kan nog 1 tweeën worden gedeeld, zodat zij dichter bij hun eigen woonkamer kunnen slapen.

Stroom wordt opgewekt op het dak. Comfort wordt geregeld middels een eeuwenoude ontdekking: Warme lucht stijgt op. De centrale vide geeft de mogelijkheid om deze warme lucht terug te blazen met een ventilator (winter) of uit de woning te laten (zomer) door het bovenste raam te openen. Dit principe werkt uitstekend. Daarnaast zijn 3 principes gehanteerd die resulteren in minder arbeid, minder vervuiling en eigentijdse gebouwen:
1. geen kleine ornamenten, maar grote elementen.: 1 raam per verdieping kost minder arbeid dan 3 ramen per verdieping (er hoeft immers maar 1 stelkozijn gemaakt te worden en dit stelkozijn hoeft maar 1 keer geplaatst en gesteld te worden). Een gevelplaat is lichter en sneller te plaatsen dan een baksteen.
2. Geen productie op locatie, enkel montage (betonnen casco, trappen, kasten, hekken zijn allemaal nauwkeurig ingemeten en alle losse onderdelen zijn computergestuurd gemaakt). Plaatsen hiervan kon snel.
3. Kies het juiste materiaal en benut zijn eigenschappen. Door eerlijk materiaalgebruik en de juiste combinatie ontstaat een puur en warm gebouw.




 

Stel jezelf kort voor! Dan weet het betreffende bedrijf wie hun brochure gedownload heeft.
Wil je niet bij elke download jouw gegevens in hoeven voeren?
Klik dan hier om in te loggen. Heb je nog geen account? Maak dan hier een gratis account aan.
Voornaam
Achternaam
E-mailadres
Downloaden
Wanneer je brochures downloadt op Architectenweb.nl worden relevante gegevens van jou – zoals jouw naam en e-mailadres – met het betreffende bedrijf gedeeld. Meer hierover lees je in ons privacybeleid.
Wanneer je brochures downloadt op Architectenweb.nl worden relevante gegevens van jou – zoals jouw naam en e-mailadres – met het betreffende bedrijf gedeeld. Meer hierover lees je in ons privacybeleid.

Stel jezelf kort voor! Dan weet het betreffende bedrijf wie hun model gedownload heeft.
Wil je niet bij elke download jouw gegevens in hoeven voeren?
Klik dan hier om in te loggen.

Heb je nog geen account? Maak dan hier een gratis account aan.
Voornaam
Achternaam
E-mailadres
Downloaden
Wanneer je modellen downloadt op Architectenweb.nl worden relevante gegevens van jou – zoals jouw naam en e-mailadres – met het betreffende bedrijf gedeeld. Meer hierover lees je in ons privacybeleid.

Locatie

Neem contact op met Jasper Smits Architecten

Je bent momenteel niet ingelogd. Hierdoor is het alleen mogelijk om meer informatie per e-mail op te vragen. Wil je liever gebeld worden of documentatie per post ontvangen? Klik dan hier om in te loggen.
Heb je nog geen account? Maak dan hier een gratis account aan.
Voornaam
Achternaam
E-mailadres
Opmerkingen
Bij iedere aanvraag worden relevante gegevens van jou gedeeld met het betreffende bedrijf. Meer hierover lees je in ons privacybeleid.
Ja, denk met me mee rond de
materialisering van mijn project

Meer projecten van Jasper Smits Architecten

Jasper Smits Architecten
Jasper Smits Architecten
Toon alles
KUBUS | Specialist in Archicad
SAPA
Reynaers Aluminium Nederland
Jansen
SAB-profiel bv
Aliplast Aluminium Systems
Kingspan Light & Air
ALUCOBOND®
Caparol
Tarkett BV
Kawneer
Grohe Nederland B.V.
Malaysian Timber Council
OCS | Office Cabling Systems
Swisspearl Nederland
Forster Nederland N.V.
VELUX Commercial Benelux B.V.
Sempergreen
Houthandel van Dam
Aluprof Nederland BV
QbiQ Wall Systems
Forbo Flooring
Schüco Nederland
Cedral
Sto Isoned bv
Triflex bv
Gorter Luiken BV
wienerberger
DUCO Ventilation & Sun Control
BEWI IsoBouw
ROCKWOOL B.V.
Mview+
Rockfon (ROCKWOOL B.V.)
Gira Nederland B.V.
Kingspan Geïsoleerde Panelen
GEZE Benelux  B.V.
Renson
Metaglas Groep
ABB | Busch-Jaeger
Jung | Hateha B.V.
Knauf B.V.
Saint-Gobain Glass Benelux
Faay Vianen B.V.
objectflor
Boon Edam Nederland B.V.
Hunter Douglas Architectural
VOLA Nederland BV
Forbo Eurocol Nederland B.V.
EQUITONE gevelpanelen
Holonite B.V.
Kronospan
Tata Steel Colorcoat®
Architectenweb
Over ons
Contact

© 2002 - 2026 Architectenweb BV / Voorwaarden / Privacy / Disclaimer / Sitemap
Annuleren
OK
Sluiten
Doorgaan
Inloggen
Maak een gratis persoonlijk account aan