Abonneer je nu op onze nieuwsbrieven!
Abonneren
Nee, bedankt
Ja, denk met me mee rond de
materialisering van mijn project
Producten
Copyright: Arthur Bagen
Copyright: Arthur Bagen
Copyright: Arthur Bagen
Copyright: Arthur Bagen
Copyright: Arthur Bagen
Copyright: Arthur Bagen
Copyright: Arthur Bagen
Copyright: Arthur Bagen
Copyright: Arthur Bagen
Copyright: Arthur Bagen
Copyright: Arthur Bagen
Copyright: Arthur Bagen
Copyright: Gustav Hungar
Copyright: Gustav Hungar
Copyright: Gustav Hungar
Copyright: Arthur Bagen
Copyright: Arthur Bagen
Copyright: Arthur Bagen
ProducttagsAANUIT

Villa N

3 september 2019

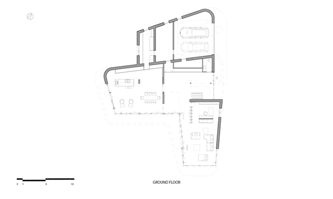
Villa N, een huis voor een jong gezin gerealiseerd op een perceel met uitzicht op de weilanden en bossen van het landschap Bergische Land. Het L-vormige gebouw opent zich naar het zuiden, de tuin en het uitzicht en tegelijkertijd schermt het zich met een zachte elegante beweging van wit gepleisterde gevelwanden af naar de gebouwen in de buurt. Een diepe, twee verdiepingen hoge snede in de gevel markeert op een subtiele manier de ingang en biedt in de gesloten gevel de visuele relatie tussen interieur en exterieur. Het gebouw leeft van de harmonieuze interactie van open glas-aluminium gevels, wit gepleisterd, afgeronde wandoppervlakken en de uitkragende daken. De verschijningsvorm van het huis is dynamisch en past in het heuvelachtige landschap. 

Stel jezelf kort voor! Dan weet het betreffende bedrijf wie hun model gedownload heeft.
Wil je niet bij elke download jouw gegevens in hoeven voeren?
Klik dan hier om in te loggen.

Heb je nog geen account? Maak dan hier een gratis account aan.
Voornaam
Achternaam
E-mailadres
Downloaden
Wanneer je modellen downloadt op Architectenweb.nl worden relevante gegevens van jou – zoals jouw naam en e-mailadres – met het betreffende bedrijf gedeeld. Meer hierover lees je in ons privacybeleid.

Neem contact op met Coenen Sättele Architecten

Je bent momenteel niet ingelogd. Hierdoor is het alleen mogelijk om meer informatie per e-mail op te vragen. Wil je liever gebeld worden of documentatie per post ontvangen? Klik dan hier om in te loggen.
Heb je nog geen account? Maak dan hier een gratis account aan.
Voornaam
Achternaam
E-mailadres
Opmerkingen
Bij iedere aanvraag worden relevante gegevens van jou gedeeld met het betreffende bedrijf. Meer hierover lees je in ons privacybeleid.
Ja, denk met me mee rond de
materialisering van mijn project

Meer projecten van Coenen Sättele Architecten

Coenen Sättele Architecten
Coenen Sättele Architecten
Coenen Sättele Architecten
Coenen Sättele Architecten
Coenen Sättele Architecten
Coenen Sättele Architecten
Coenen Sättele Architecten
Coenen Sättele Architecten
Toon alles
KUBUS | Specialist in Archicad
SAPA
Reynaers Aluminium Nederland
Jansen
SAB-profiel bv
Aliplast Aluminium Systems
Kingspan Light & Air
ALUCOBOND®
Caparol
Tarkett BV
Kawneer
Grohe Nederland B.V.
Malaysian Timber Council
OCS | Office Cabling Systems
Swisspearl Nederland
Forster Nederland N.V.
VELUX Commercial Benelux B.V.
Sempergreen
Houthandel van Dam
Aluprof Nederland BV
QbiQ Wall Systems
Forbo Flooring
Schüco Nederland
Cedral
Sto Isoned bv
Triflex bv
Gorter Luiken BV
wienerberger
DUCO Ventilation & Sun Control
BEWI IsoBouw
ROCKWOOL B.V.
Mview+
Rockfon (ROCKWOOL B.V.)
Gira Nederland B.V.
Kingspan Geïsoleerde Panelen
GEZE Benelux  B.V.
Renson
Metaglas Groep
ABB | Busch-Jaeger
Jung | Hateha B.V.
Knauf B.V.
Saint-Gobain Glass Benelux
Faay Vianen B.V.
objectflor
Boon Edam Nederland B.V.
Hunter Douglas Architectural
VOLA Nederland BV
Forbo Eurocol Nederland B.V.
EQUITONE gevelpanelen
Holonite B.V.
Kronospan
Tata Steel Colorcoat®
Architectenweb
Over ons
Contact

© 2002 - 2026 Architectenweb BV / Voorwaarden / Privacy / Disclaimer / Sitemap
Annuleren
OK
Sluiten
Doorgaan
Inloggen
Maak een gratis persoonlijk account aan