Projecten
Producten
Bedrijven
Vacatures
Agenda
Awards
Podcasts
more_horiz
Videos
Magazine
Thema's
Favorieten
Profiel
Uitloggen
Abonneer je nu op onze nieuwsbrieven!
Abonneren
Nee, bedankt
Ja, denk met me mee rond de
materialisering van mijn project
Producten
Bijgebouw met verdiepte tuin
Copyright: Ronald Schouten
Aansluiting bestaande villa en modern bijgebouw
Copyright: Ronald Schouten
Aansluiting bestaande villa en modern bijgebouw
Copyright: Ronald Schouten
Bijgebouw in de tuin
Copyright: Ronald Schouten
Voorzien van luifel t.b.v. klimaatbeheersing
Copyright: Ronald Schouten
Dubbelhoge kast t.p.v. vide
Copyright: Ronald Schouten
Dubbelhoge kast t.p.v. vide
Copyright: Ronald Schouten
Woonruimte aan de verdiepte privetuin
Copyright: Ronald Schouten
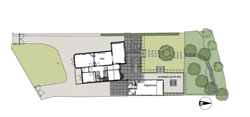
situatie tekening
Copyright: AG architecten
Geveltekening
Copyright: AG architecten
Geveltekening
Copyright: AG architecten
Producttags
AAN
UIT
Energie neutrale kangoeroewoning
5 februari 2019
2
0
0
0
Een monumentale villa uit 1905 is gesitueerd aan de binnenduinrand van Zandvoort. Voor de langstlevende grootouder is zelfstandige woonruimte aan huis gecreëerd. De architectuur van het bijgebouw heeft een eigentijdse signatuur maar kleuren en materialen voegen zich naar het hoofdgebouw. De gebouwen zijn verbonden door een bestaande poort. Het stucwerk en de plint zetten zich voort in het nieuwe gebouw en gaan over in glazen puien. De zinken kap wordt doorgezet in de overige gevels. Een dubbel hoge pui en vide zorgen voor een oriëntatie op het duin en de tuin, en niet op de villa i.v.m. de privacy. Het gebouw is verdiept aangelegd en heeft een privé tuin die lager ligt. Keerwanden van antraciet beton vormen de begrenzing van het eigen terras naar de hoofdtuin met de centraal gelegen majestueuze kastanjeboom. Door gebruik te maken van de bestaande hoogteverschillen heeft ook de villa een privé terras.
De plattegronden zijn compact als bij een ‘tiny house’ waarbij een vide het woon/slaapgedeelte op de begane grond verbindt met het schildersatelier op de verdieping. De boekenkast in de vide is een eye-catcher en zorgt voor voldoende bergruimte.
Op het dak van de villa bevinden zich 28 PV-panelen die voorzien in de volledige energiebehoefte van de nieuwe woning. Deze is goed geïsoleerd, luchtdicht, uitgevoerd met driedubbele beglazing en voorzien van balansventilatie met warmteterugwinning. De zonneschermen zijn geïntegreerd in het ontwerp en voorkomen opwarming. T.b.v. maximaal bedieningsgemak voor de senior-bewoner is het huis voorzien van domotica.
Gasloos, electrische verwarmd met WTW installatie
(voorzieningen t.b.v. warmtepomp reeds aanwezig)
3.500 kW transmissieverliezen
1.000 kW voor warmwatervoorziening
1.500 kW voor huishoudelijk gebruik
1.000
kW gebouwgebonden installaties
7.000 kW op jaarbasis opgewekt met 28 PV-panelen
Stel jezelf kort voor! Dan weet het betreffende bedrijf wie hun model gedownload heeft.
Wil je niet bij elke download jouw gegevens in hoeven voeren?
Klik dan hier om in te loggen
.
Heb je nog geen account?
Maak dan hier een gratis account aan
.
Voornaam
Achternaam
E-mailadres
Downloaden
Wanneer je modellen downloadt op Architectenweb.nl worden relevante gegevens van jou – zoals jouw naam en e-mailadres – met het betreffende bedrijf gedeeld. Meer hierover lees je in ons
privacybeleid
.
Locatie
Trefwoorden
tiny house
energieneutraal
kangoeroewoning
domotica
zinken gevel
bijgebouw
AG architecten bv
Neem contact op
Projectdata
Staat van realisatie
Voltooid
Start bouw
2018
Oplevering
2018
Plaats
Zandvoort
Bruto m
2
70
Meewerkende partijen
Architect
AG architecten bv
Neem contact op met
AG architecten bv
Je bent momenteel niet ingelogd. Hierdoor is het alleen mogelijk om meer informatie per e-mail op te vragen. Wil je liever gebeld worden of documentatie per post ontvangen?
Klik dan hier om in te loggen
.
Heb je nog geen account?
Maak dan hier een gratis account aan
.
Voornaam
Achternaam
E-mailadres
Opmerkingen
Bij iedere aanvraag worden relevante gegevens van jou gedeeld met het betreffende bedrijf. Meer hierover lees je in ons
privacybeleid
.
Ja, denk met me mee rond de
materialisering van mijn project
Meer projecten van AG architecten bv
Nieuwbouw villa Heiloo
AG architecten bv
Statige villa
AG architecten bv
Renovatie en uitbreiding woning boulevard
AG architecten bv
Nieuwbouw woonhuis aan zee
AG architecten bv
Nieuwbouw woning
AG architecten bv
Inrichting Noordentree UMCG
AG architecten bv
Nieuwbouw woonhuis aan de Vecht
AG architecten bv
Moderne rietgedekte villa
AG architecten bv
Luxe bosvilla
AG architecten bv
Afbouw nieuwbouwwoning
AG architecten bv
Nieuwbouw appartementengebouw
AG architecten bv
Twee-onder-een kap
AG architecten bv
Uitbreiding Albert Heijn & renovatie parkeergarage
AG architecten bv
interieurverbouwing woonhuis
AG architecten bv
woongroep
AG architecten bv
polikliniek met prikpoli (bloedafname)
AG architecten bv
renovatie villa
AG architecten bv
verbouwing loft
AG architecten bv
renovatie universiteitsbibliotheek Groningen
AG architecten bv
transformatie Wierschuur
AG architecten bv
Hof van Egmond
AG architecten bv
Villa Duin
AG architecten bv
Groningen Cancer Centre
AG architecten bv
Groot onderhoud 4 flatgebouwen
AG architecten bv
Nieuwbouw 117 zorg-woningen
AG architecten bv
Nieuwbouw villa Heiloo
AG architecten bv
Statige villa
AG architecten bv
Renovatie en uitbreiding woning boulevard
AG architecten bv
Nieuwbouw woonhuis aan zee
AG architecten bv
Nieuwbouw woning
AG architecten bv
Inrichting Noordentree UMCG
AG architecten bv
Nieuwbouw woonhuis aan de Vecht
AG architecten bv
Moderne rietgedekte villa
AG architecten bv
Luxe bosvilla
AG architecten bv
Afbouw nieuwbouwwoning
AG architecten bv
Nieuwbouw appartementengebouw
AG architecten bv
Twee-onder-een kap
AG architecten bv
Uitbreiding Albert Heijn & renovatie parkeergarage
AG architecten bv
interieurverbouwing woonhuis
AG architecten bv
woongroep
AG architecten bv
polikliniek met prikpoli (bloedafname)
AG architecten bv
renovatie villa
AG architecten bv
verbouwing loft
AG architecten bv
renovatie universiteitsbibliotheek Groningen
AG architecten bv
transformatie Wierschuur
AG architecten bv
Hof van Egmond
AG architecten bv
Villa Duin
AG architecten bv
Groningen Cancer Centre
AG architecten bv
Groot onderhoud 4 flatgebouwen
AG architecten bv
Nieuwbouw 117 zorg-woningen
AG architecten bv
Toon alles
Andere Projecten
Woningen Viladomat in Barcelona, Spanje
ULMA Architectural Solutions
Vergroening Europakade Tolkamer
ACO BV
Frigo-Trans GmbH Mezzaninevloer voor logistiek
Nolte Mezzanine
Antwerpen Kievit
HOSPER landschapsarchitectuur
Luxe wonen in Hamptons stijl
Holonite B.V.
ABB-technologie verlicht de Burj Khalifa
ABB | Busch-Jaeger
Hybride buitenruimte Catharinatoren Zaandam
Solarlux Nederland B.V.
Vijf keer Gorter op Jullensblok
Gorter Luiken BV
TU Delft Stadsklimaatbos
HOSPER landschapsarchitectuur
Hilversum Nieuw Zuid
HOSPER landschapsarchitectuur
Full service voor logistiek bedrijfspand
Buro De Haan
Maatwerk vanuit een concpetwoning
Innoblox
Ga naar het projecten-overzicht
Voor een optimale gebruikservaring plaatst Architectenweb functionele cookies. Wat de verschillende cookies precies doen leggen we uit in een
overzicht
. Cookies van social media kun je optioneel
aanzetten
.
Akkoord
Instellingen
Annuleren
OK
Sluiten
Doorgaan
Inloggen
Maak een gratis persoonlijk account aan
Feedback
Feedback
Wij horen graag jouw feedback. Laat je reactie achter en eventueel jouw e-mail adres.
Reactie
Verstuur