Projecten
Producten
Bedrijven
Vacatures
Agenda
Awards
Podcasts
more_horiz
Videos
Magazine
Favorieten
Profiel
Uitloggen
Abonneer je nu op onze nieuwsbrieven!
Abonneren
Nee, bedankt
Ja, denk met me mee rond de
materialisering van mijn project
Producten
Copyright: Stijnstijl Fotografie
Copyright: Stijnstijl Fotografie
Copyright: Stijnstijl Fotografie
Copyright: Stijnstijl Fotografie
Copyright: Stijnstijl Fotografie
Copyright: Stijnstijl Fotografie
Copyright: Stijnstijl Fotografie
Copyright: Stijnstijl Fotografie
Copyright: Stijnstijl Fotografie
Copyright: Stijnstijl Fotografie
Copyright: Stijnstijl Fotografie
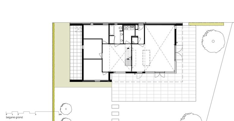
begane grond
Copyright: stek architecten
doorsnede
Copyright: stek architecten
Producttags
AAN
UIT
woonhuis JL, Veghel
30 augustus 2018
1
0
0
0
Het concept voor dit woonhuis is ontstaan uit de inspiratie van de elementaire werktuigenschuur in het boerenlandschap: een groot dak boven een open ruimte. Het is ontwikkeld voor een jong echtpaar die de stap maken naar een vrijstaande woning ontwikkelgebied Veghels Buiten. Het snel en efficiënt bouwen met een licht en industrieel casco beperkt de kosten voor het eigen huis drastisch.
De centrale vraag in dit project: Hoe kun je toekomstwaarde en duurzaamheid creëren vanuit flexibiliteit, materiaalreductie, het goed omgaan met energie en met een efficiënt proces in de hele cyclus van ontwerpen, bouwen en gebruik ?
Een schil van goed geïsoleerde (industriële) dak en wandelementen op een verzinkte staalconstructie, bepalen het interieur en exterieur van het woonhuis. Binnen deze schil zijn de verschillende vertrekken en ruime vides ingepast. Door alle elementen zoveel mogelijk van te voren te engineeren en te prefabriceren ontstaat er een droge assemblage op de bouwplaats met een korte bouwtijd. Er wordt daardoor een hogere kwaliteit bereikt en het gescheiden casco-inbouw principe geeft extra toekomstwaarde. De milieubelasting wordt beperkt door het minimaliseren van de hoeveelheid materiaalgebruik.
Het woonhuis is (passief) op de zon georiënteerd. ’s Winters komt de zon laag binnen door grote glaspuien. Met schuifbare of vaste frames met lamellen wordt de zoninstraling gereguleerd. De ruime kap beschermd het huis tegen te sterke weersinvloeden en middels de pv-cellen is de energiebehoefte van een gezin gedekt. Voor een later te plaatsen (lucht)warmtepomp zijn voorzieningen opgenomen, het regenwater wordt opgevangen en geinfiltreerd op eigen terrein.
Voor dit ontwerp werkte stek architecten samen met Annette Marx. Archimedes verzorgde het constructief advies en Hous Luxe woningen realiseerde het woonhuis.
Stel jezelf kort voor! Dan weet het betreffende bedrijf wie hun brochure gedownload heeft.
Wil je niet bij elke download jouw gegevens in hoeven voeren?
Klik dan hier om in te loggen
. Heb je nog geen account?
Maak dan hier een gratis account aan
.
Voornaam
Achternaam
E-mailadres
Downloaden
Wanneer je brochures downloadt op Architectenweb.nl worden relevante gegevens van jou – zoals jouw naam en e-mailadres – met het betreffende bedrijf gedeeld. Meer hierover lees je in ons
privacybeleid
.
Wanneer je brochures downloadt op Architectenweb.nl worden relevante gegevens van jou – zoals jouw naam en e-mailadres – met het betreffende bedrijf gedeeld. Meer hierover lees je in ons
privacybeleid
.
Brochure
Stel jezelf kort voor! Dan weet het betreffende bedrijf wie hun model gedownload heeft.
Wil je niet bij elke download jouw gegevens in hoeven voeren?
Klik dan hier om in te loggen
.
Heb je nog geen account?
Maak dan hier een gratis account aan
.
Voornaam
Achternaam
E-mailadres
Downloaden
Wanneer je modellen downloadt op Architectenweb.nl worden relevante gegevens van jou – zoals jouw naam en e-mailadres – met het betreffende bedrijf gedeeld. Meer hierover lees je in ons
privacybeleid
.
Trefwoorden
duurzaamheid
toekomstwaarde
vrijstaand
nieuwbouw
efficient
particulier
samenwerking
staalframebouw
stek architecten
Neem contact op
Projectdata
Staat van realisatie
Voltooid
Start bouw
2017
Bruto m
2
140
m
3
1050
Neem contact op met
stek architecten
Je bent momenteel niet ingelogd. Hierdoor is het alleen mogelijk om meer informatie per e-mail op te vragen. Wil je liever gebeld worden of documentatie per post ontvangen?
Klik dan hier om in te loggen
.
Heb je nog geen account?
Maak dan hier een gratis account aan
.
Voornaam
Achternaam
E-mailadres
Opmerkingen
Bij iedere aanvraag worden relevante gegevens van jou gedeeld met het betreffende bedrijf. Meer hierover lees je in ons
privacybeleid
.
Ja, denk met me mee rond de
materialisering van mijn project
Meer projecten van stek architecten
Ecologisch woonhuis, Egchel
stek architecten
Andere Projecten
De stad van Aedes: waar werken wonen wordt
Tétris Design & Build
Nieuwbouw Residentie ZICHT Venlo
Knauf Insulation
Light House
Studioninedots
Nieuwbouw Slingeland Ziekenhuis Doetinchem
Knauf Insulation
Fraké Noir gevelbekleding op sanitairgebouw
Houthandel van Dam
The Family Delft
Houthandel van Dam
Houtlook lamellen voor aantrekkelijke nieuwbouw
Renson
De Toerist in Breda
DUCO Ventilation & Sun Control
Solarlux vouwwanden - Zuidkade Scheveningen
Solarlux Nederland B.V.
Multifunctioneel gebouw met aluminium vliesgevel
Aliplast Aluminium Systems
Van gesloten gevel naar transparant visitekaartje
Rockpanel
Den Hartogh Basecamp (Video)
Schüco Nederland
Ga naar het projecten-overzicht
Voor een optimale gebruikservaring plaatst Architectenweb functionele cookies. Wat de verschillende cookies precies doen leggen we uit in een
overzicht
. Cookies van social media kun je optioneel
aanzetten
.
Akkoord
Instellingen
Annuleren
OK
Sluiten
Doorgaan
Inloggen
Maak een gratis persoonlijk account aan
Feedback
Feedback
Wij horen graag jouw feedback. Laat je reactie achter en eventueel jouw e-mail adres.
Reactie
Verstuur