Projecten
Producten
Bedrijven
Vacatures
Agenda
Awards
Podcasts
more_horiz
Videos
Magazine
Thema's
Favorieten
Profiel
Uitloggen
Producten
Entree ruimte aan de voorzijde van de werfkelder
Copyright: Brendan Bakker
Overzicht van de achterruimte met marmeren bar
Copyright: Brendan Bakker
Overzicht over de bar met reflectie van het interieur
Copyright: Brendan Bakker
Detail van de Tala hanglampen boven de bar
Copyright: Brendan Bakker
Overzicht van de achterruimte met lange banken
Copyright: Brendan Bakker
Wijnwand, tevens ook achterwand van de werfkelder
Copyright: Brendan Bakker
Afwerking wanden toiletruimten
Copyright: Brendan Bakker
Entree naar de toiletten
Copyright: Brendan Bakker
Overgang met contrast tussen het historisch metselwerk en de moderne verticale louvres
Copyright: Brendan Bakker
Detail verlichting
Copyright: Brendan Bakker
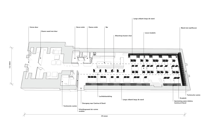
Axonometrie van de nieuwe indeling
Copyright: Brendan Bakker
Producttags
AAN
UIT
Restaurant Cantina Di David, Utrecht
19 juni 2018
1
0
0
0
Transformatie van berging naar restaurant. Gelegen aan de Oudegracht van Utrecht in het historische centrum was deze 13e eeuwse werfkelder voorheen in gebruik als berging. Gekozen is om de werfkelder te koppelen aan het naast gelegen restaurant middels een voorheen bestaande doorgang te heropenen.
Een nieuwe ruimte is ontstaan die flexibel ingezet wordt voor grote groepen, feesten en partijen. De basis voor het interieur was respect voor het monument en de historie te gebruiken als kracht voor de beleving.
De toevoegingen in het interieur zijn eigentijds en luxueus passend bij het concept ‘Italian Fine Dining’. Het vrijhangend plafond is naast iconish, perfect voor de akoestiek gezien de felt materiaal en verbergt de bovenliggende buizen en leidingen. Centraal gepositioneerd is de 5 meter lang italiaans marmeren bar en achter is een verlichte wijnwand met ruim 400 flessen dienend als visuele eindbarrière van de ruimte.
Stel jezelf kort voor! Dan weet het betreffende bedrijf wie hun brochure gedownload heeft.
Wil je niet bij elke download jouw gegevens in hoeven voeren?
Klik dan hier om in te loggen
. Heb je nog geen account?
Maak dan hier een gratis account aan
.
Voornaam
Achternaam
E-mailadres
Downloaden
Wanneer je brochures downloadt op Architectenweb.nl worden relevante gegevens van jou – zoals jouw naam en e-mailadres – met het betreffende bedrijf gedeeld. Meer hierover lees je in ons
privacybeleid
.
Wanneer je brochures downloadt op Architectenweb.nl worden relevante gegevens van jou – zoals jouw naam en e-mailadres – met het betreffende bedrijf gedeeld. Meer hierover lees je in ons
privacybeleid
.
Brochure
Stel jezelf kort voor! Dan weet het betreffende bedrijf wie hun model gedownload heeft.
Wil je niet bij elke download jouw gegevens in hoeven voeren?
Klik dan hier om in te loggen
.
Heb je nog geen account?
Maak dan hier een gratis account aan
.
Voornaam
Achternaam
E-mailadres
Downloaden
Wanneer je modellen downloadt op Architectenweb.nl worden relevante gegevens van jou – zoals jouw naam en e-mailadres – met het betreffende bedrijf gedeeld. Meer hierover lees je in ons
privacybeleid
.
Locatie
Trefwoorden
louvres
doorgang
marmer
hergebruik
staal
corten
felt
licht
concept
goud
historisch
bim
werfkelder
monument
metselwerk
3d
hout
hoog plafond
eigentijds
wijnwand
restaurant
lamellen
balans
detail
transformatie
interieur
modern
Architectenweb Awards 2018
Interieur
van het Jaar
Nominatie
Bekijk alle genomineerden
Design Brendan Bakker
Neem contact op
Projectdata
Staat van realisatie
Voltooid
Start bouw
2018
Plaats
Utrecht
Kosten
230000
Bruto m
2
360
m
3
760
Leveranciers
Grill
Hunter Douglas Architectural
Dakconstructies
Livium Masters of Shade
Neem contact op met
Design Brendan Bakker
Je bent momenteel niet ingelogd. Hierdoor is het alleen mogelijk om meer informatie per e-mail op te vragen. Wil je liever gebeld worden of documentatie per post ontvangen?
Klik dan hier om in te loggen
.
Heb je nog geen account?
Maak dan hier een gratis account aan
.
Voornaam
Achternaam
E-mailadres
Opmerkingen
Bij iedere aanvraag worden relevante gegevens van jou gedeeld met het betreffende bedrijf. Meer hierover lees je in ons
privacybeleid
.
Ja, denk met me mee rond de
materialisering van mijn project
Meer projecten van Design Brendan Bakker
Giulia Bar Bistro, Utrecht
Design Brendan Bakker
Gerelateerde producten
Livium Louvresystemen
Louvredaken, panelen en shutters
Livium Masters of Shade
HeartFelt Linear
Modulair vilten plafondsysteem
Hunter Douglas Architectural
Andere Projecten
WallPlanter-project bij Pro-Logis Hayes Distributi
Mobilane
Transformatie Janskliniek
Achterbosch Architecten
Project Elzenhagen groengevels
Jansen Staalkabels
Transformatie woonboerderij Gemonde
Romar-Voss Floor Systems
De Buitenkans Rotterdam
Houthandel van Dam
Mezzaninevloer voor Safestore Amersfoort
Nolte Mezzanine
Fibonacci Amsterdam
Houthandel van Dam
Villa - Broek in Waterland
Houthandel van Dam
Hoogwaardige vloersystemen voor villa in Someren
Romar-Voss Floor Systems
Praktische daktoegang voor woningbouw in Geulle
Gorter Luiken BV
Veilige daktoegang voor nieuwbouw Carmenlaan
Gorter Luiken BV
Flevolaan - Weesp
Houthandel van Dam
Ga naar het projecten-overzicht
Voor een optimale gebruikservaring plaatst Architectenweb functionele cookies. Wat de verschillende cookies precies doen leggen we uit in een
overzicht
. Cookies van social media kun je optioneel
aanzetten
.
Akkoord
Instellingen
Annuleren
OK
Sluiten
Doorgaan
Inloggen
Maak een gratis persoonlijk account aan
Feedback
Feedback
Wij horen graag jouw feedback. Laat je reactie achter en eventueel jouw e-mail adres.
Reactie
Verstuur