Projecten
Producten
Bedrijven
Vacatures
Agenda
Awards
Podcasts
more_horiz
Videos
Magazine
Thema's
Favorieten
Profiel
Uitloggen
Abonneer je nu op onze nieuwsbrieven!
Abonneren
Nee, bedankt
Ja, denk met me mee rond de
materialisering van mijn project
Producten
Producttags
AAN
UIT
Kavel 37
9 januari 2006
0
0
0
0
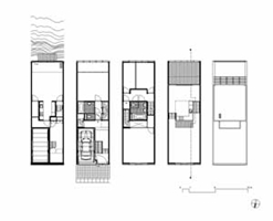
Kavel 37, beneden- en bovenwoning Scheeptimmermanstraat 80 en 82
Op het schiereiland Borneo in Amsterdam zijn zestig kavels voor particulieren door de gemeente in erfpacht uitgegeven. Alle woonhuizen op de kavels zijn individueel ontworpen en gebouwd. De voordeuren bevinden zich aan een smalle straat en de privékanten direct aan het water. Tussen de veelheid aan verschijningsvormen kan Kavel 37 verschillende gedaantes aannemen, van neutraal tot specifiek.
Gevels van geperforeerd CorTenstaal verhullen een beneden- en bovenwoning. Het geroest staal harmonieert met de omgeving van baksteen en de voormalige havens. De perforatie waarborgt privacy aan de smalle straat en zonwering aan de waterzijde. Een vouw- en schuifsysteem maakt het mogelijk om de gevel naar eigen voorkeur elektrisch te openen. Het systeem is tot stand gekomen in nauwe samenwerking met de fabrikant.
Het interieur van beide woningen is georganiseerd rondom een vrijstaande kern waarin alle natte voorzieningen zijn opgenomen. In het totale volume zijn verschillende verdiepingshoogtes, een dakterras, vides en een beweegbare parkeervoorziening voor twee auto’s opgenomen. Langs de kern valt het daglicht vanuit het dak en een glazen vloer naar de gemeenschappelijke entree van beide woningen.
Overdag is het mogelijk om ongezien naar buiten te kijken, maar ‘s avonds geven de woningen zich bloot en zijn de bewoners als silhouetten zichtbaar achter de gevels.
Stel jezelf kort voor! Dan weet het betreffende bedrijf wie hun model gedownload heeft.
Wil je niet bij elke download jouw gegevens in hoeven voeren?
Klik dan hier om in te loggen
.
Heb je nog geen account?
Maak dan hier een gratis account aan
.
Voornaam
Achternaam
E-mailadres
Downloaden
Wanneer je modellen downloadt op Architectenweb.nl worden relevante gegevens van jou – zoals jouw naam en e-mailadres – met het betreffende bedrijf gedeeld. Meer hierover lees je in ons
privacybeleid
.
Trefwoorden
kern
SOME architects
Neem contact op
Projectdata
Staat van realisatie
Voltooid
Start bouw
2000
Neem contact op met
SOME architects
Je bent momenteel niet ingelogd. Hierdoor is het alleen mogelijk om meer informatie per e-mail op te vragen. Wil je liever gebeld worden of documentatie per post ontvangen?
Klik dan hier om in te loggen
.
Heb je nog geen account?
Maak dan hier een gratis account aan
.
Voornaam
Achternaam
E-mailadres
Opmerkingen
Bij iedere aanvraag worden relevante gegevens van jou gedeeld met het betreffende bedrijf. Meer hierover lees je in ons
privacybeleid
.
Ja, denk met me mee rond de
materialisering van mijn project
Meer projecten van SOME architects
Kolenkitbuurt fase 4
SOME architects
Loods+Toren De Vrije Kade
SOME architects
De Vrije Kade - fase 3 (blok E&F)
SOME architects
Montessorischool De Scholekster
SOME architects
3G Loft Buiksloterham
SOME architects
De Eenhoorn
SOME architects
Bannehoven Zaandijk
SOME architects
Wickevoort Cruquius
SOME architects
Houthaven Kavel 1D Amsterdam
SOME architects
Jonathanstraat Den Haag
SOME architects
Nieuw Jeruzalem blok G & H Amsterdam
SOME architects
Sluiseiland Vianen
SOME architects
Grote Waal Hoorn
SOME architects
De Entree blok W4 Haarlem
SOME architects
Nieuw Jeruzalem Amsterdam
SOME architects
Hanzewijk Kampen
SOME architects
Polderweg Oostpoort
SOME architects
Spieghelbuurt Alkmaar
SOME architects
De Vrije Kade, Buiksloterham
SOME architects
Blok 0 - het Pakhuis Amsterdam
SOME architects
Kolenkithuis Amsterdam
SOME architects
Dorpshuis Zwanenburg
SOME architects
Terwijde Loungekwartier
SOME architects
Italielaan Haarlem
SOME architects
De Deeltuin Utrecht
SOME architects
De Zaanse Strip
SOME architects
De Verborgen Tuin
SOME architects
Skyline Nieuw Leyden
SOME architects
Posthuis
SOME architects
Oldenzaals Kant, de Walgaarden
SOME architects
Lenthof
SOME architects
Huis van Hendrik
SOME architects
Can fase 1
SOME architects
Dillenburgh
SOME architects
Meerpad
SOME architects
Schatkamer Van der Ploeg
SOME architects
Ittersummerlanden
SOME architects
DAK voor thuislozen - Poeldijkstraat
SOME architects
Hof van Hoytema
SOME architects
Kantoorvilla Kanaalpad
SOME architects
Tuinderspad
SOME architects
GerensteinGallery
SOME architects
Borneo Sporenburg
SOME architects
Kloostertuinen
SOME architects
De Collectieve tuin
SOME architects
Eilandenbuurt
SOME architects
Westerdokseiland
SOME architects
Gerenstein
SOME architects
Leeuw van Vlaanderen
SOME architects
Vissershop
SOME architects
Leeuw van Vlaanderen
SOME architects
Leeuw van Vlaanderen
SOME architects
Leeuw van Vlaanderen
SOME architects
Leeuw van Vlaanderen
SOME architects
Leeuw van Vlaanderen
SOME architects
Leeuw van Vlaanderen
SOME architects
Ypenburg, de Bras
SOME architects
Kolenkitbuurt fase 4
SOME architects
Loods+Toren De Vrije Kade
SOME architects
De Vrije Kade - fase 3 (blok E&F)
SOME architects
Montessorischool De Scholekster
SOME architects
3G Loft Buiksloterham
SOME architects
De Eenhoorn
SOME architects
Bannehoven Zaandijk
SOME architects
Wickevoort Cruquius
SOME architects
Houthaven Kavel 1D Amsterdam
SOME architects
Jonathanstraat Den Haag
SOME architects
Nieuw Jeruzalem blok G & H Amsterdam
SOME architects
Sluiseiland Vianen
SOME architects
Grote Waal Hoorn
SOME architects
De Entree blok W4 Haarlem
SOME architects
Nieuw Jeruzalem Amsterdam
SOME architects
Hanzewijk Kampen
SOME architects
Polderweg Oostpoort
SOME architects
Spieghelbuurt Alkmaar
SOME architects
De Vrije Kade, Buiksloterham
SOME architects
Blok 0 - het Pakhuis Amsterdam
SOME architects
Kolenkithuis Amsterdam
SOME architects
Dorpshuis Zwanenburg
SOME architects
Terwijde Loungekwartier
SOME architects
Italielaan Haarlem
SOME architects
De Deeltuin Utrecht
SOME architects
De Zaanse Strip
SOME architects
De Verborgen Tuin
SOME architects
Skyline Nieuw Leyden
SOME architects
Posthuis
SOME architects
Oldenzaals Kant, de Walgaarden
SOME architects
Lenthof
SOME architects
Huis van Hendrik
SOME architects
Can fase 1
SOME architects
Dillenburgh
SOME architects
Meerpad
SOME architects
Schatkamer Van der Ploeg
SOME architects
Ittersummerlanden
SOME architects
DAK voor thuislozen - Poeldijkstraat
SOME architects
Hof van Hoytema
SOME architects
Kantoorvilla Kanaalpad
SOME architects
Tuinderspad
SOME architects
GerensteinGallery
SOME architects
Borneo Sporenburg
SOME architects
Kloostertuinen
SOME architects
De Collectieve tuin
SOME architects
Eilandenbuurt
SOME architects
Westerdokseiland
SOME architects
Gerenstein
SOME architects
Leeuw van Vlaanderen
SOME architects
Vissershop
SOME architects
Leeuw van Vlaanderen
SOME architects
Leeuw van Vlaanderen
SOME architects
Leeuw van Vlaanderen
SOME architects
Leeuw van Vlaanderen
SOME architects
Leeuw van Vlaanderen
SOME architects
Leeuw van Vlaanderen
SOME architects
Ypenburg, de Bras
SOME architects
Toon alles
Andere Projecten
Nieuwbouw hal BPA Blueprint Automation
Houthandel van Dam
Appartement Tilburg
Houthandel van Dam
Luxe appartementen de Haaf
Houthandel van Dam
New Brooklyn – Almere Poort
VBI
Obèche Noir toegepast op Appartmenten Maassluis
Houthandel van Dam
Renovatie kantoorpand Houthandel Van Dam
Houthandel van Dam
Huis van de Gemeente Voorst
Kawneer
Rumah Kechik, Malacca
Malaysian Timber Council
Plus Ultra III - EUROLACKE Poedercoatings
EUROLACKE
Energiezuinig gebouwd IKC 's-Heer Arendskerke
wienerberger
Duurzame houten gevelbekleding woning in Sappemeer
Foreco Houtproducten
BDO kantoor Breda
ULMA Architectural Solutions
Ga naar het projecten-overzicht
Voor een optimale gebruikservaring plaatst Architectenweb functionele cookies. Wat de verschillende cookies precies doen leggen we uit in een
overzicht
. Cookies van social media kun je optioneel
aanzetten
.
Akkoord
Instellingen
Annuleren
OK
Sluiten
Doorgaan
Inloggen
Maak een gratis persoonlijk account aan
Feedback
Feedback
Wij horen graag jouw feedback. Laat je reactie achter en eventueel jouw e-mail adres.
Reactie
Verstuur