Projecten
Producten
Bedrijven
Vacatures
Agenda
Awards
Podcasts
more_horiz
Videos
Magazine
Favorieten
Profiel
Uitloggen
Abonneer je nu op onze nieuwsbrieven!
Abonneren
Nee, bedankt
Ja, denk met me mee rond de
materialisering van mijn project
Producten
Copyright: Ossip van Duivenbode
Copyright: Ossip van Duivenbode
Copyright: Ossip van Duivenbode
Copyright: Ossip van Duivenbode
Copyright: Ossip van Duivenbode
Copyright: Ossip van Duivenbode
Copyright: Ossip van Duivenbode
Copyright: Ossip van Duivenbode
Copyright: Ossip van Duivenbode
Copyright: Ossip van Duivenbode
Producttags
AAN
UIT
Informele kubus
28 november 2017
6
0
0
0
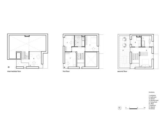
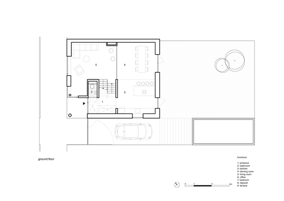
De stoere kubusvormige woning is een opvallend element aan het einde van een reeks woonhuizen in het centrum van Rotterdam.
Het huis heeft een ruimtelijke 3-dimensionale organisatie die tegemoet komt aan de ingewikkelde wensen van een eigentijds stedelijk gezin: De woning biedt plaats aan gemeenschappelijke, semi-private en privé ruimten en het is tegelijkertijd verbonden als afgeschermd van de straat en de stad. Het witte exterieur bestaat uit in elkaar overlopende ruimten die georganiseerd worden door een structuur van split-level doorsneden. Het huis is een stedelijke monoliet, maar dan wel een monoliet die gloeit van intern leven.
De woning komt tegemoet aan een serie specifieke wensen van de opdrachtgevers: Een geleidelijke overgang van buiten/publiek naar binnen/privé, een woonkamer die iets verhoogd is boven het straatniveau, keuken en eetkamer direct uitlopend op de tuin, een semi-afgesloten muziekkamer en een afgescheiden dakterras.
Deze vijf ingrediënten zijn in het ontwerp samengevoegd tot een speelse informele compositie, gerangschikt rondom het centrale trappenhuis. Grote, af en toe overhoekse raampartijen laten licht vanuit allerlei invalshoeken naar binnen schijnen en waardoor een lichte en rijk gevarieerde interieur atmosfeer tot stand komt.
Stel jezelf kort voor! Dan weet het betreffende bedrijf wie hun model gedownload heeft.
Wil je niet bij elke download jouw gegevens in hoeven voeren?
Klik dan hier om in te loggen
.
Heb je nog geen account?
Maak dan hier een gratis account aan
.
Voornaam
Achternaam
E-mailadres
Downloaden
Wanneer je modellen downloadt op Architectenweb.nl worden relevante gegevens van jou – zoals jouw naam en e-mailadres – met het betreffende bedrijf gedeeld. Meer hierover lees je in ons
privacybeleid
.
Locatie
Trefwoorden
kubusvormig
woning
aluminium kozijnen
modern woonhuis
beton
split-level
geglazuurde baksteen
JVST
Neem contact op
Projectdata
Staat van realisatie
Voltooid
Start bouw
2017
Plaats
Rotterdam
Bruto m
2
277
Neem contact op met
JVST
Je bent momenteel niet ingelogd. Hierdoor is het alleen mogelijk om meer informatie per e-mail op te vragen. Wil je liever gebeld worden of documentatie per post ontvangen?
Klik dan hier om in te loggen
.
Heb je nog geen account?
Maak dan hier een gratis account aan
.
Voornaam
Achternaam
E-mailadres
Opmerkingen
Bij iedere aanvraag worden relevante gegevens van jou gedeeld met het betreffende bedrijf. Meer hierover lees je in ons
privacybeleid
.
Ja, denk met me mee rond de
materialisering van mijn project
Meer projecten van JVST
Andere Projecten
CPO Vondelstaete Amersfoort: Passief Wonen
Sto Isoned bv
Solar groendak bij afvalbrengpunt Oldenzaal
Sempergreen
Nieuw interieur Holiday Inn
Kronospan
Circulaire primeur: eerste Second High-gevel
Pretty Plastic
Noordwest Ziekenhuisgroep Alkmaar
Gortemaker Algra Feenstra architects
de Telefoondienst: Transformatie en optopping
Ronald Janssen Architecten
Houtrak Amsterdam
WEBO
Meerweide Aafje
Holonite B.V.
Slimme afvaloplossing in een duurzaam zorggebouw
Stansz
De entree als het begin van een culturele ervaring
EMCO Benelux B.V.
Canopy House
Malaysian Timber Council
Pol Heeteren BV
Klöber
Ga naar het projecten-overzicht
Voor een optimale gebruikservaring plaatst Architectenweb functionele cookies. Wat de verschillende cookies precies doen leggen we uit in een
overzicht
. Cookies van social media kun je optioneel
aanzetten
.
Akkoord
Instellingen
Annuleren
OK
Sluiten
Doorgaan
Inloggen
Maak een gratis persoonlijk account aan
Feedback
Feedback
Wij horen graag jouw feedback. Laat je reactie achter en eventueel jouw e-mail adres.
Reactie
Verstuur