Projecten
Producten
Bedrijven
Vacatures
Agenda
Awards
Podcasts
more_horiz
Videos
Magazine
Favorieten
Profiel
Uitloggen
Abonneer je nu op onze nieuwsbrieven!
Abonneren
Nee, bedankt
Ja, denk met me mee rond de
materialisering van mijn project
Producten
Producttags
AAN
UIT
Wijkeroogpark
4 december 2015
2
0
0
0
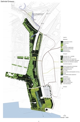
Met de inpassing van de nieuwe artificiële beekloop in het Wijkeroogpark (Velsen) heeft Bureau B+B in samenwerking met kunstenaar Erik de Lyon het park met zijn omgeving verbonden. Het Wijkeroogpark – oorspronkelijk uit de jaren 60 – werd met de aanleg van de Velsertunnel (1964) in tweeën gedeeld. Door toevoeging van waterlopen ontstond een polderlandschap dat een fysieke barrière vormde tussen de verschillende groenonderdelen en de nabij gelegen woonwijken. De Scheybeek was in de loop der tijd opgenomen in het polderlandschap en als beek niet langer herkenbaar.
De beek werd oorspronkelijk niet alleen gevoed door zoet water uit de omgeving, maar stond ook onder invloed van eb en vloed. Bureau B+B heeft de benedenloop van de vroegere beek de Scheybeek aangegrepen als rode draad voor het ontwerp. De separate groengebieden worden verbonden met een nieuw en continu beeksysteem. Het vormgeven van deze kunstmatige situatie enerzijds en de kansen voor nieuwe natuurwaarden en -recreatie anderzijds vormde een belangrijk onderdeel van de ontwerpopgave. In combinatie met de inpassing van de Scheybeek worden de ruimtelijke structuur en de verbindingen met de omgeving verbeterd. De beek wordt samen met een nieuw voet- en fietspad in de lange parkruimtes geënsceneerd. Er ontstaat een spel van ontmoeting en verdwijning tussen bezoeker en beek. Bewegend over het pad heeft de bezoeker een steeds wisselend perspectief op parkruimten en objecten zoals fabriekspijpen en beluchtingtorens. Het pad ligt soms naast de beek, waarna de wegen scheiden, maar de parkbezoeker en de waterloop ontmoeten elkaar weer op onverwachte plekken.
Stel jezelf kort voor! Dan weet het betreffende bedrijf wie hun model gedownload heeft.
Wil je niet bij elke download jouw gegevens in hoeven voeren?
Klik dan hier om in te loggen
.
Heb je nog geen account?
Maak dan hier een gratis account aan
.
Voornaam
Achternaam
E-mailadres
Downloaden
Wanneer je modellen downloadt op Architectenweb.nl worden relevante gegevens van jou – zoals jouw naam en e-mailadres – met het betreffende bedrijf gedeeld. Meer hierover lees je in ons
privacybeleid
.
Locatie
Trefwoorden
parkzoeker
wijkeroogpark
openbare ruimte
velsertunnel
scheybeek
erik de lyon
park
fietspad
beeksysteem
velsen
bureau b+b
voetpad
beluchtingtoren
Bureau B+B stedebouw en landschapsarchitectuur
Neem contact op
Projectdata
Staat van realisatie
Voltooid
Start bouw
2012
Plaats
Velsen-Noord
Bruto m
2
190000
Neem contact op met
Bureau B+B stedebouw en landschapsarchitectuur
Je bent momenteel niet ingelogd. Hierdoor is het alleen mogelijk om meer informatie per e-mail op te vragen. Wil je liever gebeld worden of documentatie per post ontvangen?
Klik dan hier om in te loggen
.
Heb je nog geen account?
Maak dan hier een gratis account aan
.
Voornaam
Achternaam
E-mailadres
Opmerkingen
Bij iedere aanvraag worden relevante gegevens van jou gedeeld met het betreffende bedrijf. Meer hierover lees je in ons
privacybeleid
.
Ja, denk met me mee rond de
materialisering van mijn project
Meer projecten van Bureau B+B stedebouw en landschapsarchitectuur
Stadspark Kerkrade
Bureau B+B stedebouw en landschapsarchitectuur
KuBAaI Bocholt
Bureau B+B stedebouw en landschapsarchitectuur
Aldenhofpark- Hoensbroek
Bureau B+B stedebouw en landschapsarchitectuur
De Kern Bijzonder
Bureau B+B stedebouw en landschapsarchitectuur
Beatrixsluis - Objets trouvés
Bureau B+B stedebouw en landschapsarchitectuur
Mariahilfer Strasse Wenen
Bureau B+B stedebouw en landschapsarchitectuur
Openbare ruimte Arnhem Centraal
Bureau B+B stedebouw en landschapsarchitectuur
Steigerplan Westerdokseiland
Bureau B+B stedebouw en landschapsarchitectuur
Structuurvisie
Bureau B+B stedebouw en landschapsarchitectuur
Herontwikkeling binnenstad
Bureau B+B stedebouw en landschapsarchitectuur
Herinrichting binnenstad
Bureau B+B stedebouw en landschapsarchitectuur
Herinrichting binnenstad
Bureau B+B stedebouw en landschapsarchitectuur
Marktplein
Bureau B+B stedebouw en landschapsarchitectuur
Prinsenhof
Bureau B+B stedebouw en landschapsarchitectuur
De Laares
Bureau B+B stedebouw en landschapsarchitectuur
Stadspark Kerkrade
Bureau B+B stedebouw en landschapsarchitectuur
KuBAaI Bocholt
Bureau B+B stedebouw en landschapsarchitectuur
Aldenhofpark- Hoensbroek
Bureau B+B stedebouw en landschapsarchitectuur
De Kern Bijzonder
Bureau B+B stedebouw en landschapsarchitectuur
Beatrixsluis - Objets trouvés
Bureau B+B stedebouw en landschapsarchitectuur
Mariahilfer Strasse Wenen
Bureau B+B stedebouw en landschapsarchitectuur
Openbare ruimte Arnhem Centraal
Bureau B+B stedebouw en landschapsarchitectuur
Steigerplan Westerdokseiland
Bureau B+B stedebouw en landschapsarchitectuur
Structuurvisie
Bureau B+B stedebouw en landschapsarchitectuur
Herontwikkeling binnenstad
Bureau B+B stedebouw en landschapsarchitectuur
Herinrichting binnenstad
Bureau B+B stedebouw en landschapsarchitectuur
Herinrichting binnenstad
Bureau B+B stedebouw en landschapsarchitectuur
Marktplein
Bureau B+B stedebouw en landschapsarchitectuur
Prinsenhof
Bureau B+B stedebouw en landschapsarchitectuur
De Laares
Bureau B+B stedebouw en landschapsarchitectuur
Toon alles
Andere Projecten
De stad van Aedes: waar werken wonen wordt
Tétris Design & Build
Nieuwbouw Residentie ZICHT Venlo
Knauf Insulation
Light House
Studioninedots
Nieuwbouw Slingeland Ziekenhuis Doetinchem
Knauf Insulation
Fraké Noir gevelbekleding op sanitairgebouw
Houthandel van Dam
The Family Delft
Houthandel van Dam
Houtlook lamellen voor aantrekkelijke nieuwbouw
Renson
De Toerist in Breda
DUCO Ventilation & Sun Control
Solarlux vouwwanden - Zuidkade Scheveningen
Solarlux Nederland B.V.
Multifunctioneel gebouw met aluminium vliesgevel
Aliplast Aluminium Systems
Van gesloten gevel naar transparant visitekaartje
Rockpanel
Den Hartogh Basecamp (Video)
Schüco Nederland
Ga naar het projecten-overzicht
Voor een optimale gebruikservaring plaatst Architectenweb functionele cookies. Wat de verschillende cookies precies doen leggen we uit in een
overzicht
. Cookies van social media kun je optioneel
aanzetten
.
Akkoord
Instellingen
Annuleren
OK
Sluiten
Doorgaan
Inloggen
Maak een gratis persoonlijk account aan
Feedback
Feedback
Wij horen graag jouw feedback. Laat je reactie achter en eventueel jouw e-mail adres.
Reactie
Verstuur