Projecten
Producten
Bedrijven
Vacatures
Agenda
Awards
Podcasts
more_horiz
Videos
Magazine
Favorieten
Profiel
Uitloggen
Abonneer je nu op onze nieuwsbrieven!
Abonneren
Nee, bedankt
Ja, denk met me mee rond de
materialisering van mijn project
Producten
Copyright: Chiel de Nooyer
Copyright: Chiel de Nooyer
Copyright: Chiel de Nooyer
Copyright: Chiel de Nooyer
Copyright: Chiel de Nooyer
Copyright: Chiel de Nooyer
Copyright: Chiel de Nooyer
Copyright: Chiel de Nooyer
Copyright: Chiel de Nooyer
Copyright: Chiel de Nooyer
Copyright: BNLA architecten
Copyright: BNLA architecten
Producttags
AAN
UIT
Luxe vakantiehuis in de duinen van Vlieland
11 november 2014
1
0
0
0
BNLA architecten
heeft een ontwerp gemaakt voor een vakantiehuisje op Vlieland. Het bestemmingsplan van dit voormalig tenthuis terrein is zeer uitgesproken en vormde een uitdaging voor de architecten!
Van concept naar vakantiehuis
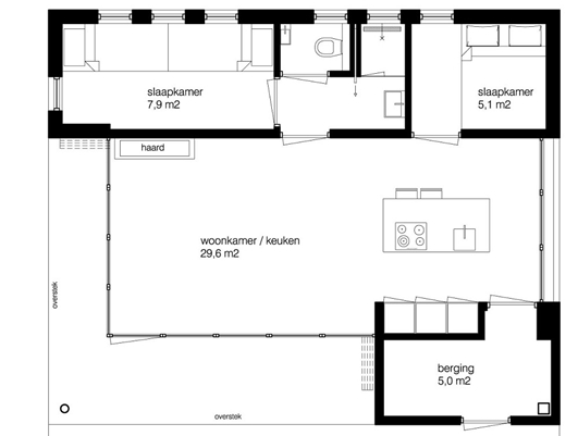
Volgens het bestemmingsplan mocht de nieuwe woning maximaal 54 m2 groot worden met daarnaast nog een aanbouw van 6 m2 van maximaal 2,5 meter hoog. BNLA architecten bedacht een helder concept: aan de noordzijde worden alle dichtere functies geplaatst, zoals de slaapkamers en de badkamer, de gevel is hier redelijk dicht en afgewerkt met houten latjes. De ruimte die overblijft, de woonkamer, krijgt een volledig wegklapbare pui, waardoor in de zomer binnen en buiten volledig in elkaar over gaan. De aanbouw wordt voor de woning geplaatst in plaats van erachter. Hierdoor kan deze tevens als winterentree gebruikt worden. De berging steekt optisch als blokje in de ruimte en aan de binnenzijde zijn de hoge keukenkasten geplaatst.
Binnen en buiten lopen in elkaar over
De woning wordt gekenmerkt door diverse subtiele details, zo loopt de tegelvloer van binnen naar buiten door, is de buitendeur met dezelfde houten latten als de gevel afgewerkt en zijn de binnendeuren kozijnloos.
Stel jezelf kort voor! Dan weet het betreffende bedrijf wie hun model gedownload heeft.
Wil je niet bij elke download jouw gegevens in hoeven voeren?
Klik dan hier om in te loggen
.
Heb je nog geen account?
Maak dan hier een gratis account aan
.
Voornaam
Achternaam
E-mailadres
Downloaden
Wanneer je modellen downloadt op Architectenweb.nl worden relevante gegevens van jou – zoals jouw naam en e-mailadres – met het betreffende bedrijf gedeeld. Meer hierover lees je in ons
privacybeleid
.
Locatie
Trefwoorden
openheid
vlieland
transparant
harmonicapui
hout
de kaap
BNLA architecten
Neem contact op
Projectdata
Staat van realisatie
Voltooid
Start bouw
2014
Plaats
Oost-Vlieland
Bruto m
2
60
Neem contact op met
BNLA architecten
Je bent momenteel niet ingelogd. Hierdoor is het alleen mogelijk om meer informatie per e-mail op te vragen. Wil je liever gebeld worden of documentatie per post ontvangen?
Klik dan hier om in te loggen
.
Heb je nog geen account?
Maak dan hier een gratis account aan
.
Voornaam
Achternaam
E-mailadres
Opmerkingen
Bij iedere aanvraag worden relevante gegevens van jou gedeeld met het betreffende bedrijf. Meer hierover lees je in ons
privacybeleid
.
Ja, denk met me mee rond de
materialisering van mijn project
Meer projecten van BNLA architecten
Moderne villa Alkmaar
BNLA architecten
Modern wonen in een klassiek monument
BNLA architecten
Natuur en luxe in harmonie: een villa in de duinen
BNLA architecten
Monumentale bosvilla
BNLA architecten
Transformatie bioscoop naar stadsappartementen
BNLA architecten
Patio villa aan het water
BNLA architecten
De Nieuwe Meester
BNLA architecten
Maximaal zon en licht voor Amsterdams pand
BNLA architecten
Gloednieuwe bungalow Badhoevedorp
BNLA architecten
Excentrieke villa op IJburg
BNLA architecten
Unieke tussenwoning IJburg
BNLA architecten
Stadsloft met strakke elementen
BNLA architecten
Lichte luxe woning grenzend aan de tuin
BNLA architecten
Modern ontwerp in monumentale stadswoning
BNLA architecten
Duurzaam interieur in Patch22
BNLA architecten
Moderne woning in Nieuwkoop
BNLA architecten
Dijkwoning in Amsterdam
BNLA architecten
Verbouwing grachtenpand
BNLA architecten
Verbouwing monumentaal stadsappartement
BNLA architecten
Luxe villa in de duinen
BNLA architecten
Moderne villa Alkmaar
BNLA architecten
Modern wonen in een klassiek monument
BNLA architecten
Natuur en luxe in harmonie: een villa in de duinen
BNLA architecten
Monumentale bosvilla
BNLA architecten
Transformatie bioscoop naar stadsappartementen
BNLA architecten
Patio villa aan het water
BNLA architecten
De Nieuwe Meester
BNLA architecten
Maximaal zon en licht voor Amsterdams pand
BNLA architecten
Gloednieuwe bungalow Badhoevedorp
BNLA architecten
Excentrieke villa op IJburg
BNLA architecten
Unieke tussenwoning IJburg
BNLA architecten
Stadsloft met strakke elementen
BNLA architecten
Lichte luxe woning grenzend aan de tuin
BNLA architecten
Modern ontwerp in monumentale stadswoning
BNLA architecten
Duurzaam interieur in Patch22
BNLA architecten
Moderne woning in Nieuwkoop
BNLA architecten
Dijkwoning in Amsterdam
BNLA architecten
Verbouwing grachtenpand
BNLA architecten
Verbouwing monumentaal stadsappartement
BNLA architecten
Luxe villa in de duinen
BNLA architecten
Toon alles
Andere Projecten
MFC Feanwâlden
KHV Architecten B.V.
Parkeergarage De Caai in Eindhoven
Alucol
Lichtstad Architecten: bouwen aan blijvende ideeën
KUBUS | Specialist in Archicad
Horecapaviljoen Vakantiepark Eigen Wijze
KHV Architecten B.V.
Ontwikkeling Kornputkwartier
KHV Architecten B.V.
IKEA Restaurant, Frankfurt
objectflor
Gevelsteen vormt monumentaal ontwerp
Steenbakkerij Vande Moortel
Nieuw kantoorgebouw
SAPA
Kindcentrum Kampen
Holonite B.V.
BDO kantoor Breda
ULMA Architectural Solutions
Transformatie Appartementencomplex De Karel 2.0
Knauf B.V.
Studentenhuisvesting the Cube in Utrecht
Kronospan
Ga naar het projecten-overzicht
Voor een optimale gebruikservaring plaatst Architectenweb functionele cookies. Wat de verschillende cookies precies doen leggen we uit in een
overzicht
. Cookies van social media kun je optioneel
aanzetten
.
Akkoord
Instellingen
Annuleren
OK
Sluiten
Doorgaan
Inloggen
Maak een gratis persoonlijk account aan
Feedback
Feedback
Wij horen graag jouw feedback. Laat je reactie achter en eventueel jouw e-mail adres.
Reactie
Verstuur