Abonneer je nu op onze nieuwsbrieven!
Abonneren
Nee, bedankt
Ja, denk met me mee rond de
materialisering van mijn project
Producten
ProducttagsAANUIT

Schipluiden / 46 schuurwoningen

31 maart 2014
Wonen in een dorp is leven in het dorp.

Het huis is de plek waar je leven zich afspeelt. Hier wil je blijven, hier wil je zijn. Dit is jouw huis, je maakt het je eigen. Dit is jouw buurt, hier hoor je thuis. Dit is jouw grond, je voelt je verbonden. Dit is jouw dorp, hier zal je leven.
JE HUIS

Het huis is een huis zoals een kind een huis tekent. Met een dak en een voordeur, een boom in de tuin en rook uit de schoorsteen. Maar het huis is ook precies het huis wat de bewoner wil. Je kan het huis namelijk eigen maken. Kleiner, groter, meer of minder kamers, open of gesloten. Hiervoor geven wij de aanzet in de vorm van een schuur. Deze schuur staat tegen het huis aan en kan direct gebruikt worden als carport. Maar hij kan ook eenvoudig omgebouwd worden tot paardenstal, berging, klushok, garage, werkkamer of slaapkamer. Of je trekt hem bij je huis en maakt een mooie brede woning. Wat jij wilt!

THUIS!

De weg naar je huis zorgt dat je thuiskomt. De route van straat naar woning is uitgebreid en geschakeerd, van dorp naar wijk naar buurt naar erf naar huis. Elke stap is meer vertrouwd, meer eigen. Op je erf, daar gebeurt het! Daar ga je je gang. En natuurlijk kom je achterom. Volluk!

DE UITSTRALING

Je huis is simpel maar zeker niet saai. De materialen zijn duurzaam en eigen, geen fratsen! De horizontaliteit van de huizen versterkt de lange lijnen van het landschap.

DE OPBOUW

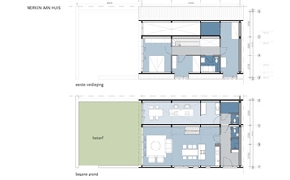
Het huis heeft een houten skelet bestaand uit een vijftal spanten die de karakteristieke dakvorm vormen. Op dit houten skelet komt de regenjas: de bekleding die het skelet droog houdt. Deze regenjas kan eigenlijk elk materiaal krijgen wat de bewoner wenst, als het maar waterdicht en duurzaam is. Denk aan hout, leien, riet… Onder de regenjas wordt het basishuis gebouwd en de ruimte die overblijft is de schuur: meteen te gebruiken als carport en later makkelijk bij het huis te trekken. Twee woningen zijn steeds rug aan rug gekoppeld en vormen kleine clusters van twee of vier woningen. De open tuingevel brengt het licht diep het huis in en grote erkers geven ruimte aan de verdieping.

JE BUURT

De buurt is één geheel. De strokenverkaveling, gericht op het omliggende landschap, is vanzelfsprekend. Het wijkje heeft in alle rust een eigen identiteit, met lange lijnen en simpele dakvormen. En wat is het groen! Het parkeren is overal geclusterd tussen groene hagen. De paden die langs de woningen lopen zijn niet meer dan gras met twee bandensporen. De verspringende verkaveling geeft plek aan een speeltuintje, een kleine boomgaard, een picknicktafel. Wat een ontspanning!

DE TOEKOMST

Je past je huis aan. Als je het koopt geniet je van de open ruimte en staan je oldtimers in de carport. Maar dan komen de kinderen en maak je kamertjes waar de vide zat. En maken de auto’s plaats voor wandelwagens en kinderfietsjes. En later een box voor het paard. Of die gedroomde klusruimte. Of toch maar werken aan huis? En nog later verplaats je de slaapkamer met badkamer naar beneden zodat je de trap niet meer op hoeft. En omdat je huis gebouwd is van eerlijke materialen die lang meegaan, loont het de moeite. Dat noemen wij duurzaam.

Stel jezelf kort voor! Dan weet het betreffende bedrijf wie hun model gedownload heeft.
Wil je niet bij elke download jouw gegevens in hoeven voeren?
Klik dan hier om in te loggen.

Heb je nog geen account? Maak dan hier een gratis account aan.
Voornaam
Achternaam
E-mailadres
Downloaden
Wanneer je modellen downloadt op Architectenweb.nl worden relevante gegevens van jou – zoals jouw naam en e-mailadres – met het betreffende bedrijf gedeeld. Meer hierover lees je in ons privacybeleid.

Locatie

Neem contact op met Zijdekwartier architecten bv

Je bent momenteel niet ingelogd. Hierdoor is het alleen mogelijk om meer informatie per e-mail op te vragen. Wil je liever gebeld worden of documentatie per post ontvangen? Klik dan hier om in te loggen.
Heb je nog geen account? Maak dan hier een gratis account aan.
Voornaam
Achternaam
E-mailadres
Opmerkingen
Bij iedere aanvraag worden relevante gegevens van jou gedeeld met het betreffende bedrijf. Meer hierover lees je in ons privacybeleid.
Ja, denk met me mee rond de
materialisering van mijn project

Meer projecten van Zijdekwartier architecten bv

KUBUS | Specialist in Archicad
SAPA
Reynaers Aluminium Nederland
Jansen
SAB-profiel bv
Aliplast Aluminium Systems
Kingspan Light & Air
ALUCOBOND®
Caparol
Tarkett BV
Kawneer
Grohe Nederland B.V.
Malaysian Timber Council
OCS | Office Cabling Systems
Swisspearl Nederland
Forster Nederland N.V.
VELUX Commercial Benelux B.V.
Sempergreen
Houthandel van Dam
Aluprof Nederland BV
QbiQ Wall Systems
Forbo Flooring
Schüco Nederland
Cedral
Sto Isoned bv
Triflex bv
Gorter Luiken BV
wienerberger
DUCO Ventilation & Sun Control
BEWI IsoBouw
ROCKWOOL B.V.
Mview+
Rockfon (ROCKWOOL B.V.)
Gira Nederland B.V.
Kingspan Geïsoleerde Panelen
GEZE Benelux  B.V.
Renson
Metaglas Groep
ABB | Busch-Jaeger
Jung | Hateha B.V.
Knauf B.V.
Saint-Gobain Glass Benelux
Faay Vianen B.V.
objectflor
Boon Edam Nederland B.V.
Hunter Douglas Architectural
VOLA Nederland BV
Forbo Eurocol Nederland B.V.
EQUITONE gevelpanelen
Holonite B.V.
Kronospan
Tata Steel Colorcoat®
Architectenweb
Over ons
Contact

© 2002 - 2026 Architectenweb BV / Voorwaarden / Privacy / Disclaimer / Sitemap
Annuleren
OK
Sluiten
Doorgaan
Inloggen
Maak een gratis persoonlijk account aan