Projecten
Producten
Bedrijven
Vacatures
Agenda
Awards
Podcasts
more_horiz
Videos
Magazine
Favorieten
Profiel
Uitloggen
Abonneer je nu op onze nieuwsbrieven!
Abonneren
Nee, bedankt
Ja, denk met me mee rond de
materialisering van mijn project
Producten
Producttags
AAN
UIT
Transformatie van Belgisch vrachtschip tot Amsterdamse woonb
25 november 2013
0
0
0
0
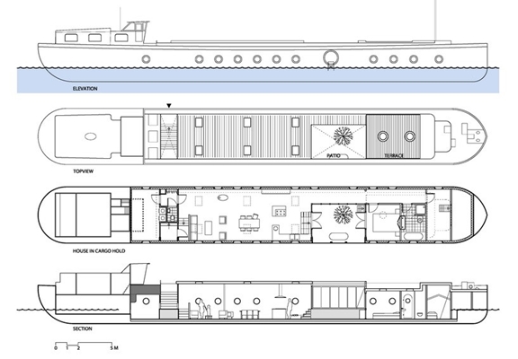
Kunstenaar Laura en restaurant eigenaar John wilde een grotere woonboot vanwege gezinsuitbreiding. Na enig speurwerk viel hun oog op een 40 meter lange Belgische Spitz. Het schip was net ‘met pensioen gegaan’ na een lang leven van vracht vervoeren over de Europese rivieren. Laura en John waren zo onder de indruk van de liefde en toewijding waarmee de kapitein het schip in al die jaren had onderhouden dat ze besloten om de stuurhut, de roef en de machinekamer intact te laten. Ze wilden het schip vaarbaar houden en om de certificering niet in gevaar te brengen mocht er weinig worden aangepast aan de romp, machinekamer, stuurhut en andere cruciale delen van het schip. Aangewezen plaats voor de woonruimte werd dus het ruim van het schip
Toen wij met de opbracht begonnen hadden we één belangrijk uitganspunt en dat was om een lichte en luchtige woonboot te maken. Veel woonboten die in het ruim van een vrachtschip zijn gemaakt zijn donker en soms zelfs somber. Om deze somberheid te voorkomen hebben we een grote patio en 18 oversized bronzen patrijspoorten geïntroduceerd. Hoewel een forse investering moesten we voor de ramen in de romp wel gebruik maken van deze in Pakistan gegoten patrijspoorten omdat anders de certificering in gevaar zou komen.
Om het ruim bewoonbaar te maken is het eerst rondom geïsoleerd met polyurethaan en vervolgens afgetimmerd in lichtgekleurd multiplex.
De entree van de woning en het voormalig vrachtruim gaat via een kleine patio in het laadruim vlak voor de stuurhut. De grote patio in het midden van de woning heeft als belangrijkste ingrediënten een glazen pui rondom, een buitenbad en een perenboom. Op een schip met kinderen is veiligheid altijd een zorg en een patio is een handige manier om toch een veilige buitenspeelplek te maken. Een perenboom is misschien niet heel erg normaal op eens chip maar in termen van afmeting of gewicht is het voor een vrachtschip natuurlijk een fluitje van een cent.
De keuken en het interieur zijn in nauw overleg met de bewoners van het schip ontworpen en reflecteren de kunst van Laura en de restaurantervaring van John. Centraal in de woonruimte het kookeiland dat altijd bedolven is onder de verschillende soorten verse groeneten en kruiden uit eigen patio. Aan de andere kant van de patio is er een ruime en lichte ouderslaapkamer die in niets doet denken aan een krappe scheepshut. Daarachter de grote gele badkamer en helemaal voorin in de roef van de matroos de kinderkamer met wel weer een echte scheepskooi.
Omdat het vrachtruim 5 x 30 meter groot is en ook nog eens ruim drie meter hoog kun je hier het gehele programma van een ruim appartement of zelfs een heel rijtjeshuis kwijt. Iets wat in het centrum van Amsterdam behoorlijk uniek is.
De intact gelaten ruimtes van de schipper en zijn familie, zoals de stuurhut en de roef zijn hier en daar aangepast aan de comforteisen van deze tijd en deze worden nu samen verhuurd als een zelfstandig appartement. Waar vroeg een schippersfamilie met twee kinderen woonde leeft nu één Koreaanse uitwisselingsstudent.
Stel jezelf kort voor! Dan weet het betreffende bedrijf wie hun brochure gedownload heeft.
Wil je niet bij elke download jouw gegevens in hoeven voeren?
Klik dan hier om in te loggen
. Heb je nog geen account?
Maak dan hier een gratis account aan
.
Voornaam
Achternaam
E-mailadres
Downloaden
Wanneer je brochures downloadt op Architectenweb.nl worden relevante gegevens van jou – zoals jouw naam en e-mailadres – met het betreffende bedrijf gedeeld. Meer hierover lees je in ons
privacybeleid
.
Wanneer je brochures downloadt op Architectenweb.nl worden relevante gegevens van jou – zoals jouw naam en e-mailadres – met het betreffende bedrijf gedeeld. Meer hierover lees je in ons
privacybeleid
.
Brochure
Stel jezelf kort voor! Dan weet het betreffende bedrijf wie hun model gedownload heeft.
Wil je niet bij elke download jouw gegevens in hoeven voeren?
Klik dan hier om in te loggen
.
Heb je nog geen account?
Maak dan hier een gratis account aan
.
Voornaam
Achternaam
E-mailadres
Downloaden
Wanneer je modellen downloadt op Architectenweb.nl worden relevante gegevens van jou – zoals jouw naam en e-mailadres – met het betreffende bedrijf gedeeld. Meer hierover lees je in ons
privacybeleid
.
Locatie
Trefwoorden
woonboot
HOYT Architecten & Bouwmanagers
Neem contact op
Projectdata
Staat van realisatie
Voltooid
Start bouw
2013
Plaats
Amsterdam
Bruto m
2
200
m
3
700
Neem contact op met
HOYT Architecten & Bouwmanagers
Je bent momenteel niet ingelogd. Hierdoor is het alleen mogelijk om meer informatie per e-mail op te vragen. Wil je liever gebeld worden of documentatie per post ontvangen?
Klik dan hier om in te loggen
.
Heb je nog geen account?
Maak dan hier een gratis account aan
.
Voornaam
Achternaam
E-mailadres
Opmerkingen
Bij iedere aanvraag worden relevante gegevens van jou gedeeld met het betreffende bedrijf. Meer hierover lees je in ons
privacybeleid
.
Ja, denk met me mee rond de
materialisering van mijn project
Meer projecten van HOYT Architecten & Bouwmanagers
Kantoor Kwink
HOYT Architecten & Bouwmanagers
Transformatie van kerk tot kantoor
HOYT Architecten & Bouwmanagers
Glazen woninguitbreiding
HOYT Architecten & Bouwmanagers
Villa Biesvaren
HOYT Architecten & Bouwmanagers
Kantoor Kwink
HOYT Architecten & Bouwmanagers
Transformatie van kerk tot kantoor
HOYT Architecten & Bouwmanagers
Glazen woninguitbreiding
HOYT Architecten & Bouwmanagers
Villa Biesvaren
HOYT Architecten & Bouwmanagers
Toon alles
Andere Projecten
De Toerist in Breda
DUCO Ventilation & Sun Control
In ontwikkeling: IKC Strandeiland, Amsterdam
WEBO
Gorter op nieuwbouw sociale huurappartementen
Gorter Luiken BV
Prefab villa - Egmond aan Zee
Houthandel van Dam
Nieuwbouw poeliersbedrijf Van Berkel Kip
Ruys Groep
Nieuwbouw 107 appartementen Spoordok
Gorter Luiken BV
Appartementencomplex - Résidence Gooiland
Rodruza B.V.
Nieuwbouwwijk - Oosterparkkwartier
Rodruza B.V.
Nieuwbouwwijk - New Brooklyn
Rodruza B.V.
De Octaaf - Nijmegen
Houthandel van Dam
Tijdloos nieuwbouwproject – Haaksbergen
Joris Ide
JI NatureBlack - Tijdloos design, staalprestaties
Joris Ide
Ga naar het projecten-overzicht
Voor een optimale gebruikservaring plaatst Architectenweb functionele cookies. Wat de verschillende cookies precies doen leggen we uit in een
overzicht
. Cookies van social media kun je optioneel
aanzetten
.
Akkoord
Instellingen
Annuleren
OK
Sluiten
Doorgaan
Inloggen
Maak een gratis persoonlijk account aan
Feedback
Feedback
Wij horen graag jouw feedback. Laat je reactie achter en eventueel jouw e-mail adres.
Reactie
Verstuur