Abonneer je nu op onze nieuwsbrieven!
Abonneren
Nee, bedankt
Ja, denk met me mee rond de
materialisering van mijn project
Producten
Copyright: Christian Richters
Copyright: Christian Richters
Copyright: Christian Richters
Copyright: Christian Richters
Copyright: Christian Richters
Copyright: Christian Richters
Copyright: Christian Richters
Copyright: Christian Richters
Copyright: Christian Richters
Copyright: Christian Richters
Copyright: Christian Richters
Copyright: Christian Richters
ProducttagsAANUIT

Ginkgo Project

25 juni 2012
Het Ginkgo project combineert kunst, technologie en architectuur om een woongebouw in de natuur van een bestaand nabij park te integreren.

Context en programma
Het project bevindt zich dichtbij het nationaal park de Veluwe en biedt uitzicht op een oude kerk en het centrale park van de kleine plaats. De stedebouwkundige structuur van Beekbergen bestaat, zoals veel van de kleine plaatsen in Nederland, voornamelijk uit grote eengezinswoningen die niet betaalbaar zijn voor jongeren en niet geschikt zijn voor ouderen met mobiliteitsproblemen.

Het project Ginkgo verkent de mogelijkheid van het bieden van betaalbare woningen voor verschillende doelgroepen dankzij het compacte woongebouw dat fysiek en visueel geïntegreerd is in zijn context. De locatie is een interessante plek tussen twee zones met zeer verschillende karakters: een groen park aan de ene zijde en een stedelijke na-oorlogse wijk uit de 50er jaren aan de andere zijde.

Het programma bestaat uit koop appartementen, gericht op voornamelijk jongeren en 65+ers, en parkwoningen voor de verhuur.

Concept
Het project is gebaseerd op een zorgvuldige dialoog tussen twee huiden, die reageert op de grens condities aan beide zijden van de locatie:

1 De “Groene Huid”
De transparantie van de gevel aan het park, inclusief de lange balkons van het appartementengebouw en de royale terrassen van de parkwoningen, verbindt de woningen zowel visueel als fysiek met het park.

De glazen gevel is speciaal ontworpen met een print van Ginkgo Biloba bladeren van verschillende groene en gele tinten die reageren op het continu veranderende licht van de lucht, waardoor zeer bijzondere effecten, reflecties, schaduwen en silhouetten ontstaan, afhankelijk van het moment van de dag en het seizoen. Dit biedt privacy op de balkons en terrassen en verzekert tegelijkertijd de visuele verbinding tussen de buitenruimtes en het park.

Bijna ieder geprint paneel van de gevel is uniek, waardoor een visuele herhaling wordt voorkomen en een natuurlijke en organische doorlopende afbeelding van begroeiing ontstaat dat de gevel van het gebouw omhult.

De geprinte glazen gevel werkt als een virtueel groene gevel die het gebouw in het groen van het park integreert, de visuele impact op de omgeving vermindert en het gebouw zo een iconische uitstraling van lichtheid en immaterialiteit geeft.

2 De “Stedelijke Huid”
Deze huid, die het gebouw aan de ander zijde omsluit, reageert op het stedelijke karakter van de context. De proporties van de gevelopeningen en het gebruik van baksteen geeft het gebouw een meer massieve uitstraling, die helpt bij de subtiele dialoog die het gebouw aangaat met de bestaande na-oorlogse gebouwen in de buurt.

Het gebouw

Het appartementengebouw

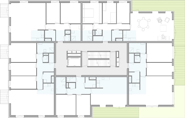
Het appartementengebouw is een compact gebouw dat bestaat uit een aantal centrische functionele ringen.

De kern in het midden van het gebouw is omringd door een eerste ring van collectieve verkeersruimtes, die toegang bieden tot de appartementen. De tweede ring concentreert alle benodigde voorzieningen voor de appartementen (toiletten, badkamers, keukens, bergingen en schachten) zodat er een derde ring ontstaat met een continue vrije ruimte, waarin de verblijfsruimtes van de woningen zijn geplaatst. Deze ring is een flexibele ruimte die op vele manieren verdeelt kan worden en zo verschillende indelingen voor verschillende levenswijzen kan bieden. De woningtypes kunnen variëren van een ruimtelijke loft tot een drie-kamer appartement. De vierde ring is gegenereerd door de buitenruimtes van de woningen, die bestaan uit de lange panoramische balkons die de appartementen aan de parkzijde omringen en de individuele balkons die de gevel aan de stedelijke gevel een willekeurig ritme geven.

De parkwoningen
De parkwoningen zijn ontworpen met een extra groot terras op de verdieping met uitzicht op het park. Op begane grond verbindt de grote glazen geven de woonkamer visueel met het park. Het relatief kleine terras op dit niveau is door een bescheiden helling van het park gescheiden en nodigt de gebruikers uit om het park als hun eigen achtertuin te gebruiken, waarmee het een directe visuele en fysieke verbinding biedt tussen de woonkamer, het private terras en het openbare park.

Een half-verdiepte garage, die de benodigde parkeerplekken voor het gehele complex herbergt, is verborgen onder een kleine heuvel die ook de privacy binnen de parkwoningen op een natuurlijke wijze regelt.

Ecologische voorzieningen in het project

Idee van ecologie

De bijzondere dichtheid van het project, vergeleken met de naburige vrijstaande en semi-vrijstaande woningen, biedt de jonge mensen in de plaats niet alleen betaalbare appartementen van hoge kwaliteit, maar verkleint de footprint van het gebouw ook met meer dan 80%, minimaliseert de ecologische impact en behoudt de waardevolle natuurlijke omgeving. Het project is ontworpen als een zeer compact gebouw met een minimum aan geveloppervlak en een maximum aan thermische isolatie om het thermisch verlies in de winter te minimaliseren, terwijl het is uitgerust met lange balkons aan de zuid- en westgevel die 's zomers werken als een natuurlijke bescherming tegen de zon.

Groene materialen
Het project is gebouwd met duurzame materialen die weinig onderhoud behoeven en waarvan enkele geproduceerd zijn volgens een industrieel recycling proces en de meeste eenvoudig te recyclen zijn. De gevelelementen en kozijnen, die voor 60% bestaan uit gerecycled aluminium kunnen voor 100% gerecycled worden. Houten producten hebben het FCS keurmerk, waarmee is gewaarborgd dat ze komen uit verantwoordelijk gekapte gebieden en gecontroleerde bronnen. Het extensieve gebruik van geprefabriceerde materialen en droge verbindingen vermindert het energiegebruik en afval tijdens het bouwproces en maakt eventuele vervanging van elementen en toekomstige sloop gemakkelijker.

Natuurlijke bronnen
Ieder appartement is voorzien van een onafhankelijke installatie die voorbereid is voor een toekomstige aansluiting van zonnepanelen, die zonne-energie omzetten in elektriciteit voor het gebruik in de woning zelf of om terug te verkopen aan het net. Alle woningen zijn voorzien van een hotfill verbinding voor wasmachines, die het gebruik van minder efficiënte elektrische verwarmingssystemen voorkomt. Het project is voorzien van een afzonderlijk systeem voor afvalwater en hemelwater, gecombineerd met een WADI systeem dat werkt als een buffer voor regenwater, waardoor overstroming tijdens hevige regenval wordt voorkomen en waarmee het nabije park wordt geïrrigeerd.

Stel jezelf kort voor! Dan weet het betreffende bedrijf wie hun brochure gedownload heeft.
Wil je niet bij elke download jouw gegevens in hoeven voeren?
Klik dan hier om in te loggen. Heb je nog geen account? Maak dan hier een gratis account aan.
Voornaam
Achternaam
E-mailadres
Downloaden
Wanneer je brochures downloadt op Architectenweb.nl worden relevante gegevens van jou – zoals jouw naam en e-mailadres – met het betreffende bedrijf gedeeld. Meer hierover lees je in ons privacybeleid.
Wanneer je brochures downloadt op Architectenweb.nl worden relevante gegevens van jou – zoals jouw naam en e-mailadres – met het betreffende bedrijf gedeeld. Meer hierover lees je in ons privacybeleid.

Stel jezelf kort voor! Dan weet het betreffende bedrijf wie hun model gedownload heeft.
Wil je niet bij elke download jouw gegevens in hoeven voeren?
Klik dan hier om in te loggen.

Heb je nog geen account? Maak dan hier een gratis account aan.
Voornaam
Achternaam
E-mailadres
Downloaden
Wanneer je modellen downloadt op Architectenweb.nl worden relevante gegevens van jou – zoals jouw naam en e-mailadres – met het betreffende bedrijf gedeeld. Meer hierover lees je in ons privacybeleid.

Locatie

Neem contact op met Casanova + Hernandez architectuur, stedebouw en landschapsarchitectuur

Je bent momenteel niet ingelogd. Hierdoor is het alleen mogelijk om meer informatie per e-mail op te vragen. Wil je liever gebeld worden of documentatie per post ontvangen? Klik dan hier om in te loggen.
Heb je nog geen account? Maak dan hier een gratis account aan.
Voornaam
Achternaam
E-mailadres
Opmerkingen
Bij iedere aanvraag worden relevante gegevens van jou gedeeld met het betreffende bedrijf. Meer hierover lees je in ons privacybeleid.
Ja, denk met me mee rond de
materialisering van mijn project

Meer projecten van Casanova + Hernandez architectuur, stedebouw en landschapsarchitectuur

Casanova + Hernandez architectuur, stedebouw en landschapsarchitectuur
Casanova + Hernandez architectuur, stedebouw en landschapsarchitectuur
Casanova + Hernandez architectuur, stedebouw en landschapsarchitectuur
Toon alles
ATAG Nederland
KUBUS | Specialist in Archicad
SAPA
Reynaers Aluminium Nederland
Jansen
SAB-profiel bv
Aliplast Aluminium Systems
Kingspan Light & Air
ALUCOBOND®
Caparol
Tarkett BV
Kawneer
Grohe Nederland B.V.
Malaysian Timber Council
OCS | Office Cabling Systems
Swisspearl Nederland
Forster Nederland N.V.
VELUX Commercial Benelux B.V.
Sempergreen
Houthandel van Dam
Aluprof Nederland BV
QbiQ Wall Systems
Forbo Flooring
Schüco Nederland
Cedral
Sto Isoned bv
Triflex bv
Gorter Luiken BV
wienerberger
DUCO Ventilation & Sun Control
BEWI IsoBouw
ROCKWOOL B.V.
Mview+
Rockfon (ROCKWOOL B.V.)
Gira Nederland B.V.
Kingspan Geïsoleerde Panelen
GEZE Benelux  B.V.
Renson
Metaglas Groep
ABB | Busch-Jaeger
Jung | Hateha B.V.
Knauf B.V.
Saint-Gobain Glass Benelux
Faay Vianen B.V.
objectflor
Boon Edam Nederland B.V.
Hunter Douglas Architectural
VOLA Nederland BV
Forbo Eurocol Nederland B.V.
EQUITONE gevelpanelen
Holonite B.V.
Tata Steel Colorcoat®
Architectenweb
Over ons
Contact

© 2002 - 2026 Architectenweb BV / Voorwaarden / Privacy / Disclaimer / Sitemap
Annuleren
OK
Sluiten
Doorgaan
Inloggen
Maak een gratis persoonlijk account aan