Projecten
Producten
Bedrijven
Vacatures
Agenda
Awards
Podcasts
more_horiz
Videos
Magazine
Thema's
Favorieten
Profiel
Uitloggen
Abonneer je nu op onze nieuwsbrieven!
Abonneren
Nee, bedankt
Ja, denk met me mee rond de
materialisering van mijn project
Producten
Producttags
AAN
UIT
Topsporthal T-kwadraat + Ireen Wüst Schaatsbaan
16 februari 2011
0
0
0
0
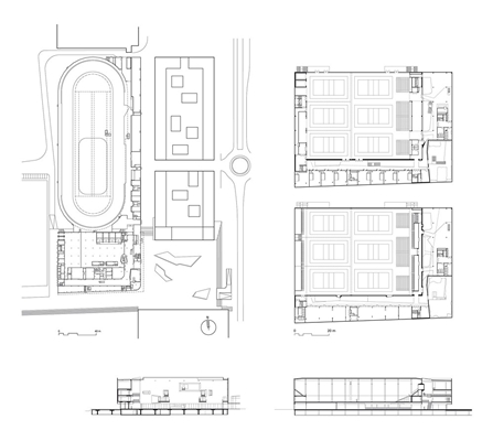
Bo.2/vH wilde het project tot een herkenbaar centrum maken, waar de wijk Stappegoor met haar hogescholen, kantoren, woningbouw en vele sportfuncties rond zou kunnen opbloeien. Het bijzondere aan het nieuwe Stappegoor is de nagestreefde campusopzet waarbij het wonen en sporten worden gemixt.
Het sportpaleis symboliseert dit intensieve contact tussen leven en sporten. Het sportpaleis vormgegeven vanuit een dialoog met haar rijke context. Zo vormt de massa een intermediair tussen de grootschalige woongebouwen en megabioscoop enerzijds en de sportvelden en grondgebonden woningen anderzijds. De glazen plint welke doorloopt om de schaatsbaan begeleidt de sportboulevard die Stappegoor doorkruist en verbindt de twee pleinen in het gebied.
Bij benadering oogt het gebouw als een zwevende vierkante monoliet. Deze abstractie wordt bekrachtigt door de schijnbaar willekeurig over de gevel verspreide ovale ramen. Wanneer men dichterbij komt worden meer details in de gevelpatronen zichtbaar tot de door daklichten verlichte binnenwereld zich ontvouwt achter de glazen plint. De gevelplaten hebben een speciaal ontworpen patroon, gebaseerd op het logo van de gemeente Tilburg; de letter T. De sporthal is ingepakt in het overige programma. Bij binnenkomst passeert men de klimhal en enkele cafés alvorens de gorge te betreden.
De gorge is een open ruimte, als een natuurlijke kloof met loopbruggen en doorzichten van de hal naar de omringende ruimten. Alle activiteiten in het gebouw zijn gebundeld in deze bruisende centrale ruimte. Bo.2 heeft tevens de balie, enkele meubels, het kleurenpalet en de bewegwijzering ontworpen. Door de benodigde iconen en tekst in grote ovalen op vloeren en muren te drukken zijn het exterieur en interieur nog meer aan elkaar gerelateerd. Opdrachtgever: Consortium Stappegoor (Synchroon bv, Crapts onroerend goed bv, Bouwfonds ontwikkeling)
In de verkiezing voor BNA Gebouw van het Jaar 2010 is T-Kwadraat winnaar in de regio zuid.
Stel jezelf kort voor! Dan weet het betreffende bedrijf wie hun brochure gedownload heeft.
Wil je niet bij elke download jouw gegevens in hoeven voeren?
Klik dan hier om in te loggen
. Heb je nog geen account?
Maak dan hier een gratis account aan
.
Voornaam
Achternaam
E-mailadres
Downloaden
Wanneer je brochures downloadt op Architectenweb.nl worden relevante gegevens van jou – zoals jouw naam en e-mailadres – met het betreffende bedrijf gedeeld. Meer hierover lees je in ons
privacybeleid
.
Wanneer je brochures downloadt op Architectenweb.nl worden relevante gegevens van jou – zoals jouw naam en e-mailadres – met het betreffende bedrijf gedeeld. Meer hierover lees je in ons
privacybeleid
.
Brochure
Stel jezelf kort voor! Dan weet het betreffende bedrijf wie hun model gedownload heeft.
Wil je niet bij elke download jouw gegevens in hoeven voeren?
Klik dan hier om in te loggen
.
Heb je nog geen account?
Maak dan hier een gratis account aan
.
Voornaam
Achternaam
E-mailadres
Downloaden
Wanneer je modellen downloadt op Architectenweb.nl worden relevante gegevens van jou – zoals jouw naam en e-mailadres – met het betreffende bedrijf gedeeld. Meer hierover lees je in ons
privacybeleid
.
Locatie
Trefwoorden
bo.2
multifunctioneel
gebiedsontwikkeling
sportcampus
bo.2 architectuur en stedenbouw
bo2
sporthal
sporthallen
Bo.2 architectuur en stedenbouw bv
Neem contact op
Projectdata
Staat van realisatie
Voltooid
Start bouw
2009
Plaats
Tilburg
Bruto m
2
43000
Neem contact op met
Bo.2 architectuur en stedenbouw bv
Je bent momenteel niet ingelogd. Hierdoor is het alleen mogelijk om meer informatie per e-mail op te vragen. Wil je liever gebeld worden of documentatie per post ontvangen?
Klik dan hier om in te loggen
.
Heb je nog geen account?
Maak dan hier een gratis account aan
.
Voornaam
Achternaam
E-mailadres
Opmerkingen
Bij iedere aanvraag worden relevante gegevens van jou gedeeld met het betreffende bedrijf. Meer hierover lees je in ons
privacybeleid
.
Ja, denk met me mee rond de
materialisering van mijn project
Meer projecten van Bo.2 architectuur en stedenbouw bv
Holland Carré
Bo.2 architectuur en stedenbouw bv
Tee Park
Bo.2 architectuur en stedenbouw bv
Nuenen West
Bo.2 architectuur en stedenbouw bv
Zorg 2025
Bo.2 architectuur en stedenbouw bv
Holland Carré
Bo.2 architectuur en stedenbouw bv
Tee Park
Bo.2 architectuur en stedenbouw bv
Nuenen West
Bo.2 architectuur en stedenbouw bv
Zorg 2025
Bo.2 architectuur en stedenbouw bv
Toon alles
Andere Projecten
Campus Sportief Besteed Groep — Wubben.Chan
Wubben.Chan architecten
BDO kantoor Breda
ULMA Architectural Solutions
Toegangscontrole op een dynamisch terrein
Heras
Biobased bouwen naast Natura 2000-gebied
KUBUS | Specialist in Archicad
5Tracks - inspirerende atriums met JUNG
Jung | Hateha B.V.
Totaalrealisatie nieuwe kantoorlocatie A. Vogel
Intermontage B.V.
Sweco Wonderwoods — Duurzame kantoorinrichting
Hal2
Gare Maritime, Brussel
WEBO
De transformatie van de Lintveldebrink
Grohe Nederland B.V.
Sweco WTC Den Haag — Duurzame kantoorinrichting
Hal2
Uitbreiding Hotel Martin's Klooster, Leuven
OWA Benelux - Akoestiek & Design
RVS plinten kantoor Moore DRV
Storax
Ga naar het projecten-overzicht
Voor een optimale gebruikservaring plaatst Architectenweb functionele cookies. Wat de verschillende cookies precies doen leggen we uit in een
overzicht
. Cookies van social media kun je optioneel
aanzetten
.
Akkoord
Instellingen
Annuleren
OK
Sluiten
Doorgaan
Inloggen
Maak een gratis persoonlijk account aan
Feedback
Feedback
Wij horen graag jouw feedback. Laat je reactie achter en eventueel jouw e-mail adres.
Reactie
Verstuur