Projecten
Producten
Bedrijven
Vacatures
Agenda
Awards
Podcasts
more_horiz
Videos
Magazine
Thema's
Favorieten
Profiel
Uitloggen
Abonneer je nu op onze nieuwsbrieven!
Abonneren
Nee, bedankt
Ja, denk met me mee rond de
materialisering van mijn project
Solarlux balkonrenovatie
Copyright: Solarlux Nederland B.V.
Solarlux balkonrenovatie voor-na
Copyright: Solarlux Nederland B.V.
Solarlux balkonrenovatie
Copyright: Solarlux Nederland B.V.
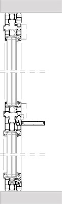
Solarlux balkonrenovatie detailtekening
Copyright: Solarlux Nederland B.V.
Solarlux Ecoline M
Nieuwe thermisch geïsoleerde gevelmodule
0
0
0
0
Solarlux heeft het productportfolio verder verrijkt en de jarenlange expertise in beweegbare glaselementen verder uitgebreid richting renovatieprojecten. De thermisch geïsoleerde gevelmodule Ecoline M stelt architecten in staat om balkons en loggia's sneller en efficiënter af te sluiten, zonder concessies te doen aan de esthetische waarde die zo kenmerkend is voor het balkonontwerp, in tegenstelling tot de klassieke stijl-regelconstructies.
De trend van het buiten zitten, vooral in de vorm van balkons en loggia's, heeft sinds de pandemie aan kracht gewonnen. Deze ruimtes bieden in appartementsgebouwen met meerdere verdiepingen een belangrijke plek van een eigen buitenruimte. Glazen vouwwanden combineren het beste van twee werelden: wanneer ze gesloten zijn, bieden ze een comfortabele, volledig geïsoleerde leefomgeving, terwijl ze in geopende staat de binnen- en buitenruimtes naadloos met elkaar verbinden en zo de geliefde balkonbeleving creëren.
Om de gevels van verouderde gebouwen snel en met hoge prefabricage te renoveren, heeft de raam- en gevelspecialist Solarlux het modulaire systeem Ecoline M ontwikkeld. Dit systeem bestaat uit borstweringselementen die gekoppeld worden aan Ecoline glazen vouwwanden, resulterend in een solide modulair omlopend kozijn. Ondanks de omvang van de modules behouden de profielaanzichten en de statische dwarsbalken een smalle, verfijnde uitstraling, die bijdraagt aan een fraai gevelaanzicht. Bovendien is het systeem ontworpen met verborgen bevestigings- en afvoerniveaus, wat zorgt voor een strakke afwerking. Tijdens de planningsfase worden de exacte afmetingen en het aantal vouwelementen op maat geconfigureerd. De modules worden als geprefabriceerde eenheden op de bouwlocatie geleverd, waarna het borstweringglas en de vouwelementen ter plaatse worden gemonteerd. Dit modulaire ontwerp vermindert de montagetijd aanzienlijk en geeft minder overlast voor de bewoners.
Er zijn twee mogelijke aansluitingsvarianten: de modules kunnen direct op de bestaande vloerplaat worden gemonteerd met beugels of er kan een montage vóór de gevel plaatsvinden, waardoor het balkonoppervlak behouden blijft. Bovendien maakt een doordachte reinigingsoptie het mogelijk om het glas veilig en eenvoudig van binnenuit schoon te maken.
Met drievoudige isolerende beglazing biedt het systeem uitstekende thermische prestaties, met een Uw-waarde tot 1,1 W/(m2K), wat het ideaal maakt voor gebouwen die voldoen aan hoge energie-efficiëntie-eisen. Voor situaties met lagere thermische isolatiebehoeften biedt Solarlux ook een variant met niet-geïsoleerde schuif-draaielementen, zoals de SL Modular-optie.
Meer informatie en details zijn te lezen op: https://solarlux.com/nl/systemen/ecoline-m.html
Download brochures
Solarlux brochure Balkon en Gevel
Brochure
Stel jezelf kort voor! Dan weet het betreffende bedrijf wie hun brochure gedownload heeft.
Wil je niet bij elke download jouw gegevens in hoeven voeren?
Klik dan hier om in te loggen
. Heb je nog geen account?
Maak dan hier een gratis account aan
.
Voornaam
Achternaam
E-mailadres
Downloaden
Wanneer je brochures downloadt op Architectenweb.nl worden relevante gegevens van jou – zoals jouw naam en e-mailadres – met het betreffende bedrijf gedeeld. Meer hierover lees je in ons
privacybeleid
.
Wanneer je brochures downloadt op Architectenweb.nl worden relevante gegevens van jou – zoals jouw naam en e-mailadres – met het betreffende bedrijf gedeeld. Meer hierover lees je in ons
privacybeleid
.
Brochure
Trefwoorden
balkon renovatie
glazen vouwwanden
prefab
balkon
solarlux
appartmenten
flats
hoogbouw
balkonbeglazing
loggia
renovatie
Solarlux Nederland B.V.
Download brochures (1)
Neem contact op
Eigenschappen
Materiaal
Dichtheid
Gewicht
Levensduur
Impact data
Brandwerendheidsklasse
Energiemix
Recycled materiaal
Biobased materiaal
Thermisch
Lambda
R-waarde
U-waarde
Environmental Product Declaration
Download
LCA tabel
Product
Loading…
GWP A1-A3
GWP Total
GWP Fossil
GWP Biogenic
GWP LULUC
Materiaal
Dichtheid
Gewicht
Levensduur
Brandwerendheid
Recycled content
Biobased content
Energiemix
Lambda
R-waarde
U-waarde
Productiefaciliteit
Productielocatie
Geografisch bereik
Volgens
Geldigheid
EPD – Life Cycle Assessment (LCA)
Loading…
Geen resultaten gevonden
Stel jezelf kort voor! Dan weet het betreffende bedrijf wie hun EPD gedownload heeft.
Wil je niet bij elke download jouw gegevens in hoeven voeren?
Klik dan hier om in te loggen
. Heb je nog geen account?
Maak dan hier een gratis account aan
.
Voornaam
Achternaam
E-mailadres
Download
Annuleren
Wanneer je EPD's downloadt op Architectenweb.nl worden relevante gegevens van jou – zoals jouw naam en e-mailadres – met het betreffende bedrijf gedeeld. Meer hierover lees je in ons
privacybeleid
.
Contactgegevens
Telefoonnummer
0548-631323
Email
Website
Solarlux
Neem contact op met
Solarlux Nederland B.V.
Je bent momenteel niet ingelogd. Hierdoor is het alleen mogelijk om meer informatie per e-mail op te vragen. Wil je liever gebeld worden of documentatie per post ontvangen?
Klik dan hier om in te loggen
.
Heb je nog geen account?
Maak dan hier een gratis account aan
.
Voornaam
Achternaam
E-mailadres
Opmerkingen
Bij iedere aanvraag worden relevante gegevens van jou gedeeld met het betreffende bedrijf. Meer hierover lees je in ons
privacybeleid
.
Ja, denk met me mee rond de
materialisering van mijn project
Meer producten van Solarlux Nederland B.V.
Solarlux - Soundline M
Uitbouwkozijn voor geluidsreductie
Solarlux Nederland B.V.
Solarlux - Proline T
Balkonbeglazing - Next Level
Solarlux Nederland B.V.
Solarlux Flexa scheidingswanden
Flexibele ruimteconcepten voor o.a. schoolgebouwen
Solarlux Nederland B.V.
cero IV
maximaal schuifraam met minimale aanzichten
Solarlux Nederland B.V.
Solarlux balkonbeglazing wint Iconic Award 2023
Dubbel gevelconcept voor renovatieprojecten
Solarlux Nederland B.V.
Solarlux balkonbeglazing
Noviteit ventilatiemogelijkheden
Solarlux Nederland B.V.
Glazen vouwwand Megaline
Groter dan ooit!
Solarlux Nederland B.V.
Balkonbeglazing SL Modular
Maatwerk van topkwaliteit
Solarlux Nederland B.V.
SDL Avalis wint iF Design Award 2021
Minimalistisch ontwerp met royale openingmogelijkheden
Solarlux Nederland B.V.
SDL AVALIS
Veel meer dan een serre
Solarlux Nederland B.V.
Solarlux terrasoverkapping SDL Acubis
De overkapping voor moderne kubistische architectuur
Solarlux Nederland B.V.
Solarlux vouwwanden
Nieuw: Woodline en Combiline
Solarlux Nederland B.V.
Solarlux glazen vouwwanden Eco- en Highline
bekroond met Iconic Award 2017
Solarlux Nederland B.V.
cero made by Solarlux
Solarlux Nederland B.V.
Solarlux vouwwand: openheid en transparantie
Solarlux Nederland B.V.
Solarlux SL 97 vouwwand
Solarlux Nederland B.V.
Energieleverende veranda´s van Solarlux
Solarlux Nederland B.V.
Solarlux schuif- en vouwwanden voor horeca en winkel entrees
Solarlux Nederland B.V.
Solarlux Serres als bron van energie
Solarlux Nederland B.V.
Solarlux - Soundline M
Uitbouwkozijn voor geluidsreductie
Solarlux Nederland B.V.
Solarlux - Proline T
Balkonbeglazing - Next Level
Solarlux Nederland B.V.
Solarlux Flexa scheidingswanden
Flexibele ruimteconcepten voor o.a. schoolgebouwen
Solarlux Nederland B.V.
cero IV
maximaal schuifraam met minimale aanzichten
Solarlux Nederland B.V.
Solarlux balkonbeglazing wint Iconic Award 2023
Dubbel gevelconcept voor renovatieprojecten
Solarlux Nederland B.V.
Solarlux balkonbeglazing
Noviteit ventilatiemogelijkheden
Solarlux Nederland B.V.
Glazen vouwwand Megaline
Groter dan ooit!
Solarlux Nederland B.V.
Balkonbeglazing SL Modular
Maatwerk van topkwaliteit
Solarlux Nederland B.V.
SDL Avalis wint iF Design Award 2021
Minimalistisch ontwerp met royale openingmogelijkheden
Solarlux Nederland B.V.
SDL AVALIS
Veel meer dan een serre
Solarlux Nederland B.V.
Solarlux terrasoverkapping SDL Acubis
De overkapping voor moderne kubistische architectuur
Solarlux Nederland B.V.
Solarlux vouwwanden
Nieuw: Woodline en Combiline
Solarlux Nederland B.V.
Solarlux glazen vouwwanden Eco- en Highline
bekroond met Iconic Award 2017
Solarlux Nederland B.V.
cero made by Solarlux
Solarlux Nederland B.V.
Solarlux vouwwand: openheid en transparantie
Solarlux Nederland B.V.
Solarlux SL 97 vouwwand
Solarlux Nederland B.V.
Energieleverende veranda´s van Solarlux
Solarlux Nederland B.V.
Solarlux schuif- en vouwwanden voor horeca en winkel entrees
Solarlux Nederland B.V.
Solarlux Serres als bron van energie
Solarlux Nederland B.V.
Toon alles
Andere producten
Supercell Zitelementen voor de openbare ruimte
Speelse landschapselementen van beton
Tjinco bv
Mirror Gloss plaatmateraal
glanzende afwerking
Kronospan
Twee nieuwe warme grijstinten in onze collectie
Bouw compactplaten
BuildingSuits B.V.
Variëren met aluminium dagkanten
Roval Aluminium B.V.
Fraké Noir
Duurzaam en stijlvol: thermisch gemodificeerd Frake hout, 100% FSC-gecertificeerd
Houthandel van Dam
Vuré Noir
Duurzaam en vormvast: thermisch gemodificeerd Vurenhout voor moderne geveltoepassingen
Houthandel van Dam
Vingui Noir
Duurzaam biobased hardhout. Geschikt voor gevelbekleding
Houthandel van Dam
Obèche Noir
Obèche Noir®: Duurzaam en Esthetisch Thermisch Gemodificeerd Ayous Hout
Houthandel van Dam
SURE-WELD® TPO dakbedekking
EPDM | Carlisle® Construction Materials BV
Re:Furbish
Een nieuw leven voor oude armaturen
Fagerhult B.V.
Nieuwe AXA Deurdrangers
Sluiten wanneer het moet
Allegion Nederland B.V.
VDB-Clickwood systeem voor parket exterieur
Vlonders, schuttingen en ander buitentimmerwerk efficiënt en blind bevestigd
Houthandel van Dam
Ga naar het producten-overzicht
Voor een optimale gebruikservaring plaatst Architectenweb functionele cookies. Wat de verschillende cookies precies doen leggen we uit in een
overzicht
. Cookies van social media kun je optioneel
aanzetten
.
Akkoord
Instellingen
Annuleren
OK
Sluiten
Doorgaan
Inloggen
Maak een gratis persoonlijk account aan
Feedback
Feedback
Wij horen graag jouw feedback. Laat je reactie achter en eventueel jouw e-mail adres.
Reactie
Verstuur