Projecten
Producten
Bedrijven
Vacatures
Agenda
Awards
Podcasts
more_horiz
Videos
Magazine
Thema's
Favorieten
Profiel
Uitloggen
Abonneer je nu op onze nieuwsbrieven!
Abonneren
Nee, bedankt
Ja, denk met me mee rond de
materialisering van mijn project
Architect
Bestekservice Detailtekeningen
0
0
0
0
Zoals ook op
onze website
is te vinden hebben voor we de architect bestekteksten en detailtekeningen beschikbaar. Op deze pagina (onder kopje brochures) kunt u de detailtekeningen verkrijgen.
In combinatie met onze dekvloeren, stootbanden, plinten en RVS afwaterering vindt u hier diverse essentiële details. Deze bestanden zijn in pdf formaat.
Detailtekeningen betreft:
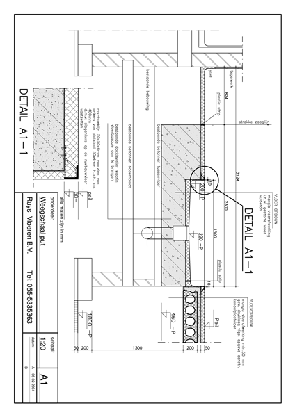
- doorsnede afschot vloer i.c.m. dekvloer, put en wandbescherming;
- Ruys RVS Stootband;
- rvs plintprofiel i.c.m. vloerafwerking;
- rvs (dubbele) hoeklijnen en dilatatieprofiel;
- vloerafwerking weegschaalput;
- vloerafwerking traprede (graniet);
- rvs goten i.c.m. dekvloer;
- vloerbeëindiging;
- aansluiting opstorting broeibak.
Download brochures
C1 dilatatieprofiel
Brochure
J2 staal- RVS kolomafwerking
Brochure
F2 RVS stootband met voet
Brochure
D1 Graniet op trap met hoeklijn
Brochure
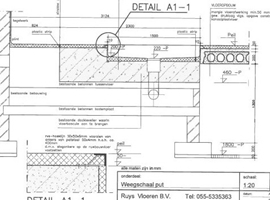
Doorsnede put met afschot en plint aansluiting
Brochure
J1 voetplaat uitbouw
Brochure
A2 aansluiting opstorting broeibak
Brochure
A3 vloerbeeindiging
Brochure
B1 RVS bakgoot icm vloer
Brochure
Plintprofiel RVS of PVC
Brochure
B2 RVS sleufgoot icm vloer
Brochure
G1 plint in stootband
Brochure
A1 weegschaalput
Brochure
F1 Ruys RVS stootband met sparing
Technische specificaties
Ruys Groep
Brochure
C2 Dubbele hoeklijn
Brochure
Stel jezelf kort voor! Dan weet het betreffende bedrijf wie hun brochure gedownload heeft.
Wil je niet bij elke download jouw gegevens in hoeven voeren?
Klik dan hier om in te loggen
. Heb je nog geen account?
Maak dan hier een gratis account aan
.
Voornaam
Achternaam
E-mailadres
Downloaden
Wanneer je brochures downloadt op Architectenweb.nl worden relevante gegevens van jou – zoals jouw naam en e-mailadres – met het betreffende bedrijf gedeeld. Meer hierover lees je in ons
privacybeleid
.
Wanneer je brochures downloadt op Architectenweb.nl worden relevante gegevens van jou – zoals jouw naam en e-mailadres – met het betreffende bedrijf gedeeld. Meer hierover lees je in ons
privacybeleid
.
Brochure
Trefwoorden
ontwerp
architect
detailtekeningen ruys vloeren
doorsnedes
bestek
vloerafwerking
detailtekeningen
ruys vloeren
Ruys Groep
Download brochures (16)
Neem contact op
Contactgegevens
Telefoonnummer
+31(0)18 3515 371
Telefoonnummer
+31(0)55 5335 363
Email
Websites
Ruys Groep - synergie in vloeren expertise
Ruys Groep België - maatwerk in vloeren in België
RS Maatwerk - specialist in RVS afwatering en wandbescherming
DR Flexjoint - vloeiende vloerovergang
Projecten waarin dit product is toegepast
Ruys Vloeren draagt zorg voor UCRETE UD200SR Vloerafwerking
Ruys Groep
Neem contact op met
Ruys Groep
Je bent momenteel niet ingelogd. Hierdoor is het alleen mogelijk om meer informatie per e-mail op te vragen. Wil je liever gebeld worden of documentatie per post ontvangen?
Klik dan hier om in te loggen
.
Heb je nog geen account?
Maak dan hier een gratis account aan
.
Voornaam
Achternaam
E-mailadres
Opmerkingen
Bij iedere aanvraag worden relevante gegevens van jou gedeeld met het betreffende bedrijf. Meer hierover lees je in ons
privacybeleid
.
Ja, denk met me mee rond de
materialisering van mijn project
Meer producten van Ruys Groep
DR Food Flexjoint
Een nieuwe en unieke vloeroplossing
Ruys Groep
Nieuw: CemSkin
Innovatieve cementcoating verlengt levensduur betonvloeren
Ruys Groep
DR Flexjoint
Een vloeiende vloerovergang
Ruys Groep
Hygiënische prefab wandbeschermingoplossing van PolySto
Ruys Groep
Margia Crete XL industrievloer
Samen met de klant komen wij tot nog betere vloeroplossingen
Ruys Groep
Granitech
De Granitech vloer - de krachtpatser
Ruys Groep
RVS Afwateringssystemen
RVS putten en goten - hygiënisch verantwoord en sterk.
Ruys Groep
Ruys Wandbescherming
Wandbescherming zo sterk als de vloer
Ruys Groep
Korodur pantserdekvloer
Een industrievloer welke is bestand tegen hoge dynamische,mechanische, stoot en schuifbelasting
Ruys Groep
Margia Stone vloer
De slijtvaste en antislip dekvloer
Ruys Groep
Margia Graniet vloer
Unieke bloedbestendige en antislip vloer voor de voedselverwerkende industrie
Ruys Groep
Kunststofvloeren
Ruys Groep
Korodur-Korotan dekvloer
Ruys Groep
Ucrete vloersysteem
De Ucrete industrievloer - chemisch en temperatuursbestendige vloer
Ruys Groep
Margia Crete vloersysteem
Ideale renovatievloer
Ruys Groep
DR Food Flexjoint
Een nieuwe en unieke vloeroplossing
Ruys Groep
Nieuw: CemSkin
Innovatieve cementcoating verlengt levensduur betonvloeren
Ruys Groep
DR Flexjoint
Een vloeiende vloerovergang
Ruys Groep
Hygiënische prefab wandbeschermingoplossing van PolySto
Ruys Groep
Margia Crete XL industrievloer
Samen met de klant komen wij tot nog betere vloeroplossingen
Ruys Groep
Granitech
De Granitech vloer - de krachtpatser
Ruys Groep
RVS Afwateringssystemen
RVS putten en goten - hygiënisch verantwoord en sterk.
Ruys Groep
Ruys Wandbescherming
Wandbescherming zo sterk als de vloer
Ruys Groep
Korodur pantserdekvloer
Een industrievloer welke is bestand tegen hoge dynamische,mechanische, stoot en schuifbelasting
Ruys Groep
Margia Stone vloer
De slijtvaste en antislip dekvloer
Ruys Groep
Margia Graniet vloer
Unieke bloedbestendige en antislip vloer voor de voedselverwerkende industrie
Ruys Groep
Kunststofvloeren
Ruys Groep
Korodur-Korotan dekvloer
Ruys Groep
Ucrete vloersysteem
De Ucrete industrievloer - chemisch en temperatuursbestendige vloer
Ruys Groep
Margia Crete vloersysteem
Ideale renovatievloer
Ruys Groep
Toon alles
Andere producten
Flux+ Wall bekroond op VSK+E
vraaggestuurde ventilatie met warmteterugwinning
Renson
Groener bouwen met cijfers: hoe de CO2-calculator helpt
Hoe de CO2-calculator helpt bij duurzame keuzes
Reynaers Aluminium Nederland
Verduurzamen met respect voor karakter en detail
Metaglas Classic en Original
Metaglas Groep
Gerecycled composietsteen
Met 70% gerecycled materiaal als basis
Holonite B.V.
Sphera, de nieuwe standaard in homogeen vinyl vloeren
Drie collecties voor toekomstbestendige projecten, met Elite b+ als biocirculaire koploper
Forbo Flooring
Dekton by Cosentino als duurzame geveloplossing
Cosentino The Netherlands B.V.
WoodFrame Slim Meranti
Profielen uit post-consumer meranti hardhout uit Nederlandse sloopprojecten, FSC Recycled
Intermontage B.V.
LIAG | De mogelijkheden als je duurzaamheid centraal stelt
Bekijk het webinar!
KUBUS | Specialist in Archicad
Circle 3D-Betoncasco
Circulair, modulair en flexibel Circle
De Hoop Pekso
Rox: unieke breuksteen
Back to basic met deze ruwe natuurlijke gevelstenen.
MBI De Steenmeesters
HydroGrid: Slimme waterdoorlatende parkeeroplossing
wienerberger
Pluvia: doorgroeibare keramische bestrating die werkt
Groen parkeren met gebakken kwaliteit
wienerberger
Ga naar het producten-overzicht
Voor een optimale gebruikservaring plaatst Architectenweb functionele cookies. Wat de verschillende cookies precies doen leggen we uit in een
overzicht
. Cookies van social media kun je optioneel
aanzetten
.
Akkoord
Instellingen
Annuleren
OK
Sluiten
Doorgaan
Inloggen
Maak een gratis persoonlijk account aan
Feedback
Feedback
Wij horen graag jouw feedback. Laat je reactie achter en eventueel jouw e-mail adres.
Reactie
Verstuur