Projecten
Producten
Bedrijven
Vacatures
Agenda
Awards
Podcasts
more_horiz
Videos
Magazine
Thema's
Favorieten
Profiel
Uitloggen
Abonneer je nu op onze nieuwsbrieven!
Abonneren
Nee, bedankt
Ja, denk met me mee rond de
materialisering van mijn project
Janisol HI ramen
Janisol HI deuren
Janisol HI deuren
Innovatief & duurzaam: Janisol HI ramen en deuren
0
0
0
0
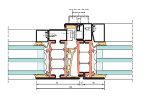
Een sterk staaltje isolatie: met het stalen Janisol HI profielsysteem voor ramen en deuren verlegt Jansen de grenzen op het gebied van thermische isolatie.
Janisol HI ramen
Mede dankzij de uiterst stabiele en hoogwaardige isolator hebben Janisol HI ramen smalle aanzichtbreedten (kozijn 50 mm, vleugel 35 mm) en kunnen ze Uw-waarden behalen van 0,69 W/m2K bij vaste beglazing en 0,8 W/m2K bij draairamen. Met een inbouwdiepte van 90 mm behoren draairamen met een hoogte tot 2.800 mm en een gewicht van maximaal 180 kg tot de mogelijkheden. De maximaal inzetbare glasdikte is 66 mm.
Janisol HI deuren
Ook de super geïsoleerde stalen Janisol HI deuren beperken warmteverlies tot een minimum. Zij zijn bijzonder geschikt voor gebruik in intensief bezochte openbare gebouwen. Janisol HI deuren hebben een grote mechanische stabiliteit (duurzaamheidstest volgens DIN EN 12400 klasse 8, 1.000.000 cycli) in combinatie met super isolerende eigenschappen. De isolator uit met glasvezel versterkt polyurethaan zorgt ervoor dat Janisol HI deuren smalle aanzichtbreedten hebben en Ud-waarden kunnen behalen van 1,0 W/m2K. Door de inbouwdiepte van 80 mm kan maximaal 56 mm dik glas ingezet worden. De maximale deurvleugel afmetingen zijn 1400 x 3000 mm (bxh). Dankzij het uitgebreide assortiment beslag en toebehoren kunnen Janisol HI deuren voldoen aan de wensen en eisen van elke toepassing. De speciaal gevormde isolator maakt het mogelijk om eenvoudig sloten in de profielen in te bouwen. De sloten worden in het kunststof gedeelte geplaatst en hoeven dus niet in het metalen gedeelte uitgefreesd te worden.
Energiebesparend
De thermische isolatie van Janisol HI is getest volgens EN ISO 10077-2 en het systeem is ook uitgebreid beproefd volgens de CE productnorm EN 14351-1. Bovendien is Janisol HI het eerste stalen raamsysteem dat geslaagd is voor de Zwitserse Minergie-voorcertificering met het oog op het behalen van het MINERGIE®-label.
Uiteraard zijn de Janisol HI profielen geschikt voor poedercoating. Janisol HI ramen en deuren kunnen daardoor net als alle andere Jansen systemen in elke gewenste kleur en structuur uitgevoerd worden.
Janisol HI verzoent het esthetische met het functionele: transparant en energiebesparend.
Download brochures
Systeem informatie Jansen staal systemen
Technische specificaties
Design - De harmonie tussen functie en esthetiek
Brochure
Jansen Building Safety & Security
Brochure
Staalsystemen van Jansen
Brochure
Jansen buigtechniek
Brochure
Stel jezelf kort voor! Dan weet het betreffende bedrijf wie hun brochure gedownload heeft.
Wil je niet bij elke download jouw gegevens in hoeven voeren?
Klik dan hier om in te loggen
. Heb je nog geen account?
Maak dan hier een gratis account aan
.
Voornaam
Achternaam
E-mailadres
Downloaden
Wanneer je brochures downloadt op Architectenweb.nl worden relevante gegevens van jou – zoals jouw naam en e-mailadres – met het betreffende bedrijf gedeeld. Meer hierover lees je in ons
privacybeleid
.
Wanneer je brochures downloadt op Architectenweb.nl worden relevante gegevens van jou – zoals jouw naam en e-mailadres – met het betreffende bedrijf gedeeld. Meer hierover lees je in ons
privacybeleid
.
Brochure
Trefwoorden
duurzaam
transparant
janisol
deur
jansen
innovatief
thermisch
raam
staal
energiebesparend
Jansen
Download brochures (5)
Neem contact op
Contactgegevens
Telefoonnummer
+31 (0)20 899 95 20
Email
Websites
Jansen Website
Jansen Docu Center
Projecten waarin dit product is toegepast
Villa S Den Haag
Jansen
Neem contact op met
Jansen
Je bent momenteel niet ingelogd. Hierdoor is het alleen mogelijk om meer informatie per e-mail op te vragen. Wil je liever gebeld worden of documentatie per post ontvangen?
Klik dan hier om in te loggen
.
Heb je nog geen account?
Maak dan hier een gratis account aan
.
Voornaam
Achternaam
E-mailadres
Opmerkingen
Bij iedere aanvraag worden relevante gegevens van jou gedeeld met het betreffende bedrijf. Meer hierover lees je in ons
privacybeleid
.
Ja, denk met me mee rond de
materialisering van mijn project
Meer producten van Jansen
Jansen VISS vliesgeveldeuren
Jansen
Jansen VISS vliesgevelsysteem
Jansen
Piet Boon by Jansen
Exclusieve maatwerkcollectie dat een statement is voor elk huis, hotel of kantoor.
Jansen
Jansen Janisol Arte 66
Get your kicks with Arte 66!
Jansen
Art 15 voor slanke stalen deuren
Jansen
Art 15 beslag voor slanke deuren
Jansen
Janisol geïsoleerde stalen ramen en deuren
Jansen
Stalen Jansen systemen voor niet geïsoleerde ramen en deuren
Jansen
Stalen Jansen systemen voor transparante vliesgevels en lichtstraten
Jansen
Janisol stalen hefschuifdeuren
Jansen
Janisol Arte - Stalen renovatieprofielen
Jansen
Jansen stalen industriële vouw- en schuifdeuren
Jansen
Jansen stalen vouwwanden
Jansen
Jansen systemen in staal - ramen, deuren en vliesgevels
Jansen
Jansen VISS® IxTRA
Jansen
Jansen vinger veilige deuren
Jansen
Jansen VISS vliesgeveldeuren
Jansen
Jansen VISS vliesgevelsysteem
Jansen
Piet Boon by Jansen
Exclusieve maatwerkcollectie dat een statement is voor elk huis, hotel of kantoor.
Jansen
Jansen Janisol Arte 66
Get your kicks with Arte 66!
Jansen
Art 15 voor slanke stalen deuren
Jansen
Art 15 beslag voor slanke deuren
Jansen
Janisol geïsoleerde stalen ramen en deuren
Jansen
Stalen Jansen systemen voor niet geïsoleerde ramen en deuren
Jansen
Stalen Jansen systemen voor transparante vliesgevels en lichtstraten
Jansen
Janisol stalen hefschuifdeuren
Jansen
Janisol Arte - Stalen renovatieprofielen
Jansen
Jansen stalen industriële vouw- en schuifdeuren
Jansen
Jansen stalen vouwwanden
Jansen
Jansen systemen in staal - ramen, deuren en vliesgevels
Jansen
Jansen VISS® IxTRA
Jansen
Jansen vinger veilige deuren
Jansen
Toon alles
Andere producten
Brandwerend Daklicht in grotere afmetingen met Triple glas
Volledig prefab aangeleverd, geen kans op bouwfouten
Vlakke Lichtkoepel
Gebogen Sandwichpanelen
"Geeft het gebouw een prachtige uitstraling"
Dupral B.V.
Berkvens Zwart
Volledige set met industriële look
Berkvens Deursystemen B.V.
Maxus Ceramics - Radix Wandtegels
Keramische wandtegels in 100+ kleuren en 5 formaten
KeraStone
Anywhite
Strak, wit en volledig op maat
Anyway Doors
Flux+ Wall bekroond op VSK+E
vraaggestuurde ventilatie met warmteterugwinning
Renson
Groener bouwen met cijfers: hoe de CO2-calculator helpt
Hoe de CO2-calculator helpt bij duurzame keuzes
Reynaers Aluminium Nederland
Verduurzamen met respect voor karakter en detail
Metaglas Classic en Original
Metaglas Groep
Gerecycled composietsteen
Met 70% gerecycled materiaal als basis
Holonite B.V.
Sphera, de nieuwe standaard in homogeen vinyl vloeren
Drie collecties voor toekomstbestendige projecten, met Elite b+ als biocirculaire koploper
Forbo Flooring
Dekton by Cosentino als duurzame geveloplossing
Cosentino The Netherlands B.V.
WoodFrame Slim Meranti
Profielen uit post-consumer meranti hardhout uit Nederlandse sloopprojecten, FSC Recycled
Intermontage B.V.
Ga naar het producten-overzicht
Voor een optimale gebruikservaring plaatst Architectenweb functionele cookies. Wat de verschillende cookies precies doen leggen we uit in een
overzicht
. Cookies van social media kun je optioneel
aanzetten
.
Akkoord
Instellingen
Annuleren
OK
Sluiten
Doorgaan
Inloggen
Maak een gratis persoonlijk account aan
Feedback
Feedback
Wij horen graag jouw feedback. Laat je reactie achter en eventueel jouw e-mail adres.
Reactie
Verstuur