Projecten
Producten
Bedrijven
Vacatures
Agenda
Awards
Podcasts
more_horiz
Videos
Magazine
Thema's
Favorieten
Profiel
Uitloggen
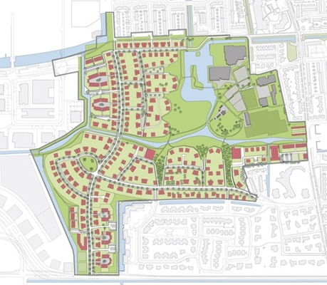
Copyright: Dana Ponec architecten
Copyright: Dana Ponec architecten
Copyright: Dana Ponec architecten
Dana Ponec presenteert wijk Badhoevedorp
12 september 2011, 9:18
Dana Ponec architecten
heeft het stedenbouwkundig ontwerp gepresenteerd van de nieuwe woonwijk Quatrebras in Badhoevedorp. De wijk van veertig hectare komt aan de westkant in de plaats te liggen en wordt een villawijk.
De gemeente Haarlemmermeer heeft plannen om de snelweg A9 om te leggen. Nu doorkruist de snelweg Badhoevedorp, wat zorgt voor een splitsing van de plaats. De gemeente wil met de plannen het dorpse karakter van het dorp benadrukken en wil van Badhoevedorp weer een groene en aantrekkelijke plaats maken. Dana Ponec kreeg de opdracht voor het stedenbouwkundig ontwerp van een nieuwe groene villawijk aan de westkant van Badhoevedorp.
Het deelgebied zoals die nu is heeft een park met een waterplas en enkele voorzieningen als een zwembad en een buurthuis. Dana Ponec wil de nieuwe villabuurt aan laten sluiten op de omringende wijken en het centrum van Badhoevedorp. De woningen worden verbonden door ‘De Laan’. Dit wordt de hoofdverbinding tussen de nieuwe wijk en de omliggende wijken van Badhoevedorp.
In de nieuwe wijk worden 370 woningen gerealiseerd. Deze variëren van grote villa’s tot hofwoningen.
Trefwoorden
badhoevedorp
bohemen
stedenbouwkundig plan
villawijk
dso quatrebras
dana ponec architecten
Locatie
Best gelezen
1
Nieuw voorstel voor renovatie en uitbreiding De Kuip
woensdag, 26 november
2
Het streven naar nieuw is ouderwets
donderdag, 20 november
3
SAWA officieel geopend door Koningin Máxima
donderdag, 20 november
4
Space&Matter ontwerpt ingetogen houten paviljoen voor BSO in Zeist
vrijdag, 21 november
5
Studioninedots deelt nieuwe beelden van project Spark op Smakkelaarsveld in Utrecht
maandag, 24 november
Gerelateerde nieuwsberichten
Terwijde krijgt nieuw winkelcentrum
10 juli 2012
Oude snelweg A9 wordt nieuw hart Badhoevedorp
12 april 2017
ONX wint opdracht dorpshuis
10 november 2008
Schiphol wil 'parkeerstad' langs A4
26 februari 2007
Autorijder persoonlijk benaderd over wegenonderhoud
23 april 2008
Terwijde krijgt nieuw winkelcentrum
10 juli 2012
Oude snelweg A9 wordt nieuw hart Badhoevedorp
12 april 2017
ONX wint opdracht dorpshuis
10 november 2008
Schiphol wil 'parkeerstad' langs A4
26 februari 2007
Autorijder persoonlijk benaderd over wegenonderhoud
23 april 2008
Toon alles
Gerelateerde bedrijven
Dana Ponec architecten
Andere nieuwsberichten
Schiphol investeert tien miljard in nieuwe terminal en andere infrastructuur
4 uur geleden
Schiphol wil tot 2035 tien miljard euro investeren in betere en duurzamere infrastructuur, waaronder een nieuwe terminal en vernieuwde pieren.
Video's: genomineerden voor de Abe Bonnema Architectuurprijs 2025
Vandaag, 13:00
Van de vier genomineerde architecten voor de Abe Bonnema Architectuurprijs 2025 zijn video's gemaakt.
'Landmark' voor duurzame toekomst komt in Rotterdamse wijk Waterkant
Vandaag, 11:53
De zogeheten Shift Landmark krijgt een plek in de toekomstige wijk Waterkant in Rotterdam-Zuid. Het gebouw moet een internationale trekpleister worden die mensen, bedrijven en andere organisaties aanzet tot actie voor een duurzame toekomst.
RxDOMI ontwikkelt modulaire, biobased mantelzorgwoning op basis van WikiHouse-systeem
Gisteren, 16:06
Met 3D-modules van 10 m2 kunnen kleinere en grote woonruimtes gerealiseerd worden. RxDOMI ontwikkelt en bouwt de modulaire mantelzorgwoning.
Flevoland rekent op kabinet bij openstellen Lelystad Airport
3 uur geleden
De provincie Flevoland rekent erop dat het kabinet Lelystad Airport niet alleen openstelt voor Defensie, maar ook voor vakantievluchten.
CBS: bijna acht procent van de corporatiewoningen naar statushouders
Vandaag, 14:42
Bijna acht procent van de huurwoningen van woningcorporaties die in 2023 vrijkwamen, ging dat jaar naar statushouders.
Kennisinstituut: reizen met auto, vliegtuig en e-bike in de lift
Gisteren, 12:56
Het wegverkeer, het aantal vliegtuigpassagiers, en het gebruik van de elektrische fiets zijn in 2024 gegroeid en naar verwachting zet die stijging door.
Amsterdam koppelt metrolijn 50 en 53 om capaciteit metronetwerk te verhogen
Gisteren, 10:00
Op het nieuwe netwerk kunnen de metro's vaker rijden: acht keer per uur overdag en tien keer per uur in de spits. Door de ontvlechting rijden er straks minder lijnen op hetzelfde spoor.
Gemeente Den Haag komt met meldpunt voor onveilige plekken
24 november, 12:11
De gemeente Den Haag heeft een meldpunt gecreëerd waar mensen melding kunnen maken van onveilige plekken. Experts bekijken de locaties vervolgens om vast te stellen welke maatregelen er nodig zijn om het gevoel van veiligheid te verbeteren.
Vervoersregio's Rotterdam, Den Haag en Amsterdam willen miljard extra voor OV
21 november, 11:29
Volgens burgemeester Jan van Zanen van Den Haag is 500 miljoen euro extra nodig "om niet achteruit te gaan door indexering en bezuinigingen". En nog eens 500 miljoen euro is nodig "om het OV mee te laten groeien met het aantal inwoners.
Ga naar het nieuws-archief
0
0
0
0
Voor een optimale gebruikservaring plaatst Architectenweb functionele cookies. Wat de verschillende cookies precies doen leggen we uit in een
overzicht
. Cookies van social media kun je optioneel
aanzetten
.
Akkoord
Instellingen
Annuleren
OK
Sluiten
Doorgaan
Inloggen
Maak een gratis persoonlijk account aan
Feedback
Feedback
Wij horen graag jouw feedback. Laat je reactie achter en eventueel jouw e-mail adres.
Reactie
Verstuur